2427 Woodbourne Place Cape Coral, FL 33991
For Sale MLS# 2025012674
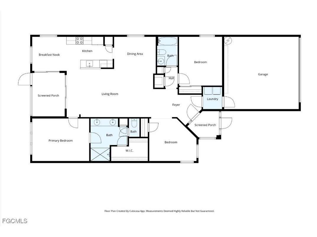
3 beds 2 baths 1,507 sq ft Single Family
Details for 2427 Woodbourne Place
MLS# 2025012674
Description for 2427 Woodbourne Place, Cape Coral, FL, 33991
SELLERS SAY BRING ALL OFFERS! Beautifully maintained 3BR/2BA home in the highly sought-after gated community of Sandoval. Located on an oversized cul-de-sac lot with serene lake views. Features include brand-new carpet, open floor plan filled with natural light, and a new 2024 roof for peace of mind. Enjoy the spacious backyard perfect for creating your own outdoor oasis. Sandoval offers resort-style amenities—pool, clubhouse, fitness center, tennis, walking trails, and more. Close to shopping, dining, and top-rated schools. Move-in ready! Schedule your showing today.
Listing Information
Property Type: Residential, Single Family Residence
Status: Active
Bedrooms: 3
Bathrooms: 2
Lot Size: 0.38 Acres
Square Feet: 1,507 sq ft
Year Built: 2007
Garage: Yes
Stories: 1 Story
Construction: Block,Concrete,Stucco
Subdivision: Greendale
Furnished: Yes
County: Lee
Days On Market: 78
Construction Status: Resale
Room Information
Bathrooms
Full Baths: 2
Additonal Room Information
Other: Dining Room
Laundry: Dryer Hookup, Washer Hookup
Interior Features
Appliances: Electric Cooktop, RefrigeratorWithIce Maker, Ice Maker, Washer, Dishwasher, Disposal, Dryer, Freezer, Microwave, Range, Refrigerator
Flooring: Carpet,Laminate,Tile
Doors/Windows: Other, Shutters, Sliding
Additional Interior Features: Pantry, Vaulted Ceiling(s), Walk-In Closet(s), Split Bedrooms, Cable TV, Breakfast Area, Family/Dining Room, Separate Shower, Shower Only, Living/Dining Room
Utilities
Water: Assessment Paid
Sewer: Assessment Paid
Other Utilities: Cable Available
Cooling: Electric, Ceiling Fan(s), Central Air
Heating: Electric, Central
Exterior / Lot Features
Attached Garage: Attached Garage
Garage Spaces: 2
Parking Description: Garage, Attached, Garage Door Opener
Roof: Tile
Pool: Community
Lot View: Water
Lot Dimensions: 292 x 146 x 101 x 139
Additional Exterior/Lot Features: Patio, Patio, Cul-de-Sac, Oversized Lot
Waterfront Details
Water Front Features: Basin
Community Features
Community Features: Gated
Security Features: Smoke Detector(s)
Association Amenities: Pool, Storage, Clubhouse, Pier, Basketball Court, Trail(s), Park, Picnic Area, Dog Park, Barbecue, Bocce Court
HOA Dues Include: Irrigation Water, Internet
Homeowners Association: Yes
HOA Dues: $1,064 / Quarterly
Driving Directions
Please be prepared to show your Identification at front gate.
Financial Considerations
Terms: All Financing Considered,Cash,FHA
Tax/Property ID: 29-44-23-C2-00390.0710
Tax Amount: 4487
Tax Year: 2025
A broker reciprocity listing courtesy: Blue Line Realty of SWFL
Based on information provided by FGCMLS. Internet Data Exchange information is provided exclusively for consumers’ personal, non-commercial use, and such information may not be used for any purpose other than to identify prospective properties consumers may be interested in purchasing. This data is deemed reliable but is not guaranteed to be accurate by Edina Realty, Inc., or by the MLS. Edina Realty, Inc., is not a multiple listing service (MLS), nor does it offer MLS access.
Copyright 2025 FGCMLS. All Rights Reserved.
Payment Calculator
Interest rate and annual percentage rate (APR) are based on current market conditions, are for informational purposes only, are subject to change without notice and may be subject to pricing add-ons related to property type, loan amount, loan-to-value, credit score and other variables. Estimated closing costs used in the APR calculation are assumed to be paid by the borrower at closing. If the closing costs are financed, the loan, APR and payment amounts will be higher. If the down payment is less than 20%, mortgage insurance may be required and could increase the monthly payment and APR. Contact us for details. Additional loan programs may be available. Accuracy is not guaranteed, and all products may not be available in all borrower's geographical areas and are based on their individual situation. This is not a credit decision or a commitment to lend.
Sales History & Tax Summary for 2427 Woodbourne Place
Sales History
| Date | Price | Change |
|---|---|---|
| Currently not available. | ||
Tax Summary
| Tax Year | Estimated Market Value | Total Tax |
|---|---|---|
| Currently not available. | ||
Data powered by ATTOM Data Solutions. Copyright© 2025. Information deemed reliable but not guaranteed.
Schools
Schools nearby 2427 Woodbourne Place
| Schools in attendance boundaries | Grades | Distance | Rating |
|---|---|---|---|
| Loading... | |||
| Schools nearby | Grades | Distance | Rating |
|---|---|---|---|
| Loading... | |||
Data powered by ATTOM Data Solutions. Copyright© 2025. Information deemed reliable but not guaranteed.
The schools shown represent both the assigned schools and schools by distance based on local school and district attendance boundaries. Attendance boundaries change based on various factors and proximity does not guarantee enrollment eligibility. Please consult your real estate agent and/or the school district to confirm the schools this property is zoned to attend. Information is deemed reliable but not guaranteed.
SchoolDigger ® Rating
The SchoolDigger rating system is a 1-5 scale with 5 as the highest rating. SchoolDigger ranks schools based on test scores supplied by each state's Department of Education. They calculate an average standard score by normalizing and averaging each school's test scores across all tests and grades.
Coming soon properties will soon be on the market, but are not yet available for showings.