2430 14th Street N Saint Petersburg, FL 33704
Pending MLS# TB8473563
4 beds 3 baths 2,904 sq ft Single Family
Details for 2430 14th Street N
MLS# TB8473563
Description for 2430 14th Street N, Saint Petersburg, FL, 33704
Under contract-accepting backup offers. One or more photo(s) has been virtually staged. Welcome to your own private Oasis! This beautifully updated 1926 bungalow has all the charm and character of a traditional bungalow with all of the modern conveniences. Located in the heart of Woodlawn Circle, this 4 bedroom/3 bathroom pool home is move in ready and waiting for you! Updated electric , primary bath, and stunning chefs kitchen were completed in 2022. Pella impact windows, 2025. Downstairs HVAC/2024. Whole house Genorac generator, 2024. Paid in full solar panels and roof/2019, upstairs HVAC system 2018. The heated, salt water pool is surrounded by lush tropical plants and the covered patio offers the perfect environment to entertain. Centrally located to everything we love about living in St. Pete. A designated bike path down MLK to downtown, close to I-275 makes getting to the airports convenient, and St Pete's amazing beaches are on 20 minutes away. The home currently sits in flood zone x! You do not want to miss this opportunity!
Listing Information
Property Type: Residential, Single Family Residence
Status: Pending
Bedrooms: 4
Bathrooms: 3
Lot Size: 0.16 Acres
Square Feet: 2,904 sq ft
Year Built: 1926
Garage: Yes
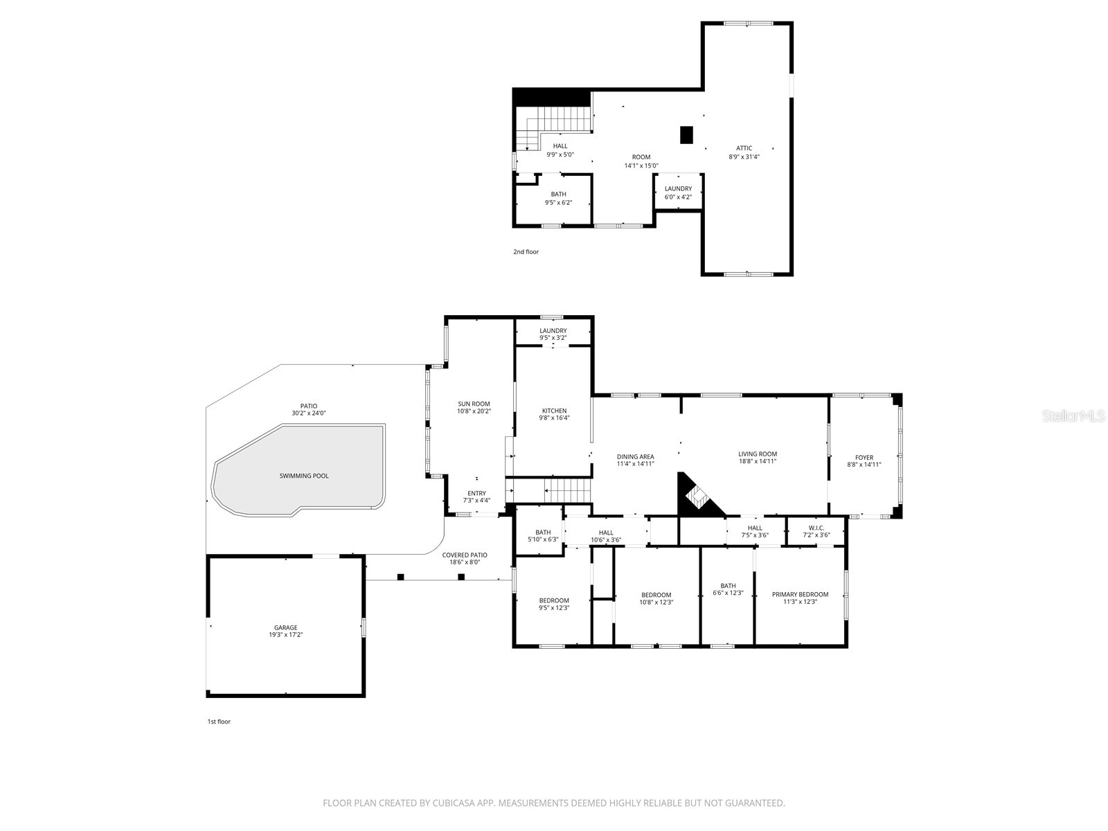
Stories: 2 Story
Construction: Cement Siding,Wood Frame
Subdivision: Woodlawn
Foundation: Crawlspace
County: Pinellas
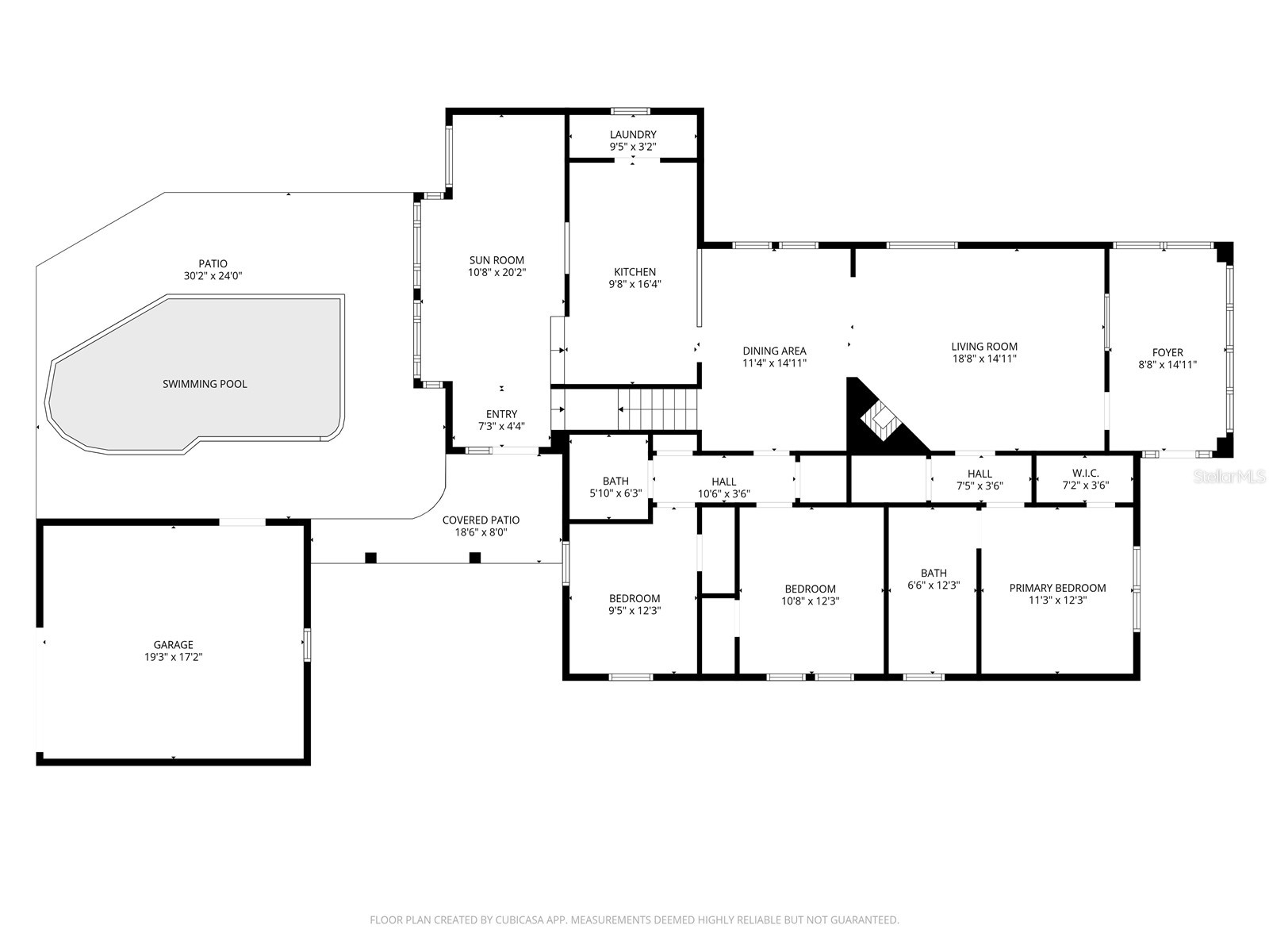
Room Information
Main Floor
Living Room:
Florida Room: 20x10
Dining Room: 14x11
Kitchen: 16x9
Bedroom 4: 31x8
Bedroom 3: 12x9
Bedroom 2: 12x10
Primary Bathroom: 12x6
Primary Bedroom: 12x11
Bathrooms
Full Baths: 3
Additonal Room Information
Laundry: Inside, Laundry Room
Interior Features
Appliances: Ice Maker, Exhaust Fan, Gas Water Heater, Water Softener, Washer, Microwave, Range, Refrigerator, Dishwasher, Disposal, Dryer
Flooring: Ceramic Tile,Porcelain Tile,Wood
Basement: Crawl Space
Doors/Windows: Blinds, Tinted Windows, ENERGY STAR Qualified Windows, Storm Window(s)
Fireplaces: Living Room, Wood Burning
Additional Interior Features: Split Bedrooms, Built-in Features, Ceiling Fan(s), Crown Molding, Main Level Primary, Separate/Formal Dining Room, Open Floorplan, Wood Cabinets
Utilities
Water: Public
Sewer: Public Sewer
Other Utilities: Cable Available,Electricity Connected,Natural Gas Connected,Municipal Utilities,Phone Available,Sewer Connected,Underground Utilities,Water Connected
Cooling: Ceiling Fan(s), Central Air
Heating: Heat Pump
Exterior / Lot Features
Attached Garage: Attached Garage
Garage Spaces: 1
Parking Description: Garage Door Opener, Garage, Alley Access
Roof: Shingle
Pool: Heated, In Ground, Salt Water, Gunite
Lot Dimensions: 60x110
Fencing: Wood
Additional Exterior/Lot Features: Private Yard, Rain Gutters, Sprinkler/Irrigation, French Patio Doors, Lighting, Screened, Covered, Front Porch, Rear Porch, Landscaped
Community Features
Community Features: Street Lights, Sidewalks
Driving Directions
Heading west on 22nd ave N from MLK, go right on 14th street. The house is located on the left hand side of the street.
Financial Considerations
Terms: Cash,Conventional
Tax/Property ID: 12-31-16-98838-000-1350
Tax Amount: 7265
Tax Year: 2025
A broker reciprocity listing courtesy: SMITH & ASSOCIATES REAL ESTATE
Based on information provided by Stellar MLS as distributed by the MLS GRID. Information from the Internet Data Exchange is provided exclusively for consumers’ personal, non-commercial use, and such information may not be used for any purpose other than to identify prospective properties consumers may be interested in purchasing. This data is deemed reliable but is not guaranteed to be accurate by Edina Realty, Inc., or by the MLS. Edina Realty, Inc., is not a multiple listing service (MLS), nor does it offer MLS access.
Copyright 2026 Stellar MLS as distributed by the MLS GRID. All Rights Reserved.
Sales History & Tax Summary for 2430 14th Street N
Sales History
| Date | Price | |
|---|---|---|
| Currently not available. | ||
Tax Summary
| Tax Year | Estimated Market Value | Total Tax |
|---|---|---|
| Currently not available. | ||
Data powered by ATTOM Data Solutions. Copyright© 2026. Information deemed reliable but not guaranteed.
Schools
Schools nearby 2430 14th Street N
| Schools in attendance boundaries | Grades | Distance | Rating |
|---|---|---|---|
| Loading... | |||
| Schools nearby | Grades | Distance | Rating |
|---|---|---|---|
| Loading... | |||
Data powered by ATTOM Data Solutions. Copyright© 2026. Information deemed reliable but not guaranteed.
The schools shown represent both the assigned schools and schools by distance based on local school and district attendance boundaries. Attendance boundaries change based on various factors and proximity does not guarantee enrollment eligibility. Please consult your real estate agent and/or the school district to confirm the schools this property is zoned to attend. Information is deemed reliable but not guaranteed.
SchoolDigger ® Rating
The SchoolDigger rating system is a 1-5 scale with 5 as the highest rating. SchoolDigger ranks schools based on test scores supplied by each state's Department of Education. They calculate an average standard score by normalizing and averaging each school's test scores across all tests and grades.
Coming soon properties will soon be on the market, but are not yet available for showings.