$299,000
24350 SW 18th Lane Newberry, FL 32669
For Sale MLS# GC529781
3 beds 2 baths 1,314 sq ft Single Family
Details for 24350 SW 18th Lane
MLS# GC529781
Description for 24350 SW 18th Lane, Newberry, FL, 32669
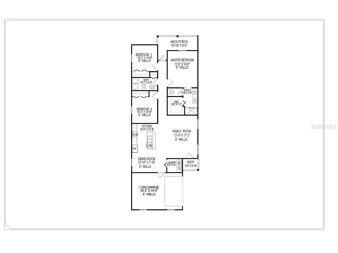
Under Construction. ****NORFLEET HOMES IS OFFERING GOLF CART to the buyer of this home for a closed transaction following an acceptable negotiated contract by January 15,2026. Golf Cart Promotion conditions apply**** Home completed and ready for move-in! This beautiful new 3-bedroom, 2-bath Norfleet Home offers quality craftsmanship and modern design in the desirable CountryWay Town Square community—where small-town charm meets everyday convenience. Built by one of the area’s premier builders, this home sits on a premium oversized lot and features an upgraded brick exterior. The open floor plan is designed for comfort and easy living, with 9’ ceilings, a spacious living and dining area, and a functional layout that maximizes every square foot. The stylish kitchen includes a center island, quartz countertops, and stainless steel appliances (dishwasher, microwave, oven/range). Additional features include a 1.5-car garage, covered back porch, electric water heater, and front-yard sprinkler system. The low-maintenance yard is perfect for easy upkeep—HOA maintains the front lawn. HOA dues are $250 quarterly ($1,000 annually). Enjoy the lifestyle CountryWay Town Square offers with a community pool, volleyball, Stonehouse Grill, Tortillas Tex-Mex, BIM Health Facility, and regular live concerts and events on the Town Square. Conveniently located just 2.5 miles from downtown Newberry’s grocery stores, restaurants, pharmacy, and sports facilities. Schools from preschool through high school are within 1 mile. Outdoor enthusiasts will love the nearby springs and state parks within 15–20 miles. Easy access (within ½ mile) to SR 26, 235, and 41/27 puts Gainesville, Alachua, High Springs, and Archer all within about 30 minutes. You’ll be pleasantly surprised by the affordable Newberry utilities and low insurance costs that come with owning a brand-new home!
Listing Information
Property Type: Residential, Single Family Residence
Status: Active
Bedrooms: 3
Bathrooms: 2
Lot Size: 0.10 Acres
Square Feet: 1,314 sq ft
Year Built: 2025
Garage: Yes
Stories: 1 Story
Construction: HardiPlank Type
Construction Display: New Construction
Subdivision: Countryway Of Newberry Ph V Pb 38 Pg 62
Builder: Edward Norfleet
Foundation: Slab
County: Alachua
Construction Status: Under Construction
School Information
Elementary: Newberry Elementary School-Al
Middle: Oak View Middle School
High: Newberry High School-Al
Room Information
Main Floor
Kitchen: 11.8x10.6
Primary Bathroom: 10.8x5
Primary Bedroom: 14.8x12
Great Room: 17.2x12.4
Bathrooms
Full Baths: 2
Additonal Room Information
Laundry: Inside, Laundry Room
Interior Features
Appliances: Electric Water Heater, Dishwasher, Disposal, Microwave, Range
Flooring: Carpet,Engineered Hardwood,Tile
Additional Interior Features: Ceiling Fan(s), Tray Ceiling(s), High Ceilings, Kitchen/Family Room Combo, Walk-In Closet(s), Main Level Primary, Open Floorplan
Utilities
Water: Public
Sewer: Public Sewer
Other Utilities: Electricity Connected,Fiber Optic Available,Propane,Municipal Utilities,Sewer Connected,Underground Utilities,Water Connected
Cooling: Central Air, Ceiling Fan(s)
Heating: Central
Exterior / Lot Features
Attached Garage: Attached Garage
Garage Spaces: 1
Roof: Shingle
Pool: Association, Community
Additional Exterior/Lot Features: Sprinkler/Irrigation, Rear Porch
Community Features
Community Features: Pool, Restaurant, Fitness
Association Amenities: Pool
HOA Dues Include: Pool(s), Maintenance Grounds
Homeowners Association: Yes
HOA Dues: $250 / Quarterly
Driving Directions
From intersection of Newberry Rd (SR 26) and SW 250th St (SR 27/41/45) turn south toward Oak View Middle School.Lessthan 1 mile south of the intersection just past Oak View Middle school on the east side of the road is SW 18th Rd, the main entrancetoCountryWay Town Square. Look for the water tower and signs at the entrance on SW 18TH RD. Turn into the subdivision and proceed about1/4mile on SW 18 RD to roundabout. Go through Roundabout on SW 18th RD to SW 244th Way turn left. Go 1 block to SW 18th Lane, turn right. House is halfway on left.
Financial Considerations
Terms: Cash,Conventional,FHA,VA Loan
Tax/Property ID: 02544-050-232
Tax Amount: 865.09
Tax Year: 2024
A broker reciprocity listing courtesy: NORFLEET HOMES REALTY, LLC
Based on information provided by Stellar MLS as distributed by the MLS GRID. Information from the Internet Data Exchange is provided exclusively for consumers’ personal, non-commercial use, and such information may not be used for any purpose other than to identify prospective properties consumers may be interested in purchasing. This data is deemed reliable but is not guaranteed to be accurate by Edina Realty, Inc., or by the MLS. Edina Realty, Inc., is not a multiple listing service (MLS), nor does it offer MLS access.
Copyright 2025 Stellar MLS as distributed by the MLS GRID. All Rights Reserved.
Payment Calculator
Interest rate and annual percentage rate (APR) are based on current market conditions, are for informational purposes only, are subject to change without notice and may be subject to pricing add-ons related to property type, loan amount, loan-to-value, credit score and other variables. Estimated closing costs used in the APR calculation are assumed to be paid by the borrower at closing. If the closing costs are financed, the loan, APR and payment amounts will be higher. If the down payment is less than 20%, mortgage insurance may be required and could increase the monthly payment and APR. Contact us for details. Additional loan programs may be available. Accuracy is not guaranteed, and all products may not be available in all borrower's geographical areas and are based on their individual situation. This is not a credit decision or a commitment to lend.
Sales History & Tax Summary for 24350 SW 18th Lane
Sales History
| Date | Price | Change |
|---|---|---|
| Currently not available. | ||
Tax Summary
| Tax Year | Estimated Market Value | Total Tax |
|---|---|---|
| Currently not available. | ||
Data powered by ATTOM Data Solutions. Copyright© 2025. Information deemed reliable but not guaranteed.
Schools
Schools nearby 24350 SW 18th Lane
| Schools in attendance boundaries | Grades | Distance | Rating |
|---|---|---|---|
| Loading... | |||
| Schools nearby | Grades | Distance | Rating |
|---|---|---|---|
| Loading... | |||
Data powered by ATTOM Data Solutions. Copyright© 2025. Information deemed reliable but not guaranteed.
The schools shown represent both the assigned schools and schools by distance based on local school and district attendance boundaries. Attendance boundaries change based on various factors and proximity does not guarantee enrollment eligibility. Please consult your real estate agent and/or the school district to confirm the schools this property is zoned to attend. Information is deemed reliable but not guaranteed.
SchoolDigger ® Rating
The SchoolDigger rating system is a 1-5 scale with 5 as the highest rating. SchoolDigger ranks schools based on test scores supplied by each state's Department of Education. They calculate an average standard score by normalizing and averaging each school's test scores across all tests and grades.
Coming soon properties will soon be on the market, but are not yet available for showings.