24362 Yacht Club Boulevard Punta Gorda, FL 33955
For Sale MLS# 2025016367
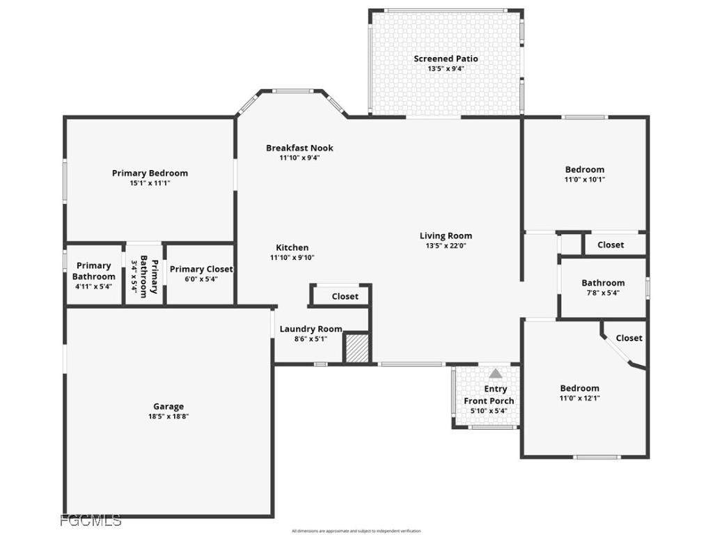
3 beds 2 baths 1,264 sq ft Single Family
Details for 24362 Yacht Club Boulevard
MLS# 2025016367
Description for 24362 Yacht Club Boulevard, Punta Gorda, FL, 33955
Discover the charm of Pirate Harbor, one of Punta Gorda’s most desirable coastal communities — where peaceful canals, abundant wildlife, and a laid-back lifestyle come together. This beautifully maintained 3-bedroom, 2-bath waterfront home offers the perfect balance of comfort and nature. Enjoy direct canal access to Charlotte Harbor, ideal for kayaks, canoes, and paddleboards, with exceptional backyard fishing right from your private dock. The outdoor space is a true retreat, featuring fresh shell landscaping and a unique artesian well system that provides natural water for the outdoor areas and plants — a rare and eco-friendly touch that enhances the lush, low-maintenance setting. It’s the perfect place to relax, grill, or watch the sunset over the water. Inside, the home features an inviting open-concept design with vaulted ceilings, rich tile and hardwood-style flooring, and a spacious kitchen with a breakfast bar, pantry, and generous dining area. The owner’s suite includes a walk-in closet and a beautifully remodeled bath with custom tile shower. Additional highlights include a newer metal roof 2023, impact windows and doors 2023, and an oversized two-car garage for extra storage or hobby space. For those seeking added privacy or room to expand, two adjacent lots next door are also available for purchase separately — offering the rare chance to create a private coastal retreat in one of Punta Gorda’s most peaceful neighborhoods. Residents of Pirate Harbor enjoy a voluntary HOA, golf-cart-friendly streets, and a true sense of community — all within minutes of downtown Punta Gorda, Burnt Store Marina, and local dining favorites. Experience the best of Southwest Florida waterfront living — where every day feels like a getaway.
Listing Information
Property Type: Residential, Single Family Residence
Status: Active
Bedrooms: 3
Bathrooms: 2
Lot Size: 0.23 Acres
Square Feet: 1,264 sq ft
Year Built: 1998
Garage: Yes
Stories: 1 Story
Construction: Block,Concrete,Stucco
Subdivision: Pirate Harbor
Furnished: Yes
County: Charlotte
Days On Market: 39
Construction Status: Resale
Room Information
Bathrooms
Full Baths: 2
Additonal Room Information
Laundry: Inside
Interior Features
Appliances: Dryer, Microwave, Freezer, Range, Refrigerator, Washer, Self Cleaning Oven
Flooring: Tile,Wood
Doors/Windows: Window Coverings, Impact Glass
Additional Interior Features: Walk-In Closet(s), Kitchen Island, Split Bedrooms, Living/Dining Room, Window Treatments, Breakfast Bar, Built-in Features, Cable TV, Vaulted Ceiling(s), Pantry, Separate Shower, Shower Only
Utilities
Water: Public
Sewer: Public Sewer
Other Utilities: Cable Available,High Speed Internet Available
Cooling: Electric, Ceiling Fan(s), Central Air
Heating: Central, Electric
Exterior / Lot Features
Attached Garage: Attached Garage
Garage Spaces: 2
Parking Description: Attached, Paved, Garage Door Opener, Garage, driveway
Roof: Metal
Lot View: Canal,Landscaped,Creek/Stream,Water
Lot Dimensions: 80 x 120 x 80 x 120
Additional Exterior/Lot Features: Room For Pool, Security/High Impact Doors, Patio, Storage, Screened, Glass Enclosed, Patio, Porch, Lanai, Rectangular Lot
Waterfront Details
Water Front Features: Mangrove, Canal Access, Creek
Community Features
Community Features: Non-Gated
Security Features: Smoke Detector(s), None
Financial Considerations
Terms: All Financing Considered,Cash,FHA,VA Loan
Tax/Property ID: 422319404002
Tax Amount: 3141.82
Tax Year: 2024
A broker reciprocity listing courtesy: RE/MAX Realty Team
Based on information provided by FGCMLS. Internet Data Exchange information is provided exclusively for consumers’ personal, non-commercial use, and such information may not be used for any purpose other than to identify prospective properties consumers may be interested in purchasing. This data is deemed reliable but is not guaranteed to be accurate by Edina Realty, Inc., or by the MLS. Edina Realty, Inc., is not a multiple listing service (MLS), nor does it offer MLS access.
Copyright 2025 FGCMLS. All Rights Reserved.
Payment Calculator
Interest rate and annual percentage rate (APR) are based on current market conditions, are for informational purposes only, are subject to change without notice and may be subject to pricing add-ons related to property type, loan amount, loan-to-value, credit score and other variables. Estimated closing costs used in the APR calculation are assumed to be paid by the borrower at closing. If the closing costs are financed, the loan, APR and payment amounts will be higher. If the down payment is less than 20%, mortgage insurance may be required and could increase the monthly payment and APR. Contact us for details. Additional loan programs may be available. Accuracy is not guaranteed, and all products may not be available in all borrower's geographical areas and are based on their individual situation. This is not a credit decision or a commitment to lend.
Sales History & Tax Summary for 24362 Yacht Club Boulevard
Sales History
| Date | Price | Change |
|---|---|---|
| Currently not available. | ||
Tax Summary
| Tax Year | Estimated Market Value | Total Tax |
|---|---|---|
| Currently not available. | ||
Data powered by ATTOM Data Solutions. Copyright© 2025. Information deemed reliable but not guaranteed.
Schools
Schools nearby 24362 Yacht Club Boulevard
| Schools in attendance boundaries | Grades | Distance | Rating |
|---|---|---|---|
| Loading... | |||
| Schools nearby | Grades | Distance | Rating |
|---|---|---|---|
| Loading... | |||
Data powered by ATTOM Data Solutions. Copyright© 2025. Information deemed reliable but not guaranteed.
The schools shown represent both the assigned schools and schools by distance based on local school and district attendance boundaries. Attendance boundaries change based on various factors and proximity does not guarantee enrollment eligibility. Please consult your real estate agent and/or the school district to confirm the schools this property is zoned to attend. Information is deemed reliable but not guaranteed.
SchoolDigger ® Rating
The SchoolDigger rating system is a 1-5 scale with 5 as the highest rating. SchoolDigger ranks schools based on test scores supplied by each state's Department of Education. They calculate an average standard score by normalizing and averaging each school's test scores across all tests and grades.
Coming soon properties will soon be on the market, but are not yet available for showings.