$769,000
24377 Treasure Island Boulevard Punta Gorda, FL 33955
For Sale MLS# C7518834
3 beds 3 baths 1,865 sq ft Single Family
Details for 24377 Treasure Island Boulevard
MLS# C7518834
Description for 24377 Treasure Island Boulevard, Punta Gorda, FL, 33955
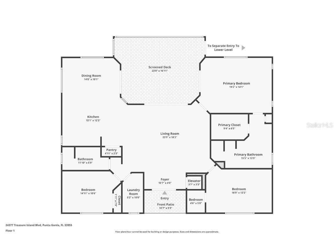
WATERFRONT, KEY WEST–STYLE HOME IN PIRATE HARBOR W/100 FT OF SEAWALL, DOCK & EXTREMELY QUICK SAIL ACCESS TO CHARLOTTE HARBOR - Pirate Harbor is all about getting on the water quickly, and this immaculate Key West–style stilt home delivers exactly that. With a deep, wide canal behind the home and Charlotte Harbor only minutes away, you can be underway for fishing, island hopping, or sunset cruising in no time. A 2021 metal roof, clean coastal lines, and thoughtful updates throughout give the home strong curb appeal & modern style. Inside, the home is bright, welcoming, and exceptionally well maintained. Architectural details include vaulted ceilings and luxury vinyl plank flooring that runs throughout the home. The great room opens directly to the screened balcony through a wall of disappearing sliding glass doors, allowing true, Florida-style, indoor/outdoor living - all with a clear view down the canal. The updated kitchen is a highlight — designed for anyone who enjoys cooking or entertaining — with quartz counters, modern appliances, white cabinetry, and a large peninsula that doubles as prep space and casual seating. Dining area has large windows and opens to the balcony further allowing for the indoor/outdoor style of living. The primary suite offers good separation from the guest rooms and includes an updated bath with dual vanities, generous storage, and a walk-in shower finished with tile detail and a built-in bench. Both guest bedrooms are well sized and served by an updated bath. Other amenities include a private elevator and interior laundry room. Outdoor living is a major highlight. The upper lanai is ideal for meals, reading, and afternoon breezes, while the screened lower level provides shaded space for projects or extra storage. The attached, tandem garage has plenty of room for a workshop and is plumbed with a half bath. Along the waterfront, the low-maintenance, Florida-friendly yard leads to the 50+ ft dock with canopied, 10,000 lb boat lift. Additional highlights include hurricane protection w/impact-windows & motorized StormSmart hurricane screens on the balcony, paver driveway & walkways, mature palms, and the freedom of no HOA restrictions. Other updates include NEW A/C system (2024), NEW R38 insulation (2023), NEW hydraulic system installed in elevator (2024), NEW boat lift motors, control box & cables (2024). Start enjoying some of SW Florida's best boating and fishing directly from your backyard. Schedule your appointment today and start planning your next boating adventure.
Listing Information
Property Type: Residential, Single Family Residence
Status: Active
Bedrooms: 3
Bathrooms: 3
Lot Size: 0.25 Acres
Square Feet: 1,865 sq ft
Year Built: 1996
Garage: Yes
Stories: 1 Story
Construction: Vinyl Siding,Wood Frame
Subdivision: Pirate Harbor
Foundation: Slab
County: Charlotte
School Information
Elementary: Sallie Jones Elementary
Middle: Punta Gorda Middle
High: Charlotte High
Room Information
Main Floor
Laundry: 8x9
Living Room: 17x22
Porch: 16x19
Bathroom 2: 5x9
Bedroom 3: 11x16
Bedroom 2: 10x12
Primary Bathroom: 15x13
Primary Bedroom: 18x14
Kitchen: 12x16
Dining Room: 15x10
Bathrooms
Full Baths: 2
1/2 Baths: 1
Additonal Room Information
Laundry: Inside, Laundry Room
Interior Features
Appliances: Convection Oven, Electric Water Heater, Dishwasher, Disposal, Dryer, Range, Refrigerator, Washer
Flooring: Concrete,Luxury Vinyl
Doors/Windows: Blinds, Window Treatments, Storm Window(s)
Additional Interior Features: Ceiling Fan(s), Walk-In Closet(s), Window Treatments, Cathedral Ceiling(s), High Ceilings, Stone Counters, Open Floorplan
Utilities
Water: Public
Sewer: Public Sewer
Other Utilities: Cable Available,Electricity Connected,High Speed Internet Available,Sewer Connected,Water Connected
Cooling: Ceiling Fan(s), Central Air
Heating: Electric, Central
Exterior / Lot Features
Attached Garage: Attached Garage
Garage Spaces: 2
Parking Description: Tandem, Garage, Garage Door Opener
Roof: Metal
Lot View: Canal,Water
Lot Dimensions: 100x110x100x110
Additional Exterior/Lot Features: Rain Gutters, Storm/Security Shutters, Sprinkler/Irrigation, French Patio Doors, Screened, Flood Zone, Outside City Limits
Waterfront Details
Water Front Features: Gulf Access, Canal Access, River Access
Community Features
Community Features: Street Lights
Security Features: Security System, Smoke Detector(s)
Driving Directions
From US41, go south on Burnt Store Rd. Right on Yacht Club Blvd. Left at fork onto Treasure Island. Home is on left.
Financial Considerations
Terms: Cash,Conventional,FHA,VA Loan
Tax/Property ID: 422319455008
Tax Amount: 7625
Tax Year: 2025
A broker reciprocity listing courtesy: RE/MAX HARBOR REALTY
Based on information provided by Stellar MLS as distributed by the MLS GRID. Information from the Internet Data Exchange is provided exclusively for consumers’ personal, non-commercial use, and such information may not be used for any purpose other than to identify prospective properties consumers may be interested in purchasing. This data is deemed reliable but is not guaranteed to be accurate by Edina Realty, Inc., or by the MLS. Edina Realty, Inc., is not a multiple listing service (MLS), nor does it offer MLS access.
Copyright 2026 Stellar MLS as distributed by the MLS GRID. All Rights Reserved.
Payment Calculator
Interest rate and annual percentage rate (APR) are based on current market conditions, are for informational purposes only, are subject to change without notice and may be subject to pricing add-ons related to property type, loan amount, loan-to-value, credit score and other variables. Estimated closing costs used in the APR calculation are assumed to be paid by the borrower at closing. If the closing costs are financed, the loan, APR and payment amounts will be higher. If the down payment is less than 20%, mortgage insurance may be required and could increase the monthly payment and APR. Contact us for details. Additional loan programs may be available. Accuracy is not guaranteed, and all products may not be available in all borrower's geographical areas and are based on their individual situation. This is not a credit decision or a commitment to lend.
Sales History & Tax Summary for 24377 Treasure Island Boulevard
Sales History
| Date | Price | Change |
|---|---|---|
| Currently not available. | ||
Tax Summary
| Tax Year | Estimated Market Value | Total Tax |
|---|---|---|
| Currently not available. | ||
Data powered by ATTOM Data Solutions. Copyright© 2026. Information deemed reliable but not guaranteed.
Schools
Schools nearby 24377 Treasure Island Boulevard
| Schools in attendance boundaries | Grades | Distance | Rating |
|---|---|---|---|
| Loading... | |||
| Schools nearby | Grades | Distance | Rating |
|---|---|---|---|
| Loading... | |||
Data powered by ATTOM Data Solutions. Copyright© 2026. Information deemed reliable but not guaranteed.
The schools shown represent both the assigned schools and schools by distance based on local school and district attendance boundaries. Attendance boundaries change based on various factors and proximity does not guarantee enrollment eligibility. Please consult your real estate agent and/or the school district to confirm the schools this property is zoned to attend. Information is deemed reliable but not guaranteed.
SchoolDigger ® Rating
The SchoolDigger rating system is a 1-5 scale with 5 as the highest rating. SchoolDigger ranks schools based on test scores supplied by each state's Department of Education. They calculate an average standard score by normalizing and averaging each school's test scores across all tests and grades.
Coming soon properties will soon be on the market, but are not yet available for showings.