$340,999
Off-Market Date: 10/19/20252439 29th Lane E Palmetto, FL 34221
Pending MLS# S5132414
3 beds 3 baths 1,478 sq ft Single Family
Details for 2439 29th Lane E
MLS# S5132414
Description for 2439 29th Lane E, Palmetto, FL, 34221
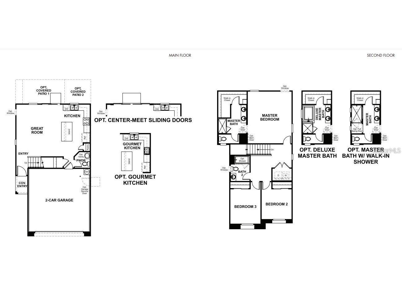
Under Construction. Discover the Alder at Maple Ridge — a thoughtfully designed 3-bedroom, 2.5-bath home with 1,478 sq. ft. of stylish and functional living space. The open-concept main floor features a modern kitchen with a center island, generous cabinet space, and direct views into the dining and great room; perfect for entertaining or family gatherings. Sliding glass doors lead to a covered patio, ideal for enjoying Florida’s sunny weather. Boasting 9’4” ceilings and grand 8’ doors on the first floor, the Alder Floorplan offers an open and airy atmosphere.Upstairs, the spacious primary suite offers a private bath and walk-in closet, while two secondary bedrooms share easy access to a full hall bath. A centrally located laundry room adds convenience. Located in the sought-after Maple Ridge community in Palmetto, you’ll enjoy easy access to shopping, dining, parks, and Gulf Coast beaches. Built with energy-efficient construction and smart home features, this home blends comfort, style, and value. * SAMPLE PHOTOS Actual homes as constructed may not contain the features and layouts depicted and may vary from image(s).
Listing Information
Property Type: Residential, Single Family Residence
Status: Pending
Bedrooms: 3
Bathrooms: 3
Lot Size: 0.15 Acres
Square Feet: 1,478 sq ft
Year Built: 2025
Garage: Yes
Stories: 2 Story
Construction: Stucco
Construction Display: New Construction
Subdivision: Maple Ridge
Builder: Richmond American Homes
Foundation: Block,Other,Slab
County: Manatee
Construction Status: Under Construction
Room Information
Main Floor
Kitchen: 17.6x12.1
Great Room: 17.6x11.6
Upper Floor
Bathroom 2:
Bedroom 3: 11x10
Bedroom 2: 10x10
Primary Bathroom: 11x11
Primary Bedroom: 17.3x14.7
Bathrooms
Full Baths: 2
1/2 Baths: 1
Additonal Room Information
Laundry: Laundry Closet
Interior Features
Appliances: Dishwasher, Disposal, Microwave, Range, Electric Water Heater
Flooring: Carpet,Ceramic Tile
Additional Interior Features: High Ceilings, Living/Dining Room, Eat-In Kitchen, Other, Open Floorplan, Solid Surface Counters, Walk-In Closet(s)
Utilities
Water: Public
Sewer: Public Sewer
Other Utilities: Cable Available,Electricity Available,High Speed Internet Available,Municipal Utilities,Sewer Available,Water Available
Cooling: Central Air
Heating: Electric, Central
Exterior / Lot Features
Attached Garage: Attached Garage
Garage Spaces: 2
Parking Description: Garage, Garage Door Opener
Roof: Shingle
Additional Exterior/Lot Features: Sprinkler/Irrigation, Patio, Covered
Community Features
Security Features: Smoke Detector(s)
Homeowners Association: Yes
HOA Dues: $998 / Annually
Driving Directions
Follow FL-417 Toll S, I-4 W and I-75 S to US-301 S in Ellenton. Take exit 224 from I-75 S, merge onto US-301 S. Continue on US- 301 S until you reach the light at 36th Ave (Ellenton Gillette Rd), turn right. Continue till 29th St E, turn left. Follow 29th ST till you find Maple Ridge on the right.
Financial Considerations
Terms: Cash,Conventional,FHA,VA Loan
Tax/Property ID: 773400007
Tax Year: 2025
A broker reciprocity listing courtesy: AXEN REALTY, LLC
Based on information provided by Stellar MLS as distributed by the MLS GRID. Information from the Internet Data Exchange is provided exclusively for consumers’ personal, non-commercial use, and such information may not be used for any purpose other than to identify prospective properties consumers may be interested in purchasing. This data is deemed reliable but is not guaranteed to be accurate by Edina Realty, Inc., or by the MLS. Edina Realty, Inc., is not a multiple listing service (MLS), nor does it offer MLS access.
Copyright 2026 Stellar MLS as distributed by the MLS GRID. All Rights Reserved.
Sales History & Tax Summary for 2439 29th Lane E
Sales History
| Date | Price | |
|---|---|---|
| Currently not available. | ||
Tax Summary
| Tax Year | Estimated Market Value | Total Tax |
|---|---|---|
| Currently not available. | ||
Data powered by ATTOM Data Solutions. Copyright© 2026. Information deemed reliable but not guaranteed.
Schools
Schools nearby 2439 29th Lane E
| Schools in attendance boundaries | Grades | Distance | Rating |
|---|---|---|---|
| Loading... | |||
| Schools nearby | Grades | Distance | Rating |
|---|---|---|---|
| Loading... | |||
Data powered by ATTOM Data Solutions. Copyright© 2026. Information deemed reliable but not guaranteed.
The schools shown represent both the assigned schools and schools by distance based on local school and district attendance boundaries. Attendance boundaries change based on various factors and proximity does not guarantee enrollment eligibility. Please consult your real estate agent and/or the school district to confirm the schools this property is zoned to attend. Information is deemed reliable but not guaranteed.
SchoolDigger ® Rating
The SchoolDigger rating system is a 1-5 scale with 5 as the highest rating. SchoolDigger ranks schools based on test scores supplied by each state's Department of Education. They calculate an average standard score by normalizing and averaging each school's test scores across all tests and grades.
Coming soon properties will soon be on the market, but are not yet available for showings.