2440 Bracknell Forest Trail Tavares, FL 32778
For Sale MLS# G5102744
3 beds 2 baths 1,629 sq ft Single Family
Details for 2440 Bracknell Forest Trail
MLS# G5102744
Description for 2440 Bracknell Forest Trail, Tavares, FL, 32778
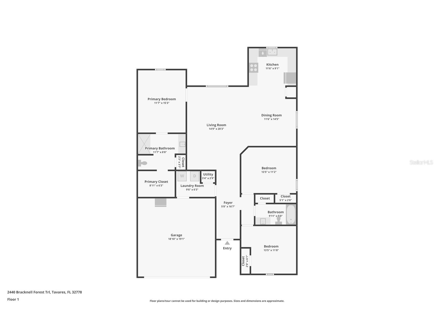
Welcome to 2440 Bracknell Forest Trail — a lovingly maintained 3-bedroom, 2-bath traditional home offering 1,629 square feet of comfortable living in a desirable Lake County location. Nestled on a 0.14-acre lot with a fully fenced backyard, this home offers privacy, functionality, and proximity to some of Central Florida’s most charming communities. Step inside to find an open-concept floor plan designed for both everyday living and entertaining. The spacious living room flows seamlessly into the dining area and kitchen, featuring warm wood cabinetry, modern appliances, and expansive counter space — perfect for preparing meals and gathering with loved ones. The newer flooring adds a clean, modern touch to the heart of the home. All three bedrooms are well-sized, including a private primary suite with a full bath. Enjoy peace of mind with a recently updated A/C system (just 1 year old) and a layout that maximizes comfort and convenience. Step outside to your covered patio and fenced backyard — ideal for outdoor grilling, letting pets roam freely, or creating a garden oasis. Location is everything, and this property delivers. You're just minutes from Downtown Tavares, known as America’s Seaplane City, where waterfront dining, boating, and aviation charm abound. Just a short drive away, Downtown Mount Dora offers year-round festivals, boutique shopping, and exceptional restaurants. Whether you're a first-time buyer, downsizing, or relocating to enjoy the Florida lifestyle, this home checks all the boxes. Don’t miss this move-in-ready gem — schedule your private showing today!
Listing Information
Property Type: Residential, Single Family Residence
Status: Active
Bedrooms: 3
Bathrooms: 2
Lot Size: 0.14 Acres
Square Feet: 1,629 sq ft
Year Built: 2017
Garage: Yes
Stories: 1 Story
Construction: Block
Construction Display: New Construction
Subdivision: Tavares Chelsea Oaks South
Foundation: Slab
County: Lake
Construction Status: New Construction
Room Information
Main Floor
Bedroom 3: 11.8x13.5
Bedroom 2: 11.2x13.5
Primary Bedroom: 15.3x11.7
Living Room: 20.3x14.9
Dining Room: 14.5x11.6
Kitchen: 9.1x11.6
Bathrooms
Full Baths: 2
Additonal Room Information
Laundry: Inside, Laundry Room
Interior Features
Appliances: Microwave, Range, Refrigerator, Dishwasher
Flooring: Carpet,Luxury Vinyl
Additional Interior Features: Ceiling Fan(s), Split Bedrooms, Walk-In Closet(s), Open Floorplan, Living/Dining Room, Main Level Primary, Kitchen/Family Room Combo
Utilities
Water: Public
Sewer: Public Sewer
Other Utilities: Cable Connected,Electricity Connected
Cooling: Central Air, Ceiling Fan(s)
Heating: Central
Exterior / Lot Features
Attached Garage: Attached Garage
Garage Spaces: 2
Parking Description: Garage Door Opener, Garage, driveway
Roof: Shingle
Fencing: Vinyl, Chain Link, fenced
Community Features
Community Features: Sidewalks
Homeowners Association: Yes
HOA Dues: $475 / Annually
Driving Directions
From Old US Hwy 441 - turn left onto Merry Rd, then right onto Bracknell Forest Trail, destination will be on the left
Financial Considerations
Terms: Cash,Conventional,FHA,VA Loan
Tax/Property ID: 27-19-26-0080-000-09600
Tax Amount: 2804
Tax Year: 2024
A broker reciprocity listing courtesy: COLDWELL BANKER VANGUARD EDGE
Based on information provided by Stellar MLS as distributed by the MLS GRID. Information from the Internet Data Exchange is provided exclusively for consumers’ personal, non-commercial use, and such information may not be used for any purpose other than to identify prospective properties consumers may be interested in purchasing. This data is deemed reliable but is not guaranteed to be accurate by Edina Realty, Inc., or by the MLS. Edina Realty, Inc., is not a multiple listing service (MLS), nor does it offer MLS access.
Copyright 2026 Stellar MLS as distributed by the MLS GRID. All Rights Reserved.
Payment Calculator
Interest rate and annual percentage rate (APR) are based on current market conditions, are for informational purposes only, are subject to change without notice and may be subject to pricing add-ons related to property type, loan amount, loan-to-value, credit score and other variables. Estimated closing costs used in the APR calculation are assumed to be paid by the borrower at closing. If the closing costs are financed, the loan, APR and payment amounts will be higher. If the down payment is less than 20%, mortgage insurance may be required and could increase the monthly payment and APR. Contact us for details. Additional loan programs may be available. Accuracy is not guaranteed, and all products may not be available in all borrower's geographical areas and are based on their individual situation. This is not a credit decision or a commitment to lend.
Sales History & Tax Summary for 2440 Bracknell Forest Trail
Sales History
| Date | Price | |
|---|---|---|
| Currently not available. | ||
Tax Summary
| Tax Year | Estimated Market Value | Total Tax |
|---|---|---|
| Currently not available. | ||
Data powered by ATTOM Data Solutions. Copyright© 2026. Information deemed reliable but not guaranteed.
Schools
Schools nearby 2440 Bracknell Forest Trail
| Schools in attendance boundaries | Grades | Distance | Rating |
|---|---|---|---|
| Loading... | |||
| Schools nearby | Grades | Distance | Rating |
|---|---|---|---|
| Loading... | |||
Data powered by ATTOM Data Solutions. Copyright© 2026. Information deemed reliable but not guaranteed.
The schools shown represent both the assigned schools and schools by distance based on local school and district attendance boundaries. Attendance boundaries change based on various factors and proximity does not guarantee enrollment eligibility. Please consult your real estate agent and/or the school district to confirm the schools this property is zoned to attend. Information is deemed reliable but not guaranteed.
SchoolDigger ® Rating
The SchoolDigger rating system is a 1-5 scale with 5 as the highest rating. SchoolDigger ranks schools based on test scores supplied by each state's Department of Education. They calculate an average standard score by normalizing and averaging each school's test scores across all tests and grades.
Coming soon properties will soon be on the market, but are not yet available for showings.