24430 NW 10th Road Newberry, FL 32669
Pending MLS# OM712919
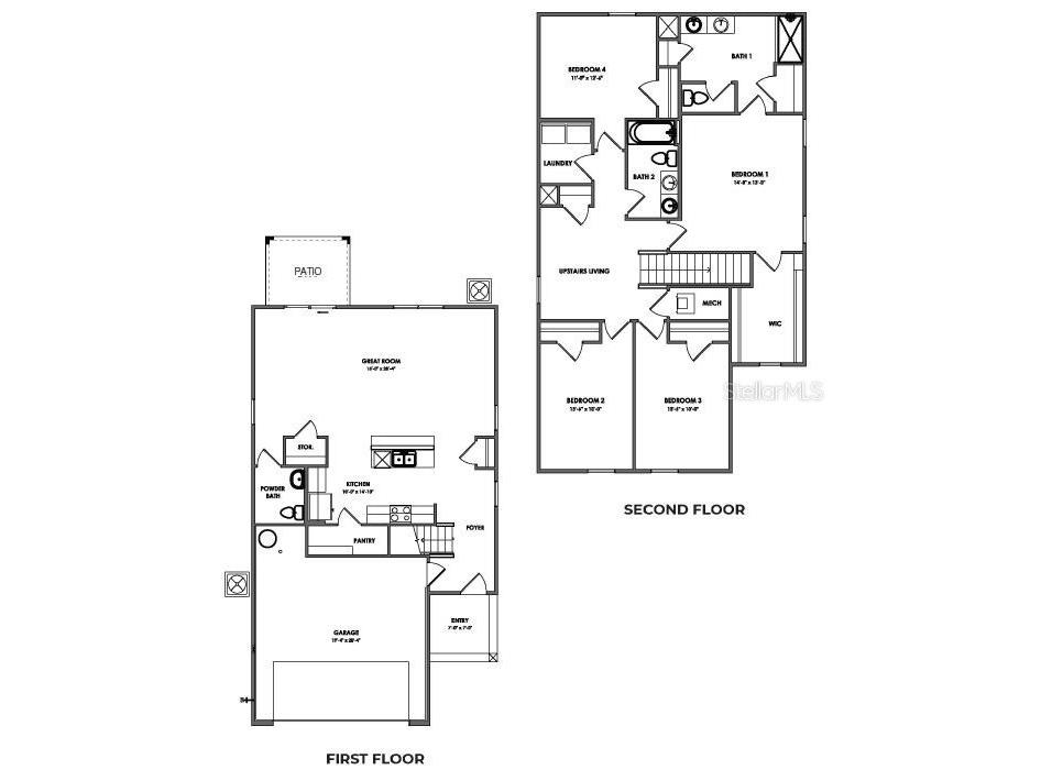
4 beds 3 baths 2,176 sq ft Single Family
Details for 24430 NW 10th Road
MLS# OM712919
Description for 24430 NW 10th Road, Newberry, FL, 32669
One or more photo(s) has been virtually staged. Under Construction. Experience the best of two-story living in this thoughtfully designed 4-bedrrom, 2.5 bathroom home. The main floor seamlessly blends the living, dining and kitchen areas, creating an open and inviting space. Upstairs, discover four well-appointed bedrooms, including the primary bedroom with ensuite bathroom and walk in closets. Balancing functionality with modern aesthetics, this home is the perfect canvas for daily living and entertaining. The kitchen is appointed with a stainless-steel range, microwave and built-in dishwasher. The laundry room is equipped with a washer and dryer hook up. The Elston is equipped with a state-of-the-art smart home system. Pictures, photographs, colors, features, and sizes are for illustration purposes only and will vary from the homes as built. Home and community information including pricing, included features, terms, availability and amenities are subject to change and prior sale at any time without notice or obligation. CRC057592.
Listing Information
Property Type: Residential, Single Family Residence
Status: Pending
Bedrooms: 4
Bathrooms: 3
Lot Size: 0.10 Acres
Square Feet: 2,176 sq ft
Year Built: 2025
Garage: Yes
Stories: 2 Story
Construction: Wood Frame
Construction Display: New Construction
Subdivision: Avalon Woods
Builder: D.R. Horton INC
Foundation: Slab
County: Alachua
Construction Status: Under Construction
School Information
Elementary: Newberry Elementary School-Al
Middle: Oak View Middle School
High: Newberry High School-Al
Room Information
Main Floor
Kitchen: 10x15
Great Room: 15x28
Upper Floor
Loft: 12x9
Primary Bedroom: 14x13
Bathrooms
Full Baths: 2
1/2 Baths: 1
Additonal Room Information
Laundry: Laundry Room
Interior Features
Appliances: Microwave, Range, Dishwasher
Flooring: Carpet,Luxury Vinyl
Additional Interior Features: Open Floorplan
Utilities
Water: Public
Sewer: Public Sewer
Other Utilities: Other
Cooling: Central Air
Heating: Electric, Central
Exterior / Lot Features
Attached Garage: Attached Garage
Garage Spaces: 2
Roof: Shingle
Additional Exterior/Lot Features: Sprinkler/Irrigation
Community Features
Homeowners Association: Yes
HOA Dues: $400 / Annually
Driving Directions
I-75 North, exit 387 for FL-26 W/Newberry Rd toward Newberry, Turn left onto FL-26 W/W Newberry Rd, continue for 4 miles, Turn Right onto Newberry Ln, Turn Right onto US 27/US 41/SR 45, Turn right into community. Avalon Woods community is located 1/2 mile North of the Newberry Recreation-Archery Center.
Financial Considerations
Tax/Property ID: 01874-401-528
Tax Year: 2024
A broker reciprocity listing courtesy: DR HORTON REALTY OF WEST CENTRAL FLORIDA
Based on information provided by Stellar MLS as distributed by the MLS GRID. Information from the Internet Data Exchange is provided exclusively for consumers’ personal, non-commercial use, and such information may not be used for any purpose other than to identify prospective properties consumers may be interested in purchasing. This data is deemed reliable but is not guaranteed to be accurate by Edina Realty, Inc., or by the MLS. Edina Realty, Inc., is not a multiple listing service (MLS), nor does it offer MLS access.
Copyright 2026 Stellar MLS as distributed by the MLS GRID. All Rights Reserved.
Sales History & Tax Summary for 24430 NW 10th Road
Sales History
| Date | Price | |
|---|---|---|
| Currently not available. | ||
Tax Summary
| Tax Year | Estimated Market Value | Total Tax |
|---|---|---|
| Currently not available. | ||
Data powered by ATTOM Data Solutions. Copyright© 2026. Information deemed reliable but not guaranteed.
Schools
Schools nearby 24430 NW 10th Road
| Schools in attendance boundaries | Grades | Distance | Rating |
|---|---|---|---|
| Loading... | |||
| Schools nearby | Grades | Distance | Rating |
|---|---|---|---|
| Loading... | |||
Data powered by ATTOM Data Solutions. Copyright© 2026. Information deemed reliable but not guaranteed.
The schools shown represent both the assigned schools and schools by distance based on local school and district attendance boundaries. Attendance boundaries change based on various factors and proximity does not guarantee enrollment eligibility. Please consult your real estate agent and/or the school district to confirm the schools this property is zoned to attend. Information is deemed reliable but not guaranteed.
SchoolDigger ® Rating
The SchoolDigger rating system is a 1-5 scale with 5 as the highest rating. SchoolDigger ranks schools based on test scores supplied by each state's Department of Education. They calculate an average standard score by normalizing and averaging each school's test scores across all tests and grades.
Coming soon properties will soon be on the market, but are not yet available for showings.