$250,000
245 Cambria Avenue Davenport, FL 33897
For Sale MLS# O6346872
4 beds 3 baths 1,492 sq ft Townhouse/Twinhome
Details for 245 Cambria Avenue
MLS# O6346872
Description for 245 Cambria Avenue, Davenport, FL, 33897
Welcome to this spacious townhome located in the desirable Regal Palms Resort community! This property offers a thoughtful floor plan with a full bedroom and bathroom conveniently located on the first floor, perfect for guests or multi-generational living. Upstairs, you’ll find additional bedrooms and comfortable living spaces designed for both relaxation and entertaining. Regal Palms is a guard-gated, resort-style community with amenities including a lazy river, water slide, fitness center, spa, restaurant, and more. Ideal for short-term rental, a vacation retreat, or full-time living! Located just minutes from Disney World, Universal Studios, Champions Gate golf courses, shopping, dining, and Posner Park Mall, this home places you in the heart of Central Florida’s best attractions. With easy access to I-4, you can quickly reach Orlando, Tampa, and both coasts. Don’t miss the opportunity to own a home with resort living and world-class entertainment right at your doorstep!
Listing Information
Property Type: Residential, Townhouse
Status: Active
Bedrooms: 4
Bathrooms: 3
Lot Size: 0.04 Acres
Square Feet: 1,492 sq ft
Year Built: 2004
Stories: 2 Story
Construction: Block,Stucco
Subdivision: Regal Palms At Highland Reserve
Foundation: Slab
County: Polk
School Information
Elementary: Citrus Ridge
Middle: Daniel Jenkins Academy Of Technology Middle
High: Davenport High School
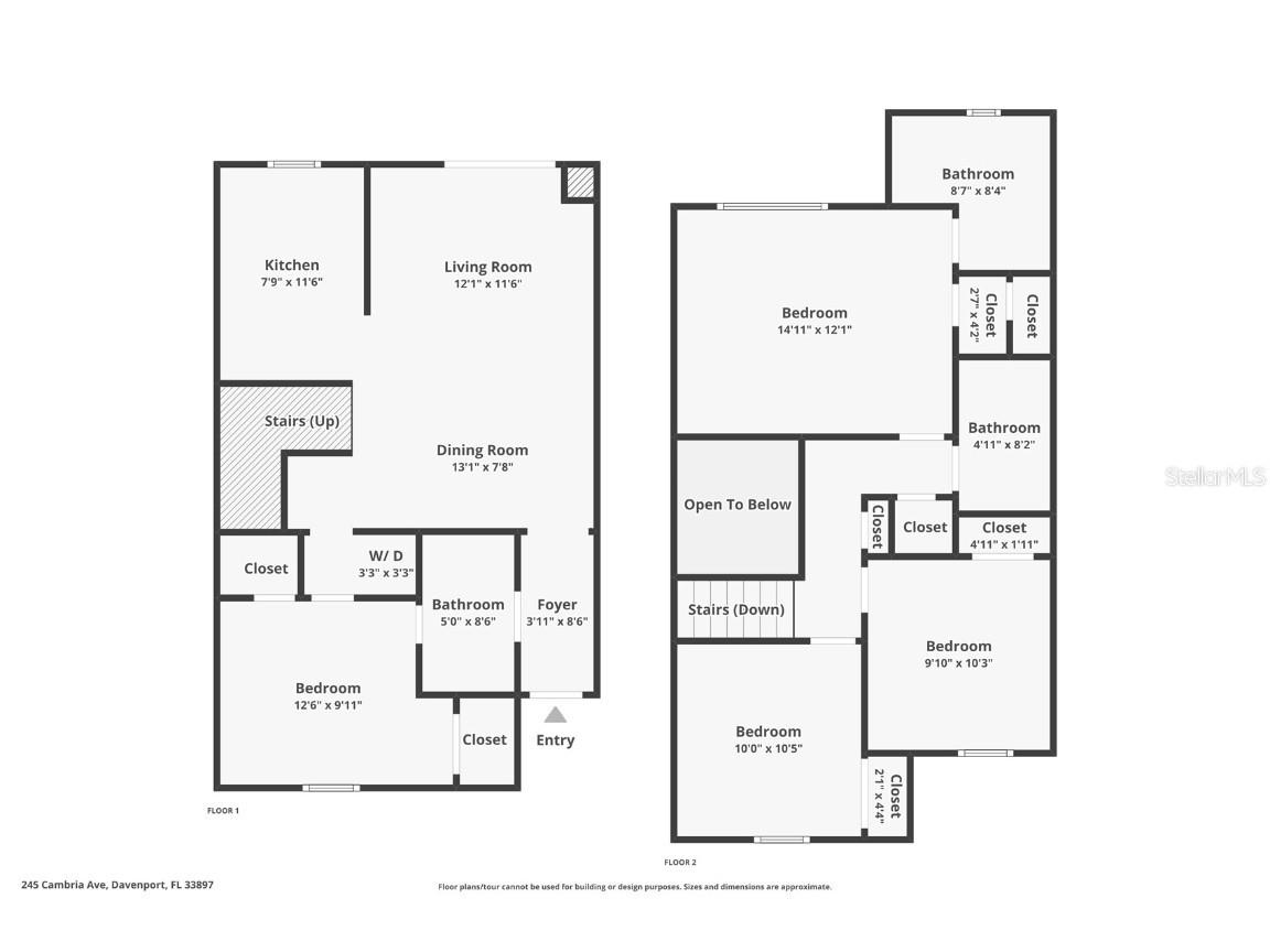
Room Information
Main Floor
Bathroom 1: 8.6x5
Kitchen: 11.6x7.75
Dining Room: 7.8x13
Living Room: 11.6x12
Primary Bedroom: 10x12
Upper Floor
Bedroom 2: 12x14
Bathroom 2: 4x5
Bedroom 4: 11x10
Bathroom 3: 4x6
Bedroom 3: 11x10
Bathrooms
Full Baths: 3
Additonal Room Information
Laundry: Laundry Room
Interior Features
Appliances: Electric Water Heater, Range, Refrigerator, Washer, Dishwasher, Disposal, Dryer, Microwave
Flooring: Ceramic Tile
Doors/Windows: Blinds
Additional Interior Features: Ceiling Fan(s), Living/Dining Room, Main Level Primary
Utilities
Water: Public
Sewer: Public Sewer
Other Utilities: Cable Available,Electricity Connected,High Speed Internet Available,Water Connected
Cooling: Central Air, Ceiling Fan(s)
Heating: Central
Exterior / Lot Features
Roof: Shingle
Pool: Community
Additional Exterior/Lot Features: Other
Community Features
Community Features: Pool, Playground, Street Lights, Gated, Fitness, Clubhouse, Restaurant
Security Features: Gated Community, Gated with Guard
HOA Dues Include: Maintenance Grounds, Pest Control, Maintenance Structure, Pool(s), Security, Sewer, Cable TV, Internet, Water, Trash, Recreation Facilities
Homeowners Association: Yes
HOA Dues: $670 / Monthly
Driving Directions
From I-4, take Exit 55 for US-27 North, then turn left onto Sand Mine Road. Follow to Miramar Avenue, turn left into Regal Palms at Highland Reserve, then right onto Cambria Avenue; the property will be on the left.
Financial Considerations
Tax/Property ID: 26-25-14-999962-001230
Tax Amount: 3425
Tax Year: 2024
A broker reciprocity listing courtesy: REAL BROKER, LLC
Based on information provided by Stellar MLS as distributed by the MLS GRID. Information from the Internet Data Exchange is provided exclusively for consumers’ personal, non-commercial use, and such information may not be used for any purpose other than to identify prospective properties consumers may be interested in purchasing. This data is deemed reliable but is not guaranteed to be accurate by Edina Realty, Inc., or by the MLS. Edina Realty, Inc., is not a multiple listing service (MLS), nor does it offer MLS access.
Copyright 2026 Stellar MLS as distributed by the MLS GRID. All Rights Reserved.
Payment Calculator
Interest rate and annual percentage rate (APR) are based on current market conditions, are for informational purposes only, are subject to change without notice and may be subject to pricing add-ons related to property type, loan amount, loan-to-value, credit score and other variables. Estimated closing costs used in the APR calculation are assumed to be paid by the borrower at closing. If the closing costs are financed, the loan, APR and payment amounts will be higher. If the down payment is less than 20%, mortgage insurance may be required and could increase the monthly payment and APR. Contact us for details. Additional loan programs may be available. Accuracy is not guaranteed, and all products may not be available in all borrower's geographical areas and are based on their individual situation. This is not a credit decision or a commitment to lend.
Sales History & Tax Summary for 245 Cambria Avenue
Sales History
| Date | Price | |
|---|---|---|
| Currently not available. | ||
Tax Summary
| Tax Year | Estimated Market Value | Total Tax |
|---|---|---|
| Currently not available. | ||
Data powered by ATTOM Data Solutions. Copyright© 2026. Information deemed reliable but not guaranteed.
Schools
Schools nearby 245 Cambria Avenue
| Schools in attendance boundaries | Grades | Distance | Rating |
|---|---|---|---|
| Loading... | |||
| Schools nearby | Grades | Distance | Rating |
|---|---|---|---|
| Loading... | |||
Data powered by ATTOM Data Solutions. Copyright© 2026. Information deemed reliable but not guaranteed.
The schools shown represent both the assigned schools and schools by distance based on local school and district attendance boundaries. Attendance boundaries change based on various factors and proximity does not guarantee enrollment eligibility. Please consult your real estate agent and/or the school district to confirm the schools this property is zoned to attend. Information is deemed reliable but not guaranteed.
SchoolDigger ® Rating
The SchoolDigger rating system is a 1-5 scale with 5 as the highest rating. SchoolDigger ranks schools based on test scores supplied by each state's Department of Education. They calculate an average standard score by normalizing and averaging each school's test scores across all tests and grades.
Coming soon properties will soon be on the market, but are not yet available for showings.