2451 SW Brandy Drive Arcadia, FL 34266
For Sale MLS# C7513201
3 beds 2 baths 1,620 sq ft Single Family
Details for 2451 SW Brandy Drive
MLS# C7513201
Description for 2451 SW Brandy Drive, Arcadia, FL, 34266
THIS HOME IS VA ELIGIBLE! Spacious 3-bedroom, 2-bathroom home offering 1,620 sq ft of living space on a .29-acre lot in Arcadia. Enjoy the freedom of NO HOA and NO lot rent, with plenty of room for parking, work vehicles, pets, or outdoor entertaining. This home features a split-bedroom floor plan, large living area, roomy kitchen with ample cabinet space, and a private primary suite with ensuite bath. The open yard offers endless potential for gardening, storage, or simply enjoying your space. One of the best values for a 3/2 on land in Arcadia. Don't miss this opportunity!
Listing Information
Property Type: Residential, Manufactured Home
Status: Active
Bedrooms: 3
Bathrooms: 2
Lot Size: 0.29 Acres
Square Feet: 1,620 sq ft
Year Built: 1998
Stories: 1 Story
Construction: Vinyl Siding
Subdivision: Floracadia
Foundation: Crawlspace
County: Desoto
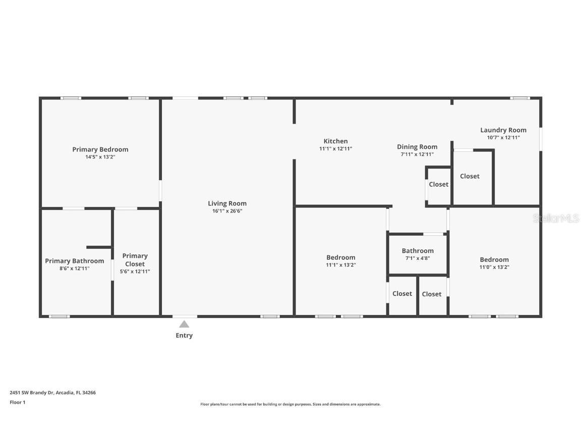
Room Information
Main Floor
Bedroom 3: 13x11
Bedroom 2: 13x11
Primary Bedroom: 13x14
Living Room: 26x16
Dining Room: 12x7
Kitchen: 12x11
Bathrooms
Full Baths: 2
Additonal Room Information
Laundry: Inside, Laundry Room
Interior Features
Appliances: Dryer, Range, Refrigerator, Washer
Flooring: Luxury Vinyl
Basement: Crawl Space
Doors/Windows: Window Treatments
Additional Interior Features: Ceiling Fan(s), Split Bedrooms, Walk-In Closet(s), Window Treatments
Utilities
Water: Well
Sewer: Septic Tank
Other Utilities: Electricity Connected
Cooling: Ceiling Fan(s), Wall/Window Unit(s)
Exterior / Lot Features
Roof: Metal
Lot View: Trees/Woods
Additional Exterior/Lot Features: Other, Deck
Driving Directions
Take HWY 17 S, Turn Left onto Beard S, Turn Right onto Shores Ave, Turn Left onto Hand Dr., Turn Right onto Pensacola Ave, Turn Left onto Salerno Dr., Turn Right onto Miami Dr., Property will be on Left
Financial Considerations
Terms: Cash,Conventional
Tax/Property ID: 35-38-24-0116-0530-0230
Tax Amount: 2289.29
Tax Year: 2025
A broker reciprocity listing courtesy: THE WILLIAMSON GROUP REALTY, I
Based on information provided by Stellar MLS as distributed by the MLS GRID. Information from the Internet Data Exchange is provided exclusively for consumers’ personal, non-commercial use, and such information may not be used for any purpose other than to identify prospective properties consumers may be interested in purchasing. This data is deemed reliable but is not guaranteed to be accurate by Edina Realty, Inc., or by the MLS. Edina Realty, Inc., is not a multiple listing service (MLS), nor does it offer MLS access.
Copyright 2026 Stellar MLS as distributed by the MLS GRID. All Rights Reserved.
Payment Calculator
Interest rate and annual percentage rate (APR) are based on current market conditions, are for informational purposes only, are subject to change without notice and may be subject to pricing add-ons related to property type, loan amount, loan-to-value, credit score and other variables. Estimated closing costs used in the APR calculation are assumed to be paid by the borrower at closing. If the closing costs are financed, the loan, APR and payment amounts will be higher. If the down payment is less than 20%, mortgage insurance may be required and could increase the monthly payment and APR. Contact us for details. Additional loan programs may be available. Accuracy is not guaranteed, and all products may not be available in all borrower's geographical areas and are based on their individual situation. This is not a credit decision or a commitment to lend.
Sales History & Tax Summary for 2451 SW Brandy Drive
Sales History
| Date | Price | |
|---|---|---|
| Currently not available. | ||
Tax Summary
| Tax Year | Estimated Market Value | Total Tax |
|---|---|---|
| Currently not available. | ||
Data powered by ATTOM Data Solutions. Copyright© 2026. Information deemed reliable but not guaranteed.
Schools
Schools nearby 2451 SW Brandy Drive
| Schools in attendance boundaries | Grades | Distance | Rating |
|---|---|---|---|
| Loading... | |||
| Schools nearby | Grades | Distance | Rating |
|---|---|---|---|
| Loading... | |||
Data powered by ATTOM Data Solutions. Copyright© 2026. Information deemed reliable but not guaranteed.
The schools shown represent both the assigned schools and schools by distance based on local school and district attendance boundaries. Attendance boundaries change based on various factors and proximity does not guarantee enrollment eligibility. Please consult your real estate agent and/or the school district to confirm the schools this property is zoned to attend. Information is deemed reliable but not guaranteed.
SchoolDigger ® Rating
The SchoolDigger rating system is a 1-5 scale with 5 as the highest rating. SchoolDigger ranks schools based on test scores supplied by each state's Department of Education. They calculate an average standard score by normalizing and averaging each school's test scores across all tests and grades.
Coming soon properties will soon be on the market, but are not yet available for showings.