2461 Nantucket Harbor Loop Sun City Center, FL 33573
For Sale MLS# TB8405687
2 beds 2 baths 1,205 sq ft Condo
Details for 2461 Nantucket Harbor Loop
MLS# TB8405687
Description for 2461 Nantucket Harbor Loop, Sun City Center, FL, 33573
MOTIVATED SELLERS!!! Nestled in the highly desirable Kings Point community, this beautifully maintained 2 bedroom, 2 bathroom gem is fully furnished and move-in ready—perfect for those seeking comfort and convenience. Step inside to find luxury vinyl plank flooring throughout the main living areas, offering both durability and modern style. The kitchen is a standout feature, complete with granite countertops and plenty of cabinet space, making meal prep a breeze. This charming home also includes a spacious 1.5 car garage, ideal for additional storage, golf cart parking and keeping your vehicle protected from the Florida sun. Whether you're looking for a seasonal getaway or a full-time residence, this home checks all the boxes. You’ll love the gated community of Kings Point, which has amazing facilities, pools, clubs and events just waiting for you to enjoy. Located between Sarasota and Tampa, this home is perfectly positioned for a convenient ride to airports, great shopping, dining, and professional entertainment. With easy access to award-winning, sandy beaches, you’ll experience the best of all worlds—without the stress of big city life. Leave the hustle behind and embrace a new chapter in Sun City Center, Florida, the state's top-ranked and most affordable 55+ retirement community. Don’t miss your chance to own a piece of paradise in Sun City Center!
Listing Information
Property Type: Residential, Condominium
Status: Active
Bedrooms: 2
Bathrooms: 2
Lot Size: 0.05 Acres
Square Feet: 1,205 sq ft
Year Built: 1994
Garage: Yes
Stories: 1 Story
Construction: Block,Stucco
Subdivision: Nantucket I Condo Ph
Foundation: Slab
County: Hillsborough
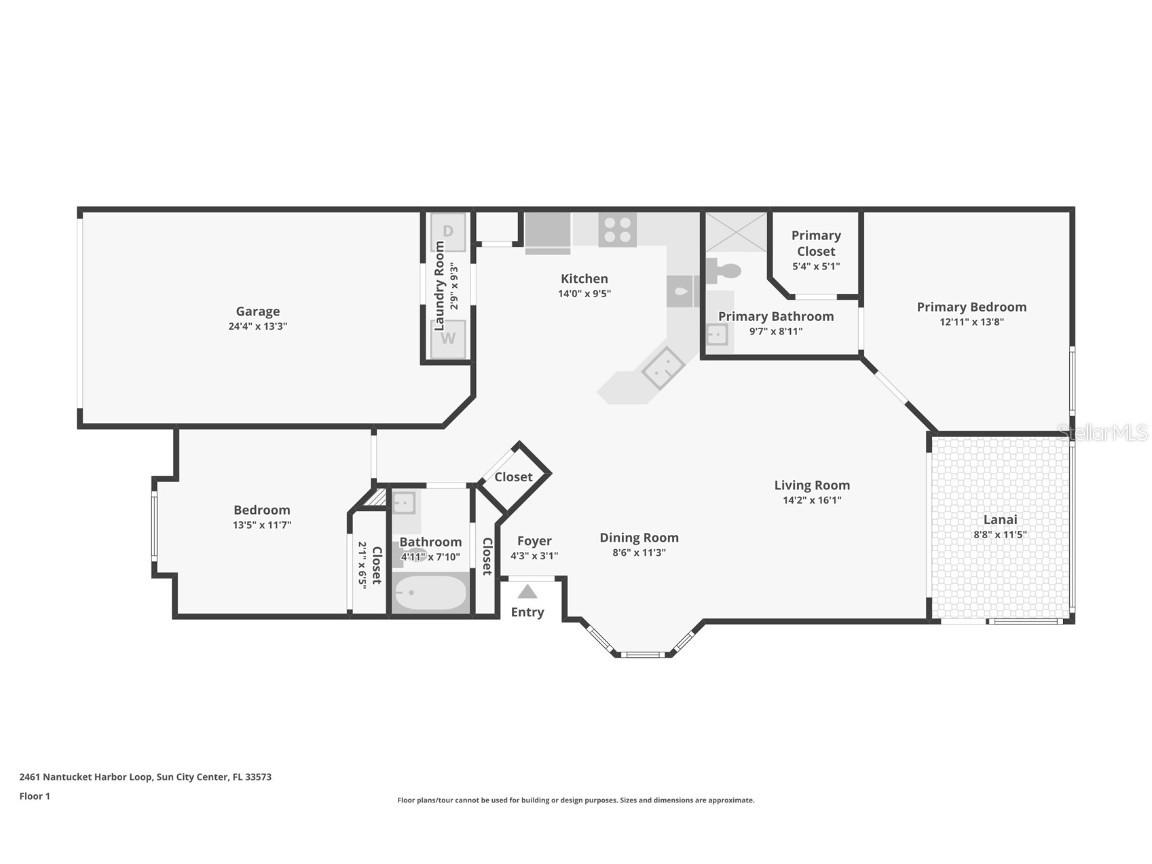
Room Information
Main Floor
Porch: 11.5x8.8
Utility Room: 9.3x2.9
Dining Room: 11.3x8.6
Bedroom 2: 11.7x13.5
Primary Bedroom: 13.8x12.11
Living Room: 16.1x14.2
Kitchen: 9.5x14
Bathrooms
Full Baths: 2
Additonal Room Information
Laundry: Inside, Laundry Room
Interior Features
Appliances: Dishwasher, Microwave, Range, Refrigerator
Flooring: Carpet,Laminate
Accessibility: Wheelchair Access
Additional Interior Features: Eat-In Kitchen, Walk-In Closet(s), Ceiling Fan(s), Solid Surface Counters, Wood Cabinets, Open Floorplan, Kitchen/Family Room Combo, High Ceilings, Built-in Features, Cathedral Ceiling(s), Living/Dining Room
Utilities
Water: Public
Sewer: Public Sewer
Other Utilities: Cable Available,Electricity Available
Cooling: Ceiling Fan(s), Central Air
Heating: Central
Exterior / Lot Features
Attached Garage: Attached Garage
Garage Spaces: 1
Parking Description: Golf Cart Garage, Converted Garage, Oversized
Roof: Shingle
Pool: Community, Association
Additional Exterior/Lot Features: Rear Porch, Covered, Screened, Flat, Level, Landscaped, City Lot, Outside City Limits
Community Features
Community Features: Clubhouse, Golf, Handicap Access, Tennis Court(s), Pool, Sidewalks, Gated, Restaurant, Fitness, Golf Carts OK, Community Mailbox
Security Features: Gated Community, Gated with Guard
Association Amenities: Fitness Center, Recreation Facilities, Tennis Court(s), Clubhouse, Cable TV, Pool, Shuffleboard Court, Pickleball, Racquetball, Maintenance Grounds, Gated, Golf Course
HOA Dues Include: Pest Control, Reserve Fund, Maintenance Structure, Pool(s), Road Maintenance, Water, Internet, Cable TV, Recreation Facilities, Security, Sewer
Driving Directions
Heading East on College towards Sun City Center, turn right onto Kings Blvd, right onto Hammersmith Dr, left onto Nantucket Dr, right onto Nantucket Dr, home is on the left.
Financial Considerations
Terms: Cash,Conventional
Tax/Property ID: U-14-32-19-203-000000-00119.0
Tax Amount: 1214.83
Tax Year: 2024
A broker reciprocity listing courtesy: KELLER WILLIAMS SOUTH SHORE
Based on information provided by Stellar MLS as distributed by the MLS GRID. Information from the Internet Data Exchange is provided exclusively for consumers’ personal, non-commercial use, and such information may not be used for any purpose other than to identify prospective properties consumers may be interested in purchasing. This data is deemed reliable but is not guaranteed to be accurate by Edina Realty, Inc., or by the MLS. Edina Realty, Inc., is not a multiple listing service (MLS), nor does it offer MLS access.
Copyright 2026 Stellar MLS as distributed by the MLS GRID. All Rights Reserved.
Payment Calculator
Interest rate and annual percentage rate (APR) are based on current market conditions, are for informational purposes only, are subject to change without notice and may be subject to pricing add-ons related to property type, loan amount, loan-to-value, credit score and other variables. Estimated closing costs used in the APR calculation are assumed to be paid by the borrower at closing. If the closing costs are financed, the loan, APR and payment amounts will be higher. If the down payment is less than 20%, mortgage insurance may be required and could increase the monthly payment and APR. Contact us for details. Additional loan programs may be available. Accuracy is not guaranteed, and all products may not be available in all borrower's geographical areas and are based on their individual situation. This is not a credit decision or a commitment to lend.
Sales History & Tax Summary for 2461 Nantucket Harbor Loop
Sales History
| Date | Price | Change |
|---|---|---|
| Currently not available. | ||
Tax Summary
| Tax Year | Estimated Market Value | Total Tax |
|---|---|---|
| Currently not available. | ||
Data powered by ATTOM Data Solutions. Copyright© 2026. Information deemed reliable but not guaranteed.
Schools
Schools nearby 2461 Nantucket Harbor Loop
| Schools in attendance boundaries | Grades | Distance | Rating |
|---|---|---|---|
| Loading... | |||
| Schools nearby | Grades | Distance | Rating |
|---|---|---|---|
| Loading... | |||
Data powered by ATTOM Data Solutions. Copyright© 2026. Information deemed reliable but not guaranteed.
The schools shown represent both the assigned schools and schools by distance based on local school and district attendance boundaries. Attendance boundaries change based on various factors and proximity does not guarantee enrollment eligibility. Please consult your real estate agent and/or the school district to confirm the schools this property is zoned to attend. Information is deemed reliable but not guaranteed.
SchoolDigger ® Rating
The SchoolDigger rating system is a 1-5 scale with 5 as the highest rating. SchoolDigger ranks schools based on test scores supplied by each state's Department of Education. They calculate an average standard score by normalizing and averaging each school's test scores across all tests and grades.
Coming soon properties will soon be on the market, but are not yet available for showings.