2463 Lacerta Drive Orlando, FL 32828
For Sale MLS# O6335510
3 beds 3 baths 2,445 sq ft Single Family
Details for 2463 Lacerta Drive
MLS# O6335510
Description for 2463 Lacerta Drive, Orlando, FL, 32828
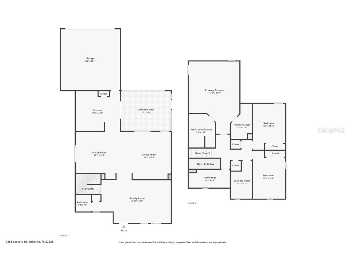
Welcome to 2463 Lacerta Drive, an immaculate 3-bedroom, 2.5-bath, 2,445 sq ft home nestled in the gated Avalon Lakes community, just minutes from downtown Avalon Park’s vibrant shops, dining, and community events. This two-story home boasts standout curb appeal with a white picket fence and manicured landscaping, leading into a bright, open interior filled with neutral finishes and natural light. The modern kitchen features white shaker cabinets, granite countertops, a mosaic tile backsplash, black appliances, and a breakfast bar that opens to the living and dining areas, making it ideal for entertaining. Enjoy seamless indoor and outdoor living with a fully screened lanai offering privacy. Upstairs, you’ll find a versatile loft or flex space that can be used as a home office, gym, or playroom, providing the perfect area to fit your lifestyle. The oversized primary suite includes dual walk-in closets and a spacious en suite bath with a soaking tub, double vanity, and separate shower. Two generously sized bedrooms, a full hallway bath, and a laundry room with built-ins complete the upper level. The roof was replaced just one year ago, and the A/C unit is only three years old, offering added peace of mind. Community amenities include a resort-style pool, cabanas, parks, playgrounds, and scenic walking trails. With top-rated schools, proximity to Waterford Lakes and UCF, and easy access to major highways, this home offers not only space and style but also a lifestyle of convenience and community living. Don’t miss your chance to own in one of East Orlando’s most desirable neighborhoods and schedule your private showing today.
Listing Information
Property Type: Residential, Single Family Residence
Status: Active
Bedrooms: 3
Bathrooms: 3
Lot Size: 0.13 Acres
Square Feet: 2,445 sq ft
Year Built: 2009
Garage: Yes
Stories: 2 Story
Construction: Block,Stucco,Wood Frame
Subdivision: Avalon Park Northwest Village Ph 02-4
Foundation: Slab
County: Orange
School Information
Elementary: Stone Lake Elem
Middle: Avalon Middle
High: Timber Creek High
Room Information
Main Floor
Dining Room: 16x14
Bathroom 1: 6x5
Family Room: 17x23
Porch: 14x17
Kitchen: 14x15
Living Room: 16x19
Upper Floor
Laundry:
Bathroom 2:
Bedroom 3:
Bedroom 2:
Primary Bathroom:
Primary Bedroom:
Bathrooms
Full Baths: 2
1/2 Baths: 1
Additonal Room Information
Laundry: Laundry Room
Interior Features
Appliances: Washer, Dishwasher, Dryer, Microwave, Built-In Oven, Electric Water Heater
Flooring: Carpet,Ceramic Tile
Doors/Windows: Window Treatments
Additional Interior Features: Ceiling Fan(s), Walk-In Closet(s), Window Treatments, Solid Surface Counters
Utilities
Water: Public
Sewer: Public Sewer
Other Utilities: Cable Available,Cable Connected,Electricity Connected,Sewer Connected
Cooling: Central Air, Ceiling Fan(s)
Heating: Central
Exterior / Lot Features
Attached Garage: Attached Garage
Garage Spaces: 2
Roof: Shingle
Pool: Community, Association
Additional Exterior/Lot Features: Sprinkler/Irrigation
Community Features
Community Features: Sidewalks, Pool, Tennis Court(s), Playground, Clubhouse, Street Lights, Park, Restaurant, Fitness, Community Mailbox
Association Amenities: Fitness Center, Basketball Court, Trail(s), Park, Pool, Clubhouse, Playground, Tennis Court(s), Recreation Facilities
HOA Dues Include: Pool(s)
Homeowners Association: Yes
HOA Dues: $424 / Quarterly
Driving Directions
From Downtown Orlando, take SR-408 east to Exit 23. Merge onto Highway 50 east, take a right onto North Avalon Park Boulevard, then right on Tea Rose Drive, and a left on Lacerta Drive. The property is on the left.
Financial Considerations
Terms: Cash,Conventional,FHA,VA Loan
Tax/Property ID: 06-23-32-1007-05-280
Tax Amount: 7237.84
Tax Year: 2024
A broker reciprocity listing courtesy: DIDOMENICO REALTY GROUP
Based on information provided by Stellar MLS as distributed by the MLS GRID. Information from the Internet Data Exchange is provided exclusively for consumers’ personal, non-commercial use, and such information may not be used for any purpose other than to identify prospective properties consumers may be interested in purchasing. This data is deemed reliable but is not guaranteed to be accurate by Edina Realty, Inc., or by the MLS. Edina Realty, Inc., is not a multiple listing service (MLS), nor does it offer MLS access.
Copyright 2025 Stellar MLS as distributed by the MLS GRID. All Rights Reserved.
Payment Calculator
Interest rate and annual percentage rate (APR) are based on current market conditions, are for informational purposes only, are subject to change without notice and may be subject to pricing add-ons related to property type, loan amount, loan-to-value, credit score and other variables. Estimated closing costs used in the APR calculation are assumed to be paid by the borrower at closing. If the closing costs are financed, the loan, APR and payment amounts will be higher. If the down payment is less than 20%, mortgage insurance may be required and could increase the monthly payment and APR. Contact us for details. Additional loan programs may be available. Accuracy is not guaranteed, and all products may not be available in all borrower's geographical areas and are based on their individual situation. This is not a credit decision or a commitment to lend.
Sales History & Tax Summary for 2463 Lacerta Drive
Sales History
| Date | Price | Change |
|---|---|---|
| Currently not available. | ||
Tax Summary
| Tax Year | Estimated Market Value | Total Tax |
|---|---|---|
| Currently not available. | ||
Data powered by ATTOM Data Solutions. Copyright© 2025. Information deemed reliable but not guaranteed.
Schools
Schools nearby 2463 Lacerta Drive
| Schools in attendance boundaries | Grades | Distance | Rating |
|---|---|---|---|
| Loading... | |||
| Schools nearby | Grades | Distance | Rating |
|---|---|---|---|
| Loading... | |||
Data powered by ATTOM Data Solutions. Copyright© 2025. Information deemed reliable but not guaranteed.
The schools shown represent both the assigned schools and schools by distance based on local school and district attendance boundaries. Attendance boundaries change based on various factors and proximity does not guarantee enrollment eligibility. Please consult your real estate agent and/or the school district to confirm the schools this property is zoned to attend. Information is deemed reliable but not guaranteed.
SchoolDigger ® Rating
The SchoolDigger rating system is a 1-5 scale with 5 as the highest rating. SchoolDigger ranks schools based on test scores supplied by each state's Department of Education. They calculate an average standard score by normalizing and averaging each school's test scores across all tests and grades.
Coming soon properties will soon be on the market, but are not yet available for showings.