$575,000
Off-Market Date: 01/26/202624748 Oaks Boulevard Land O Lakes, FL 34639
Pending MLS# TB8466302
3 beds 2 baths 1,964 sq ft Single Family
Details for 24748 Oaks Boulevard
MLS# TB8466302
Description for 24748 Oaks Boulevard, Land O Lakes, FL, 34639
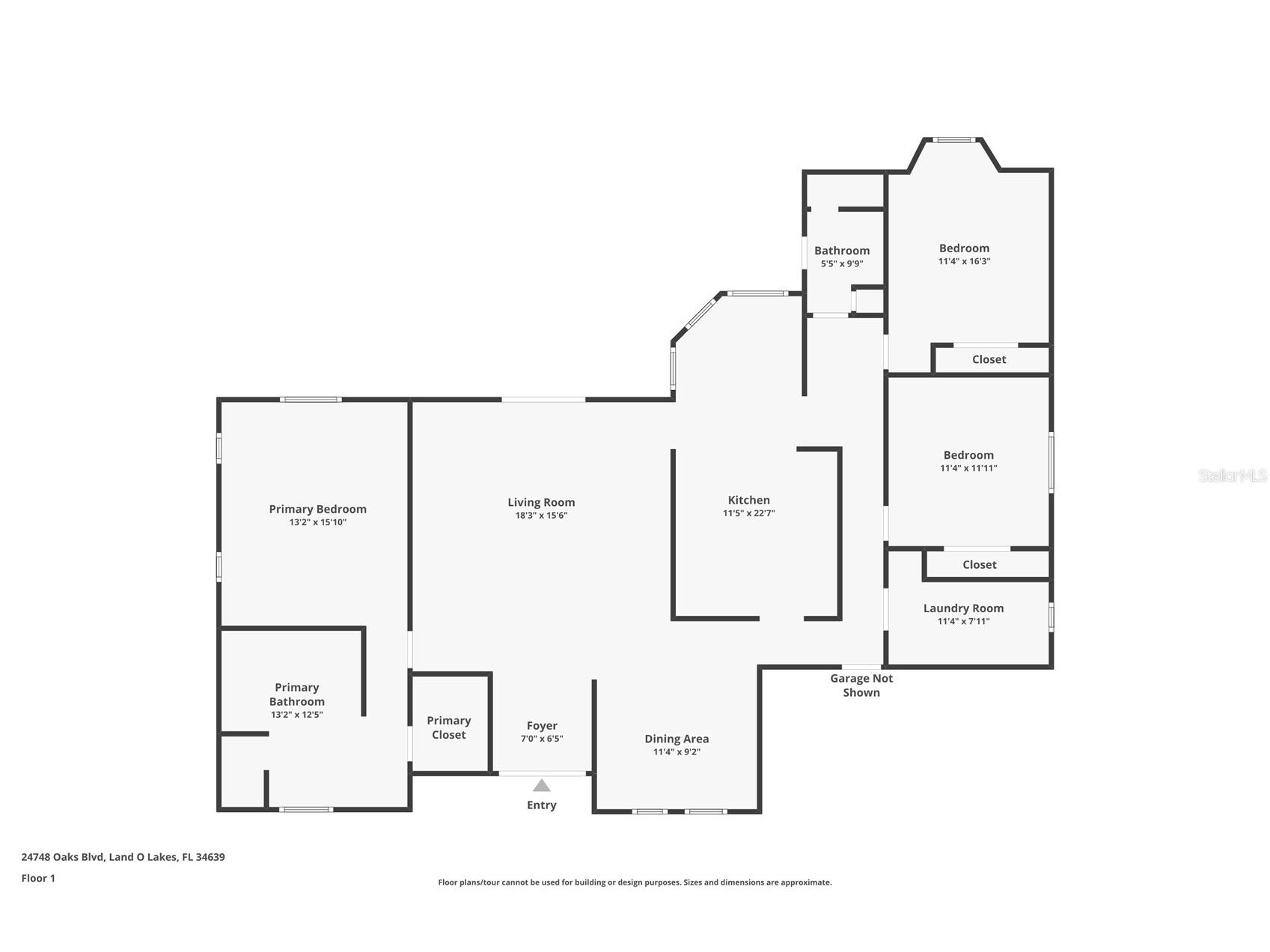
Discover the potential of this SECLUDED 1,964-square-foot single-family home situated on a sprawling 2.50-acre lot in Land O Lakes. This beautiful home offers a great opportunity to own one of the few homes in the area on acreage and conservation with the NO HOA OR CDD FEE'S. The interior includes 3 bedrooms and 2 bathrooms, split floor plan with an open concept featuring a kitchen/living room combo! Features include the following: Large open living room, tile in all wet areas, primary bathroom has a walk-in shower a bidet dual vanity and a jacuzzi tub. Exterior features a large screen enclosed patio to enjoy the view of conservation and a great space for entertainment. Outside, the expansive acreage provides plenty of space and privacy, complemented by both a carport, multiple sheds for storage, and a detached metal garage 40x25 for ample parking and storage. Roof was replaced in 2019. Enjoy the privacy from all sides with a scenic view filled with wildlife. Located in a quiet area with easy access to local amenities, this property offers a unique opportunity to own significant acreage in Pasco County close to I75, The Groves, The Outlet Mall, Wiregrass mall, entertainment and restaurants.
Listing Information
Property Type: Residential, Single Family Residence
Status: Pending
Bedrooms: 3
Bathrooms: 2
Lot Size: 2.50 Acres
Square Feet: 1,964 sq ft
Year Built: 1998
Garage: Yes
Stories: 1 Story
Construction: Block,Stone
Construction Display: New Construction
Subdivision: Acreage
Foundation: Slab
County: Pasco
Construction Status: Fixer
School Information
Elementary: Veterans Elementary School
Middle: Cypress Creek Middle School
High: Cypress Creek High-Po
Room Information
Main Floor
Laundry: 8x11
Bedroom 3: 11x12
Bedroom 2: 12x16
Primary Bathroom: 13x13
Primary Bedroom: 13x16
Foyer: 7x8
Dining Room: 10x12
Living Room: 16x18
Kitchen: 12x23
Bathrooms
Full Baths: 2
Additonal Room Information
Laundry: Laundry Room
Interior Features
Appliances: Dishwasher, Disposal, Dryer, Microwave, Range, Refrigerator, Washer
Flooring: Carpet,Tile
Doors/Windows: Blinds
Additional Interior Features: Ceiling Fan(s), Cathedral Ceiling(s), Kitchen/Family Room Combo, Main Level Primary, High Ceilings, Split Bedrooms, Walk-In Closet(s)
Utilities
Water: Well
Sewer: Septic Tank
Other Utilities: Cable Available,Electricity Available,Water Connected
Cooling: Ceiling Fan(s), Central Air
Heating: Central
Exterior / Lot Features
Attached Garage: Attached Garage
Garage Spaces: 2
Roof: Shingle
Lot View: Trees/Woods
Additional Exterior/Lot Features: Rain Gutters, Storage, Private Yard, Covered, Rear Porch, Front Porch, Screened, Flat, Level, Landscaped, Cleared, Dead End, Conservation Area, Outside City Limits
Out Buildings: Barn(s), Storage, Workshop, Shed(s)
Community Features
Security Features: Smoke Detector(s)
Driving Directions
I75 NORTH TO HWY 54 WEST TO OAKS BLVD TO PROPERTY ON LEFT, FOLLOW SIDE DRIVEWAY TO GATE
Financial Considerations
Terms: Cash,Conventional
Tax/Property ID: 19-26-16-0000-00100-0131
Tax Amount: 4436.96
Tax Year: 2024
A broker reciprocity listing courtesy: THE WILKINS WAY LLC
Based on information provided by Stellar MLS as distributed by the MLS GRID. Information from the Internet Data Exchange is provided exclusively for consumers’ personal, non-commercial use, and such information may not be used for any purpose other than to identify prospective properties consumers may be interested in purchasing. This data is deemed reliable but is not guaranteed to be accurate by Edina Realty, Inc., or by the MLS. Edina Realty, Inc., is not a multiple listing service (MLS), nor does it offer MLS access.
Copyright 2026 Stellar MLS as distributed by the MLS GRID. All Rights Reserved.
Sales History & Tax Summary for 24748 Oaks Boulevard
Sales History
| Date | Price | |
|---|---|---|
| Currently not available. | ||
Tax Summary
| Tax Year | Estimated Market Value | Total Tax |
|---|---|---|
| Currently not available. | ||
Data powered by ATTOM Data Solutions. Copyright© 2026. Information deemed reliable but not guaranteed.
Schools
Schools nearby 24748 Oaks Boulevard
| Schools in attendance boundaries | Grades | Distance | Rating |
|---|---|---|---|
| Loading... | |||
| Schools nearby | Grades | Distance | Rating |
|---|---|---|---|
| Loading... | |||
Data powered by ATTOM Data Solutions. Copyright© 2026. Information deemed reliable but not guaranteed.
The schools shown represent both the assigned schools and schools by distance based on local school and district attendance boundaries. Attendance boundaries change based on various factors and proximity does not guarantee enrollment eligibility. Please consult your real estate agent and/or the school district to confirm the schools this property is zoned to attend. Information is deemed reliable but not guaranteed.
SchoolDigger ® Rating
The SchoolDigger rating system is a 1-5 scale with 5 as the highest rating. SchoolDigger ranks schools based on test scores supplied by each state's Department of Education. They calculate an average standard score by normalizing and averaging each school's test scores across all tests and grades.
Coming soon properties will soon be on the market, but are not yet available for showings.