24862 Us Highway 19 N #3003 Clearwater, FL 33763
For Sale MLS# TB8438291
1 beds 1 baths 640 sq ft Condo
Details for 24862 Us Highway 19 N #3003
MLS# TB8438291
Description for 24862 Us Highway 19 N #3003, Clearwater, FL, 33763
Charming Clearwater Condo – Affordable Coastal Living! Discover an incredible opportunity to own a cost-effective slice of paradise in the heart of Clearwater, Florida! This inviting 1-bedroom, 1-bathroom condo offers the perfect blend of comfort, convenience, and value—ideal for first-time homebuyers, snowbirds, or savvy investors looking for a strong rental opportunity in one of the Sunshine State’s most desirable markets. Nestled in a prime central Clearwater location, this condo puts you close to everything that makes the Gulf Coast lifestyle so sought after. Enjoy easy access to award-winning Clearwater Beach, vibrant local restaurants, shopping centers, entertainment, and the nearby Tampa International Airport—all just minutes away. Inside, you’ll find a functional layout ready for your personal touches and updates. This unit serves as a blank canvas to create your perfect full-time residence, vacation retreat, or income-producing investment. The well-maintained community features a low HOA fee that includes cable, exterior maintenance, grounds care, trash service, and access to fantastic amenities such as a sparkling community pool and welcoming clubhouse—perfect for relaxing or socializing with neighbors. Whether you’re looking to settle into the Clearwater lifestyle or expand your investment portfolio, this condo represents a smart and affordable entry into Florida’s booming real estate market. Don’t miss your chance to own a piece of paradise just minutes from the Gulf Coast’s turquoise waters and sugar-sand beaches. Schedule your showing today and experience the best of Clearwater living—affordable, convenient, and full of potential!
Listing Information
Property Type: Residential, Condominium
Status: Active
Bedrooms: 1
Bathrooms: 1
Square Feet: 640 sq ft
Year Built: 1979
Stories: 1 Story
Construction: Brick,Block
Subdivision: Hill Crest Villas
Foundation: Slab
County: Pinellas
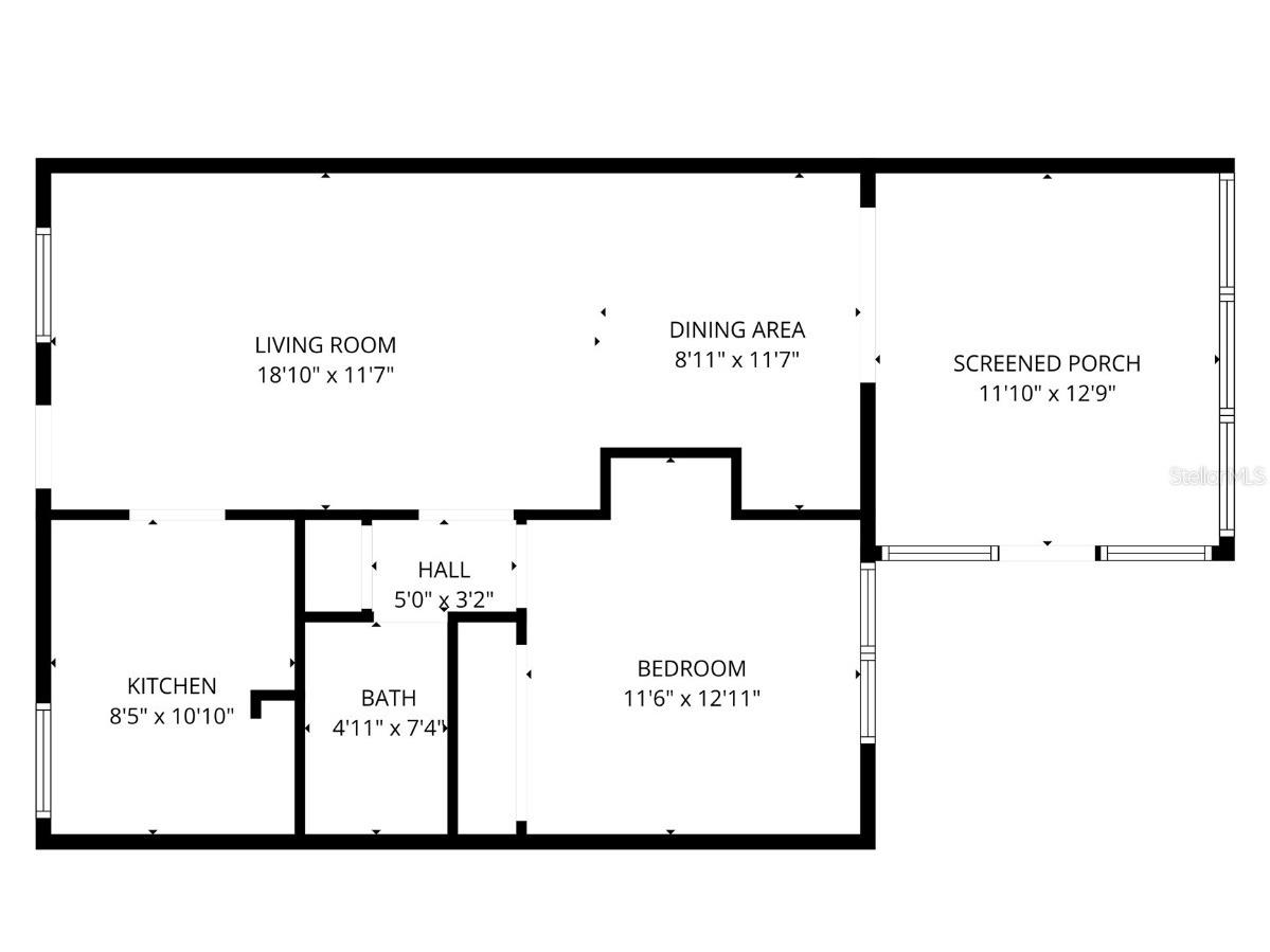
Room Information
Main Floor
Primary Bedroom: 10x12
Living Room: 18x12
Kitchen: 10x10
Bathrooms
Full Baths: 1
Additonal Room Information
Laundry: Common Area
Interior Features
Appliances: Electric Water Heater, Microwave, Range, Refrigerator
Flooring: Carpet,Ceramic Tile
Additional Interior Features: Ceiling Fan(s), Eat-In Kitchen, Open Floorplan
Utilities
Water: Public
Sewer: Public Sewer
Other Utilities: Electricity Connected
Cooling: Central Air, Ceiling Fan(s)
Heating: Electric
Exterior / Lot Features
Roof: Shingle
Pool: Community
Additional Exterior/Lot Features: Buyer Approval Required
Community Features
Community Features: Recreation Area, Sidewalks, Pool
Association Amenities: Laundry, Clubhouse
HOA Dues Include: Cable TV, Taxes, Trash, Maintenance Grounds, Reserve Fund, Pool(s), Common Areas, Maintenance Structure
Homeowners Association: Yes
HOA Dues: $433 / Monthly
Driving Directions
From Frontage Rd, turn right into Hill Crest Villas
Financial Considerations
Terms: Cash,Conventional
Tax/Property ID: 31-28-16-40079-030-0030
Tax Amount: 1965
Tax Year: 2024
A broker reciprocity listing courtesy: CHARLES RUTENBERG REALTY INC
Based on information provided by Stellar MLS as distributed by the MLS GRID. Information from the Internet Data Exchange is provided exclusively for consumers’ personal, non-commercial use, and such information may not be used for any purpose other than to identify prospective properties consumers may be interested in purchasing. This data is deemed reliable but is not guaranteed to be accurate by Edina Realty, Inc., or by the MLS. Edina Realty, Inc., is not a multiple listing service (MLS), nor does it offer MLS access.
Copyright 2026 Stellar MLS as distributed by the MLS GRID. All Rights Reserved.
Payment Calculator
Interest rate and annual percentage rate (APR) are based on current market conditions, are for informational purposes only, are subject to change without notice and may be subject to pricing add-ons related to property type, loan amount, loan-to-value, credit score and other variables. Estimated closing costs used in the APR calculation are assumed to be paid by the borrower at closing. If the closing costs are financed, the loan, APR and payment amounts will be higher. If the down payment is less than 20%, mortgage insurance may be required and could increase the monthly payment and APR. Contact us for details. Additional loan programs may be available. Accuracy is not guaranteed, and all products may not be available in all borrower's geographical areas and are based on their individual situation. This is not a credit decision or a commitment to lend.
Sales History & Tax Summary for 24862 Us Highway 19 N #3003
Sales History
| Date | Price | |
|---|---|---|
| Currently not available. | ||
Tax Summary
| Tax Year | Estimated Market Value | Total Tax |
|---|---|---|
| Currently not available. | ||
Data powered by ATTOM Data Solutions. Copyright© 2026. Information deemed reliable but not guaranteed.
Schools
Schools nearby 24862 Us Highway 19 N #3003
| Schools in attendance boundaries | Grades | Distance | Rating |
|---|---|---|---|
| Loading... | |||
| Schools nearby | Grades | Distance | Rating |
|---|---|---|---|
| Loading... | |||
Data powered by ATTOM Data Solutions. Copyright© 2026. Information deemed reliable but not guaranteed.
The schools shown represent both the assigned schools and schools by distance based on local school and district attendance boundaries. Attendance boundaries change based on various factors and proximity does not guarantee enrollment eligibility. Please consult your real estate agent and/or the school district to confirm the schools this property is zoned to attend. Information is deemed reliable but not guaranteed.
SchoolDigger ® Rating
The SchoolDigger rating system is a 1-5 scale with 5 as the highest rating. SchoolDigger ranks schools based on test scores supplied by each state's Department of Education. They calculate an average standard score by normalizing and averaging each school's test scores across all tests and grades.
Coming soon properties will soon be on the market, but are not yet available for showings.