250 George Road Port Charlotte, FL 33952 - FRY WATERWAY CANAL
For Sale MLS# C7506274
5 beds 6 baths 4,176 sq ft Single Family
Details for 250 George Road
MLS# C7506274
Description for 250 George Road, Port Charlotte, FL, 33952 - FRY WATERWAY CANAL
EXCEPTIONAL WATERFRONT HOME IN PORT CHARLOTTE W/NEARLY INSTANT ACCESS TO OPEN WATER! Looking for a spectacular waterfront residence w/***NEW METAL ROOF***, FIVE BEDROOMS (ALL OF THEM W/EN-SUITE BATHS), A PRIVATE DEN & OVER 4,100 SQFT of living space? Run, don't walk to this one-of-kind, two story home that was designed for entertaining. The first floor boasts a formal living room w/wet bar, formal dining room, home office plus a LARGE kitchen & spacious family room w/fireplace. The living room, family room & two guest rooms open to the balcony area that overlooks the pool. True chef's kitchen offers an abundance of cabinet & counter space w/a center island & prep area, stainless steel appliances (w/two dishwashers), plus an oversized walk-in pantry. The adjacent breakfast nook offers direct access to the balcony w/views of the pool & canal beyond. Three bedrooms are found on the main floor - each w/a large, walk-in closet & private en-suite bath. The master bedroom, laundry room & 5th bedroom are located on the second floor. The master suite features awesome views of Charlotte Harbor, a bump-out seating area & two unexpectedly large walk-in closets. The master bath has dual sinks atop a floating vanity w/stone counter plus a jetted garden tub & separate walk-in closet. The private WC has two linen closets. There is no shortage of storage space here! The 5th bedroom has (of course) an en-suite bath PLUS a balcony overlooking the canal view behind the home. The two-story pool cage encompasses the ground floor level area plus the balcony off the main floor. From the ground level, you'll enjoy the in-ground pool that is surrounded by a brick paver deck plus a summer kitchen, half bath & ample covered space that is perfect for a ping pong or foosball table, dedicated workshop area. The space has been used to host large parties w/catered food & tables filling the space w/laughter & conversation. Picture hosting memorable family gatherings here! An oversized, composite dock is located just steps from the back door. Keep your boat in your backyard & start enjoying some of the best fishing & boating in SW Florida immediately! You could swim to open water from the dock! Best of both worlds w/harbor views available from the front of the home & protected canal/dock for your boat at the back of the home. Other amenities include two A/C systems, hurricane protection, large coat/shoe closet at the foyer & an oversized two-car garage w/split doors. For the gardening enthusiasts, this house has an abundance of Mango, Fig, Chikoo, Lychee, Sugar Apple trees and more! Make an appointment today, you won't be disappointed.
Listing Information
Property Type: Residential, Single Family Residence
Status: Active
Bedrooms: 5
Bathrooms: 6
Lot Size: 0.29 Acres
Square Feet: 4,176 sq ft
Year Built: 2003
Garage: Yes
Stories: 1 Story
Construction: Block,Stucco
Subdivision: Port Charlotte Sec 040
Foundation: Other,Slab
County: Charlotte
School Information
Elementary: Peace River Elementary
Middle: Port Charlotte Middle
High: Charlotte High
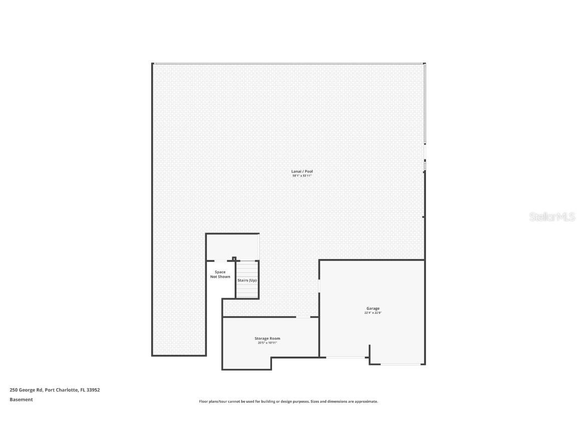
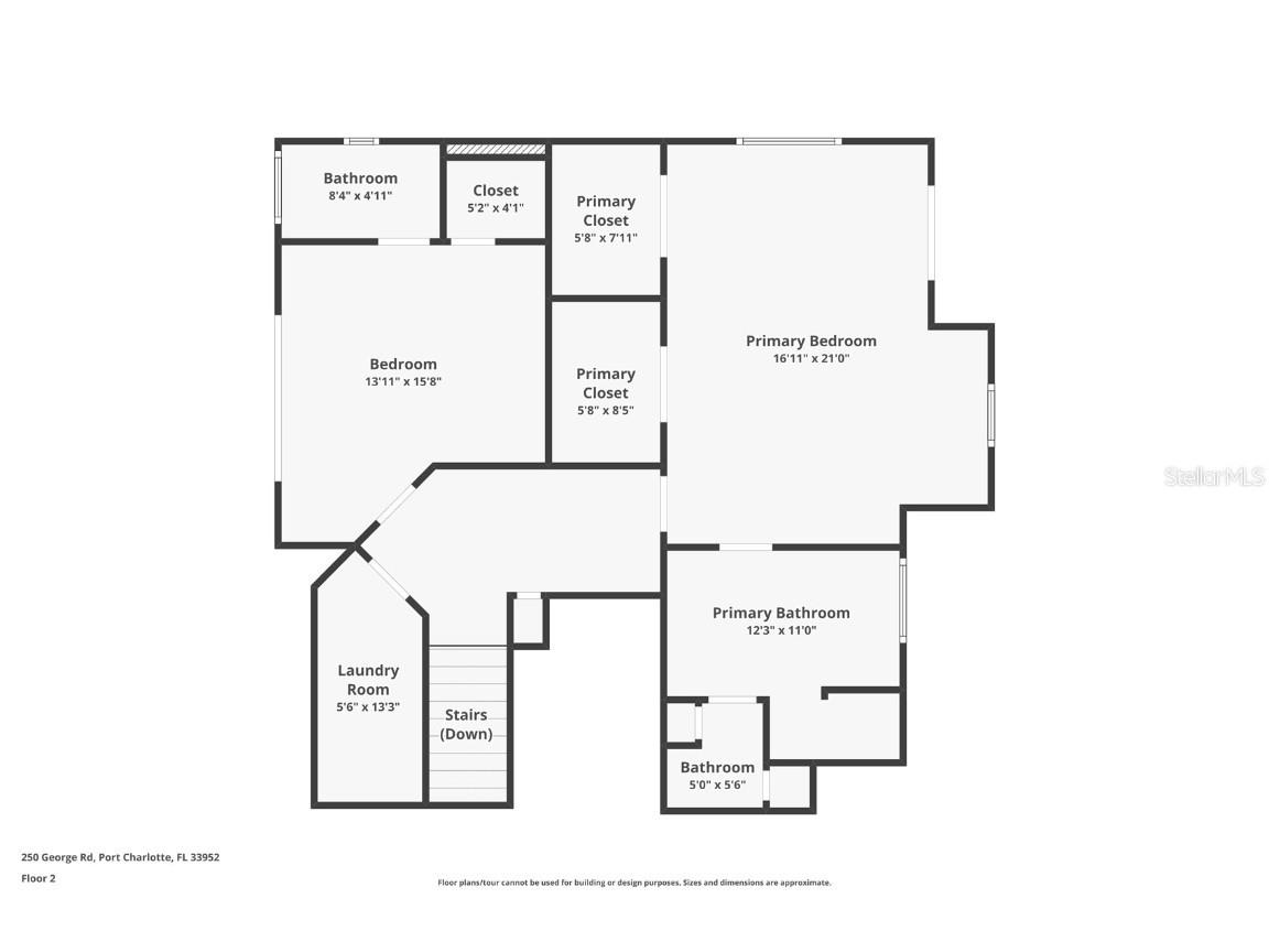
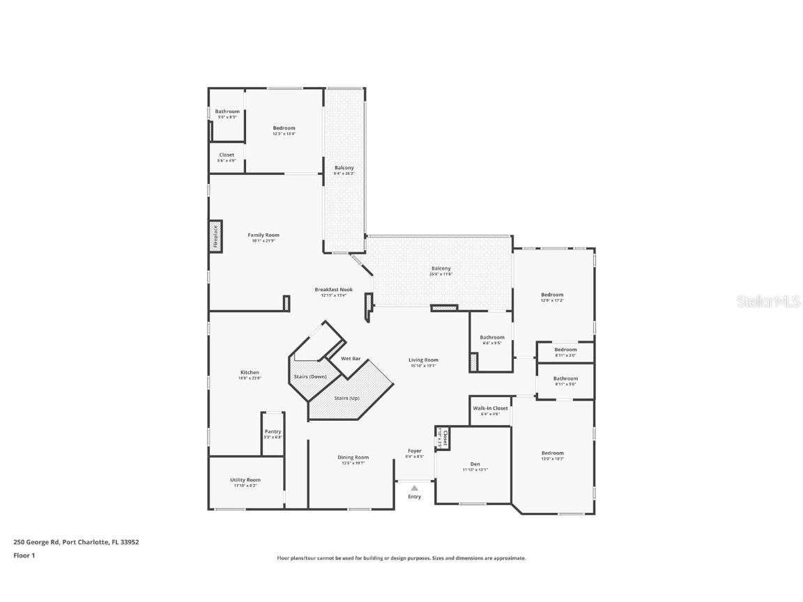
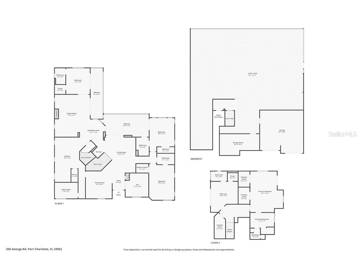
Room Information
Main Floor
Bedroom 4: 12x14
Foyer: 7x6
Bedroom 3: 12x17
Bedroom 2: 13x12
Family Room: 17x19
Dinette: 10x10
Kitchen: 22x12
Den: 12x10
Dining Room: 13x13
Living Room: 15x18
Upper Floor
Laundry: 5x11
Bedroom 5: 13x12
Primary Bathroom:
Primary Bedroom: 13x21
Bathrooms
Full Baths: 6
Additonal Room Information
Laundry: Inside, Laundry Room
Interior Features
Appliances: Bar Fridge, Electric Water Heater, Microwave, Range, Refrigerator, Washer, Dishwasher, Disposal, Dryer
Flooring: Carpet,Engineered Hardwood,Tile
Basement: Other
Doors/Windows: Blinds
Fireplaces: Family Room
Additional Interior Features: Ceiling Fan(s), Walk-In Closet(s), Split Bedrooms, Separate/Formal Dining Room, Separate/Formal Living Room, Stone Counters, Kitchen/Family Room Combo, Upper Level Primary
Utilities
Water: Public
Sewer: Public Sewer
Other Utilities: Cable Available,Electricity Connected,High Speed Internet Available,Phone Available,Sewer Connected,Water Connected
Cooling: Zoned, Ceiling Fan(s), Central Air
Heating: Electric, Central, Zoned
Exterior / Lot Features
Attached Garage: Attached Garage
Garage Spaces: 2
Parking Description: Garage Door Opener, Garage
Roof: Metal
Pool: Outside Bath Access, Gunite, In Ground, Screen Enclosure
Lot View: Canal,Water
Additional Exterior/Lot Features: Storm/Security Shutters, Sprinkler/Irrigation, Outdoor Shower, Outdoor Kitchen, Screened, Landscaped, Oversized Lot, Flood Zone, Outside City Limits
Waterfront Details
Standard Water Body: FRY WATERWAY CANAL
Water Front Features: Bay Access, Canal Access, Gulf Access, River Access
Community Features
Security Features: Smoke Detector(s)
Driving Directions
From US41, go west on Edgewater Dr. Left on Cousley Dr. Left on George Rd.
Financial Considerations
Terms: Cash,Conventional
Tax/Property ID: 402234226008
Tax Amount: 10480
Tax Year: 2024
A broker reciprocity listing courtesy: RE/MAX HARBOR REALTY
Based on information provided by Stellar MLS as distributed by the MLS GRID. Information from the Internet Data Exchange is provided exclusively for consumers’ personal, non-commercial use, and such information may not be used for any purpose other than to identify prospective properties consumers may be interested in purchasing. This data is deemed reliable but is not guaranteed to be accurate by Edina Realty, Inc., or by the MLS. Edina Realty, Inc., is not a multiple listing service (MLS), nor does it offer MLS access.
Copyright 2026 Stellar MLS as distributed by the MLS GRID. All Rights Reserved.
Payment Calculator
Interest rate and annual percentage rate (APR) are based on current market conditions, are for informational purposes only, are subject to change without notice and may be subject to pricing add-ons related to property type, loan amount, loan-to-value, credit score and other variables. Estimated closing costs used in the APR calculation are assumed to be paid by the borrower at closing. If the closing costs are financed, the loan, APR and payment amounts will be higher. If the down payment is less than 20%, mortgage insurance may be required and could increase the monthly payment and APR. Contact us for details. Additional loan programs may be available. Accuracy is not guaranteed, and all products may not be available in all borrower's geographical areas and are based on their individual situation. This is not a credit decision or a commitment to lend.
Sales History & Tax Summary for 250 George Road
Sales History
| Date | Price | |
|---|---|---|
| Currently not available. | ||
Tax Summary
| Tax Year | Estimated Market Value | Total Tax |
|---|---|---|
| Currently not available. | ||
Data powered by ATTOM Data Solutions. Copyright© 2026. Information deemed reliable but not guaranteed.
Schools
Schools nearby 250 George Road
| Schools in attendance boundaries | Grades | Distance | Rating |
|---|---|---|---|
| Loading... | |||
| Schools nearby | Grades | Distance | Rating |
|---|---|---|---|
| Loading... | |||
Data powered by ATTOM Data Solutions. Copyright© 2026. Information deemed reliable but not guaranteed.
The schools shown represent both the assigned schools and schools by distance based on local school and district attendance boundaries. Attendance boundaries change based on various factors and proximity does not guarantee enrollment eligibility. Please consult your real estate agent and/or the school district to confirm the schools this property is zoned to attend. Information is deemed reliable but not guaranteed.
SchoolDigger ® Rating
The SchoolDigger rating system is a 1-5 scale with 5 as the highest rating. SchoolDigger ranks schools based on test scores supplied by each state's Department of Education. They calculate an average standard score by normalizing and averaging each school's test scores across all tests and grades.
Coming soon properties will soon be on the market, but are not yet available for showings.