$174,900
250 Indian Key Lane Naples, FL 34114
For Sale MLS# 226011426
2 beds 2 baths 1,504 sq ft Single Family
Details for 250 Indian Key Lane
MLS# 226011426
Description for 250 Indian Key Lane, Naples, FL, 34114
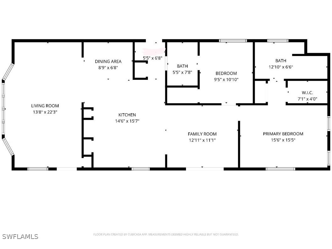
BIG open floor plan in this updated home with fresh paint and new floor coverings. You’ll appreciate the huge living room plus a den/family room perfect for entertaining with its own WET BAR. The master bedroom and bath are oversized and the 2nd bedroom has a full ensuite bath as well. The home is choc full of storage with no less than 8 closets! The lanai is also extra large with real windows and cooled by the central AC system. The entire roof was replaced in 2017 with an EDPM roofing membrane which is expected to last 30+ years and comes with a transferable warranty. The AC and water heater are practically new. The home is protected by a Sentricon termite bait system with warranty included. It also features a Wi-Fi compatible, programable lawn irrigation system and big, beautiful, mature palm trees. Other features include a 30 foot carport, long enough to protect your boat, and a double-wide drive for plenty of parking. You can also keep a boat, RV, or other toys in the gated community storage lot for a very low fee. Home is walking distance to the heated pool, huge clubhouse, and all the other great community amenities offered. West Wind Estates is a fun, pet friendly 55+ neighborhood with so many activities to keep you busy including pickleball, shuffleboard, corn hole, game nights, monthly brunches, and too many celebrations to mention. You own the land and the community fees are a very low $125/mth. No lot rent!!! Home is located just 12 miles from either downtown Naples or Marco Island each with great beaches, restaurants, and shopping. Seller is a licensed real estate agent.
Listing Information
Property Type: Residential, Manufactured Home
Status: Active
Bedrooms: 2
Bathrooms: 2
Lot Size: 0.07 Acres
Square Feet: 1,504 sq ft
Year Built: 1978
Stories: 1 Story
Construction: Manufactured,Vinyl Siding
Subdivision: West Wind Estates
Furnished: Yes
County: Collier
Days On Market: 5
Construction Status: Resale
Room Information
Bathrooms
Full Baths: 2
Additonal Room Information
Other: Living Room (22x14), Primary Bedroom (15x12), Family Room (13x11), Kitchen (15x15)
Laundry: Laundry Tub, In Garage, Common Area
Interior Features
Appliances: Built-In Oven, Double Oven, Range, Refrigerator, Dishwasher, Dryer, Freezer, Electric Cooktop
Flooring: Laminate
Doors/Windows: Sliding, Window Coverings
Additional Interior Features: Window Treatments, Kitchen Island, Bar, Built-in Features, Wet Bar, Pantry, Main Level Primary, Separate Shower, Shower Only, Living/Dining Room, Family/Dining Room
Utilities
Water: Public
Sewer: Public Sewer
Other Utilities: Cable Available,High Speed Internet Available
Cooling: Electric, Central Air
Heating: Central, Electric
Exterior / Lot Features
Parking Description: Covered, Attached Carport, Two Spaces
Roof: Roof Over
Pool: Community
Lot View: Landscaped
Lot Dimensions: 60 x 100 x 60 x 100
Additional Exterior/Lot Features: Fruit Trees, None, Porch, Glass Enclosed, Zero Lot Line
Community Features
Community Features: Non-Gated
Association Amenities: Library, RV/Boat Storage, Pickleball, Shuffleboard Court, Billiards, Laundry, Storage, Clubhouse, Fitness Center, Billiard Room, Pool, Tennis Court(s), Management
HOA Dues Include: Association Management, Laundry, Insurance, Reserve Fund, Legal/Accounting
Financial Considerations
Terms: All Financing Considered,Cash,FHA,VA Loan
Tax/Property ID: 81630640008
Tax Amount: 1542.62
Tax Year: 2025
A broker reciprocity listing courtesy: Premiere Plus Realty Company
Based on information provided by FGCMLS. Internet Data Exchange information is provided exclusively for consumers’ personal, non-commercial use, and such information may not be used for any purpose other than to identify prospective properties consumers may be interested in purchasing. This data is deemed reliable but is not guaranteed to be accurate by Edina Realty, Inc., or by the MLS. Edina Realty, Inc., is not a multiple listing service (MLS), nor does it offer MLS access.
Copyright 2026 FGCMLS. All Rights Reserved.
Payment Calculator
Interest rate and annual percentage rate (APR) are based on current market conditions, are for informational purposes only, are subject to change without notice and may be subject to pricing add-ons related to property type, loan amount, loan-to-value, credit score and other variables. Estimated closing costs used in the APR calculation are assumed to be paid by the borrower at closing. If the closing costs are financed, the loan, APR and payment amounts will be higher. If the down payment is less than 20%, mortgage insurance may be required and could increase the monthly payment and APR. Contact us for details. Additional loan programs may be available. Accuracy is not guaranteed, and all products may not be available in all borrower's geographical areas and are based on their individual situation. This is not a credit decision or a commitment to lend.
Sales History & Tax Summary for 250 Indian Key Lane
Sales History
| Date | Price | |
|---|---|---|
| Currently not available. | ||
Tax Summary
| Tax Year | Estimated Market Value | Total Tax |
|---|---|---|
| Currently not available. | ||
Data powered by ATTOM Data Solutions. Copyright© 2026. Information deemed reliable but not guaranteed.
Schools
Schools nearby 250 Indian Key Lane
| Schools in attendance boundaries | Grades | Distance | Rating |
|---|---|---|---|
| Loading... | |||
| Schools nearby | Grades | Distance | Rating |
|---|---|---|---|
| Loading... | |||
Data powered by ATTOM Data Solutions. Copyright© 2026. Information deemed reliable but not guaranteed.
The schools shown represent both the assigned schools and schools by distance based on local school and district attendance boundaries. Attendance boundaries change based on various factors and proximity does not guarantee enrollment eligibility. Please consult your real estate agent and/or the school district to confirm the schools this property is zoned to attend. Information is deemed reliable but not guaranteed.
SchoolDigger ® Rating
The SchoolDigger rating system is a 1-5 scale with 5 as the highest rating. SchoolDigger ranks schools based on test scores supplied by each state's Department of Education. They calculate an average standard score by normalizing and averaging each school's test scores across all tests and grades.
Coming soon properties will soon be on the market, but are not yet available for showings.