25100 Sandhill Boulevard #J-201 Punta Gorda, FL 33983
For Sale MLS# C7504777
2 beds 2 baths 860 sq ft Condo
Details for 25100 Sandhill Boulevard #J-201
MLS# C7504777
Description for 25100 Sandhill Boulevard #J-201, Punta Gorda, FL, 33983
Welcome to your own tropical paradise! this privately situated condo is an end unit with a beautiful view of the serene, water and fountain right from your screened balcony, allowing lots of natural light to come into the condo and spectacular, sunsets to boot! This 2-bedroom condo is on the 2nd floor and boasts a new air-conditioner 8/2024, a new roof, beautifully manicured landscaping and all freshly painted outside. This home is being sold turn-key furnished excluding the tv in the guest room. Nice open split floor plan with the two bedrooms on opposite sides of the home. Kitchen is fully equipped, open to the great room with a breakfast bar, nice newer, white cabinets and plenty of counter space. The great room opens to the balcony through glass sliding doors allowing for nice breezes throughout on those beautiful Florida days, open up your screened front door as well and enjoy all the nice fresh air flowing thru your home. Amenities include a heated swimming pool, bocca ball courts, shuffleboard a cookout area with gazebo, tables and grills. All you need to bring with you is your suitcase! Close to shopping, dining, entertainment, parks, trails for biking and walking, boating, world class fishing, numerous championship golf courses and the beautiful Gulf beaches with their amazing sunsets over the water! Historical downtown Punta Gorda, Fishermen's Village, Sunseekers Resort and the Punta Gorda international airport are all nearby. Deep Creek Gardens is great for seasonal, full time or use as a rental. Come and enjoy all the pleasures of carefree living in Southwest Florida.
Listing Information
Property Type: Residential, Condominium
Status: Active
Bedrooms: 2
Bathrooms: 2
Lot Size: 0.02 Acres
Square Feet: 860 sq ft
Year Built: 1986
Stories: 1 Story
Construction: Block,Stucco
Construction Display: New Construction
Subdivision: Deep Creek Gardens Ph 02
Foundation: Slab
County: Charlotte
Construction Status: New Construction
School Information
Elementary: Deep Creek Elementary
Middle: Punta Gorda Middle
High: Charlotte High
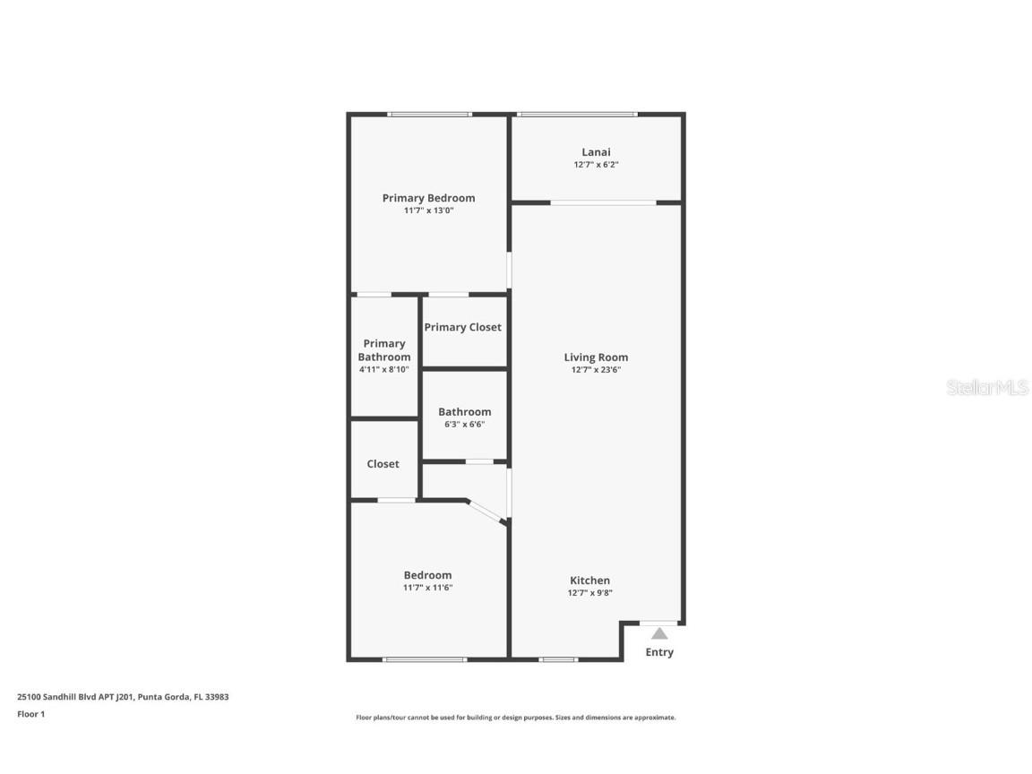
Room Information
Main Floor
Kitchen: 9x10
Bathroom 2: 11x11
Porch: 8x12
Great Room: 12x19
Primary Bedroom: 11x12
Bathrooms
Full Baths: 2
Additonal Room Information
Laundry: Laundry Closet, Inside
Interior Features
Appliances: Electric Water Heater, Range, Refrigerator, Washer, Dishwasher, Dryer, Microwave
Flooring: Ceramic Tile
Doors/Windows: Window Treatments
Additional Interior Features: Window Treatments, Walk-In Closet(s), Ceiling Fan(s), Open Floorplan
Utilities
Water: Public
Sewer: Public Sewer
Other Utilities: Municipal Utilities
Cooling: Ceiling Fan(s), Central Air
Heating: Electric
Exterior / Lot Features
Parking Description: Assigned, Guest
Roof: Shingle
Pool: Association, Community
Lot View: Pond,Water
Additional Exterior/Lot Features: Storm/Security Shutters, Balcony, Lighting, Screened, Balcony, Other, Porch, Buyer Approval Required
Community Features
Community Features: Recreation Area, Lake, Pool, Tennis Court(s), Clubhouse
Association Amenities: Shuffleboard Court, Pickleball, Tennis Court(s), Pool
HOA Dues Include: Water, Trash, Association Management, Taxes, Recreation Facilities, Sewer, Insurance, Maintenance Grounds, Pest Control, Reserve Fund, Road Maintenance, Maintenance Structure, Common Areas, Pool(s)
Driving Directions
From Kings Hwy heading toward Walmart to a right turn on Rampart. Turn left onto Capricorn Blvd. turn right onto Sandhill Blvd. Turn left into Deep Creek Gardens. Go straight to the last right turn there and condo will be the last bldg. J on your right. Condo will be last unit upstairs on your right.
Financial Considerations
Tax/Property ID: 402305754077
Tax Amount: 1133.94
Tax Year: 2023
A broker reciprocity listing courtesy: CENTURY 21 SUNBELT REALTY
Based on information provided by Stellar MLS as distributed by the MLS GRID. Information from the Internet Data Exchange is provided exclusively for consumers’ personal, non-commercial use, and such information may not be used for any purpose other than to identify prospective properties consumers may be interested in purchasing. This data is deemed reliable but is not guaranteed to be accurate by Edina Realty, Inc., or by the MLS. Edina Realty, Inc., is not a multiple listing service (MLS), nor does it offer MLS access.
Copyright 2025 Stellar MLS as distributed by the MLS GRID. All Rights Reserved.
Payment Calculator
Interest rate and annual percentage rate (APR) are based on current market conditions, are for informational purposes only, are subject to change without notice and may be subject to pricing add-ons related to property type, loan amount, loan-to-value, credit score and other variables. Estimated closing costs used in the APR calculation are assumed to be paid by the borrower at closing. If the closing costs are financed, the loan, APR and payment amounts will be higher. If the down payment is less than 20%, mortgage insurance may be required and could increase the monthly payment and APR. Contact us for details. Additional loan programs may be available. Accuracy is not guaranteed, and all products may not be available in all borrower's geographical areas and are based on their individual situation. This is not a credit decision or a commitment to lend.
Sales History & Tax Summary for 25100 Sandhill Boulevard #J-201
Sales History
| Date | Price | Change |
|---|---|---|
| Currently not available. | ||
Tax Summary
| Tax Year | Estimated Market Value | Total Tax |
|---|---|---|
| Currently not available. | ||
Data powered by ATTOM Data Solutions. Copyright© 2025. Information deemed reliable but not guaranteed.
Schools
Schools nearby 25100 Sandhill Boulevard #J-201
| Schools in attendance boundaries | Grades | Distance | Rating |
|---|---|---|---|
| Loading... | |||
| Schools nearby | Grades | Distance | Rating |
|---|---|---|---|
| Loading... | |||
Data powered by ATTOM Data Solutions. Copyright© 2025. Information deemed reliable but not guaranteed.
The schools shown represent both the assigned schools and schools by distance based on local school and district attendance boundaries. Attendance boundaries change based on various factors and proximity does not guarantee enrollment eligibility. Please consult your real estate agent and/or the school district to confirm the schools this property is zoned to attend. Information is deemed reliable but not guaranteed.
SchoolDigger ® Rating
The SchoolDigger rating system is a 1-5 scale with 5 as the highest rating. SchoolDigger ranks schools based on test scores supplied by each state's Department of Education. They calculate an average standard score by normalizing and averaging each school's test scores across all tests and grades.
Coming soon properties will soon be on the market, but are not yet available for showings.