$1,599,000
2511 Carver Avenue E Maplewood, MN 55119
For Sale MLS# 6724602
2 beds 2 baths 1,552 sq ft Single Family
Details for 2511 Carver Avenue E
MLS# 6724602
Description for 2511 Carver Avenue E, Maplewood, MN, 55119
Enjoy space, privacy, and incredible outdoor living with this unique 2-bedroom, 2-bath home set on 6.05 scenic acres in Maplewood! The main level flows beautifully into a screened-in porch, deck, and patio—perfect for entertaining or relaxing. There is a convenient entrance to the lower level that could easily function as an efficiency apartment or large 3rd bedroom.Take advantage of your own outdoor pool and expansive yard, offering endless opportunities for recreation and enjoyment. The property includes a detached 2-car garage plus an additional 48 x 88 large outbuilding, with a functional office, bathroom, car lift : ideal for storage, hobbies, or a workshop. Current owner runs a small business on site. Why rent or lease space, when you can have zero commute? Amazing opportunity to live and work! Buyer to verify with the City of Maplewood on a special use permit to operate a business.A rare find with acreage, outbuildings, and resort-style amenities—all just minutes from city conveniences!
Listing Information
Property Type: Residential, Single Family
Status: Active
Bedrooms: 2
Bathrooms: 2
Lot Size: 6.05 Acres
Square Feet: 1,552 sq ft
Year Built: 1960
Foundation: 550 sq ft
Garage: Yes
Stories: Split Entry (Bi-Level)
Subdivision: Section 24 Town 28 Range 22
County: Ramsey
Days On Market: 216
Construction Status: Previously Owned
School Information
District: 622 - North St Paul-Maplewood
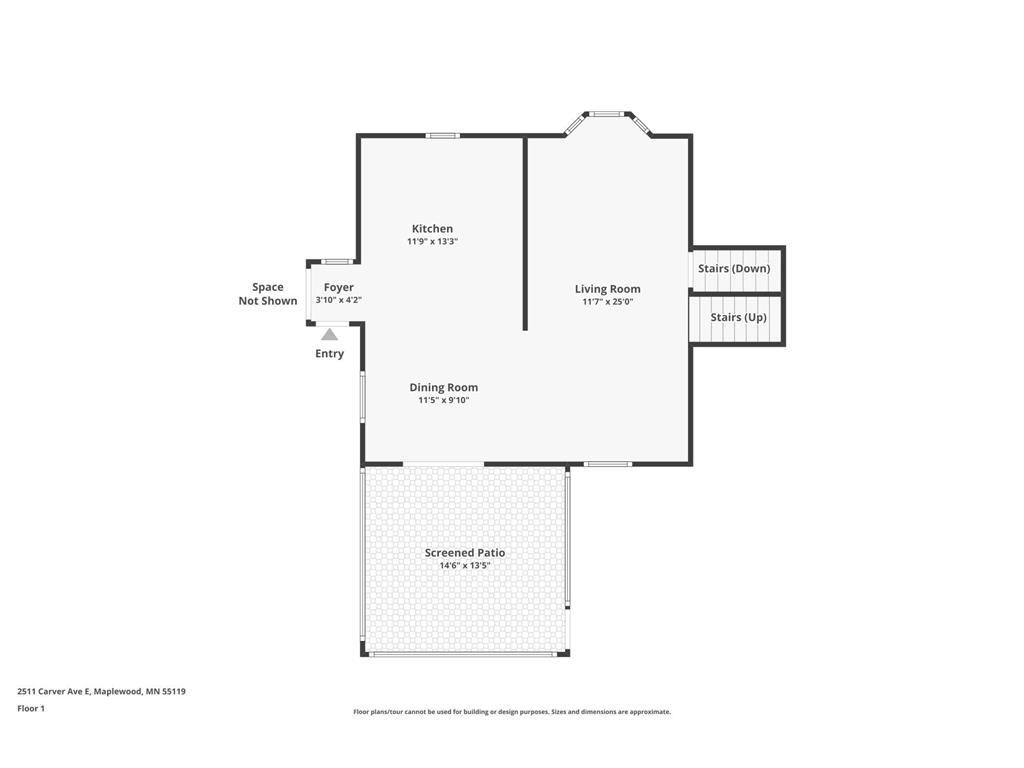
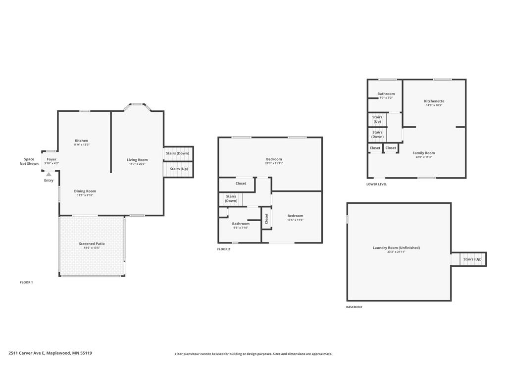
Room Information
Main Floor
Dining Room: 12x10
Kitchen: 12x13
Living Room: 12x25
Upper Floor
Bedroom 1: 23x12
Bedroom 2: 14x12
Lower Floor
Family Room: 22x13
Kitchen: 14x11
Bathrooms
Full Baths: 1
3/4 Baths: 1
Additonal Room Information
Laundry: Laundry Room, Lower Level
Bath Description: Upper Level Full Bath
Interior Features
Square Footage above: 1,552 sq ft
Appliances: Washer, Stainless Steel Appliances, Dishwasher, Dryer, Microwave, Range, Refrigerator
Basement: Concrete Block
Utilities
Water: Well
Sewer: Septic System Compliant - Yes
Cooling: Central
Heating: Natural Gas, Forced Air
Exterior / Lot Features
Garage Spaces: 2
Parking Description: Detached Garage, Garage Sq Ft - 702.0
Exterior: Vinyl
Pool: Below Ground
Lot Dimensions: irregular
Zoning: Residential-Single Family
Driving Directions
494 to Maxwell, To Bailey Rd, To Sterling St S to Carver Ave
Financial Considerations
Tax/Property ID: 242822120017
Tax Amount: 11968
Tax Year: 2024
HomeStead Description: Non-Homesteaded
A broker reciprocity listing courtesy: Pemberton RE
The data relating to real estate for sale on this web site comes in part from the Broker Reciprocity℠ Program of the Regional Multiple Listing Service of Minnesota, Inc. Real estate listings held by brokerage firms other than Edina Realty, Inc. are marked with the Broker Reciprocity℠ logo or the Broker Reciprocity℠ thumbnail and detailed information about them includes the name of the listing brokers. Edina Realty, Inc. is not a Multiple Listing Service (MLS), nor does it offer MLS access. This website is a service of Edina Realty, Inc., a broker Participant of the Regional Multiple Listing Service of Minnesota, Inc. IDX information is provided exclusively for consumers personal, non-commercial use and may not be used for any purpose other than to identify prospective properties consumers may be interested in purchasing. Open House information is subject to change without notice. Information deemed reliable but not guaranteed.
Copyright 2025 Regional Multiple Listing Service of Minnesota, Inc. All Rights Reserved.
Payment Calculator
Interest rate and annual percentage rate (APR) are based on current market conditions, are for informational purposes only, are subject to change without notice and may be subject to pricing add-ons related to property type, loan amount, loan-to-value, credit score and other variables. Estimated closing costs used in the APR calculation are assumed to be paid by the borrower at closing. If the closing costs are financed, the loan, APR and payment amounts will be higher. If the down payment is less than 20%, mortgage insurance may be required and could increase the monthly payment and APR. Contact us for details. Additional loan programs may be available. Accuracy is not guaranteed, and all products may not be available in all borrower's geographical areas and are based on their individual situation. This is not a credit decision or a commitment to lend.
Sales History & Tax Summary for 2511 Carver Avenue E
Sales History
| Date | Price | Change |
|---|---|---|
| Currently not available. | ||
Tax Summary
| Tax Year | Estimated Market Value | Total Tax |
|---|---|---|
| Currently not available. | ||
Data powered by ATTOM Data Solutions. Copyright© 2025. Information deemed reliable but not guaranteed.
Schools
Schools nearby 2511 Carver Avenue E
| Schools in attendance boundaries | Grades | Distance | Rating |
|---|---|---|---|
| Loading... | |||
| Schools nearby | Grades | Distance | Rating |
|---|---|---|---|
| Loading... | |||
Data powered by ATTOM Data Solutions. Copyright© 2025. Information deemed reliable but not guaranteed.
The schools shown represent both the assigned schools and schools by distance based on local school and district attendance boundaries. Attendance boundaries change based on various factors and proximity does not guarantee enrollment eligibility. Please consult your real estate agent and/or the school district to confirm the schools this property is zoned to attend. Information is deemed reliable but not guaranteed.
SchoolDigger ® Rating
The SchoolDigger rating system is a 1-5 scale with 5 as the highest rating. SchoolDigger ranks schools based on test scores supplied by each state's Department of Education. They calculate an average standard score by normalizing and averaging each school's test scores across all tests and grades.
Coming soon properties will soon be on the market, but are not yet available for showings.