2527 Linda Knoll Lane Bartow, FL 33830
For Sale MLS# L4956670
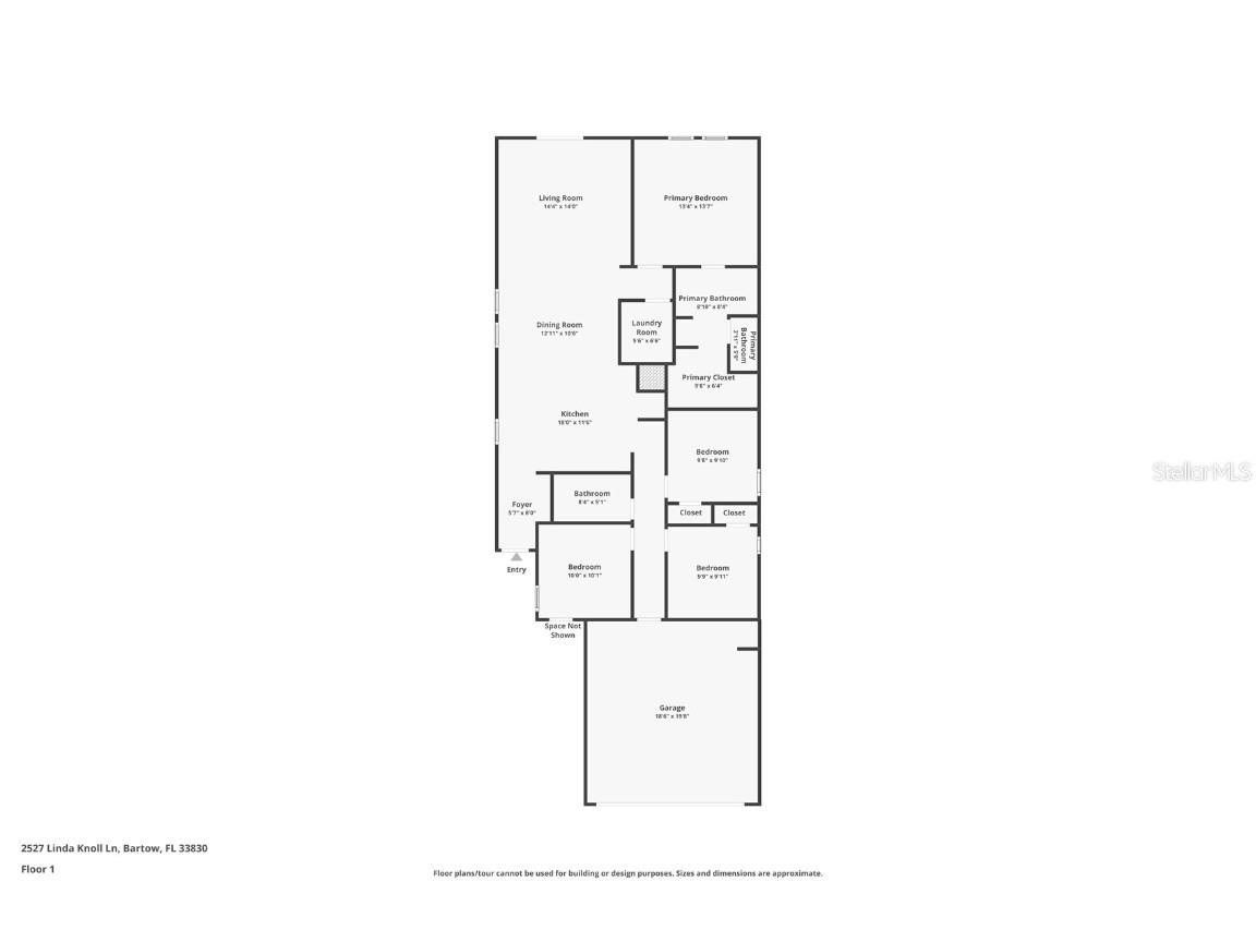
4 beds 2 baths 1,607 sq ft Single Family
Details for 2527 Linda Knoll Lane
MLS# L4956670
Description for 2527 Linda Knoll Lane, Bartow, FL, 33830
Welcome to this stunning newly built 4-bedroom, 2-bathroom Meritage Home, perfectly positioned on one of the most desirable waterfront cul-de-sac lots in The Grove at Stuart Crossing – Premier Series. From the moment you arrive, you’ll be captivated by the home’s inviting curb appeal, featuring stone-accented exterior details, colorful design touches, and a spacious driveway leading to a two-car garage and covered front porch. Step inside to discover a bright and open floor plan that perfectly balances style and functionality. The foyer hallway opens into a beautifully designed living area, complete with tile flooring throughout, an accented living room wall, and sliding glass doors that showcase the gorgeous waterfront views. The modern kitchen is a showpiece—featuring stainless steel appliances, granite countertops, ample cabinetry, and a generous dining area that overlooks the open-concept living space—perfect for gatherings and entertaining. The primary suite is thoughtfully tucked off the living room for privacy, offering tranquil pond views, a spa-inspired ensuite bathroom with a glass-framed step-in tiled shower, dual-sink vanity, private water closet, and an impressively large walk-in closet. Down the hallway, you’ll find a charming laundry room with custom wood shelving and a decorative accent wall—washer and dryer included—plus three additional bedrooms and a full guest bathroom to accommodate family or guests. Out back, enjoy your fully fenced yard with a grilling pad and serene waterfront backdrop, ideal for relaxing evenings outdoors. Located in a sidewalk-lined community with incredible on-site amenities including a resort-style pool, clubhouse, fitness center, pickleball and basketball courts, playground, dog park, and walking trails, this home offers both luxury and lifestyle. Conveniently situated near Polk State College, the Polk Parkway, shopping, dining, and more—this move-in ready home combines elegance, efficiency, and location for the ultimate Florida living experience.
Listing Information
Property Type: Residential, Single Family Residence
Status: Active
Bedrooms: 4
Bathrooms: 2
Lot Size: 0.19 Acres
Square Feet: 1,607 sq ft
Year Built: 2024
Garage: Yes
Stories: 1 Story
Construction: Block,Stucco
Construction Display: New Construction
Subdivision: Grove/Stuart Xing Ph One
Foundation: Slab
County: Polk
Construction Status: New Construction
Room Information
Main Floor
Laundry: 6.6x5.6
Dining Room: 10.11x10.8
Kitchen: 11.6x18
Bathroom 2: 5.1x8.4
Bedroom 4: 10.1x10
Bedroom 3: 10.1x10
Bedroom 2: 10.1x10
Primary Bathroom:
Primary Bedroom: 14.1x10.4
Great Room: 10.11x15
Bathrooms
Full Baths: 2
Additonal Room Information
Laundry: Inside, Laundry Room, Washer Hookup
Interior Features
Appliances: Washer, Dishwasher, Dryer, Microwave, Range, Refrigerator
Flooring: Carpet,Tile
Additional Interior Features: Ceiling Fan(s), Walk-In Closet(s), Stone Counters
Utilities
Water: Public
Sewer: Public Sewer
Other Utilities: Electricity Available,Electricity Connected,High Speed Internet Available,Sewer Available,Sewer Connected,Water Available,Water Connected
Cooling: Central Air, Ceiling Fan(s)
Heating: Central
Exterior / Lot Features
Attached Garage: Attached Garage
Garage Spaces: 2
Parking Description: driveway, Garage, Garage Door Opener
Roof: Shingle
Pool: Community
Fencing: fenced
Additional Exterior/Lot Features: Lighting, Rear Porch, Landscaped, Cul-de-Sac, Cleared
Community Features
Community Features: Clubhouse, Street Lights, Dog Park, Park, Playground, Sidewalks, Pool, Tennis Court(s), Racquetball, Fitness, Recreation Area
Security Features: Security System, Fire Alarm, Smoke Detector(s)
Association Amenities: Fitness Center, Basketball Court
Homeowners Association: Yes
HOA Dues: $200 / Annually
Driving Directions
From Bartow Highway (US-98), head east onto Ernest M. Smith Boulevard. Continue straight, then turn right onto EF Griffin Road. Follow EF Griffin Road to Oakwood Avenue and turn left. Take the next right onto Linda Knoll Lane and continue to 2527 Linda Knoll Lane, located on the right. The property is located in The Grove at Stuart Crossing – Premier Series community.
Financial Considerations
Terms: Cash,Conventional,FHA,VA Loan
Tax/Property ID: 25-29-32-363430-000620
Tax Amount: 7257.87
Tax Year: 2025
A broker reciprocity listing courtesy: BHHS FLORIDA PROPERTIES GROUP
Based on information provided by Stellar MLS as distributed by the MLS GRID. Information from the Internet Data Exchange is provided exclusively for consumers’ personal, non-commercial use, and such information may not be used for any purpose other than to identify prospective properties consumers may be interested in purchasing. This data is deemed reliable but is not guaranteed to be accurate by Edina Realty, Inc., or by the MLS. Edina Realty, Inc., is not a multiple listing service (MLS), nor does it offer MLS access.
Copyright 2025 Stellar MLS as distributed by the MLS GRID. All Rights Reserved.
Payment Calculator
Interest rate and annual percentage rate (APR) are based on current market conditions, are for informational purposes only, are subject to change without notice and may be subject to pricing add-ons related to property type, loan amount, loan-to-value, credit score and other variables. Estimated closing costs used in the APR calculation are assumed to be paid by the borrower at closing. If the closing costs are financed, the loan, APR and payment amounts will be higher. If the down payment is less than 20%, mortgage insurance may be required and could increase the monthly payment and APR. Contact us for details. Additional loan programs may be available. Accuracy is not guaranteed, and all products may not be available in all borrower's geographical areas and are based on their individual situation. This is not a credit decision or a commitment to lend.
Sales History & Tax Summary for 2527 Linda Knoll Lane
Sales History
| Date | Price | Change |
|---|---|---|
| Currently not available. | ||
Tax Summary
| Tax Year | Estimated Market Value | Total Tax |
|---|---|---|
| Currently not available. | ||
Data powered by ATTOM Data Solutions. Copyright© 2025. Information deemed reliable but not guaranteed.
Schools
Schools nearby 2527 Linda Knoll Lane
| Schools in attendance boundaries | Grades | Distance | Rating |
|---|---|---|---|
| Loading... | |||
| Schools nearby | Grades | Distance | Rating |
|---|---|---|---|
| Loading... | |||
Data powered by ATTOM Data Solutions. Copyright© 2025. Information deemed reliable but not guaranteed.
The schools shown represent both the assigned schools and schools by distance based on local school and district attendance boundaries. Attendance boundaries change based on various factors and proximity does not guarantee enrollment eligibility. Please consult your real estate agent and/or the school district to confirm the schools this property is zoned to attend. Information is deemed reliable but not guaranteed.
SchoolDigger ® Rating
The SchoolDigger rating system is a 1-5 scale with 5 as the highest rating. SchoolDigger ranks schools based on test scores supplied by each state's Department of Education. They calculate an average standard score by normalizing and averaging each school's test scores across all tests and grades.
Coming soon properties will soon be on the market, but are not yet available for showings.