2529 Lancaster Drive Sun City Center, FL 33573
For Sale MLS# TB8367575
2 beds 2 baths 1,359 sq ft Condo
Details for 2529 Lancaster Drive
MLS# TB8367575
Description for 2529 Lancaster Drive, Sun City Center, FL, 33573
Welcome to this charming 2/2 condo in the desirable Lancaster I Association of Sun City Center's Kings Point! Featuring beautiful laminate flooring throughout, with tile in the kitchen, this home offers both style and convenience. The spacious kitchen boasts plenty of cabinet space and ample lighting, perfect for cooking and entertaining. You'll enjoy the open feel with a living room, family room, and dining area. The primary bedroom includes a walk-in closet and a private bathroom for added comfort. A split-bedroom layout offers privacy for all. Additional highlights include a garage with washer and dryer hookups for ease of living. You’ll love the gated community of Kings Point, which has amazing facilities, pools, clubs and events just waiting for you to enjoy. Located between Sarasota and Tampa, this home is perfectly positioned for a convenient ride to airports, great shopping, dining, and professional entertainment. With easy access to award-winning, sandy beaches, you’ll experience the best of all worlds—without the stress of big city life. Leave the hustle behind and embrace a new chapter in Sun City Center, Florida, the state's top-ranked and most affordable 55+ retirement community. Don't miss out on this fantastic opportunity in the heart of Kings Point!
Listing Information
Property Type: Residential, Condominium
Status: Active
Bedrooms: 2
Bathrooms: 2
Lot Size: 0.05 Acres
Square Feet: 1,359 sq ft
Year Built: 1987
Garage: Yes
Stories: 1 Story
Construction: Block,Stucco
Subdivision: Lancaster I Condo
Foundation: Slab
County: Hillsborough
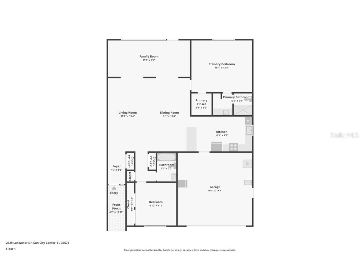
Room Information
Main Floor
Porch: 11.11x4.7
Foyer: 8.6x4.7
Family Room: 9.7x21.9
Dining Room: 19.4x9.1
Bedroom 2: 11.3x10.1
Living Room: 19.4x12.8
Kitchen: 9.2x16.4
Primary Bedroom: 13.8x16.1
Bathrooms
Full Baths: 2
Additonal Room Information
Laundry: In Garage
Interior Features
Appliances: Dishwasher, Microwave, Range, Refrigerator
Flooring: Ceramic Tile,Laminate
Doors/Windows: Skylight(s)
Accessibility: Wheelchair Access
Additional Interior Features: Eat-In Kitchen, Split Bedrooms, Ceiling Fan(s), Solid Surface Counters, Wood Cabinets, Open Floorplan, Skylights, Built-in Features, High Ceilings, Living/Dining Room
Utilities
Water: Public
Sewer: Public Sewer
Other Utilities: Cable Available,Electricity Available
Cooling: Ceiling Fan(s), Central Air
Heating: Central
Exterior / Lot Features
Attached Garage: Attached Garage
Garage Spaces: 2
Roof: Shingle
Pool: Association, Community
Additional Exterior/Lot Features: Other, Covered, Flat, Level, Landscaped, City Lot, Buyer Approval Required, Outside City Limits
Community Features
Community Features: Community Mailbox, Clubhouse, Restaurant, Fitness, Golf Carts OK, Gated, Golf, Handicap Access, Tennis Court(s), Pool, Sidewalks
Security Features: Gated Community, Gated with Guard
Association Amenities: Recreation Facilities, Tennis Court(s), Clubhouse, Fitness Center, Golf Course, Cable TV, Pool, Shuffleboard Court, Maintenance Grounds, Gated, Racquetball, Pickleball
HOA Dues Include: Maintenance Structure, Pool(s), Pest Control, Reserve Fund, Road Maintenance, Water, Internet, Cable TV, Security, Sewer, Recreation Facilities
Driving Directions
Heading East on College Ave towards Sun City Center, right onto Kings Blvd, left onto Langley Dr, right onto Lancaster Dr, home is on the right.
Financial Considerations
Terms: Cash,Conventional
Tax/Property ID: U-14-32-19-1ZD-000000-00042.0
Tax Amount: 3346.7
Tax Year: 2024
A broker reciprocity listing courtesy: KELLER WILLIAMS SOUTH SHORE
Based on information provided by Stellar MLS as distributed by the MLS GRID. Information from the Internet Data Exchange is provided exclusively for consumers’ personal, non-commercial use, and such information may not be used for any purpose other than to identify prospective properties consumers may be interested in purchasing. This data is deemed reliable but is not guaranteed to be accurate by Edina Realty, Inc., or by the MLS. Edina Realty, Inc., is not a multiple listing service (MLS), nor does it offer MLS access.
Copyright 2026 Stellar MLS as distributed by the MLS GRID. All Rights Reserved.
Payment Calculator
Interest rate and annual percentage rate (APR) are based on current market conditions, are for informational purposes only, are subject to change without notice and may be subject to pricing add-ons related to property type, loan amount, loan-to-value, credit score and other variables. Estimated closing costs used in the APR calculation are assumed to be paid by the borrower at closing. If the closing costs are financed, the loan, APR and payment amounts will be higher. If the down payment is less than 20%, mortgage insurance may be required and could increase the monthly payment and APR. Contact us for details. Additional loan programs may be available. Accuracy is not guaranteed, and all products may not be available in all borrower's geographical areas and are based on their individual situation. This is not a credit decision or a commitment to lend.
Sales History & Tax Summary for 2529 Lancaster Drive
Sales History
| Date | Price | |
|---|---|---|
| Currently not available. | ||
Tax Summary
| Tax Year | Estimated Market Value | Total Tax |
|---|---|---|
| Currently not available. | ||
Data powered by ATTOM Data Solutions. Copyright© 2026. Information deemed reliable but not guaranteed.
Schools
Schools nearby 2529 Lancaster Drive
| Schools in attendance boundaries | Grades | Distance | Rating |
|---|---|---|---|
| Loading... | |||
| Schools nearby | Grades | Distance | Rating |
|---|---|---|---|
| Loading... | |||
Data powered by ATTOM Data Solutions. Copyright© 2026. Information deemed reliable but not guaranteed.
The schools shown represent both the assigned schools and schools by distance based on local school and district attendance boundaries. Attendance boundaries change based on various factors and proximity does not guarantee enrollment eligibility. Please consult your real estate agent and/or the school district to confirm the schools this property is zoned to attend. Information is deemed reliable but not guaranteed.
SchoolDigger ® Rating
The SchoolDigger rating system is a 1-5 scale with 5 as the highest rating. SchoolDigger ranks schools based on test scores supplied by each state's Department of Education. They calculate an average standard score by normalizing and averaging each school's test scores across all tests and grades.
Coming soon properties will soon be on the market, but are not yet available for showings.