25393 Durango Court Punta Gorda, FL 33955
For Sale MLS# O6277939
4 beds 3 baths 2,761 sq ft Single Family
Details for 25393 Durango Court
MLS# O6277939
Description for 25393 Durango Court, Punta Gorda, FL, 33955
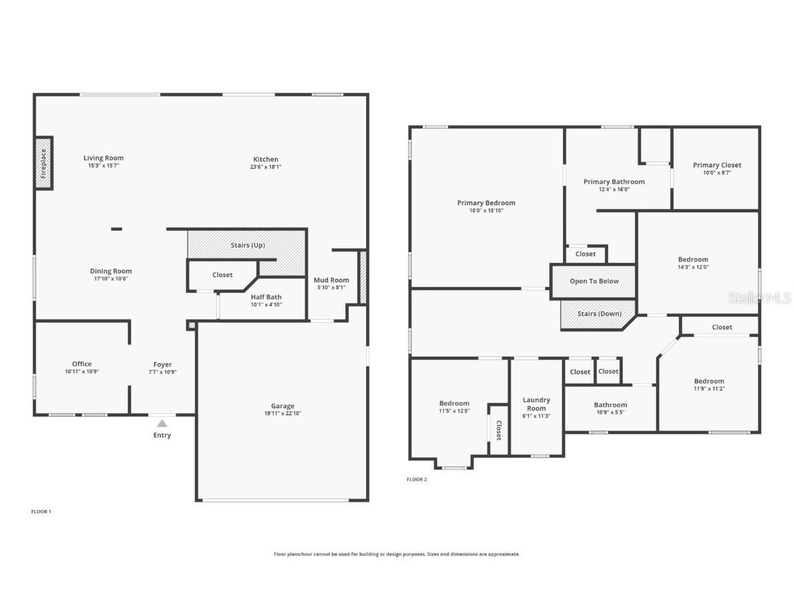
One or more photo(s) has been virtually staged. NO FLOOD ZONE!!!!!! Located in the desirable community of Burnt Store Village, this updated two story home offers modern features, a spacious layout, and excellent outdoor living space. The home features custom hardwood kitchen cabinetry, quartz countertops, and stainless steel appliances. Recent upgrades include new laminate flooring throughout, new hot water heater (2023), new roof (2022), and a new 5 ton AC unit (2021) for added efficiency and peace of mind. The extended screened in patio provides approximately 43 ft x 17 ft of under roof outdoor space, designed with a pine tongue and groove ceiling, recessed lighting, outdoor ceiling fans, Bluetooth speakers, and an electric outdoor fireplace ready for final touches, ideal for year around enjoyment. Inside, the open concept main living area is designed for functionality and flow. Upstairs, you’ll find a bonus living area and a convenient laundry room. The primary suite includes a large walk in closet, walk in shower, and soaking tub. Situated on a quiet cul de sac, this property provides additional privacy while remaining close to community amenities. Burnt Store Village offers walking paths, a park, basketball court, gazebo, and lakes with fountains for residents to enjoy, all with a low annual HOA fee of $220. For boating enthusiasts, Burnt Store Marina is only 2 miles away, offering direct access to Charlotte Harbor, nearby islands, and the Gulf of America. Schedule a showing today and see everything this updated home and community have for you.
Listing Information
Property Type: Residential, Single Family Residence
Status: Active
Bedrooms: 4
Bathrooms: 3
Lot Size: 0.23 Acres
Square Feet: 2,761 sq ft
Year Built: 2006
Garage: Yes
Stories: 2 Story
Construction: Block,Stucco
Construction Display: New Construction
Subdivision: Punta Gorda Isles Sec 16
Foundation: Slab
County: Charlotte
Construction Status: New Construction
Room Information
Main Floor
Dining Room:
Kitchen:
Living Room:
Upper Floor
Family Room:
Laundry:
Bathroom 4:
Bathroom 3:
Bathroom 2:
Primary Bedroom:
Bathrooms
Full Baths: 2
1/2 Baths: 1
Additonal Room Information
Laundry: Upper Level, Inside, Laundry Room
Interior Features
Appliances: Microwave, Range, Refrigerator, Dishwasher
Flooring: Laminate
Doors/Windows: Blinds, Shutters
Fireplaces: Electric
Additional Interior Features: Walk-In Closet(s), Ceiling Fan(s), Living/Dining Room, Built-in Features, Upper Level Primary, Stone Counters, Open Floorplan, Wood Cabinets
Utilities
Water: Public
Sewer: Public Sewer
Other Utilities: Cable Available,Phone Available
Cooling: Ceiling Fan(s), Central Air
Heating: Electric
Exterior / Lot Features
Attached Garage: Attached Garage
Garage Spaces: 2
Roof: Shingle
Additional Exterior/Lot Features: Storm/Security Shutters, Lighting, Covered, Rear Porch, Landscaped, Cul-de-Sac, Greenbelt
Community Features
Community Features: Park, Playground, Golf Carts OK
Association Amenities: Park, Trail(s), Playground, Basketball Court
HOA Dues Include: Taxes, Common Areas, Maintenance Grounds
Homeowners Association: Yes
HOA Dues: $220 / Annually
Driving Directions
Left into the community on Alcazar Dr, left on Doredo Dr, right on Prada, Left on Durango Ct.
Financial Considerations
Terms: Cash,Conventional
Tax/Property ID: 422329457008
Tax Amount: 4543.82
Tax Year: 2024
A broker reciprocity listing courtesy: RENT 1 SALE 1 REALTY
Based on information provided by Stellar MLS as distributed by the MLS GRID. Information from the Internet Data Exchange is provided exclusively for consumers’ personal, non-commercial use, and such information may not be used for any purpose other than to identify prospective properties consumers may be interested in purchasing. This data is deemed reliable but is not guaranteed to be accurate by Edina Realty, Inc., or by the MLS. Edina Realty, Inc., is not a multiple listing service (MLS), nor does it offer MLS access.
Copyright 2025 Stellar MLS as distributed by the MLS GRID. All Rights Reserved.
Payment Calculator
Interest rate and annual percentage rate (APR) are based on current market conditions, are for informational purposes only, are subject to change without notice and may be subject to pricing add-ons related to property type, loan amount, loan-to-value, credit score and other variables. Estimated closing costs used in the APR calculation are assumed to be paid by the borrower at closing. If the closing costs are financed, the loan, APR and payment amounts will be higher. If the down payment is less than 20%, mortgage insurance may be required and could increase the monthly payment and APR. Contact us for details. Additional loan programs may be available. Accuracy is not guaranteed, and all products may not be available in all borrower's geographical areas and are based on their individual situation. This is not a credit decision or a commitment to lend.
Sales History & Tax Summary for 25393 Durango Court
Sales History
| Date | Price | Change |
|---|---|---|
| Currently not available. | ||
Tax Summary
| Tax Year | Estimated Market Value | Total Tax |
|---|---|---|
| Currently not available. | ||
Data powered by ATTOM Data Solutions. Copyright© 2025. Information deemed reliable but not guaranteed.
Schools
Schools nearby 25393 Durango Court
| Schools in attendance boundaries | Grades | Distance | Rating |
|---|---|---|---|
| Loading... | |||
| Schools nearby | Grades | Distance | Rating |
|---|---|---|---|
| Loading... | |||
Data powered by ATTOM Data Solutions. Copyright© 2025. Information deemed reliable but not guaranteed.
The schools shown represent both the assigned schools and schools by distance based on local school and district attendance boundaries. Attendance boundaries change based on various factors and proximity does not guarantee enrollment eligibility. Please consult your real estate agent and/or the school district to confirm the schools this property is zoned to attend. Information is deemed reliable but not guaranteed.
SchoolDigger ® Rating
The SchoolDigger rating system is a 1-5 scale with 5 as the highest rating. SchoolDigger ranks schools based on test scores supplied by each state's Department of Education. They calculate an average standard score by normalizing and averaging each school's test scores across all tests and grades.
Coming soon properties will soon be on the market, but are not yet available for showings.