2545 S Atlantic Avenue #102 Daytona Beach Shores, FL 32118 - ATLANTIC OCEAN
For Sale MLS# V4943471
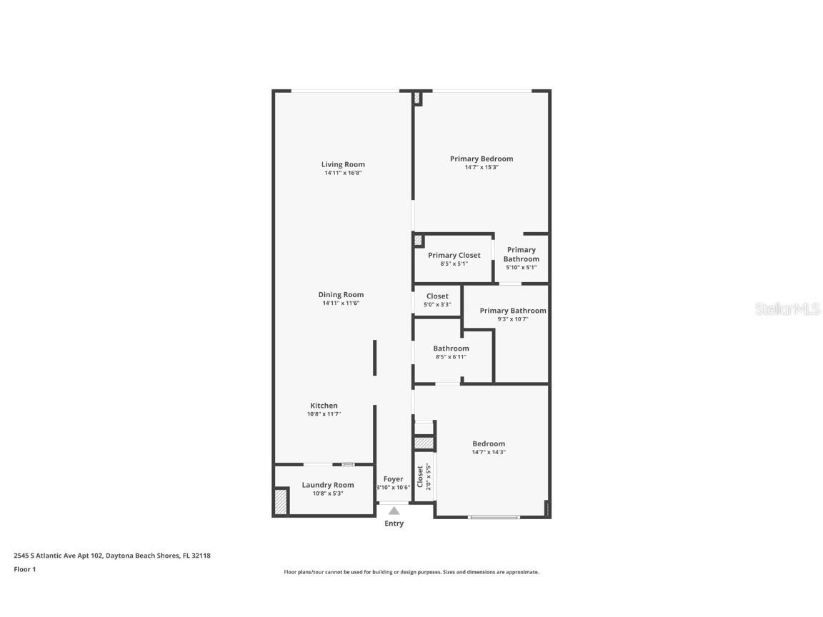
2 beds 2 baths 1,380 sq ft Condo
Details for 2545 S Atlantic Avenue #102
MLS# V4943471
Description for 2545 S Atlantic Avenue #102, Daytona Beach Shores, FL, 32118 - ATLANTIC OCEAN
Experience unparalleled luxury at The Peninsula Condominium, an oceanfront gem in Daytona Beach Shores, voted the best condo building in the Shores for 2022, 2023, and 2024. This stunning first-floor, furnished 2-bedroom, 2-bathroom residence offers breathtaking Atlantic Ocean views from the primary bedroom and living room, complemented by all hurricane-impact windows and sliding doors. Step into an open concept living/dining room combo with a kitchen breakfast bar, pantry, in-unit laundry, and spacious bedrooms. Walk out your sliding doors to a large patio enveloped by a lush green lawn, perfect for relaxation. The Peninsula redefines elegance with its atrium featuring an indoor river and waterfall, a penthouse club room with panoramic views, an indoor heated pool, outdoor pool, inground heated spa, outdoor grills, fitness center, billiards, ping pong, library, and card room. With all assessments paid, a robust building budget, and recent restoration, this community is as financially sound as it is luxurious. Ideally located near shopping, dining, and entertainment, this is coastal living at its finest. Don't miss this rare opportunity to own a piece of paradise! Schedule your private tour today and seize the chance to live in unmatched luxury.
Listing Information
Property Type: Residential, Condominium
Status: Active
Bedrooms: 2
Bathrooms: 2
Lot Size: 3.11 Acres
Square Feet: 1,380 sq ft
Year Built: 1992
Garage: Yes
Stories: 1 Story
Construction: Block,Concrete
Subdivision: Peninsula Condo
Foundation: Other
County: Volusia
Room Information
Main Floor
Porch: 5.5x26
Dining Room:
Living Room:
Kitchen: 11.5x9.5
Bedroom 1: 11.5x13.5
Primary Bedroom: 13.5x14
Bathrooms
Full Baths: 2
Additonal Room Information
Laundry: Inside, Laundry Room, Washer Hookup, Electric Dryer Hookup
Interior Features
Appliances: Electric Water Heater, Range, Refrigerator, Dishwasher, Disposal, Microwave
Flooring: Carpet,Tile
Additional Interior Features: Ceiling Fan(s), Walk-In Closet(s), Living/Dining Room, Main Level Primary
Utilities
Water: Public
Sewer: Public Sewer
Other Utilities: Cable Connected,Electricity Connected,Sewer Connected,Water Connected
Cooling: Ceiling Fan(s), Central Air
Heating: Central
Exterior / Lot Features
Attached Garage: Attached Garage
Garage Spaces: 1
Parking Description: Covered, Open, Guest
Roof: Other
Pool: Community
Lot View: Beach,Ocean,Water
Fencing: fenced
Additional Exterior/Lot Features: Outdoor Grill, Lighting, Other, Storage, Buyer Approval Required
Waterfront Details
Standard Water Body: ATLANTIC OCEAN
Water Front Features: Beach Access, Gulf Access
Community Features
Community Features: Fitness, Sidewalks, Pool, Clubhouse
Security Features: Fire Sprinkler System, Key Card Entry
HOA Dues Include: Insurance, Maintenance Grounds, Pest Control, Sewer, Cable TV, Trash, Water, Taxes, Common Areas, Maintenance Structure, Pool(s)
Homeowners Association: Yes
HOA Dues: $850 / Monthly
Driving Directions
North of the Dunlawton Bridge. Turn left onto S. Atlantic Ave , The Peninsula condo is approximately 3 miles on the right.
Financial Considerations
Terms: Cash,Conventional
Tax/Property ID: 5322-46-01-0102
Tax Amount: 5420.85
Tax Year: 2024
A broker reciprocity listing courtesy: ADAMS, CAMERON & CO., REALTORS
Based on information provided by Stellar MLS as distributed by the MLS GRID. Information from the Internet Data Exchange is provided exclusively for consumers’ personal, non-commercial use, and such information may not be used for any purpose other than to identify prospective properties consumers may be interested in purchasing. This data is deemed reliable but is not guaranteed to be accurate by Edina Realty, Inc., or by the MLS. Edina Realty, Inc., is not a multiple listing service (MLS), nor does it offer MLS access.
Copyright 2026 Stellar MLS as distributed by the MLS GRID. All Rights Reserved.
Payment Calculator
Interest rate and annual percentage rate (APR) are based on current market conditions, are for informational purposes only, are subject to change without notice and may be subject to pricing add-ons related to property type, loan amount, loan-to-value, credit score and other variables. Estimated closing costs used in the APR calculation are assumed to be paid by the borrower at closing. If the closing costs are financed, the loan, APR and payment amounts will be higher. If the down payment is less than 20%, mortgage insurance may be required and could increase the monthly payment and APR. Contact us for details. Additional loan programs may be available. Accuracy is not guaranteed, and all products may not be available in all borrower's geographical areas and are based on their individual situation. This is not a credit decision or a commitment to lend.
Sales History & Tax Summary for 2545 S Atlantic Avenue #102
Sales History
| Date | Price | |
|---|---|---|
| Currently not available. | ||
Tax Summary
| Tax Year | Estimated Market Value | Total Tax |
|---|---|---|
| Currently not available. | ||
Data powered by ATTOM Data Solutions. Copyright© 2026. Information deemed reliable but not guaranteed.
Schools
Schools nearby 2545 S Atlantic Avenue #102
| Schools in attendance boundaries | Grades | Distance | Rating |
|---|---|---|---|
| Loading... | |||
| Schools nearby | Grades | Distance | Rating |
|---|---|---|---|
| Loading... | |||
Data powered by ATTOM Data Solutions. Copyright© 2026. Information deemed reliable but not guaranteed.
The schools shown represent both the assigned schools and schools by distance based on local school and district attendance boundaries. Attendance boundaries change based on various factors and proximity does not guarantee enrollment eligibility. Please consult your real estate agent and/or the school district to confirm the schools this property is zoned to attend. Information is deemed reliable but not guaranteed.
SchoolDigger ® Rating
The SchoolDigger rating system is a 1-5 scale with 5 as the highest rating. SchoolDigger ranks schools based on test scores supplied by each state's Department of Education. They calculate an average standard score by normalizing and averaging each school's test scores across all tests and grades.
Coming soon properties will soon be on the market, but are not yet available for showings.