$1,350,000
255 SW 96th Lane Ocala, FL 34476
For Sale MLS# OM713464
3 beds 3 baths 3,187 sq ft Single Family
Details for 255 SW 96th Lane
MLS# OM713464
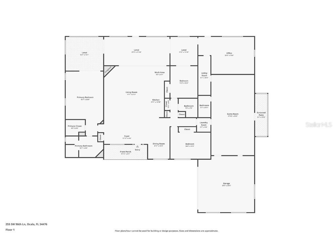
Description for 255 SW 96th Lane, Ocala, FL, 34476
Ocala sportsman’s paradise, seven-plus acres, seven-bay garage and room to roam. Do you own your business? Need space for a home office, trophy room, game room or just room to breathe? Welcome to your ultimate Florida spread, a fully gated, nearly 7.5-acre estate in the heart of Ocala horse country, where luxury meets utility and every inch is built to impress. This is more than a home, it’s a lifestyle base camp. With over 4,000 square feet of upgraded living space, this three-bedroom, three-bath estate is packed with features that work as hard as you do. Whether you're running a business, collecting cars or just want a place to unwind, this property delivers. The workshop and garage setup you’ve been dreaming of includes seven-bay detached garage with a walk-in cooler, 1/2 bath and dedicated storage, ideal for tools, toys, boats or a serious home-based business. Massive detached workshop for projects, fabrication or gear storage. Two-car metal carport for overflow or guest parking. Electric run throughout the perimeter, ideal for holiday lighting, security or future expansion. Inside the home where comfort meets capability, including a chef’s kitchen with stainless appliances, center island, double sink, trash compactor and built-in desk. Stone wood-burning fireplace in the living room, with sliders to the Florida room. Primary suite with walk-in closet, private bonus room, and spa-style bath with dual vanities and glass-block walk-in shower. Fully furnished game room with pool table, bar stools and lounge seating, ready for poker night or game day. Dedicated office, two bonus rooms, and a Florida room for relaxing or entertaining. Upgrades that matter include new metal roof (2023), Anderson Windows (2019) for energy efficiency and sound control, new water tank (2025) and water heater (2023), four air-conditioning units for zoned comfort, water softener, new blinds and drapery included. The property is private, gated and gorgeous, with 7.34 acres of high-and-dry, usable land, fully fenced with a stunning electric gate at the entry. Gazebo and lanai for morning coffee or evening cocktails. Fenced dog run to keep your pets safe and happy. This is one of Ocala’s rarest finds, acreage, square footage and outbuildings that actually match the scale of the land. Whether you're a sportsman, entrepreneur or just want to live large with no compromises, this estate checks every box. Schedule your private showing today and see what it feels like to own a piece of Florida that works as hard as you do.
Listing Information
Property Type: Residential, Single Family Residence
Status: Active
Bedrooms: 3
Bathrooms: 3
Lot Size: 7.34 Acres
Square Feet: 3,187 sq ft
Year Built: 1991
Garage: Yes
Stories: 1 Story
Construction: Block,Stucco
Subdivision: Shady Acres
Foundation: Slab
County: Marion
School Information
Elementary: Belleview-Santos Elem. School
Middle: Horizon Academy/Mar Oaks
High: West Port High School
Room Information
Main Floor
Workshop: 68x91
Bedroom 2: 13x17
Dining Room: 17x10
Primary Bedroom: 26x16
Living Room: 32x19
Kitchen: 21x13
Porch: 12x62
Game Room: 34x17
Florida Room: 12x27
Laundry: 5x5
Bonus Room: 14x16
Bonus Room: 12x11
Office: 15x23
Bedroom 3: 13x11
Bathrooms
Full Baths: 3
Additonal Room Information
Laundry: Inside
Interior Features
Appliances: Convection Oven, Microwave, Range, Refrigerator, Trash Compactor, Dishwasher, Disposal, Dryer, Washer
Flooring: Carpet,Ceramic Tile
Fireplaces: Wood Burning
Additional Interior Features: Split Bedrooms, Walk-In Closet(s), Built-in Features, High Ceilings, Ceiling Fan(s), Vaulted Ceiling(s), Main Level Primary, Open Floorplan, Wood Cabinets, Kitchen/Family Room Combo
Utilities
Water: Well
Sewer: Septic Tank
Other Utilities: Cable Available,Electricity Available,Electricity Connected
Cooling: Ceiling Fan(s), Central Air
Heating: Central
Exterior / Lot Features
Attached Garage: Attached Garage
Garage Spaces: 2
Parking Description: driveway, Workshop in Garage
Roof: Metal
Lot View: Trees/Woods
Fencing: Masonry, Vinyl, Other
Additional Exterior/Lot Features: Lighting, Storage, Dog Run, Patio, Flat, Level, Landscaped, Cleared, Outside City Limits
Out Buildings: Gazebo, Other, Workshop, Storage, Barn(s)
Driving Directions
Head north on S Hwy 475 N toward SE 135th St/SE County Hwy 484, Turn left onto SW 96th Ln, Destination will be on the left.
Financial Considerations
Terms: Cash,Conventional,VA Loan
Tax/Property ID: 36783-000-00
Tax Amount: 5085.27
Tax Year: 2025
A broker reciprocity listing courtesy: PREMIER SOTHEBY'S INTERNATIONAL REALTY
Based on information provided by Stellar MLS as distributed by the MLS GRID. Information from the Internet Data Exchange is provided exclusively for consumers’ personal, non-commercial use, and such information may not be used for any purpose other than to identify prospective properties consumers may be interested in purchasing. This data is deemed reliable but is not guaranteed to be accurate by Edina Realty, Inc., or by the MLS. Edina Realty, Inc., is not a multiple listing service (MLS), nor does it offer MLS access.
Copyright 2025 Stellar MLS as distributed by the MLS GRID. All Rights Reserved.
Payment Calculator
Interest rate and annual percentage rate (APR) are based on current market conditions, are for informational purposes only, are subject to change without notice and may be subject to pricing add-ons related to property type, loan amount, loan-to-value, credit score and other variables. Estimated closing costs used in the APR calculation are assumed to be paid by the borrower at closing. If the closing costs are financed, the loan, APR and payment amounts will be higher. If the down payment is less than 20%, mortgage insurance may be required and could increase the monthly payment and APR. Contact us for details. Additional loan programs may be available. Accuracy is not guaranteed, and all products may not be available in all borrower's geographical areas and are based on their individual situation. This is not a credit decision or a commitment to lend.
Sales History & Tax Summary for 255 SW 96th Lane
Sales History
| Date | Price | Change |
|---|---|---|
| Currently not available. | ||
Tax Summary
| Tax Year | Estimated Market Value | Total Tax |
|---|---|---|
| Currently not available. | ||
Data powered by ATTOM Data Solutions. Copyright© 2025. Information deemed reliable but not guaranteed.
Schools
Schools nearby 255 SW 96th Lane
| Schools in attendance boundaries | Grades | Distance | Rating |
|---|---|---|---|
| Loading... | |||
| Schools nearby | Grades | Distance | Rating |
|---|---|---|---|
| Loading... | |||
Data powered by ATTOM Data Solutions. Copyright© 2025. Information deemed reliable but not guaranteed.
The schools shown represent both the assigned schools and schools by distance based on local school and district attendance boundaries. Attendance boundaries change based on various factors and proximity does not guarantee enrollment eligibility. Please consult your real estate agent and/or the school district to confirm the schools this property is zoned to attend. Information is deemed reliable but not guaranteed.
SchoolDigger ® Rating
The SchoolDigger rating system is a 1-5 scale with 5 as the highest rating. SchoolDigger ranks schools based on test scores supplied by each state's Department of Education. They calculate an average standard score by normalizing and averaging each school's test scores across all tests and grades.
Coming soon properties will soon be on the market, but are not yet available for showings.