256 New Gate Loop Lake Mary, FL 32746
For Sale MLS# O6245690
5 beds 6 baths 5,772 sq ft Single Family
Details for 256 New Gate Loop
MLS# O6245690
Description for 256 New Gate Loop, Lake Mary, FL, 32746
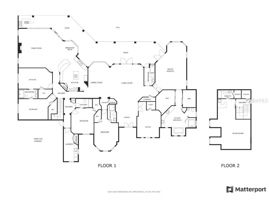
Price Improved! Welcome to Heathrow Woods, Lake Mary’s premier 24-hour guard-gated community, renowned for its collection of bespoke luxury residences. In this distinguished enclave, 256 New Gate Loop presents a rare opportunity to own an expansive single-story estate, encompassing an impressive 5,800 square feet of refined living space. This magnificent home features five generously sized bedrooms, six opulent baths, an impressive office, a large theater and a spacious three-car garage, all on over an acre of beautifully landscaped grounds. This residence boasts breathtaking water views, framed by numerous windows and sliding glass doors that grace the rear of the home, creating an enchanting atmosphere highlighted by a stunning lighted fountain, which enhances the ambiance day and night. As you enter, you are welcomed by soaring ceilings adorned with intricate crown molding, showcasing the voluminous living and dining areas that exude elegance. The sprawling owner’s retreat overlooks the serene pool and pond, featuring two walk-in closets and a luxurious bath, complete with a spacious jetted tub, a walk-in shower and dual vanities for ultimate comfort. The gourmet kitchen, equipped with abundant counter space, overlooks the inviting family room and fireplace, offering panoramic views of the pool and pond, ideal for culinary creations and casual gatherings. The main floor also includes two exquisite bedroom suites, two additional bedrooms sharing a well-appointed Jack-and-Jill bath, and a generously sized laundry room. Ascend to the upper level, where the theater room, complete with a wet bar and full bath, awaits. This versatile space could effortlessly transform into an additional guest suite if desired. The outdoor amenities feature a new summer kitchen and a vast covered lanai, ideal for entertaining family and friends amid the tranquil surroundings. Heathrow Woods enjoys an enviable location, mere moments from upscale shopping, gourmet dining, healthcare facilities, and convenient access to Interstate 4 and the surrounding beltways, providing seamless connectivity to downtown Orlando, world-renowned attractions, pristine beaches and multiple airports. Experience the pinnacle of luxury living in this distinguished community. Your dream home awaits.
Listing Information
Property Type: Residential, Single Family Residence
Status: Active
Bedrooms: 5
Bathrooms: 6
Lot Size: 1.09 Acres
Square Feet: 5,772 sq ft
Year Built: 1996
Garage: Yes
Stories: 2 Story
Construction: Block,Stucco
Subdivision: Heathrow Woods
Foundation: Slab
County: Seminole
Room Information
Main Floor
Porch: 12x82
Dinette: 9x9
Kitchen: 16x19
Dining Room: 13x17
Living Room: 15x19
Office: 14x15
Foyer: 11x12
Bedroom 5: 13x15
Bedroom 4: 12x16
Bedroom 3: 12x19
Bedroom 2: 14x19
Primary Bathroom: 16x18
Primary Bedroom: 18x27
Family Room: 20x22
Upper Floor
Media Room: 22x30
Bathrooms
Full Baths: 6
Additonal Room Information
Laundry: Inside, Laundry Room
Interior Features
Appliances: Exhaust Fan, Electric Water Heater, Refrigerator, Cooktop, Dishwasher, Disposal
Flooring: Carpet,Engineered Hardwood,Tile
Doors/Windows: Window Treatments
Fireplaces: Family Room
Additional Interior Features: Wet Bar, Eat-In Kitchen, Loft, Walk-In Closet(s), Tray Ceiling(s), Window Treatments, Built-in Features, High Ceilings, Kitchen/Family Room Combo, Crown Molding, Open Floorplan, Stone Counters, Wood Cabinets, Main Level Primary, Living/Dining Room
Utilities
Water: Public
Sewer: Public Sewer
Other Utilities: Cable Connected,Electricity Connected,High Speed Internet Available,Propane,Sewer Connected,Underground Utilities,Water Connected
Cooling: Zoned, Central Air
Heating: Zoned, Central
Exterior / Lot Features
Attached Garage: Attached Garage
Garage Spaces: 3
Parking Description: Garage, Garage Door Opener, driveway, Garage Faces Side, Circular Driveway
Roof: Tile
Pool: In Ground, Screen Enclosure, Gunite
Lot View: Pond,Water
Additional Exterior/Lot Features: Sprinkler/Irrigation, Outdoor Kitchen, Irregular Lot, Level, Landscaped, Cleared, Flat
Out Buildings: Outdoor Kitchen
Community Features
Community Features: Street Lights, Gated
Security Features: Security System, Gated Community, Smoke Detector(s), Gated with Guard
HOA Dues Include: Reserve Fund, Road Maintenance, Common Areas, Association Management, Security, Taxes
Homeowners Association: Yes
HOA Dues: $800 / Quarterly
Driving Directions
From Lake Mary Blvd, N on Markham Woods Rd, L on Bridgewater Dr, L on New Gate Loop.
Financial Considerations
Terms: Cash,Conventional
Tax/Property ID: 11-20-29-5KV-0000-1020
Tax Amount: 12168.57
Tax Year: 2023
A broker reciprocity listing courtesy: PREMIER SOTHEBYS INT'L REALTY
Based on information provided by Stellar MLS as distributed by the MLS GRID. Information from the Internet Data Exchange is provided exclusively for consumers’ personal, non-commercial use, and such information may not be used for any purpose other than to identify prospective properties consumers may be interested in purchasing. This data is deemed reliable but is not guaranteed to be accurate by Edina Realty, Inc., or by the MLS. Edina Realty, Inc., is not a multiple listing service (MLS), nor does it offer MLS access.
Copyright 2025 Stellar MLS as distributed by the MLS GRID. All Rights Reserved.
Payment Calculator
Interest rate and annual percentage rate (APR) are based on current market conditions, are for informational purposes only, are subject to change without notice and may be subject to pricing add-ons related to property type, loan amount, loan-to-value, credit score and other variables. Estimated closing costs used in the APR calculation are assumed to be paid by the borrower at closing. If the closing costs are financed, the loan, APR and payment amounts will be higher. If the down payment is less than 20%, mortgage insurance may be required and could increase the monthly payment and APR. Contact us for details. Additional loan programs may be available. Accuracy is not guaranteed, and all products may not be available in all borrower's geographical areas and are based on their individual situation. This is not a credit decision or a commitment to lend.
Sales History & Tax Summary for 256 New Gate Loop
Sales History
| Date | Price | Change |
|---|---|---|
| Currently not available. | ||
Tax Summary
| Tax Year | Estimated Market Value | Total Tax |
|---|---|---|
| Currently not available. | ||
Data powered by ATTOM Data Solutions. Copyright© 2025. Information deemed reliable but not guaranteed.
Schools
Schools nearby 256 New Gate Loop
| Schools in attendance boundaries | Grades | Distance | Rating |
|---|---|---|---|
| Loading... | |||
| Schools nearby | Grades | Distance | Rating |
|---|---|---|---|
| Loading... | |||
Data powered by ATTOM Data Solutions. Copyright© 2025. Information deemed reliable but not guaranteed.
The schools shown represent both the assigned schools and schools by distance based on local school and district attendance boundaries. Attendance boundaries change based on various factors and proximity does not guarantee enrollment eligibility. Please consult your real estate agent and/or the school district to confirm the schools this property is zoned to attend. Information is deemed reliable but not guaranteed.
SchoolDigger ® Rating
The SchoolDigger rating system is a 1-5 scale with 5 as the highest rating. SchoolDigger ranks schools based on test scores supplied by each state's Department of Education. They calculate an average standard score by normalizing and averaging each school's test scores across all tests and grades.
Coming soon properties will soon be on the market, but are not yet available for showings.