$925,000
26 Golf View Drive Englewood, FL 34223
For Sale MLS# N6141336
3 beds 4 baths 2,835 sq ft Single Family
Details for 26 Golf View Drive
MLS# N6141336
Description for 26 Golf View Drive, Englewood, FL, 34223
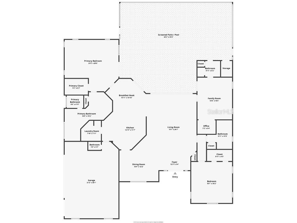
YOUR FLORIDA OASIS AWAITS!! Come Enjoy Luxury Resort Style Living in Boca Royale Golf and Country Club. Scenic and Tranquil Views Await you on this Perfectly Situated and Very Private Oversized Lot (.41 acres) with a straight-on Lake View. Both the circular driveway and 3 Car Attached Oversized Side Garage are a Bonus as well. You will Truly be Mesmerized by The Old Florida Charm, Grand Oak Trees, and lush landscaping which also includes a Mature Avocado and Mango Tree. This Stunning Custom Built Waterfront Pool Home Presents Quite a Unique Opportunity, and was extremely well built and Well maintained keeping it's original Charm, Character and Style with the Enhancements of well over $340,000 + in Improvements and Upgrades. The Roof and A/C were both replaced in 2023. This EXQUISITE home was built with a wonderful Split Floor Plan, as well as a Very Open Floor Plan and is Ideal for entertaining, both indoors and outdoors. Upon entering, you will most certainly appreciate the Grande 14 foot high ceilings in the Oversized 19 foot by 25 foot Great Room, as well as the wall of sliders leading to the Spectacular Views of the Pool and Lake. The Extra Large and Magnificent Covered Lanai area (13 ft. x 28 ft.) creates another wonderful YEAR ROUND Florida Outdoor Entertaining Area. The Custom Built Outdoor Kitchen with it's Custom Wood Front, Beautiful (Counter Height) Granite Countertops and Ceramic Farmers Sink is also truly AMAZING and creates another gathering and entertaining area, while the Chef is Grilling. The Entire Outside Pool Area has been Totally Enhanced with a Brand New Pool Cage and Screens (2024) . The Over-Sized and Heated Pool (14 ft. x 29 ft.) was recently resurfaced with a Pebble-Tech finish, along with New Blue Accent Tiles and a New Pool Pump. The Luxurious White Leathered Marble Flooring throughout the entire Pool Area is absolutely Stunning and adds so much to the entire outdoor Oasis. Throughout this home you will also find and truly appreciate all of the beautiful and unique custom wood work which includes CUSTOM built Chair Rails, Crown Molding, Decorative Trim, Plantation Shutters, Built- In Shelves and Closet Designs. The Kitchen is truly a Chef's Dream and also has a Dinette Area for informal dining and is also Open to both The Great Room, as well as centrally located to both the Outdoor Covered Lanai Area and The Formal Dining Room. The Oversized and Beautiful Kitchen has also been upgraded with New Custom Beautiful "Linen" Colored Wood Cabinetry, Soft Close Drawers and a Newly Built- In "Under Counter" Second Kitchen Oven, New Microwave as well as a Beautiful Neutral Tile Backsplash. The Main Living Area, Kitchen, Dinette and Formal Dining Room Areas have also been upgraded with newly installed and Exquisite Cherry Color Beautiful Water Proof flooring. The Recently Installed Hurricane Impact Sliders, Windows, and Hurricane Proof Garage Doors, as well as the 3 Electronic Remote Controlled Hurricane Screen Panels Installed (2024) in the front entry and on the Covered Lanai Area and which will Ensure Total Peace of Mind and Continued Storm Readiness for years to come. The Boca Royale Lifestyle includes Optional Golf and Racquet Memberships as well as a Fitness Center, Pet Park and a very Active and Vibrant Social Scene.. all just Minutes from Several Gulf Beaches , Shopping and Wonderful Restaurants. WELCOME HOME to BOCA ROYALE! PLEASE SCHEDULE YOUR SHOWING TODAY.. before IT'S TOO LATE.
Listing Information
Property Type: Residential, Single Family Residence
Status: Active
Bedrooms: 3
Bathrooms: 4
Lot Size: 0.41 Acres
Square Feet: 2,835 sq ft
Year Built: 1988
Garage: Yes
Stories: 1 Story
Construction: Block,Stucco
Subdivision: Boca Royale
Foundation: Slab
County: Sarasota
Room Information
Main Floor
Foyer:
Primary Bedroom:
Porch:
Laundry:
Great Room:
Kitchen:
Dining Room:
Dinette:
Bedroom 3:
Bedroom 2:
Bathrooms
Full Baths: 3
1/2 Baths: 1
Additonal Room Information
Laundry: Laundry Room
Interior Features
Appliances: Dishwasher, Dryer, Microwave, Range, Refrigerator, Built-In Oven, Washer
Flooring: Carpet,Laminate,Tile
Additional Interior Features: Ceiling Fan(s), High Ceilings, Walk-In Closet(s), Crown Molding, Open Floorplan, Chair Rail
Utilities
Water: Public
Sewer: Public Sewer
Other Utilities: High Speed Internet Available,Municipal Utilities
Cooling: Ceiling Fan(s), Central Air
Heating: Electric
Exterior / Lot Features
Attached Garage: Attached Garage
Garage Spaces: 3
Parking Description: Circular Driveway, Garage Faces Side
Roof: Shingle
Pool: Association, In Ground, Outside Bath Access, Screen Enclosure, Gunite
Lot View: Lake,Water
Additional Exterior/Lot Features: Rain Gutters, Sprinkler/Irrigation, Outdoor Kitchen, Landscaped, Buyer Approval Required
Waterfront Details
Water Front Features: Lake Front
Community Features
Community Features: Fitness, Golf Carts OK, Restaurant, Stream Seasonal, Tennis Court(s), Clubhouse, Golf, Gated
Security Features: Gated Community, Gated with Guard, Security System
Association Amenities: Pickleball, Tennis Court(s), Pool, Gated, Golf Course, Clubhouse, Fitness Center
HOA Dues Include: Trash, Association Management, Road Maintenance
Homeowners Association: Yes
HOA Dues: $1,241 / Quarterly
Driving Directions
Go to Third Entry located at intersection of 776 & Old Englewood Rd./Whittaker Stop Light. Turn east .. Go to Guard Gate and show ID if required. Once through gates, continue past first stop sign and then make a left on Raphis Royale Blvd. to Left onto Golf View Drive. Home will be on your right .. 26 Golf View Dr. Park in Circular Driveway
Financial Considerations
Terms: Cash,Conventional
Tax/Property ID: 0483120011
Tax Amount: 5026
Tax Year: 2024
A broker reciprocity listing courtesy: COLDWELL BANKER REALTY
Based on information provided by Stellar MLS as distributed by the MLS GRID. Information from the Internet Data Exchange is provided exclusively for consumers’ personal, non-commercial use, and such information may not be used for any purpose other than to identify prospective properties consumers may be interested in purchasing. This data is deemed reliable but is not guaranteed to be accurate by Edina Realty, Inc., or by the MLS. Edina Realty, Inc., is not a multiple listing service (MLS), nor does it offer MLS access.
Copyright 2025 Stellar MLS as distributed by the MLS GRID. All Rights Reserved.
Payment Calculator
Interest rate and annual percentage rate (APR) are based on current market conditions, are for informational purposes only, are subject to change without notice and may be subject to pricing add-ons related to property type, loan amount, loan-to-value, credit score and other variables. Estimated closing costs used in the APR calculation are assumed to be paid by the borrower at closing. If the closing costs are financed, the loan, APR and payment amounts will be higher. If the down payment is less than 20%, mortgage insurance may be required and could increase the monthly payment and APR. Contact us for details. Additional loan programs may be available. Accuracy is not guaranteed, and all products may not be available in all borrower's geographical areas and are based on their individual situation. This is not a credit decision or a commitment to lend.
Sales History & Tax Summary for 26 Golf View Drive
Sales History
| Date | Price | Change |
|---|---|---|
| Currently not available. | ||
Tax Summary
| Tax Year | Estimated Market Value | Total Tax |
|---|---|---|
| Currently not available. | ||
Data powered by ATTOM Data Solutions. Copyright© 2025. Information deemed reliable but not guaranteed.
Schools
Schools nearby 26 Golf View Drive
| Schools in attendance boundaries | Grades | Distance | Rating |
|---|---|---|---|
| Loading... | |||
| Schools nearby | Grades | Distance | Rating |
|---|---|---|---|
| Loading... | |||
Data powered by ATTOM Data Solutions. Copyright© 2025. Information deemed reliable but not guaranteed.
The schools shown represent both the assigned schools and schools by distance based on local school and district attendance boundaries. Attendance boundaries change based on various factors and proximity does not guarantee enrollment eligibility. Please consult your real estate agent and/or the school district to confirm the schools this property is zoned to attend. Information is deemed reliable but not guaranteed.
SchoolDigger ® Rating
The SchoolDigger rating system is a 1-5 scale with 5 as the highest rating. SchoolDigger ranks schools based on test scores supplied by each state's Department of Education. They calculate an average standard score by normalizing and averaging each school's test scores across all tests and grades.
Coming soon properties will soon be on the market, but are not yet available for showings.