260 Country Circle Drive W Port Orange, FL 32128
Pending MLS# OM700861
3 beds 2 baths 2,270 sq ft Single Family
Details for 260 Country Circle Drive W
MLS# OM700861
Description for 260 Country Circle Drive W, Port Orange, FL, 32128
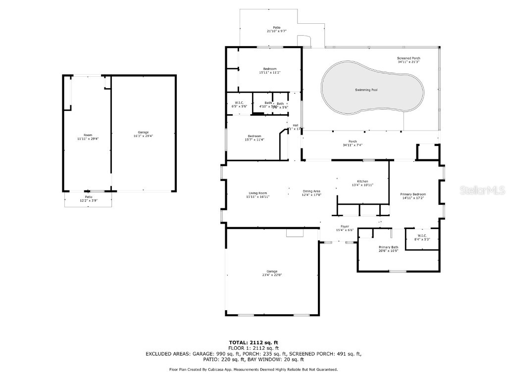
Under contract-accepting backup offers. A Quiet Place in the Country is offering a waterfront home that will satisfy a long list of wishes! The main residence offers 3 bedrooms and 2 baths in a split floor plan, a remodeled kitchen and vinyl plank flooring throughout. The kitchen includes newer stainless appliances, 42” upper cabinets, granite counters and the soft close feature for the cabinetry. The living area has vaulted ceilings and access to the covered patio overlooking the screen enclosed play pool. The primary retreat includes a large walk-in shower and a large garden tub, a walk-in closet and direct access to the patio and pool. There are 4 skylights that flood the living areas with light. The primary bathroom is handicapped accessible; the shower is 5' x 5'. The additional structure offers 320 square feet of versatile space with air conditioning and an additional garage with 464 (16 x 29) square feet for a workshop, boat storage, classic cars. Recent improvements include a new kitchen, vinyl plank flooring throughout, HVAC (2020) in the main house, HVAC 2023 in the studio, New Metal Roof in 2021 and a Custom Marching Chicken Coop. This property has not experienced any flooding.
Listing Information
Property Type: Residential, Single Family Residence
Status: Pending
Bedrooms: 3
Bathrooms: 2
Lot Size: 1.15 Acres
Square Feet: 2,270 sq ft
Year Built: 1993
Garage: Yes
Stories: 1 Story
Construction: HardiPlank Type,Wood Frame
Subdivision: Quiet Place In Country Unit 06
Foundation: Slab
County: Volusia
Room Information
Main Floor
Studio: 11.11x29.4
Bedroom 3: 11.4x15.7
Bedroom 2: 11.2x15.11
Primary Bedroom:
Kitchen: 10.11x13.4
Great Room: 17.1x29.4
Bathrooms
Full Baths: 2
Additonal Room Information
Laundry: In Garage
Interior Features
Appliances: Water Softener, Dishwasher, Disposal, Microwave, Refrigerator, Electric Water Heater
Flooring: Tile,Vinyl
Doors/Windows: Window Treatments, Skylight(s)
Accessibility: Accessible Entrance, Accessible Full Bath
Additional Interior Features: Vaulted Ceiling(s), Window Treatments, Ceiling Fan(s), Split Bedrooms, Walk-In Closet(s), Skylights, Cathedral Ceiling(s), Stone Counters, Living/Dining Room, Open Floorplan
Utilities
Water: Well
Sewer: Septic Tank
Other Utilities: Electricity Connected
Cooling: Ceiling Fan(s), Central Air
Heating: Central
Exterior / Lot Features
Attached Garage: Attached Garage
Garage Spaces: 3
Roof: Metal
Pool: In Ground
Lot View: Park/Greenbelt,Lake,Water
Additional Exterior/Lot Features: Rain Gutters, Sprinkler/Irrigation
Out Buildings: Other, Workshop
Waterfront Details
Water Front Features: Lake Privileges, Lake Front
Driving Directions
South on Tomoka Farms Road from Highway 92, Left on Ludlow Blvd. , Right on Country Circle Drive W to the property.
Financial Considerations
Terms: Cash,Conventional,FHA,VA Loan
Tax/Property ID: 6235-03-00-1190
Tax Amount: 8526.78
Tax Year: 2024
A broker reciprocity listing courtesy: FLORIDA REAL ESTATE LIFESTYLES
Based on information provided by Stellar MLS as distributed by the MLS GRID. Information from the Internet Data Exchange is provided exclusively for consumers’ personal, non-commercial use, and such information may not be used for any purpose other than to identify prospective properties consumers may be interested in purchasing. This data is deemed reliable but is not guaranteed to be accurate by Edina Realty, Inc., or by the MLS. Edina Realty, Inc., is not a multiple listing service (MLS), nor does it offer MLS access.
Copyright 2025 Stellar MLS as distributed by the MLS GRID. All Rights Reserved.
Sales History & Tax Summary for 260 Country Circle Drive W
Sales History
| Date | Price | Change |
|---|---|---|
| Currently not available. | ||
Tax Summary
| Tax Year | Estimated Market Value | Total Tax |
|---|---|---|
| Currently not available. | ||
Data powered by ATTOM Data Solutions. Copyright© 2025. Information deemed reliable but not guaranteed.
Schools
Schools nearby 260 Country Circle Drive W
| Schools in attendance boundaries | Grades | Distance | Rating |
|---|---|---|---|
| Loading... | |||
| Schools nearby | Grades | Distance | Rating |
|---|---|---|---|
| Loading... | |||
Data powered by ATTOM Data Solutions. Copyright© 2025. Information deemed reliable but not guaranteed.
The schools shown represent both the assigned schools and schools by distance based on local school and district attendance boundaries. Attendance boundaries change based on various factors and proximity does not guarantee enrollment eligibility. Please consult your real estate agent and/or the school district to confirm the schools this property is zoned to attend. Information is deemed reliable but not guaranteed.
SchoolDigger ® Rating
The SchoolDigger rating system is a 1-5 scale with 5 as the highest rating. SchoolDigger ranks schools based on test scores supplied by each state's Department of Education. They calculate an average standard score by normalizing and averaging each school's test scores across all tests and grades.
Coming soon properties will soon be on the market, but are not yet available for showings.