260 S Osceola Avenue #1005 Orlando, FL 32801 - LAKE EOLA
For Sale MLS# O6380001
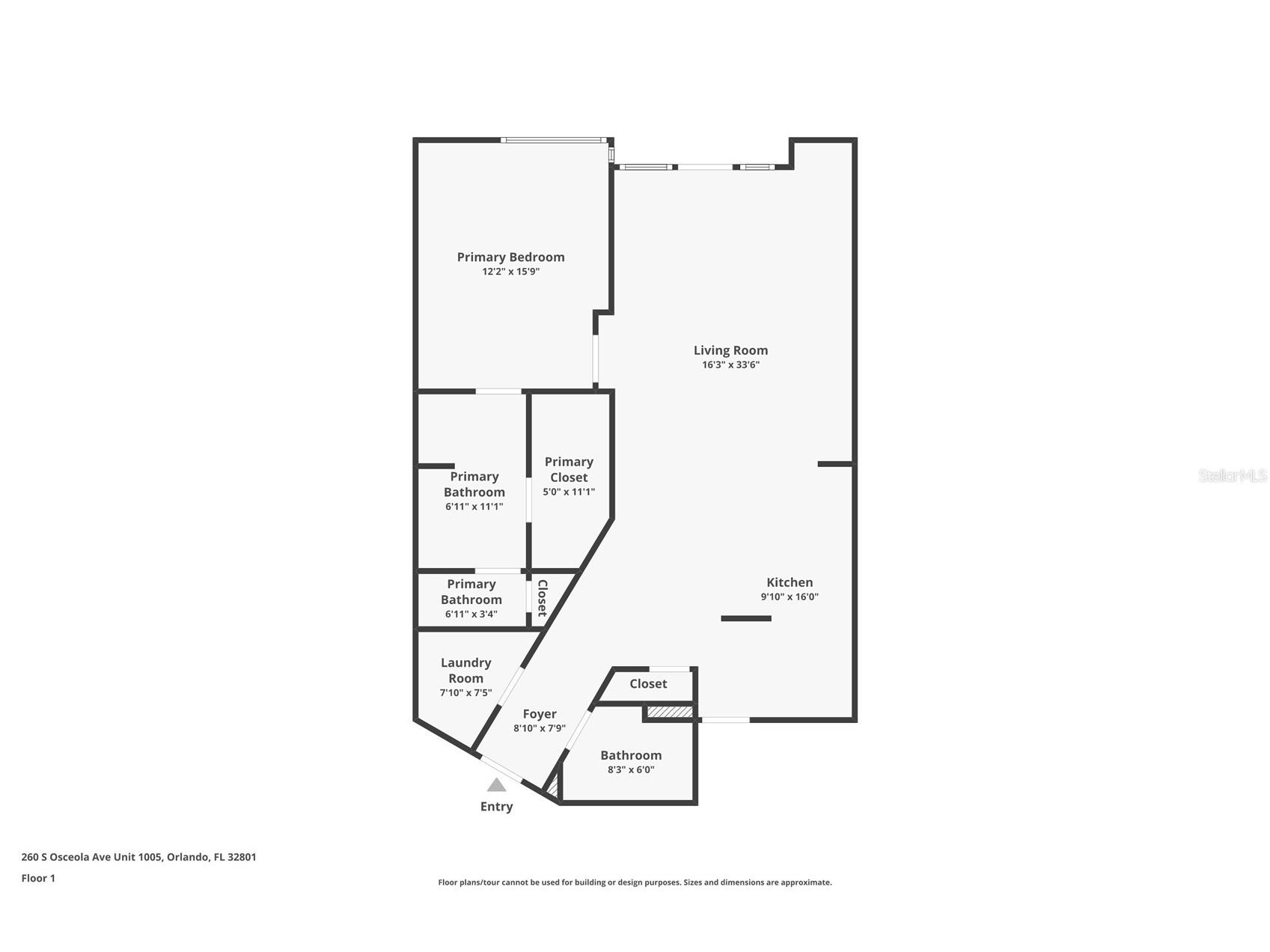
1 beds 2 baths 1,150 sq ft Condo
Details for 260 S Osceola Avenue #1005
MLS# O6380001
Description for 260 S Osceola Avenue #1005, Orlando, FL, 32801 - LAKE EOLA
Experience elevated downtown living in this beautifully maintained 1-bedroom, 2 full bathroom residence in the highly sought-after Star Tower, located in the heart of Orlando’s vibrant South Eola district. Perched on the 10th floor, this light-filled unit showcases soaring high ceilings and expansive floor-to-ceiling windows bringing the city inside, offering dynamic skyline views and an airy, open feel throughout. The modern kitchen features European cabinetry, stone countertops, and a premium appliance suite including a SubZero refrigerator, Wolf range, and Miele dishwasher, flowing seamlessly into the living and dining areas—perfect for both everyday living and entertaining. Ample storage throughout ensures everything has its place. Step out onto your private balcony and take in the energy of downtown—ideal for morning coffee or unwinding in the evening. The spacious bedroom offers generous closet space and natural light, while the well-appointed baths and in-unit laundry add convenience and comfort. Star Tower is known for its contemporary design and boutique feel, offering residents a resort-style pool, state-of-the-art fitness center, rooftop amenities, concierge services, and secure parking. One deeded parking space is included. Just steps from Lake Eola, restaurants, nightlife, and all that downtown Orlando has to offer, this is an exceptional opportunity to own in one of the city’s most desirable locations. Live where lifestyle meets convenience.
Listing Information
Property Type: Residential, Condominium
Status: Active
Bedrooms: 1
Bathrooms: 2
Lot Size: 0.45 Acres
Square Feet: 1,150 sq ft
Year Built: 2007
Garage: Yes
Stories: 1 Story
Construction: Block,Metal Frame,Concrete
Construction Display: New Construction
Subdivision: Star Tower Condo
Foundation: Slab
County: Orange
Construction Status: New Construction
Room Information
Main Floor
Primary Bedroom: 15.9x12.2
Kitchen:
Living Room: 33.6x16.3
Bathrooms
Full Baths: 2
Additonal Room Information
Laundry: Inside, Laundry Room, Washer Hookup, Electric Dryer Hookup
Interior Features
Appliances: Built-In Oven, Electric Water Heater, Refrigerator, Washer, Range Hood, Microwave, Cooktop, Dishwasher, Disposal, Dryer
Flooring: Carpet,Engineered Hardwood,Tile
Doors/Windows: Window Treatments
Additional Interior Features: Eat-In Kitchen, Elevator, Built-in Features, Window Treatments, Walk-In Closet(s), Open Floorplan, Solid Surface Counters, Main Level Primary, Living/Dining Room, Kitchen/Family Room Combo
Utilities
Water: Public
Sewer: Public Sewer
Other Utilities: Electricity Connected,High Speed Internet Available,Sewer Connected,Water Connected
Cooling: Central Air
Heating: Central
Exterior / Lot Features
Attached Garage: Attached Garage
Garage Spaces: 1
Parking Description: Guest, Assigned, Common, Off Street, Deeded
Roof: Concrete
Pool: Association, Community
Lot View: City
Additional Exterior/Lot Features: Outdoor Kitchen, Outdoor Grill, Covered, Patio, Near Public Transit, City Lot, Historic District
Waterfront Details
Standard Water Body: LAKE EOLA
Community Features
Community Features: Fitness, Recreation Area, Clubhouse, Street Lights, Gated, Pool, Sidewalks
Security Features: Gated Community, Lobby Secured, Gated with Guard, Key Card Entry, Secured Garage/Parking
Association Amenities: Pool, Security, Clubhouse, Fitness Center, Cable TV, Spa/Hot Tub
HOA Dues Include: Common Areas, Reserve Fund, Maintenance Structure, Pool(s), Maintenance Grounds, Association Management, Cable TV, Internet, Trash, Security, Taxes
Homeowners Association: Yes
HOA Dues: $941 / Monthly
Driving Directions
Exit South St. from I-4. Right on ChurchSt, right on Osceola. Guest parking is accessed via Jackson St.
Financial Considerations
Terms: Cash,Conventional
Tax/Property ID: 25-22-29-8277-01-005
Tax Amount: 5915
Tax Year: 2024
A broker reciprocity listing courtesy: RE/MAX SELECT GROUP
Based on information provided by Stellar MLS as distributed by the MLS GRID. Information from the Internet Data Exchange is provided exclusively for consumers’ personal, non-commercial use, and such information may not be used for any purpose other than to identify prospective properties consumers may be interested in purchasing. This data is deemed reliable but is not guaranteed to be accurate by Edina Realty, Inc., or by the MLS. Edina Realty, Inc., is not a multiple listing service (MLS), nor does it offer MLS access.
Copyright 2026 Stellar MLS as distributed by the MLS GRID. All Rights Reserved.
Payment Calculator
Interest rate and annual percentage rate (APR) are based on current market conditions, are for informational purposes only, are subject to change without notice and may be subject to pricing add-ons related to property type, loan amount, loan-to-value, credit score and other variables. Estimated closing costs used in the APR calculation are assumed to be paid by the borrower at closing. If the closing costs are financed, the loan, APR and payment amounts will be higher. If the down payment is less than 20%, mortgage insurance may be required and could increase the monthly payment and APR. Contact us for details. Additional loan programs may be available. Accuracy is not guaranteed, and all products may not be available in all borrower's geographical areas and are based on their individual situation. This is not a credit decision or a commitment to lend.
Sales History & Tax Summary for 260 S Osceola Avenue #1005
Sales History
| Date | Price | |
|---|---|---|
| Currently not available. | ||
Tax Summary
| Tax Year | Estimated Market Value | Total Tax |
|---|---|---|
| Currently not available. | ||
Data powered by ATTOM Data Solutions. Copyright© 2026. Information deemed reliable but not guaranteed.
Schools
Schools nearby 260 S Osceola Avenue #1005
| Schools in attendance boundaries | Grades | Distance | Rating |
|---|---|---|---|
| Loading... | |||
| Schools nearby | Grades | Distance | Rating |
|---|---|---|---|
| Loading... | |||
Data powered by ATTOM Data Solutions. Copyright© 2026. Information deemed reliable but not guaranteed.
The schools shown represent both the assigned schools and schools by distance based on local school and district attendance boundaries. Attendance boundaries change based on various factors and proximity does not guarantee enrollment eligibility. Please consult your real estate agent and/or the school district to confirm the schools this property is zoned to attend. Information is deemed reliable but not guaranteed.
SchoolDigger ® Rating
The SchoolDigger rating system is a 1-5 scale with 5 as the highest rating. SchoolDigger ranks schools based on test scores supplied by each state's Department of Education. They calculate an average standard score by normalizing and averaging each school's test scores across all tests and grades.
Coming soon properties will soon be on the market, but are not yet available for showings.