$498,240
2605 Hanson Avenue Faribault, MN 55021
For Sale MLS# 6734117
2 beds 2 baths 1,468 sq ft Townhouse/Twinhome
Details for 2605 Hanson Avenue
MLS# 6734117
Description for 2605 Hanson Avenue, Faribault, MN, 55021
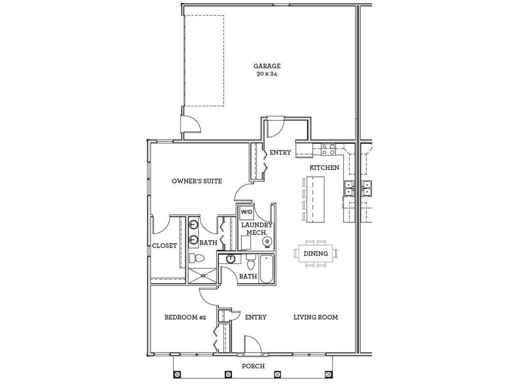
These charming new homes have covered front porches for relaxing in the evenings, plenty of storage in the oversized garage, double vanity sinks and a barrier free master shower floor. The Great room consists of the family room, dining room and kitchen as an open concept living space. This home is wheelchair friendly with extra wide doors and no steps. Carefree one level living built by award winning Fitzke Construction. Association maintained Twin Home is ready to start Construction. Price is for a two bedroom plan, but three bedroom plans are also available. This neighborhood also has one level detached Villa homes available as well. Choose your finishes and customize the inside of your plan. Some photos shown may contain options or upgrades.
Listing Information
Property Type: Residential, Side by Side, Patio Home
Status: Active
Bedrooms: 2
Bathrooms: 2
Lot Size: 0.18 Acres
Square Feet: 1,468 sq ft
Year Built: 2025
Foundation: 1,468 sq ft
Garage: Yes
Stories: 1 Story
Property Attached: Yes
Construction Display: New Construction
Subdivision: Parkland Village 2nd Add
Builder: FITZKE CONSTRUCTION LLC
County: Rice
Days On Market: 209
Construction Status: To Be Built/Floor Plan
School Information
District: 656 - Faribault
Room Information
Main Floor
Bedroom 1: 17x13
Bedroom 2: 12x11
Dining Room: 14x11
Living Room: 14x12
Bathrooms
Full Baths: 1
3/4 Baths: 1
Additonal Room Information
Other: Kitchen (14x14)
Family: Family Room,Main Level
Dining: Informal Dining Room
Laundry: In Unit
Interior Features
Square Footage above: 1,468 sq ft
Appliances: Gas Water Heater, Stainless Steel Appliances, Energy Star Appliances, Furnace Humidifier, Microwave, Range, Refrigerator, Washer, Water Softener - Owned, Air-To-Air Exchanger, Dishwasher, Disposal, Dryer, Exhaust Fan/Hood
Fireplaces: 1, Family Room, Gas Burning
Accessibility: Roll-In Shower, No Stairs External, No Stairs Internal, Door Lever Handles
Additional Interior Features: Main Floor Primary, All Living Facilities on One Level, Main Floor Bedroom, Main Floor Laundry
Utilities
Water: City Water/Connected
Sewer: City Sewer/Connected
Cooling: Central
Heating: Forced Air, Natural Gas
Exterior / Lot Features
Attached Garage: Attached Garage
Garage Spaces: 2
Parking Description: Attached Garage, Garage Dimensions - 18x31, Garage Door Height - 7, Garage Door Width - 16, Garage Sq Ft - 646.0
Exterior: Vinyl, Engineered Wood
Roof: Age 8 Years or Less, Asphalt Shingles, Architectural Shingle
Lot Dimensions: Irregular
Zoning: Residential-Single Family
Additional Exterior/Lot Features: Single-Level, Irregular Lot, Zero Lot Line, Road Frontage - City, Paved Streets
Community Features
HOA Dues Include: Snow Removal, Lawn Care
Homeowners Association: Yes
Association Name: Parkland Village LLC
HOA Dues: $245 / Monthly
Driving Directions
I35 exit Co Rd 21, North/West, left on Airport Road, Right on Fredericksen, Left on Hanson Avenue
Financial Considerations
Covenants/Deed Restrictions: Builder Restriction, Easements, Mandatory Owners Assoc, Other Covenants
Tax/Property ID: 1823152027
Tax Amount: 440
Tax Year: 2024
HomeStead Description: Non-Homesteaded
A broker reciprocity listing courtesy: Fitzke Real Estate
The data relating to real estate for sale on this web site comes in part from the Broker Reciprocity℠ Program of the Regional Multiple Listing Service of Minnesota, Inc. Real estate listings held by brokerage firms other than Edina Realty, Inc. are marked with the Broker Reciprocity℠ logo or the Broker Reciprocity℠ thumbnail and detailed information about them includes the name of the listing brokers. Edina Realty, Inc. is not a Multiple Listing Service (MLS), nor does it offer MLS access. This website is a service of Edina Realty, Inc., a broker Participant of the Regional Multiple Listing Service of Minnesota, Inc. IDX information is provided exclusively for consumers personal, non-commercial use and may not be used for any purpose other than to identify prospective properties consumers may be interested in purchasing. Open House information is subject to change without notice. Information deemed reliable but not guaranteed.
Copyright 2025 Regional Multiple Listing Service of Minnesota, Inc. All Rights Reserved.
Payment Calculator
Interest rate and annual percentage rate (APR) are based on current market conditions, are for informational purposes only, are subject to change without notice and may be subject to pricing add-ons related to property type, loan amount, loan-to-value, credit score and other variables. Estimated closing costs used in the APR calculation are assumed to be paid by the borrower at closing. If the closing costs are financed, the loan, APR and payment amounts will be higher. If the down payment is less than 20%, mortgage insurance may be required and could increase the monthly payment and APR. Contact us for details. Additional loan programs may be available. Accuracy is not guaranteed, and all products may not be available in all borrower's geographical areas and are based on their individual situation. This is not a credit decision or a commitment to lend.
Sales History & Tax Summary for 2605 Hanson Avenue
Sales History
| Date | Price | Change |
|---|---|---|
| Currently not available. | ||
Tax Summary
| Tax Year | Estimated Market Value | Total Tax |
|---|---|---|
| Currently not available. | ||
Data powered by ATTOM Data Solutions. Copyright© 2025. Information deemed reliable but not guaranteed.
Schools
Schools nearby 2605 Hanson Avenue
| Schools in attendance boundaries | Grades | Distance | Rating |
|---|---|---|---|
| Loading... | |||
| Schools nearby | Grades | Distance | Rating |
|---|---|---|---|
| Loading... | |||
Data powered by ATTOM Data Solutions. Copyright© 2025. Information deemed reliable but not guaranteed.
The schools shown represent both the assigned schools and schools by distance based on local school and district attendance boundaries. Attendance boundaries change based on various factors and proximity does not guarantee enrollment eligibility. Please consult your real estate agent and/or the school district to confirm the schools this property is zoned to attend. Information is deemed reliable but not guaranteed.
SchoolDigger ® Rating
The SchoolDigger rating system is a 1-5 scale with 5 as the highest rating. SchoolDigger ranks schools based on test scores supplied by each state's Department of Education. They calculate an average standard score by normalizing and averaging each school's test scores across all tests and grades.
Coming soon properties will soon be on the market, but are not yet available for showings.