2618 Roadster Lane Kissimmee, FL 34746
For Sale MLS# S5123804
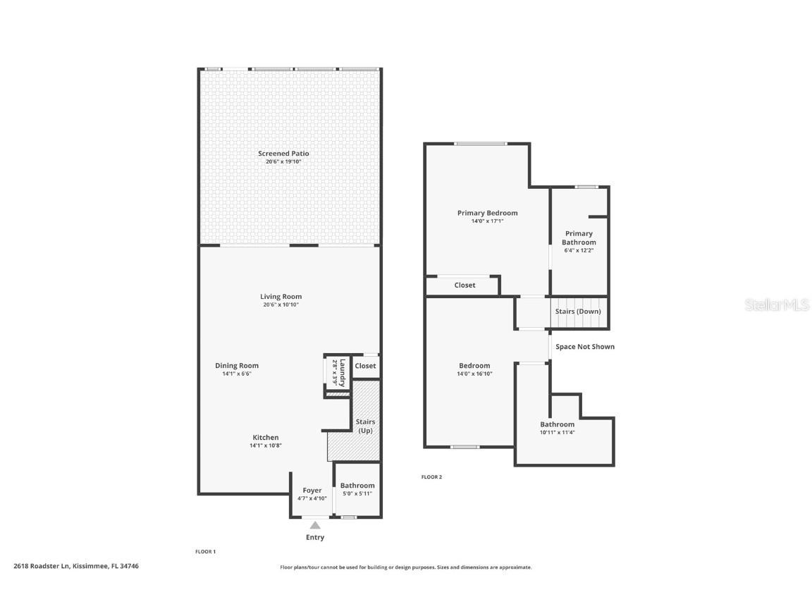
2 beds 3 baths 1,350 sq ft Townhouse/Twinhome
Details for 2618 Roadster Lane
MLS# S5123804
Description for 2618 Roadster Lane, Kissimmee, FL, 34746
Stylish, spacious, and just minutes from Disney—this fully furnished 2-bedroom, 2.5-bathroom townhome with a very private patio is your dream retreat in a resort-style, guard-gated community! Nestled in the highly sought-after Regal Oaks at Old Town, this charming townhome offers the perfect blend of comfort, convenience, and short-term rental potential. Whether you're searching for an ideal Airbnb investment or a relaxing getaway near the magic of Central Florida, this home checks all the boxes. Step inside to discover a modern, open-concept layout with fully tiled flooring throughout the main level. The kitchen is sleek and inviting, featuring black granite countertops, stainless steel appliances, and ample cabinet space. It flows effortlessly into the dining area and the bright, airy living room, where double sliding glass doors open onto a secluded patio oasis. Surrounded by lush greenery, the patio boasts a private hot tub, a shaded dining area, and loungers for soaking up the Florida sun—perfect for quiet mornings or unwinding after a day at the parks. Also located on the main level is a convenient half bathroom for guests, along with a laundry closet tucked neatly away for ease of use. Upstairs, you'll find two generously sized bedrooms, each with its own ensuite bathroom for added comfort and privacy. The main suite features a luxurious king-sized bed, dual vanities, and a spacious walk-in shower. The second bedroom offers two double beds and an ensuite with dual sinks and a shower/tub combination, making it wonderfully versatile. Additional highlights include elegant barrel tile roofing that adds a touch of Mediterranean charm and thoughtful furnishings throughout—making this property truly turn-key and ready to enjoy. As part of the award-winning Regal Oaks community, you’ll have access to exceptional amenities, including a lakefront pool and sun deck, waterslides, hot tubs, poolside cabanas, tennis courts, a fitness center, and a stunning multi-million dollar clubhouse. Located just off US-192 and steps from Kissimmee’s iconic Old Town attraction, you're also close to fantastic shopping, dining, and just a short drive to Disney, Universal, and other top attractions. Best of all, the HOA dues cover exterior maintenance, roof care, exterior property insurance, and valet trash service, helping ensure a low-maintenance and carefree lifestyle whether you’re here full-time, part-time, or using it as a rental property. Don’t miss the opportunity to own in one of Central Florida’s most vibrant vacation destinations. Be sure to check out the 3D interactive tour, video and floor plan to explore this exceptional property from wherever you are!
Listing Information
Property Type: Residential, Townhouse
Status: Active
Bedrooms: 2
Bathrooms: 3
Lot Size: 0.03 Acres
Square Feet: 1,350 sq ft
Year Built: 2015
Stories: 2 Story
Construction: Block,Stucco
Property Attached: Yes
Construction Display: New Construction
Subdivision: Regal Oaks At Old Town
Foundation: Block
County: Osceola
Construction Status: New Construction
School Information
Middle: Kissimmee Middle
High: Celebration High
Room Information
Main Floor
Kitchen: 10x14
Dining Room: 6x14
Living Room: 10x20
Upper Floor
Bedroom 2:
Primary Bedroom:
Bathrooms
Full Baths: 2
1/2 Baths: 1
Additonal Room Information
Laundry: Inside, Laundry Closet, Electric Dryer Hookup
Interior Features
Appliances: Electric Water Heater, Washer, Microwave, Range, Refrigerator, Dishwasher, Disposal, Dryer
Flooring: Carpet,Ceramic Tile
Doors/Windows: Window Treatments, Blinds
Additional Interior Features: Ceiling Fan(s), Living/Dining Room, Window Treatments, Open Floorplan, Upper Level Primary
Utilities
Water: Public
Sewer: Public Sewer
Other Utilities: Cable Connected,Electricity Connected,Municipal Utilities,Sewer Connected,Water Connected
Cooling: Ceiling Fan(s), Central Air
Heating: Electric, Central
Exterior / Lot Features
Parking Description: Open
Roof: Tile
Pool: Community, Association
Lot View: Trees/Woods
Lot Dimensions: 70x21
Additional Exterior/Lot Features: Sprinkler/Irrigation, Lighting, Screened, Covered, Patio, Rear Porch, Landscaped
Community Features
Community Features: Pool, Sidewalks, Tennis Court(s), Waterfront, Gated, Fitness, Clubhouse
Security Features: Gated Community, Smoke Detector(s), Gated with Guard
Association Amenities: Security, Clubhouse, Fitness Center, Recreation Facilities, Tennis Court(s), Pool, Spa/Hot Tub, Gated, Maintenance Grounds
HOA Dues Include: Pool(s), Road Maintenance, Common Areas, Pest Control, Insurance, Maintenance Grounds, Association Management, Taxes, Recreation Facilities, Security
Homeowners Association: Yes
HOA Dues: $1,305 / Quarterly
Driving Directions
US 192 to Holiday Trail. Left into Regal Oaks. Right at the roundabout onto Roadster Lane.
Financial Considerations
Terms: Cash,Conventional,FHA,VA Loan
Tax/Property ID: 09-25-28-2977-0001-2850
Tax Amount: 3886
Tax Year: 2024
A broker reciprocity listing courtesy: LA ROSA REALTY LLC
Based on information provided by Stellar MLS as distributed by the MLS GRID. Information from the Internet Data Exchange is provided exclusively for consumers’ personal, non-commercial use, and such information may not be used for any purpose other than to identify prospective properties consumers may be interested in purchasing. This data is deemed reliable but is not guaranteed to be accurate by Edina Realty, Inc., or by the MLS. Edina Realty, Inc., is not a multiple listing service (MLS), nor does it offer MLS access.
Copyright 2026 Stellar MLS as distributed by the MLS GRID. All Rights Reserved.
Payment Calculator
Interest rate and annual percentage rate (APR) are based on current market conditions, are for informational purposes only, are subject to change without notice and may be subject to pricing add-ons related to property type, loan amount, loan-to-value, credit score and other variables. Estimated closing costs used in the APR calculation are assumed to be paid by the borrower at closing. If the closing costs are financed, the loan, APR and payment amounts will be higher. If the down payment is less than 20%, mortgage insurance may be required and could increase the monthly payment and APR. Contact us for details. Additional loan programs may be available. Accuracy is not guaranteed, and all products may not be available in all borrower's geographical areas and are based on their individual situation. This is not a credit decision or a commitment to lend.
Sales History & Tax Summary for 2618 Roadster Lane
Sales History
| Date | Price | |
|---|---|---|
| Currently not available. | ||
Tax Summary
| Tax Year | Estimated Market Value | Total Tax |
|---|---|---|
| Currently not available. | ||
Data powered by ATTOM Data Solutions. Copyright© 2026. Information deemed reliable but not guaranteed.
Schools
Schools nearby 2618 Roadster Lane
| Schools in attendance boundaries | Grades | Distance | Rating |
|---|---|---|---|
| Loading... | |||
| Schools nearby | Grades | Distance | Rating |
|---|---|---|---|
| Loading... | |||
Data powered by ATTOM Data Solutions. Copyright© 2026. Information deemed reliable but not guaranteed.
The schools shown represent both the assigned schools and schools by distance based on local school and district attendance boundaries. Attendance boundaries change based on various factors and proximity does not guarantee enrollment eligibility. Please consult your real estate agent and/or the school district to confirm the schools this property is zoned to attend. Information is deemed reliable but not guaranteed.
SchoolDigger ® Rating
The SchoolDigger rating system is a 1-5 scale with 5 as the highest rating. SchoolDigger ranks schools based on test scores supplied by each state's Department of Education. They calculate an average standard score by normalizing and averaging each school's test scores across all tests and grades.
Coming soon properties will soon be on the market, but are not yet available for showings.