$499,000
2619 Summer Creek Drive Kissimmee, FL 34747
For Sale MLS# O6378525
5 beds 4 baths 2,136 sq ft Single Family
Details for 2619 Summer Creek Drive
MLS# O6378525
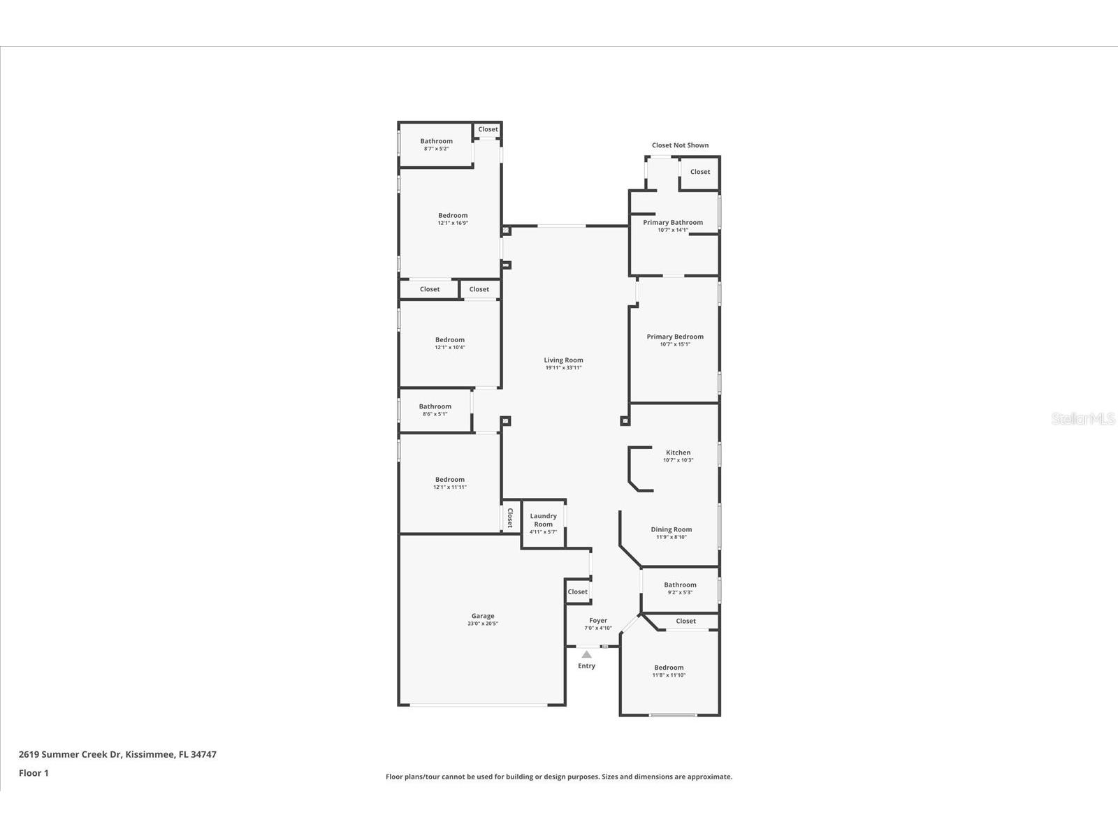
Description for 2619 Summer Creek Drive, Kissimmee, FL, 34747
AVAILABLE FOR SHOWINGS MARCH 23-25! WELL-BOOKED SHORT TERM RENTAL PROPERTY! This TURNKEY, FULLY FURNISHED 5-bedroom, 4-bath pool home is a high-performing short-term rental located in the sought-after NO HOA / NO CDD community of Indian Creek. Professionally decorated and designed for guest appeal, the home features a flexible, semi-open floor plan with durable tile flooring throughout and modern finishes—ideal for low-maintenance ownership. The layout is perfectly suited for rental success, offering multiple bedroom suites and excellent privacy. A front guest bedroom and nearby full bath provide convenience for early arrivals, while two additional bedrooms share a full bath on one wing of the home. A private en-suite bedroom with direct pool access adds strong guest appeal, and the spacious primary suite—separate from other bedrooms—features dual vanities, a soaking tub, glass-enclosed shower, two walk-in closets, and private access to the pool. The kitchen is fully equipped with modern cabinetry, granite countertops, stainless steel appliances, a breakfast bar, and dinette, flowing seamlessly into the dining and main living areas filled with natural light—perfect for hosting larger groups. Sliding doors open to a screened-in pool and lanai, set within a fully fenced backyard, creating a resort-style outdoor space guests love. Located just minutes from Disney and major theme parks, shopping, dining, and entertainment, this home benefits from consistent demand and easy access to major roadways. With no rental restrictions, no HOA fees, and no CDD, this property is an exceptional opportunity for investors seeking a ready-to-go Airbnb or short-term rental with STRONG INCOME POTENTIAL in the heart of Central Florida. ROOF 2020. **This house comes with a REDUCED RATE through the seller's preferred lender. This is a lender-paid rate buydown that reduces the buyer's interest rate and monthly payment.**
Listing Information
Property Type: Residential, Single Family Residence
Status: Active
Bedrooms: 5
Bathrooms: 4
Lot Size: 0.14 Acres
Square Feet: 2,136 sq ft
Year Built: 2000
Garage: Yes
Stories: 1 Story
Construction: Block,Stucco
Subdivision: Indian Creek Ph 02
Foundation: Slab
County: Osceola
School Information
Elementary: Westside K-8
Middle: West Side
High: Celebration High
Room Information
Main Floor
Dining Room:
Primary Bedroom:
Bedroom 2:
Bedroom 3:
Bedroom 4:
Bedroom 5:
Primary Bathroom:
Living Room:
Kitchen:
Bathrooms
Full Baths: 4
Additonal Room Information
Laundry: Inside, Laundry Room
Interior Features
Appliances: Dishwasher, Dryer, Microwave, Washer, Range, Refrigerator
Flooring: Ceramic Tile
Doors/Windows: Blinds, Drapes
Additional Interior Features: Walk-In Closet(s), Cathedral Ceiling(s), High Ceilings, Ceiling Fan(s), Vaulted Ceiling(s), Eat-In Kitchen
Utilities
Water: Public
Sewer: Public Sewer
Other Utilities: Cable Connected,Electricity Connected,Sewer Connected
Cooling: Ceiling Fan(s), Central Air
Heating: Electric, Central
Exterior / Lot Features
Attached Garage: Attached Garage
Garage Spaces: 2
Roof: Shingle
Pool: Screen Enclosure, In Ground, Other, Gunite
Fencing: fenced
Additional Exterior/Lot Features: Covered, Deck, Patio, Screened
Community Features
Community Features: Sidewalks, Tennis Court(s), Playground, Street Lights, Park
Security Features: Smoke Detector(s)
Driving Directions
From I-4 W (SR-400) toward Tampa, take the left exit onto I-4 Express Ln. Continue on I-4 W (SR-400). Take exit 64 toward Magic Kingdom onto US-192 W (W Irlo Bronson Memorial Hwy). Turn left onto N Old Lake Wilson Rd (CR-545 S). Turn right onto Livingston Rd. Turn left onto Formosa Gardens Blvd. Turn right onto Indian Creek Blvd. Turn right onto Summer Creek Dr.
Financial Considerations
Terms: Cash,Conventional,FHA,VA Loan
Tax/Property ID: 09-25-27-3433-0001-2680
Tax Amount: 7281.62
Tax Year: 2025
A broker reciprocity listing courtesy: KELLER WILLIAMS REALTY AT THE PARKS
Based on information provided by Stellar MLS as distributed by the MLS GRID. Information from the Internet Data Exchange is provided exclusively for consumers’ personal, non-commercial use, and such information may not be used for any purpose other than to identify prospective properties consumers may be interested in purchasing. This data is deemed reliable but is not guaranteed to be accurate by Edina Realty, Inc., or by the MLS. Edina Realty, Inc., is not a multiple listing service (MLS), nor does it offer MLS access.
Copyright 2026 Stellar MLS as distributed by the MLS GRID. All Rights Reserved.
Payment Calculator
Interest rate and annual percentage rate (APR) are based on current market conditions, are for informational purposes only, are subject to change without notice and may be subject to pricing add-ons related to property type, loan amount, loan-to-value, credit score and other variables. Estimated closing costs used in the APR calculation are assumed to be paid by the borrower at closing. If the closing costs are financed, the loan, APR and payment amounts will be higher. If the down payment is less than 20%, mortgage insurance may be required and could increase the monthly payment and APR. Contact us for details. Additional loan programs may be available. Accuracy is not guaranteed, and all products may not be available in all borrower's geographical areas and are based on their individual situation. This is not a credit decision or a commitment to lend.
Sales History & Tax Summary for 2619 Summer Creek Drive
Sales History
| Date | Price | |
|---|---|---|
| Currently not available. | ||
Tax Summary
| Tax Year | Estimated Market Value | Total Tax |
|---|---|---|
| Currently not available. | ||
Data powered by ATTOM Data Solutions. Copyright© 2026. Information deemed reliable but not guaranteed.
Schools
Schools nearby 2619 Summer Creek Drive
| Schools in attendance boundaries | Grades | Distance | Rating |
|---|---|---|---|
| Loading... | |||
| Schools nearby | Grades | Distance | Rating |
|---|---|---|---|
| Loading... | |||
Data powered by ATTOM Data Solutions. Copyright© 2026. Information deemed reliable but not guaranteed.
The schools shown represent both the assigned schools and schools by distance based on local school and district attendance boundaries. Attendance boundaries change based on various factors and proximity does not guarantee enrollment eligibility. Please consult your real estate agent and/or the school district to confirm the schools this property is zoned to attend. Information is deemed reliable but not guaranteed.
SchoolDigger ® Rating
The SchoolDigger rating system is a 1-5 scale with 5 as the highest rating. SchoolDigger ranks schools based on test scores supplied by each state's Department of Education. They calculate an average standard score by normalizing and averaging each school's test scores across all tests and grades.
Coming soon properties will soon be on the market, but are not yet available for showings.