$295,000
26245 Newcombe Circle Leesburg, FL 34748
For Sale MLS# O6398567
3 beds 3 baths 2,377 sq ft Single Family
Details for 26245 Newcombe Circle
MLS# O6398567
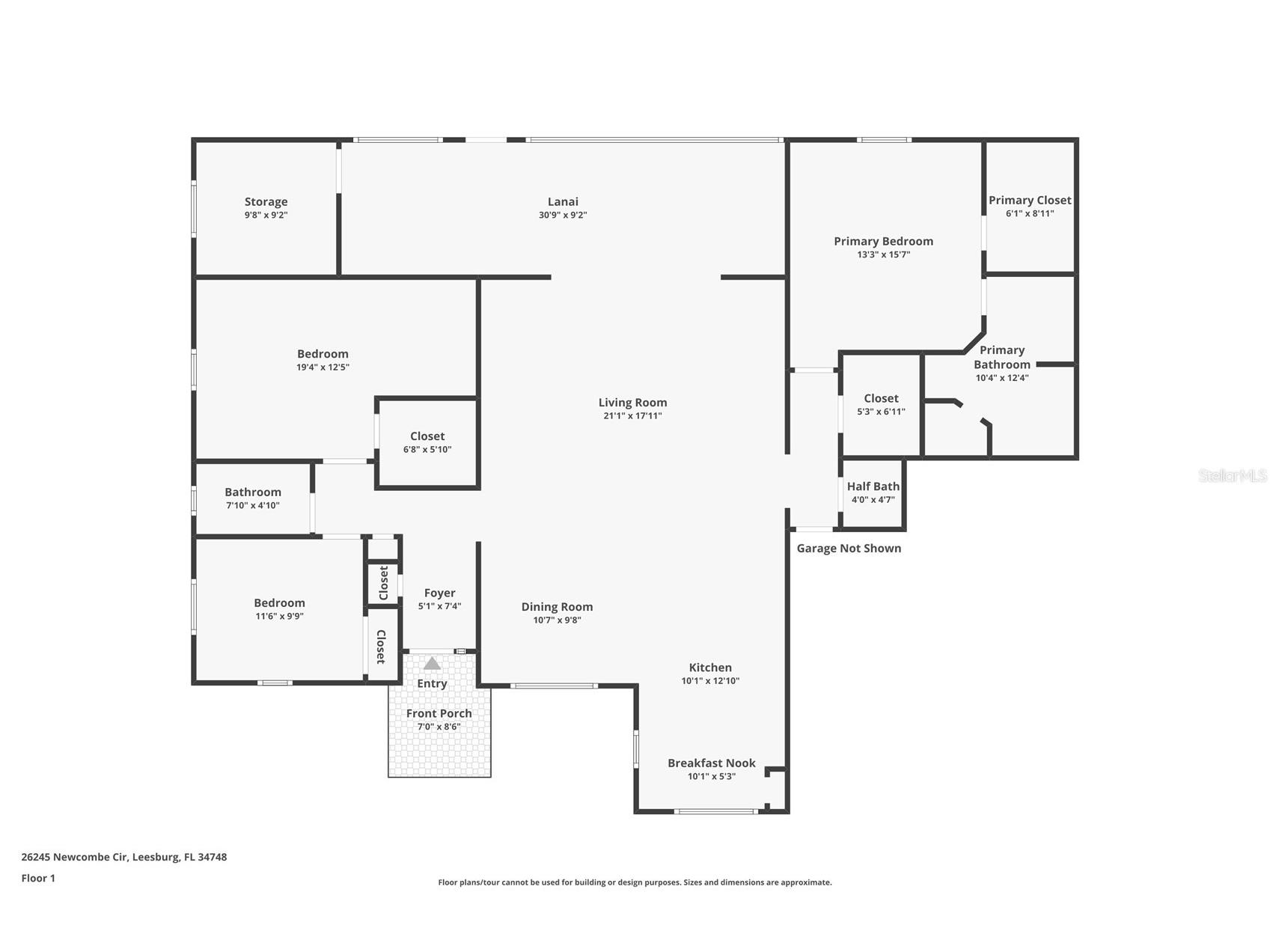
Description for 26245 Newcombe Circle, Leesburg, FL, 34748
One or more photo(s) has been virtually staged. Welcome to this spacious 3-bedroom, 2.5-bath home located in the highly sought-after gated 55+ community of Highland Lakes! Offering a well-designed layout with multiple living spaces, this home features a formal living room, separate dining area, and an inviting Florida room—perfect for relaxing or entertaining year-round. The primary suite serves as a private retreat with a walk-in closet, dual vanities, a large soaking tub, and a separate walk-in shower. One of the additional bedrooms also includes a walk-in closet, providing ample storage for guests or hobbies. Recent updates include a newer roof (2023), providing added value and peace of mind. Enjoy the lifestyle Highland Lakes is known for, with resort-style amenities including a clubhouse with indoor and outdoor pools, tennis and pickleball courts, shuffleboard, bocce ball, a softball field, fitness center, hobby and craft rooms, nature trails, and even a woodworking shop. The community also offers RV and boat storage, a golf driving range, and access to seven scenic lakes. Experience low-maintenance living in a vibrant, amenity-rich community—schedule your private showing today!
Listing Information
Property Type: Residential, Single Family Residence
Status: Active
Bedrooms: 3
Bathrooms: 3
Lot Size: 0.22 Acres
Square Feet: 2,377 sq ft
Year Built: 1994
Garage: Yes
Stories: 1 Story
Construction: Stucco
Subdivision: Highland Lakes Phase 1-B
Foundation: Block
County: Lake
Room Information
Main Floor
Kitchen:
Living Room:
Primary Bedroom:
Bathrooms
Full Baths: 2
1/2 Baths: 1
Additonal Room Information
Laundry: In Garage
Interior Features
Appliances: Dishwasher, Microwave, Range, Refrigerator
Flooring: Carpet,Linoleum,Parquet
Additional Interior Features: Ceiling Fan(s), Walk-In Closet(s), Living/Dining Room, Kitchen/Family Room Combo
Utilities
Water: Public
Sewer: Public Sewer
Other Utilities: Municipal Utilities
Cooling: Central Air, Ceiling Fan(s)
Heating: Central
Exterior / Lot Features
Attached Garage: Attached Garage
Garage Spaces: 2
Roof: Shingle
Pool: Community, Association
Additional Exterior/Lot Features: Lighting
Community Features
Community Features: Pool, Tennis Court(s), Clubhouse, Fitness
Association Amenities: Shuffleboard Court, Gated, Trail(s), Fitness Center, Tennis Court(s), Clubhouse, Pool
HOA Dues Include: Recreation Facilities, Taxes, Common Areas, Pool(s)
Homeowners Association: Yes
HOA Dues: $135 / Monthly
Driving Directions
From Mount Dora, take US-441 north toward Tavares, then continue onto Hwy 19 south toward Howey. Turn right onto SR 48 and follow it through Yalaha, then turn left onto US-27 at the intersection. Head south on US-27 to the entrance of Highland Lakes on the left. Continue on Highland Lakes Blvd, then turn right onto Martina, right onto Newcombe, and the home will be on the right.
Financial Considerations
Terms: Cash,Conventional,FHA,VA Loan
Tax/Property ID: 242024050500023300
Tax Amount: 2495.99
Tax Year: 2025
A broker reciprocity listing courtesy: RE/MAX TOWN & COUNTRY REALTY
Based on information provided by Stellar MLS as distributed by the MLS GRID. Information from the Internet Data Exchange is provided exclusively for consumers’ personal, non-commercial use, and such information may not be used for any purpose other than to identify prospective properties consumers may be interested in purchasing. This data is deemed reliable but is not guaranteed to be accurate by Edina Realty, Inc., or by the MLS. Edina Realty, Inc., is not a multiple listing service (MLS), nor does it offer MLS access.
Copyright 2026 Stellar MLS as distributed by the MLS GRID. All Rights Reserved.
Payment Calculator
Interest rate and annual percentage rate (APR) are based on current market conditions, are for informational purposes only, are subject to change without notice and may be subject to pricing add-ons related to property type, loan amount, loan-to-value, credit score and other variables. Estimated closing costs used in the APR calculation are assumed to be paid by the borrower at closing. If the closing costs are financed, the loan, APR and payment amounts will be higher. If the down payment is less than 20%, mortgage insurance may be required and could increase the monthly payment and APR. Contact us for details. Additional loan programs may be available. Accuracy is not guaranteed, and all products may not be available in all borrower's geographical areas and are based on their individual situation. This is not a credit decision or a commitment to lend.
Sales History & Tax Summary for 26245 Newcombe Circle
Sales History
| Date | Price | |
|---|---|---|
| Currently not available. | ||
Tax Summary
| Tax Year | Estimated Market Value | Total Tax |
|---|---|---|
| Currently not available. | ||
Data powered by ATTOM Data Solutions. Copyright© 2026. Information deemed reliable but not guaranteed.
Schools
Schools nearby 26245 Newcombe Circle
| Schools in attendance boundaries | Grades | Distance | Rating |
|---|---|---|---|
| Loading... | |||
| Schools nearby | Grades | Distance | Rating |
|---|---|---|---|
| Loading... | |||
Data powered by ATTOM Data Solutions. Copyright© 2026. Information deemed reliable but not guaranteed.
The schools shown represent both the assigned schools and schools by distance based on local school and district attendance boundaries. Attendance boundaries change based on various factors and proximity does not guarantee enrollment eligibility. Please consult your real estate agent and/or the school district to confirm the schools this property is zoned to attend. Information is deemed reliable but not guaranteed.
SchoolDigger ® Rating
The SchoolDigger rating system is a 1-5 scale with 5 as the highest rating. SchoolDigger ranks schools based on test scores supplied by each state's Department of Education. They calculate an average standard score by normalizing and averaging each school's test scores across all tests and grades.
Coming soon properties will soon be on the market, but are not yet available for showings.