2645 W Marion Avenue #114 Punta Gorda, FL 33950
For Sale MLS# C7506500
3 beds 2 baths 1,921 sq ft Single Family
Details for 2645 W Marion Avenue #114
MLS# C7506500
Description for 2645 W Marion Avenue #114, Punta Gorda, FL, 33950
TURNKEY PGI VILLA AT MARINER'S COVE W/DEEDED DOCK & SAILBOAT ACCESS – Spacious 3 bed, 2 bath end-unit villa in Mariner’s Cove (Punta Gorda Isles), offers a stunning lake view & deeded dock with quick sailboat access to Charlotte Harbor. Inside, cathedral ceilings, skylights & a wall of new Florida room windows (installed 2019) fill the space with natural light. The open floor plan features a combined great room/dining area, oversized kitchen with walk-in pantry, & a private master suite with two walk-in closets & en-suite bath. Guest rooms share a full bath. Enjoy the serene lake view from the Florida room or relax on the tiled, screened front patio connecting the villa to a private two-car garage. Just a short walk to dock #13 with water & electric hookups—reach open water in under 10 minutes! Home is being sold with all furnishings and dishware. Other features include hurricane protection for windows. Community amenities include a heated pool, guest parking & lush, tropical landscaping. Your slice of paradise awaits! Association amenities include an in-ground pool, guest parking & beautifully-maintained, tropical landscaping creating a park-like setting throughout the community. Miles of sidewalks connect you to all parts of Punta Gorda Isles, to numerous parks, Fishermen's Village & even historic downtown Punta Gorda. Start enjoying the active lifestyle that awaits you here. Although, known for boating, Punta Gorda also boasts a lively art & music scene w/frequent weekend fairs & festivals. Start living the Florida dream here. Make an appointment today.
Listing Information
Property Type: Residential, Villa
Status: Active
Bedrooms: 3
Bathrooms: 2
Lot Size: 0.06 Acres
Square Feet: 1,921 sq ft
Year Built: 1990
Garage: Yes
Stories: 1 Story
Construction: Block,Stucco
Subdivision: Mariners Cove Ph 07
Foundation: Slab
County: Charlotte
School Information
Elementary: Sallie Jones Elementary
Middle: Punta Gorda Middle
High: Charlotte High
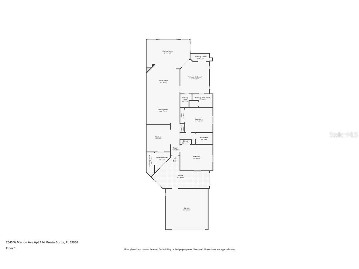
Room Information
Main Floor
Porch: 26x8
Dining Room: 11x15
Great Room: 15x15
Laundry: 8x10
Bathroom 2: 5x7
Bedroom 3: 11x15
Bedroom 2: 13x11
Primary Bathroom: 11x6
Primary Bedroom: 13x15
Florida Room: 13x21
Kitchen: 13x11
Bathrooms
Full Baths: 2
Additonal Room Information
Laundry: Inside, Laundry Room
Interior Features
Appliances: Microwave, Range, Refrigerator, Washer, Dishwasher, Disposal, Dryer, Electric Water Heater
Flooring: Carpet,Tile
Doors/Windows: Blinds, Skylight(s)
Fireplaces: Living Room, Electric
Additional Interior Features: Skylights, Walk-In Closet(s), Ceiling Fan(s), Cathedral Ceiling(s), Open Floorplan
Utilities
Water: Public
Sewer: Public Sewer
Other Utilities: Cable Connected,Electricity Connected,High Speed Internet Available,Phone Available,Sewer Connected
Cooling: Ceiling Fan(s), Central Air
Heating: Central, Electric
Exterior / Lot Features
Garage Spaces: 2
Parking Description: Garage, Garage Door Opener
Roof: Tile
Pool: Association, Heated, Gunite, Community, In Ground, Outside Bath Access
Lot View: Pond,Pool,Water
Additional Exterior/Lot Features: Storm/Security Shutters, Patio, Screened, Landscaped, City Lot, Flood Zone
Waterfront Details
Water Front Features: Gulf Access, River Access, Pond
Community Features
Community Features: Waterfront, Pool
Security Features: Smoke Detector(s)
Association Amenities: Pool
HOA Dues Include: Pool(s), Maintenance Structure, Reserve Fund, Road Maintenance, Maintenance Grounds, Association Management, Trash, Sewer, Recreation Facilities, Water
Homeowners Association: Yes
HOA Dues: $1,185 / Monthly
Driving Directions
From US41 go west on Marion Ave. Go left to enter Mariner's Cove complex. Unit is on the left.
Financial Considerations
Terms: Cash,Conventional,FHA,VA Loan
Tax/Property ID: 412214526036
Tax Amount: 7556
Tax Year: 2024
A broker reciprocity listing courtesy: RE/MAX HARBOR REALTY
Based on information provided by Stellar MLS as distributed by the MLS GRID. Information from the Internet Data Exchange is provided exclusively for consumers’ personal, non-commercial use, and such information may not be used for any purpose other than to identify prospective properties consumers may be interested in purchasing. This data is deemed reliable but is not guaranteed to be accurate by Edina Realty, Inc., or by the MLS. Edina Realty, Inc., is not a multiple listing service (MLS), nor does it offer MLS access.
Copyright 2025 Stellar MLS as distributed by the MLS GRID. All Rights Reserved.
Payment Calculator
Interest rate and annual percentage rate (APR) are based on current market conditions, are for informational purposes only, are subject to change without notice and may be subject to pricing add-ons related to property type, loan amount, loan-to-value, credit score and other variables. Estimated closing costs used in the APR calculation are assumed to be paid by the borrower at closing. If the closing costs are financed, the loan, APR and payment amounts will be higher. If the down payment is less than 20%, mortgage insurance may be required and could increase the monthly payment and APR. Contact us for details. Additional loan programs may be available. Accuracy is not guaranteed, and all products may not be available in all borrower's geographical areas and are based on their individual situation. This is not a credit decision or a commitment to lend.
Sales History & Tax Summary for 2645 W Marion Avenue #114
Sales History
| Date | Price | Change |
|---|---|---|
| Currently not available. | ||
Tax Summary
| Tax Year | Estimated Market Value | Total Tax |
|---|---|---|
| Currently not available. | ||
Data powered by ATTOM Data Solutions. Copyright© 2025. Information deemed reliable but not guaranteed.
Schools
Schools nearby 2645 W Marion Avenue #114
| Schools in attendance boundaries | Grades | Distance | Rating |
|---|---|---|---|
| Loading... | |||
| Schools nearby | Grades | Distance | Rating |
|---|---|---|---|
| Loading... | |||
Data powered by ATTOM Data Solutions. Copyright© 2025. Information deemed reliable but not guaranteed.
The schools shown represent both the assigned schools and schools by distance based on local school and district attendance boundaries. Attendance boundaries change based on various factors and proximity does not guarantee enrollment eligibility. Please consult your real estate agent and/or the school district to confirm the schools this property is zoned to attend. Information is deemed reliable but not guaranteed.
SchoolDigger ® Rating
The SchoolDigger rating system is a 1-5 scale with 5 as the highest rating. SchoolDigger ranks schools based on test scores supplied by each state's Department of Education. They calculate an average standard score by normalizing and averaging each school's test scores across all tests and grades.
Coming soon properties will soon be on the market, but are not yet available for showings.