266 6th Street NW Delano, MN 55328
For Sale MLS# 7003328
4 beds 3 baths 2,692 sq ft Single Family
Details for 266 6th Street NW
MLS# 7003328
Description for 266 6th Street NW, Delano, MN, 55328
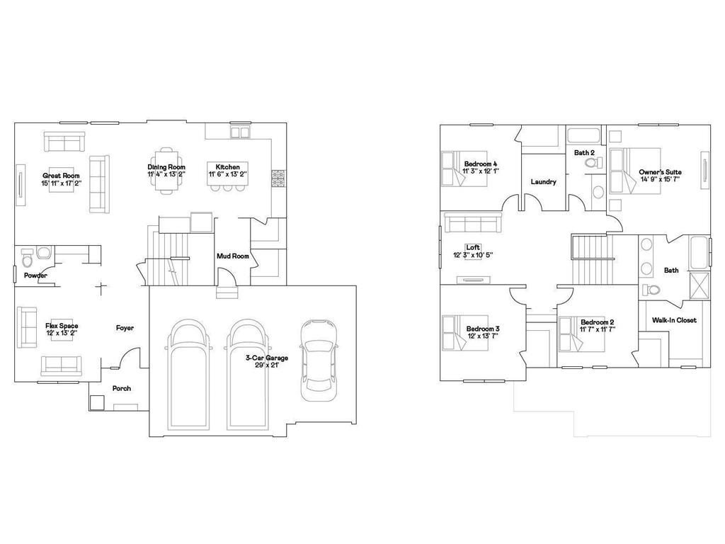
This home is complete and move-in ready! Welcome to Highland Ridge! This spacious Lewis home offers a thoughtfully designed layout with 4 bedrooms on the upper level, a versatile loft for added living space, and an office/flex room on the main level for convenience. Thoughtful upgrades include soft-close drawers and doors, sleek door levers, premium faucets, and plush carpeting. The great room features a striking stone gas fireplace, while the expansive kitchen boasts three walls of cabinetry, a large island with extra storage, and a walk-in pantry. Each bedroom, as well as the mudroom and pantry, includes a walk-in closet for exceptional storage. The walkout basement is ready for you to finish and make your own. Located in the charming Delano community, renowned for its award-winning Blue Ribbon Schools, scenic parks, trails, and a variety of shops. Best of all—no HOA!
Listing Information
Property Type: Residential, Single Family
Status: Active
Bedrooms: 4
Bathrooms: 3
Lot Size: 0.24 Acres
Square Feet: 2,692 sq ft
Year Built: 2026
Foundation: 1,226 sq ft
Garage: Yes
Stories: 2 Stories
Date Available: 1/8/2026
Construction Display: New Construction
Completion date: 2026-01-08T06:00:00Z
Subdivision: Highland Ridge
Builder: LENNAR
County: Wright
Days On Market: 10
Construction Status: Completed New Construction
School Information
District: 879 - Delano
Room Information
Main Floor
Family Room: 16x17
Informal Dining Room: 13x11
Kitchen: 11x13
Office: 12x13
Upper Floor
Bedroom 1: 15x16
Bedroom 2: 12x12
Bedroom 3: 12x14
Bedroom 4: 11x12
Loft: 12x10
Bathrooms
Full Baths: 2
1/2 Baths: 1
Additonal Room Information
Family: 2 or More,Family Room,Great Room,Loft,Main Level
Dining: Eat In Kitchen,Informal Dining Room
Laundry: Washer Hookup, Laundry Room, Upper Level, Gas Dryer Hookup
Bath Description: Double Sink,Full Primary,Main Floor 1/2 Bath,Private Primary,Separate Tub & Shower,Upper Level Full Bath
Interior Features
Square Footage above: 2,692 sq ft
Appliances: Tankless Water Heater, Stainless Steel Appliances, Microwave, Range, Refrigerator, Air-To-Air Exchanger, Dishwasher, Disposal, Furnace Humidifier
Basement: Unfinished, Walkout
Fireplaces: 1, Stone, Family Room, Gas Burning
Additional Interior Features: Kitchen Window, Natural Woodwork, 3 BR on One Level, 4 BR on One Level, 2nd Floor Laundry, French Doors, Paneled Doors, Walk-In Closet, Washer/Dryer Hookup, Kitchen Center Island
Utilities
Water: City Water/Connected
Sewer: City Sewer/Connected
Cooling: Central
Heating: Natural Gas, Forced Air
Exterior / Lot Features
Attached Garage: Attached Garage
Garage Spaces: 3
Parking Description: Garage Door Opener, Driveway - Asphalt, Attached Garage, Garage Sq Ft - 648.0
Exterior: Brick/Stone, Vinyl
Roof: Age 8 Years or Less, Asphalt Shingles, Pitched
Lot Dimensions: TBD
Zoning: Residential-Single Family
Additional Exterior/Lot Features: Porch, Sod Included in Price, Underground Utilities, Road Frontage - Street Lights, Sidewalks, Paved Streets, City, Curbs
Community Features
Community Features: Play Area, Other
Association Amenities: Other, Tennis Courts, Trails
Driving Directions
Hwy #12, Cty Rd #30 West, (Right) on 3rd St SW. (Left) on Franklin Ave. (Right) on 5th St. NW. to home.
Financial Considerations
Tax/Property ID: TBD
Tax Year: 2026
HomeStead Description: Non-Homesteaded
A broker reciprocity listing courtesy: Lennar Sales Corp
The data relating to real estate for sale on this web site comes in part from the Broker Reciprocity℠ Program of the Regional Multiple Listing Service of Minnesota, Inc. Real estate listings held by brokerage firms other than Edina Realty, Inc. are marked with the Broker Reciprocity℠ logo or the Broker Reciprocity℠ thumbnail and detailed information about them includes the name of the listing brokers. Edina Realty, Inc. is not a Multiple Listing Service (MLS), nor does it offer MLS access. This website is a service of Edina Realty, Inc., a broker Participant of the Regional Multiple Listing Service of Minnesota, Inc. IDX information is provided exclusively for consumers personal, non-commercial use and may not be used for any purpose other than to identify prospective properties consumers may be interested in purchasing. Open House information is subject to change without notice. Information deemed reliable but not guaranteed.
Copyright 2026 Regional Multiple Listing Service of Minnesota, Inc. All Rights Reserved.
Payment Calculator
Interest rate and annual percentage rate (APR) are based on current market conditions, are for informational purposes only, are subject to change without notice and may be subject to pricing add-ons related to property type, loan amount, loan-to-value, credit score and other variables. Estimated closing costs used in the APR calculation are assumed to be paid by the borrower at closing. If the closing costs are financed, the loan, APR and payment amounts will be higher. If the down payment is less than 20%, mortgage insurance may be required and could increase the monthly payment and APR. Contact us for details. Additional loan programs may be available. Accuracy is not guaranteed, and all products may not be available in all borrower's geographical areas and are based on their individual situation. This is not a credit decision or a commitment to lend.
Sales History & Tax Summary for 266 6th Street NW
Sales History
| Date | Price | Change |
|---|---|---|
| Currently not available. | ||
Tax Summary
| Tax Year | Estimated Market Value | Total Tax |
|---|---|---|
| Currently not available. | ||
Data powered by ATTOM Data Solutions. Copyright© 2026. Information deemed reliable but not guaranteed.
Schools
Schools nearby 266 6th Street NW
| Schools in attendance boundaries | Grades | Distance | Rating |
|---|---|---|---|
| Loading... | |||
| Schools nearby | Grades | Distance | Rating |
|---|---|---|---|
| Loading... | |||
Data powered by ATTOM Data Solutions. Copyright© 2026. Information deemed reliable but not guaranteed.
The schools shown represent both the assigned schools and schools by distance based on local school and district attendance boundaries. Attendance boundaries change based on various factors and proximity does not guarantee enrollment eligibility. Please consult your real estate agent and/or the school district to confirm the schools this property is zoned to attend. Information is deemed reliable but not guaranteed.
SchoolDigger ® Rating
The SchoolDigger rating system is a 1-5 scale with 5 as the highest rating. SchoolDigger ranks schools based on test scores supplied by each state's Department of Education. They calculate an average standard score by normalizing and averaging each school's test scores across all tests and grades.
Coming soon properties will soon be on the market, but are not yet available for showings.