266 Florida Boulevard Crystal Beach, FL 34681 - SUTHERLAND BAYOU
For Sale MLS# TB8445394
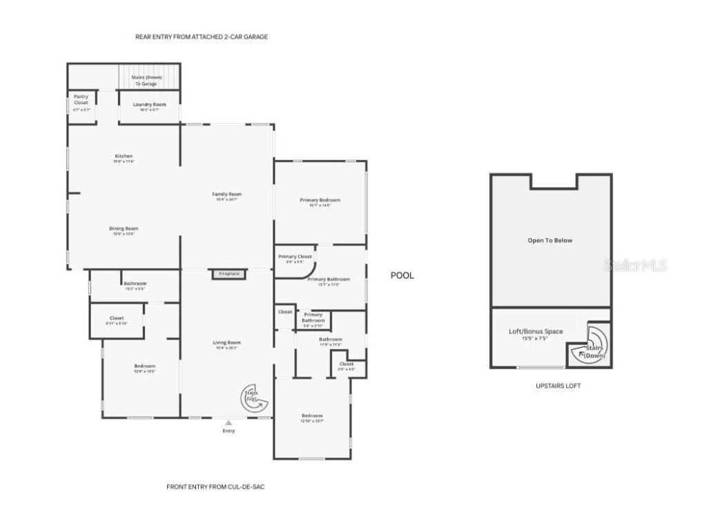
3 beds 3 baths 2,648 sq ft Single Family
Details for 266 Florida Boulevard
MLS# TB8445394
Description for 266 Florida Boulevard, Crystal Beach, FL, 34681 - SUTHERLAND BAYOU
Exceptional price adjustment — Crystal Beach’s GREATEST value and smartest buy! Nestled on a quiet cul-de-sac on one of the highest points within the community and just steps from the water with NO flood insurance required—this custom Key West–style pool home delivers the ultimate in coastal luxury living. Spanning nearly 3,000 sq ft, this 3-bedroom, 3-bathroom home plus loft showcases a beautifully designed 3-way split and open floor plan, with three true en-suite bedrooms for exceptional comfort and privacy. Through the glass French double-door front entry, you’re welcomed by soaring cathedral ceilings, oversized windows that flood the home with natural light, and a breathtaking floor-to-ceiling double-sided wood-burning fireplace anchoring both the formal and main living rooms. A striking spiral staircase leads to a spacious loft—ideal as an office, library, studio, or bonus retreat—offering endless versatility. Perfectly crafted for indoor/outdoor living, French doors from every main living space that open onto the expansive paver wraparound porch and the oversized pool deck. The chef’s kitchen impresses with an oversized island with a second sink and seating up to eight, solid-wood shaker cabinetry, granite countertops, a NEW 2024 oven/microwave combo, flat-top range, and a large walk-in pantry—all seamlessly connected to the generous dining room for effortless entertaining. The primary suite is a private oasis with tranquil pool views framed by lush NEW landscaping, a large walk-in closet, an oversized garden tub, quartz double vanities, an updated glass walk-in shower, and direct access to the pool. Both additional bedrooms are oversized en-suites also with walk-in closets, ensuring comfort for family and guests alike. The nearly half-acre lot feels like a private tropical resort with lush new landscaping and uplighting surrounding the home, a sparkling lap pool with a brand-NEW 2025 pool pump and 2022 resurfacing, and abundant outdoor space to relax or entertain. Major upgrades provide peace of mind, including a NEW 2025 roof, NEW 2023 water heater, and a recently passed transferable 4-point inspection - no insurance worries here! The oversized rear-facing 2-car garage (accessed via Seaford Avenue) adds convenience, and with no deed restrictions, you can store your boat, RV, or water toys at home—especially ideal with the public Southerland Bayou boat ramp just minutes away. Crystal Beach is one of the Gulf Coast’s most charming and laid-back communities, this exceptional property offers direct access to the Pinellas Trail, nightly sunsets at Live Oak Park, golf-cart-friendly streets, and proximity to top-rated schools including Palm Harbor University High. A true Crystal Beach gem, this one-of-a-kind coastal retreat blends luxury, comfort, and lifestyle in perfect harmony—don’t miss your chance to experience fine coastal living at its best!
Listing Information
Property Type: Residential, Single Family Residence
Status: Active
Bedrooms: 3
Bathrooms: 3
Lot Size: 0.34 Acres
Square Feet: 2,648 sq ft
Year Built: 1999
Garage: Yes
Stories: 2 Story
Construction: Metal Frame,Vinyl Siding,Wood Frame
Subdivision: Seaside Wood
Foundation: Slab
County: Pinellas
School Information
Elementary: Ozona Elementary-Pn
Middle: Palm Harbor Middle-Pn
High: Palm Harbor Univ High-Pn
Room Information
Main Floor
Bedroom 3: 14x13
Living Room: 25x16
Bathroom 2: 6x15
Bedroom 2: 20x13
Primary Bathroom: 11x16
Primary Bedroom: 14x16
Kitchen: 12x19
Dining Room: 13x19
Family Room: 25x16
Upper Floor
Loft: 11x16
Bathrooms
Full Baths: 3
Additonal Room Information
Laundry: Laundry Room, Inside
Interior Features
Appliances: Built-In Oven, Water Softener, Microwave, Refrigerator, Washer, Cooktop, Dishwasher, Disposal, Dryer
Flooring: Carpet,Tile
Doors/Windows: Window Treatments
Fireplaces: Wood Burning
Accessibility: Accessible Bedroom, Accessible Doors, Accessible Entrance, Accessible Full Bath
Additional Interior Features: Ceiling Fan(s), Eat-In Kitchen, Vaulted Ceiling(s), Split Bedrooms, Loft, Walk-In Closet(s), Window Treatments, Cathedral Ceiling(s), High Ceilings, Wood Cabinets, Separate/Formal Living Room, Stone Counters, Open Floorplan, Kitchen/Family Room Combo, Built-in Features, Main Level Primary
Utilities
Water: Public
Sewer: Public Sewer
Other Utilities: Cable Available,Electricity Connected,Municipal Utilities,Sewer Connected,Water Connected
Cooling: Central Air, Ceiling Fan(s)
Heating: Central
Exterior / Lot Features
Attached Garage: Attached Garage
Garage Spaces: 2
Parking Description: Garage Door Opener, Garage, driveway, Garage Faces Rear, Oversized, Parking Pad
Roof: Shingle
Pool: Heated, In Ground, Outside Bath Access
Lot View: Pool,Trees/Woods
Lot Dimensions: 80x139
Additional Exterior/Lot Features: Sprinkler/Irrigation, French Patio Doors, Rain Gutters, Lighting, Covered, Rear Porch, Wrap Around, Front Porch, Landscaped, Cul-de-Sac, Oversized Lot
Waterfront Details
Standard Water Body: SUTHERLAND BAYOU
Community Features
Community Features: Golf Carts OK, Water Access, Street Lights, Sidewalks
Homeowners Association: Yes
HOA Dues: $250 / Annually
Driving Directions
South on Alt-19 to a right onto Crystal Beach Ave. Left onto Vincent St. Left onto Florida Blvd to property at the end in cul-de-sac.
Financial Considerations
Terms: Cash,Conventional,FHA,VA Loan
Tax/Property ID: 02-28-15-79441-000-0070
Tax Amount: 11391.13
Tax Year: 2024
A broker reciprocity listing courtesy: COLDWELL BANKER REALTY
Based on information provided by Stellar MLS as distributed by the MLS GRID. Information from the Internet Data Exchange is provided exclusively for consumers’ personal, non-commercial use, and such information may not be used for any purpose other than to identify prospective properties consumers may be interested in purchasing. This data is deemed reliable but is not guaranteed to be accurate by Edina Realty, Inc., or by the MLS. Edina Realty, Inc., is not a multiple listing service (MLS), nor does it offer MLS access.
Copyright 2026 Stellar MLS as distributed by the MLS GRID. All Rights Reserved.
Payment Calculator
Interest rate and annual percentage rate (APR) are based on current market conditions, are for informational purposes only, are subject to change without notice and may be subject to pricing add-ons related to property type, loan amount, loan-to-value, credit score and other variables. Estimated closing costs used in the APR calculation are assumed to be paid by the borrower at closing. If the closing costs are financed, the loan, APR and payment amounts will be higher. If the down payment is less than 20%, mortgage insurance may be required and could increase the monthly payment and APR. Contact us for details. Additional loan programs may be available. Accuracy is not guaranteed, and all products may not be available in all borrower's geographical areas and are based on their individual situation. This is not a credit decision or a commitment to lend.
Sales History & Tax Summary for 266 Florida Boulevard
Sales History
| Date | Price | |
|---|---|---|
| Currently not available. | ||
Tax Summary
| Tax Year | Estimated Market Value | Total Tax |
|---|---|---|
| Currently not available. | ||
Data powered by ATTOM Data Solutions. Copyright© 2026. Information deemed reliable but not guaranteed.
Schools
Schools nearby 266 Florida Boulevard
| Schools in attendance boundaries | Grades | Distance | Rating |
|---|---|---|---|
| Loading... | |||
| Schools nearby | Grades | Distance | Rating |
|---|---|---|---|
| Loading... | |||
Data powered by ATTOM Data Solutions. Copyright© 2026. Information deemed reliable but not guaranteed.
The schools shown represent both the assigned schools and schools by distance based on local school and district attendance boundaries. Attendance boundaries change based on various factors and proximity does not guarantee enrollment eligibility. Please consult your real estate agent and/or the school district to confirm the schools this property is zoned to attend. Information is deemed reliable but not guaranteed.
SchoolDigger ® Rating
The SchoolDigger rating system is a 1-5 scale with 5 as the highest rating. SchoolDigger ranks schools based on test scores supplied by each state's Department of Education. They calculate an average standard score by normalizing and averaging each school's test scores across all tests and grades.
Coming soon properties will soon be on the market, but are not yet available for showings.