2662 Mayaguana Street Kissimmee, FL 34747
For Sale MLS# O6308205
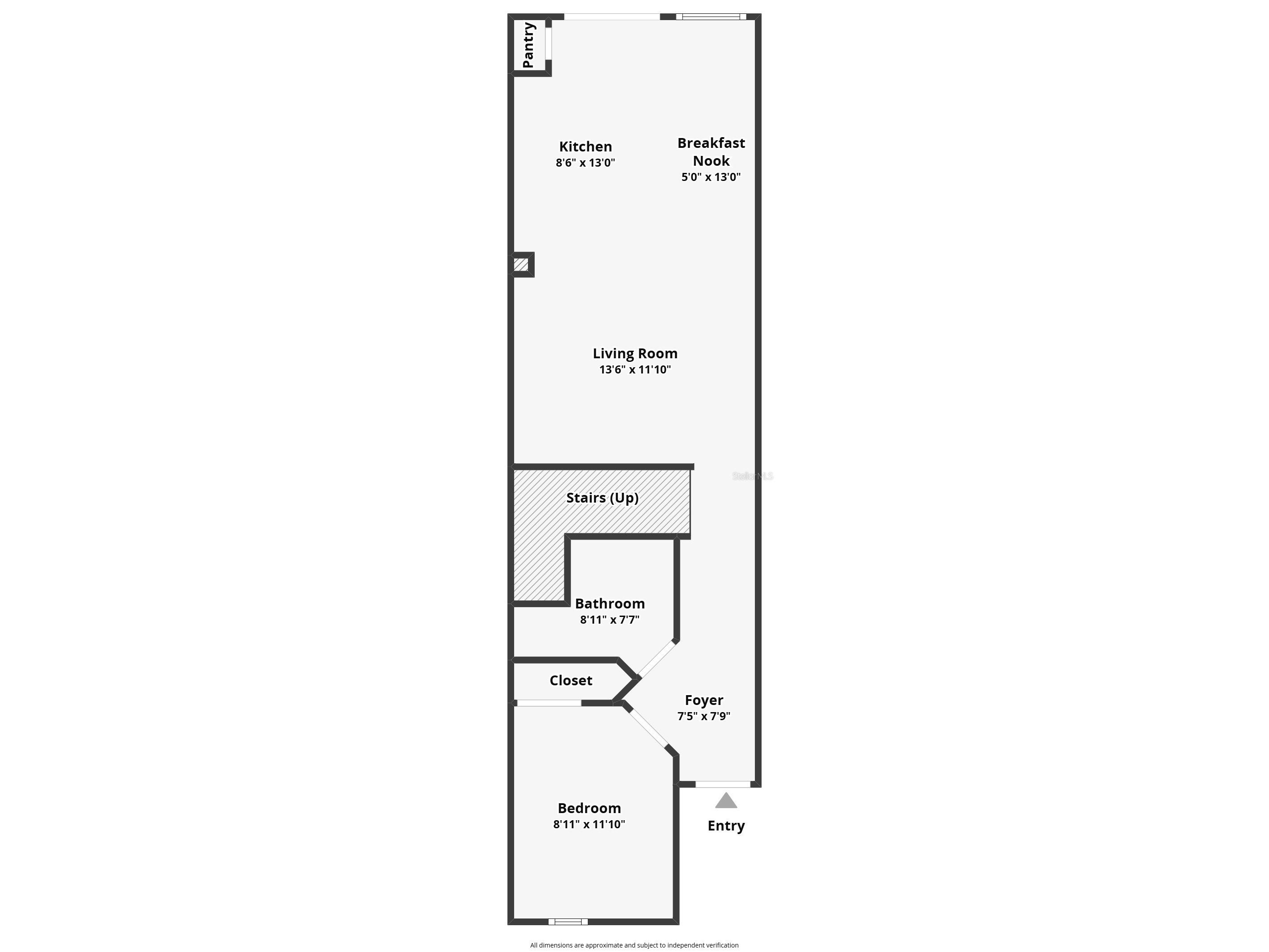
3 beds 3 baths 1,187 sq ft Townhouse/Twinhome
Details for 2662 Mayaguana Street
MLS# O6308205
Description for 2662 Mayaguana Street, Kissimmee, FL, 34747
JUST REDUCED!!! Immediate income producing opportunity with tenant in place paying $1,700 monthly. Centrally located 3BD/3BTH townhome in a gated Kissimmee community just minutes from Disney and Orlando’s top attractions. Smart, flexible layout featuring a first floor bedroom and full bath, plus 2 upstairs bedrooms including a private primary suite. Enjoy a private patio with **no rear neighbors** for added privacy and outdoor relaxation. HOA covers lawn care, exterior maintenance, and roof for added convenience. Community amenities include pool, clubhouse, and playground. Ideal for investors seeking strong rental potential in a high demand location.
Listing Information
Property Type: Residential, Townhouse
Status: Active
Bedrooms: 3
Bathrooms: 3
Lot Size: 0.03 Acres
Square Feet: 1,187 sq ft
Year Built: 2006
Stories: 2 Story
Construction: Block,Wood Frame
Construction Display: New Construction
Subdivision: Crestwynd Bay
Foundation: Block,Other
County: Osceola
Construction Status: New Construction
School Information
Middle: Celebration K-8
High: Celebration High
Room Information
Main Floor
Living Room: 15x10
Porch: 10x8
Kitchen:
Bedroom 3:
Upper Floor
Primary Bedroom: 14x12
Primary Bedroom: 10x11
Bathrooms
Full Baths: 3
Additonal Room Information
Laundry: Inside
Interior Features
Appliances: Dishwasher, Range, Refrigerator
Flooring: Carpet,Ceramic Tile
Doors/Windows: Window Treatments
Additional Interior Features: Window Treatments
Utilities
Water: Public
Sewer: Public Sewer
Other Utilities: Electricity Connected,Municipal Utilities
Cooling: Central Air
Heating: Central
Exterior / Lot Features
Roof: Tile
Pool: Community, Association
Additional Exterior/Lot Features: Lighting, Garden, Front Porch
Community Features
Community Features: Sidewalks, Pool, Clubhouse, Gated, Community Mailbox
Security Features: Gated Community
Association Amenities: Gated, Pool, Clubhouse
HOA Dues Include: Road Maintenance, Maintenance Structure, Pool(s)
Homeowners Association: Yes
HOA Dues: $980 / Quarterly
Driving Directions
Take 417 South to Osceola Parkway to Epcot/Magic Kingdom/Disney's Animal Kingdom to 192 East. Go straight on N Old Lake Wilson Rd, stay on the right hand side. Community will be on your right. Make Right on Livingston Rd, and make Right onto Mayaguana St.
Financial Considerations
Terms: Cash,Conventional,FHA
Tax/Property ID: 10-25-27-2524-0001-0990
Tax Amount: 3045.65
Tax Year: 2024
A broker reciprocity listing courtesy: REAL ESTATE EMPIRE GROUP, INC.
Based on information provided by Stellar MLS as distributed by the MLS GRID. Information from the Internet Data Exchange is provided exclusively for consumers’ personal, non-commercial use, and such information may not be used for any purpose other than to identify prospective properties consumers may be interested in purchasing. This data is deemed reliable but is not guaranteed to be accurate by Edina Realty, Inc., or by the MLS. Edina Realty, Inc., is not a multiple listing service (MLS), nor does it offer MLS access.
Copyright 2026 Stellar MLS as distributed by the MLS GRID. All Rights Reserved.
Payment Calculator
Interest rate and annual percentage rate (APR) are based on current market conditions, are for informational purposes only, are subject to change without notice and may be subject to pricing add-ons related to property type, loan amount, loan-to-value, credit score and other variables. Estimated closing costs used in the APR calculation are assumed to be paid by the borrower at closing. If the closing costs are financed, the loan, APR and payment amounts will be higher. If the down payment is less than 20%, mortgage insurance may be required and could increase the monthly payment and APR. Contact us for details. Additional loan programs may be available. Accuracy is not guaranteed, and all products may not be available in all borrower's geographical areas and are based on their individual situation. This is not a credit decision or a commitment to lend.
Sales History & Tax Summary for 2662 Mayaguana Street
Sales History
| Date | Price | |
|---|---|---|
| Currently not available. | ||
Tax Summary
| Tax Year | Estimated Market Value | Total Tax |
|---|---|---|
| Currently not available. | ||
Data powered by ATTOM Data Solutions. Copyright© 2026. Information deemed reliable but not guaranteed.
Schools
Schools nearby 2662 Mayaguana Street
| Schools in attendance boundaries | Grades | Distance | Rating |
|---|---|---|---|
| Loading... | |||
| Schools nearby | Grades | Distance | Rating |
|---|---|---|---|
| Loading... | |||
Data powered by ATTOM Data Solutions. Copyright© 2026. Information deemed reliable but not guaranteed.
The schools shown represent both the assigned schools and schools by distance based on local school and district attendance boundaries. Attendance boundaries change based on various factors and proximity does not guarantee enrollment eligibility. Please consult your real estate agent and/or the school district to confirm the schools this property is zoned to attend. Information is deemed reliable but not guaranteed.
SchoolDigger ® Rating
The SchoolDigger rating system is a 1-5 scale with 5 as the highest rating. SchoolDigger ranks schools based on test scores supplied by each state's Department of Education. They calculate an average standard score by normalizing and averaging each school's test scores across all tests and grades.
Coming soon properties will soon be on the market, but are not yet available for showings.