$275,000
2663 Roadster Lane Kissimmee, FL 34746
For Sale MLS# S5139999
2 beds 3 baths 1,350 sq ft Townhouse/Twinhome
Details for 2663 Roadster Lane
MLS# S5139999
Description for 2663 Roadster Lane, Kissimmee, FL, 34746
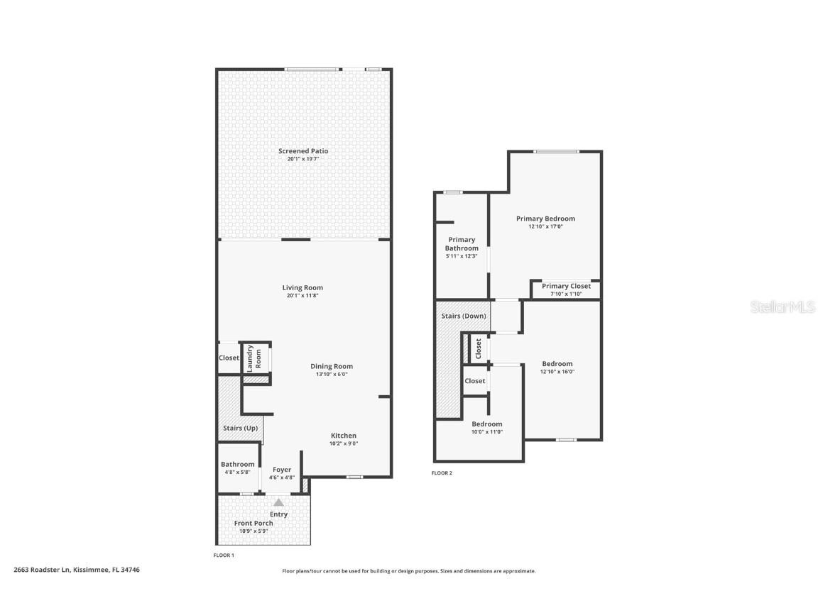
Step into the epitome of Central Florida resort living with this pristine, fully furnished 2-bedroom, 2.5-bathroom townhome, ideally situated in the highly sought-after, gated community of Regal Oaks. Perfect for a hassle-free vacation home or a lucrative short-term rental investment, this property offers immediate guest-readiness. The open-concept living space flows seamlessly to a private, screened-in patio, where you'll find your own above-ground spa—the perfect spot to unwind after a long day at the theme parks. As a resident or investor, you benefit from Regal Oaks' incredible, resort-style amenities, including a spectacular pool complex with dual waterslides, a large hot tub, the Game-On Arcade, a fitness center, tennis and pickleball courts, and two on-site restaurants and a poolside bar. This prime location places you in the heart of the action, just minutes from Central Florida's world-famous attractions, premier dining, and extensive shopping. With its high appeal to vacationers and a proven track record as a rental property, 2663 Roadster Lane presents an outstanding opportunity to own a piece of the thriving Kissimmee market. Don't miss your chance to acquire this beautifully maintained townhome, offering both personal enjoyment and excellent investment potential in a fully managed, amenity-rich community
Listing Information
Property Type: Residential, Townhouse
Status: Active
Bedrooms: 2
Bathrooms: 3
Lot Size: 0.03 Acres
Square Feet: 1,350 sq ft
Year Built: 2015
Stories: 2 Story
Construction: Block,Concrete,Stucco
Subdivision: Regal Oaks
Foundation: Slab
County: Osceola
Room Information
Main Floor
Dining Room: 6x13
Living Room: 11x20
Kitchen: 9x10
Upper Floor
Bedroom 2: 16x12
Primary Bedroom: 17x12
Bathrooms
Full Baths: 2
1/2 Baths: 1
Additonal Room Information
Laundry: Laundry Closet
Interior Features
Appliances: Built-In Oven, Washer, Refrigerator, Cooktop, Dishwasher, Dryer, Microwave
Flooring: Tile,Vinyl
Additional Interior Features: Upper Level Primary
Utilities
Water: Public
Sewer: Public Sewer
Other Utilities: Cable Available,Electricity Available,High Speed Internet Available,Municipal Utilities,Phone Available,Water Available
Cooling: Central Air
Heating: Central, Electric
Exterior / Lot Features
Parking Description: Open
Roof: Tile
Pool: Community
Lot Dimensions: 21x70
Community Features
Community Features: Sidewalks, Pool, Tennis Court(s), Clubhouse, Restaurant, Fitness
HOA Dues Include: Other, Cable TV, Internet, Recreation Facilities, Trash, Maintenance Grounds, Security
Homeowners Association: Yes
HOA Dues: $1,305 / Quarterly
Driving Directions
From I-4, head east on Hwy 192 to Holiday Trail, right. Make a left on Golden Hawk Way through the gates.
Financial Considerations
Terms: Cash,Conventional,FHA,VA Loan
Tax/Property ID: 09-25-28-2977-0001-4520
Tax Amount: 4101.12
Tax Year: 2024
A broker reciprocity listing courtesy: TEAM DONOVAN
Based on information provided by Stellar MLS as distributed by the MLS GRID. Information from the Internet Data Exchange is provided exclusively for consumers’ personal, non-commercial use, and such information may not be used for any purpose other than to identify prospective properties consumers may be interested in purchasing. This data is deemed reliable but is not guaranteed to be accurate by Edina Realty, Inc., or by the MLS. Edina Realty, Inc., is not a multiple listing service (MLS), nor does it offer MLS access.
Copyright 2026 Stellar MLS as distributed by the MLS GRID. All Rights Reserved.
Payment Calculator
Interest rate and annual percentage rate (APR) are based on current market conditions, are for informational purposes only, are subject to change without notice and may be subject to pricing add-ons related to property type, loan amount, loan-to-value, credit score and other variables. Estimated closing costs used in the APR calculation are assumed to be paid by the borrower at closing. If the closing costs are financed, the loan, APR and payment amounts will be higher. If the down payment is less than 20%, mortgage insurance may be required and could increase the monthly payment and APR. Contact us for details. Additional loan programs may be available. Accuracy is not guaranteed, and all products may not be available in all borrower's geographical areas and are based on their individual situation. This is not a credit decision or a commitment to lend.
Sales History & Tax Summary for 2663 Roadster Lane
Sales History
| Date | Price | Change |
|---|---|---|
| Currently not available. | ||
Tax Summary
| Tax Year | Estimated Market Value | Total Tax |
|---|---|---|
| Currently not available. | ||
Data powered by ATTOM Data Solutions. Copyright© 2026. Information deemed reliable but not guaranteed.
Schools
Schools nearby 2663 Roadster Lane
| Schools in attendance boundaries | Grades | Distance | Rating |
|---|---|---|---|
| Loading... | |||
| Schools nearby | Grades | Distance | Rating |
|---|---|---|---|
| Loading... | |||
Data powered by ATTOM Data Solutions. Copyright© 2026. Information deemed reliable but not guaranteed.
The schools shown represent both the assigned schools and schools by distance based on local school and district attendance boundaries. Attendance boundaries change based on various factors and proximity does not guarantee enrollment eligibility. Please consult your real estate agent and/or the school district to confirm the schools this property is zoned to attend. Information is deemed reliable but not guaranteed.
SchoolDigger ® Rating
The SchoolDigger rating system is a 1-5 scale with 5 as the highest rating. SchoolDigger ranks schools based on test scores supplied by each state's Department of Education. They calculate an average standard score by normalizing and averaging each school's test scores across all tests and grades.
Coming soon properties will soon be on the market, but are not yet available for showings.