$70,000
2679 Alissa Lane Maplewood, MN 55119
For Sale MLS# 7039018
3 beds 2 baths 1,088 sq ft Single Family
Details for 2679 Alissa Lane
MLS# 7039018
Description for 2679 Alissa Lane, Maplewood, MN, 55119
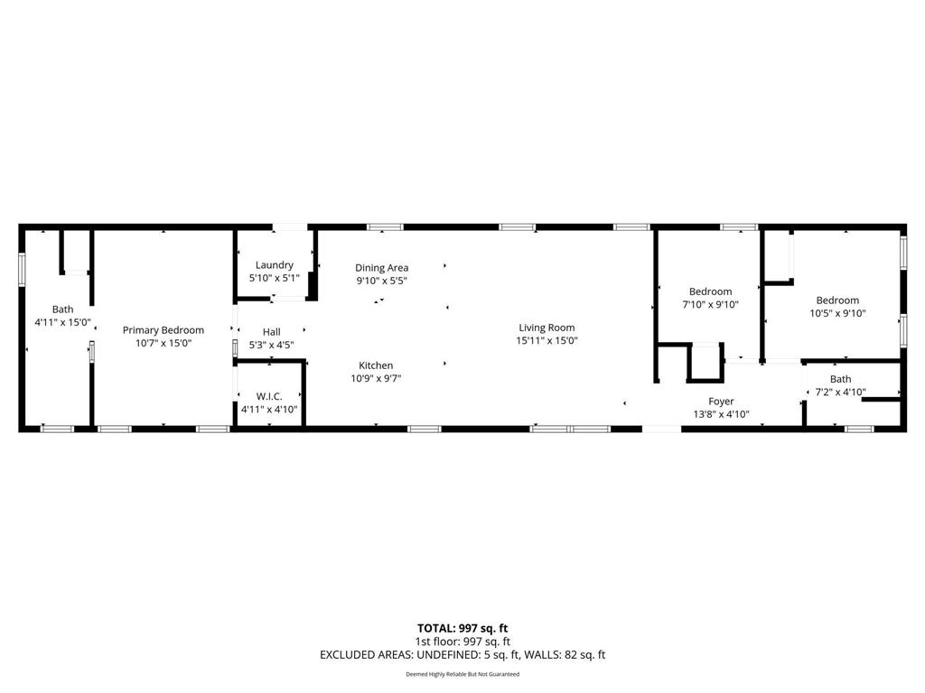
Well cared for one level home with three bedrooms, two baths. Great open concept with vaulted ceiling from the living room into the dining room and kitchen. Enjoy a kitchen with a gas stove, breakfast bar, large refrigerator with bottom freezer, window by the sink and overhead pendant lighting. Paneled French doors lead to a spacious primary room with attached full bathroom, walk in closet and conveniently located near the kitchen and separate laundry room. This home backs up to a serene, wooded area, off street parking spaces and an outdoor shed. Lot rent includes water, sewer. garbage, recycling and use of the community playground.Updates include:New a/c in 2024. All new windows and cabinets in 2020. Torchdown roof installed 2020 (expected to last another 15 years). Updated appliances include stove, dishwasher, toilets, sinks, tub, shower and washer. Exterior walls replaced with new sheetrock and insulation.
Listing Information
Property Type: Residential, Single Family
Status: Active
Bedrooms: 3
Bathrooms: 2
Square Feet: 1,088 sq ft
Year Built: 1988
Foundation: 1,088 sq ft
Stories: 1 Story
County: Ramsey
Days On Market: 42
Construction Status: Previously Owned
School Information
District: 622 - North St Paul-Maplewood
Room Information
Main Floor
Bedroom 1: 15x10
Bedroom 2: 10x9
Bedroom 3: 8x7
Dining Room: 9x5
Kitchen: 10x9
Living Room: 16x15
Bathrooms
Full Baths: 1
3/4 Baths: 1
Additonal Room Information
Family: Main Level
Laundry: Main Level
Bath Description: Full Primary,Main Floor 3/4 Bath,Main Floor Full Bath,Private Primary
Interior Features
Square Footage above: 1,088 sq ft
Appliances: Washer, Dishwasher, Dryer, Range, Refrigerator
Additional Interior Features: Ceiling Fan(s), Kitchen Window, French Doors, Paneled Doors, Main Floor Laundry, Main Floor Primary, Walk-In Closet
Utilities
Water: City Water/Connected
Sewer: City Sewer/Connected
Cooling: Central
Heating: Natural Gas, Forced Air
Exterior / Lot Features
Parking Description: Other, Garage Sq Ft - 0.00
Exterior: Other, Shakes, Vinyl
Lot Dimensions: N/A
Zoning: Residential-Single Family
Out Buildings: Shed - Storage
Driving Directions
Hwy 120 / Geneva Ave north to Ryan Drive. Go west, Go to Pearson Drive and turn north. Continue around corner to Alissa Lane. Property will be on your right.
Financial Considerations
Tax/Property ID: 0957M80030
Tax Amount: 294
Tax Year: 2025
HomeStead Description: Homesteaded
A broker reciprocity listing courtesy: Keller Williams Preferred Rlty
The data relating to real estate for sale on this web site comes in part from the Broker Reciprocity℠ Program of the Regional Multiple Listing Service of Minnesota, Inc. Real estate listings held by brokerage firms other than Edina Realty, Inc. are marked with the Broker Reciprocity℠ logo or the Broker Reciprocity℠ thumbnail and detailed information about them includes the name of the listing brokers. Edina Realty, Inc. is not a Multiple Listing Service (MLS), nor does it offer MLS access. This website is a service of Edina Realty, Inc., a broker Participant of the Regional Multiple Listing Service of Minnesota, Inc. IDX information is provided exclusively for consumers personal, non-commercial use and may not be used for any purpose other than to identify prospective properties consumers may be interested in purchasing. Open House information is subject to change without notice. Information deemed reliable but not guaranteed.
Copyright 2026 Regional Multiple Listing Service of Minnesota, Inc. All Rights Reserved.
Payment Calculator
Interest rate and annual percentage rate (APR) are based on current market conditions, are for informational purposes only, are subject to change without notice and may be subject to pricing add-ons related to property type, loan amount, loan-to-value, credit score and other variables. Estimated closing costs used in the APR calculation are assumed to be paid by the borrower at closing. If the closing costs are financed, the loan, APR and payment amounts will be higher. If the down payment is less than 20%, mortgage insurance may be required and could increase the monthly payment and APR. Contact us for details. Additional loan programs may be available. Accuracy is not guaranteed, and all products may not be available in all borrower's geographical areas and are based on their individual situation. This is not a credit decision or a commitment to lend.
Sales History & Tax Summary for 2679 Alissa Lane
Sales History
| Date | Price | |
|---|---|---|
| Currently not available. | ||
Tax Summary
| Tax Year | Estimated Market Value | Total Tax |
|---|---|---|
| Currently not available. | ||
Data powered by ATTOM Data Solutions. Copyright© 2026. Information deemed reliable but not guaranteed.
Schools
Schools nearby 2679 Alissa Lane
| Schools in attendance boundaries | Grades | Distance | Rating |
|---|---|---|---|
| Loading... | |||
| Schools nearby | Grades | Distance | Rating |
|---|---|---|---|
| Loading... | |||
Data powered by ATTOM Data Solutions. Copyright© 2026. Information deemed reliable but not guaranteed.
The schools shown represent both the assigned schools and schools by distance based on local school and district attendance boundaries. Attendance boundaries change based on various factors and proximity does not guarantee enrollment eligibility. Please consult your real estate agent and/or the school district to confirm the schools this property is zoned to attend. Information is deemed reliable but not guaranteed.
SchoolDigger ® Rating
The SchoolDigger rating system is a 1-5 scale with 5 as the highest rating. SchoolDigger ranks schools based on test scores supplied by each state's Department of Education. They calculate an average standard score by normalizing and averaging each school's test scores across all tests and grades.
Coming soon properties will soon be on the market, but are not yet available for showings.