26925 White Plains Way Leesburg, FL 34748
For Sale MLS# G5102632
2 beds 2 baths 1,254 sq ft Single Family
Details for 26925 White Plains Way
MLS# G5102632
Description for 26925 White Plains Way, Leesburg, FL, 34748
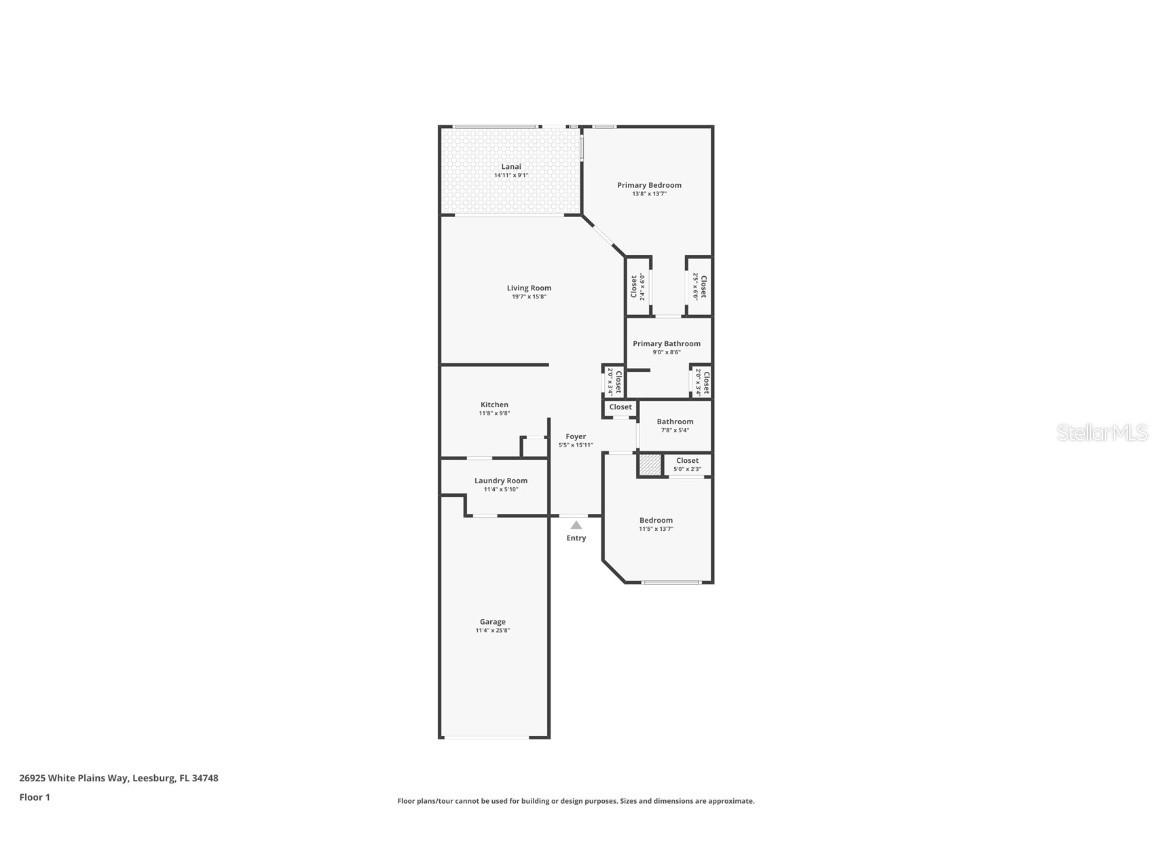
Affordable, Recently Updated Villa in Highly Sought-After, Guard-Gated Arlington Ridge – An Active Adult, Golf Community! Discover low-maintenance living in this beautifully updated 2-bedroom, 2-bathroom villa with 1,254 sq. ft. of thoughtfully designed space. Located in the guard-gated, this charming block & stucco home is packed with recent upgrades, great amenities, and unbeatable value. Key Features: MAJOR UPDATES: New Roof in 2023, New central heat & air (2024), new stainless-steel appliances, including a double oven gas range, dishwasher and French door refrigerator with 4 years remaining on the warranty. ALL NEW 100% waterproof, deluxe vinyl plank flooring throughout—NO CARPET! Low-maintenance landscaping and exterior fully maintained by HOA – from the roof to the lawn allowing you more time to do what you want. What will you do in your spare time? Spacious 19x16 living room, crown molding, and a screened, covered lanai overlooking a private, shaded backyard. Oversized 1-car garage + private driveway for guest parking. Indoor laundry room (11x9) with washer & dryer included. Master suite includes dual closets, ensuite bath with walk-in shower, dual vanities, private toilet, and linen closet. Guest bedroom with adjacent full bath offers comfort and privacy for visitors. Low HOA – Just $297/month! Includes: Roof & exterior painting as needed Lawn mowing, trimming, of blowing off of sidewalk & driveway 200+ cable TV channels 250 Mbps high-speed internet Wi-Fi router for full-home coverage Resort-Style Amenities Just 2 Blocks Away, Mailbox 1/4 Block away 18-hole golf course, driving range, & putting greens 2 heated pools, hot tub & sauna Lighted tennis & pickleball courts Fitness center, billiards, restaurant, tavern, & free movie theater No required golf or social membership to enjoy amenities! Golf cart-friendly with sidewalks and underground utilities for a polished community feel. Perfect for snowbirds or full-time residents who want peace of mind with no exterior upkeep. Home is built to high wind code standards in a low-wind zone—offering significant insurance savings and flood protection due to high elevation. Currently Paying Only $1,085/Year Ideal Location: 1 minute to back gate to avoid stoplights & traffic when leaving the community 5 minutes to grocery stores, pharmacies, and restaurants 10 minutes to emergency services and free public boat ramp & fishing pier on 15,000-acre lake Harris a major bass tournament fishing destination 20 minutes to major shopping and entertainment 45 minutes to Orlando, theme parks, and airport 90 minutes to both the Atlantic Coast and Gulf Coast
Listing Information
Property Type: Residential, Villa
Status: Active
Bedrooms: 2
Bathrooms: 2
Lot Size: 0.08 Acres
Square Feet: 1,254 sq ft
Year Built: 2009
Garage: Yes
Stories: 1 Story
Construction: Block,Stucco
Subdivision: Arlington Rdg Ph 01-C
Foundation: Slab
County: Lake
Room Information
Main Floor
Porch: 9x15
Laundry: 6x11
Bedroom 2: 11x14
Primary Bedroom: 13x14
Kitchen: 9x12
Living Room: 16x19
Bathrooms
Full Baths: 2
Additonal Room Information
Laundry: Inside, Laundry Room
Interior Features
Appliances: Washer, Microwave, Range, Refrigerator, Dishwasher, Dryer
Flooring: Laminate
Doors/Windows: Window Treatments
Accessibility: Wheelchair Access
Additional Interior Features: Walk-In Closet(s), Window Treatments, Built-in Features, Split Bedrooms, Main Level Primary, Living/Dining Room, Open Floorplan, Wood Cabinets
Utilities
Water: Public
Sewer: Public Sewer
Other Utilities: Cable Connected,Electricity Connected,Fiber Optic Available,Natural Gas Connected,Sewer Connected,Underground Utilities,Water Connected
Cooling: Central Air
Heating: Gas, Central
Exterior / Lot Features
Attached Garage: Attached Garage
Garage Spaces: 1
Roof: Shingle
Pool: Association, Community
Additional Exterior/Lot Features: Rain Gutters, Rear Porch, Screened, Level, Flat, Landscaped, City Lot, Near Golf Course, Buyer Approval Required
Community Features
Community Features: Fitness, Golf Carts OK, Gated, Restaurant, Street Lights, Clubhouse, Golf, Handicap Access, Pool, Tennis Court(s), Sidewalks
Security Features: Fire Hydrant(s), Gated Community, Gated with Guard
Association Amenities: Recreation Facilities, Fitness Center, Clubhouse, Sauna, Tennis Court(s), Pool, Pickleball, Gated, Spa/Hot Tub, Golf Course
HOA Dues Include: Maintenance Grounds, Maintenance Structure, Cable TV, Recreation Facilities
Homeowners Association: Yes
HOA Dues: $297 / Monthly
Driving Directions
From downtown Leesburg go S on Hwy 27 to R on Arlington Ridge Blvd to R on White Plains Way, home on R sign in yard
Financial Considerations
Terms: Cash,Conventional,FHA,VA Loan
Tax/Property ID: 14-20-24-0017-000-63300
Tax Amount: 2401.76
Tax Year: 2024
A broker reciprocity listing courtesy: LOKATION
Based on information provided by Stellar MLS as distributed by the MLS GRID. Information from the Internet Data Exchange is provided exclusively for consumers’ personal, non-commercial use, and such information may not be used for any purpose other than to identify prospective properties consumers may be interested in purchasing. This data is deemed reliable but is not guaranteed to be accurate by Edina Realty, Inc., or by the MLS. Edina Realty, Inc., is not a multiple listing service (MLS), nor does it offer MLS access.
Copyright 2025 Stellar MLS as distributed by the MLS GRID. All Rights Reserved.
Payment Calculator
Interest rate and annual percentage rate (APR) are based on current market conditions, are for informational purposes only, are subject to change without notice and may be subject to pricing add-ons related to property type, loan amount, loan-to-value, credit score and other variables. Estimated closing costs used in the APR calculation are assumed to be paid by the borrower at closing. If the closing costs are financed, the loan, APR and payment amounts will be higher. If the down payment is less than 20%, mortgage insurance may be required and could increase the monthly payment and APR. Contact us for details. Additional loan programs may be available. Accuracy is not guaranteed, and all products may not be available in all borrower's geographical areas and are based on their individual situation. This is not a credit decision or a commitment to lend.
Sales History & Tax Summary for 26925 White Plains Way
Sales History
| Date | Price | Change |
|---|---|---|
| Currently not available. | ||
Tax Summary
| Tax Year | Estimated Market Value | Total Tax |
|---|---|---|
| Currently not available. | ||
Data powered by ATTOM Data Solutions. Copyright© 2025. Information deemed reliable but not guaranteed.
Schools
Schools nearby 26925 White Plains Way
| Schools in attendance boundaries | Grades | Distance | Rating |
|---|---|---|---|
| Loading... | |||
| Schools nearby | Grades | Distance | Rating |
|---|---|---|---|
| Loading... | |||
Data powered by ATTOM Data Solutions. Copyright© 2025. Information deemed reliable but not guaranteed.
The schools shown represent both the assigned schools and schools by distance based on local school and district attendance boundaries. Attendance boundaries change based on various factors and proximity does not guarantee enrollment eligibility. Please consult your real estate agent and/or the school district to confirm the schools this property is zoned to attend. Information is deemed reliable but not guaranteed.
SchoolDigger ® Rating
The SchoolDigger rating system is a 1-5 scale with 5 as the highest rating. SchoolDigger ranks schools based on test scores supplied by each state's Department of Education. They calculate an average standard score by normalizing and averaging each school's test scores across all tests and grades.
Coming soon properties will soon be on the market, but are not yet available for showings.