$505,140
270 Rolling Hills Lane Delano, MN 55328
For Sale MLS# 6817135
4 beds 3 baths 2,271 sq ft Single Family
Details for 270 Rolling Hills Lane
MLS# 6817135
Description for 270 Rolling Hills Lane, Delano, MN, 55328
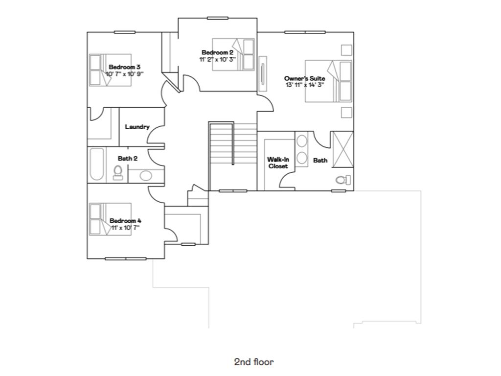
This home is under construction and available for a March closing date! Ask about how to qualify for savings up to $7,500 with the use of the Seller's Preferred Lender! Welcome to Highland Ridge in Delano, a scenic community that blends small-town charm with access to top-rated schools. This thoughtfully designed Vanderbilt floor plan offers four bedrooms and impressive living spaces throughout. The main level features a spacious family room, a versatile flex room with French doors, and a beautifully appointed dine-in kitchen with white cabinetry, quartz countertops, Slate appliances, a walk-in pantry, and a large island ideal for gatherings. Upstairs, discover four generous bedrooms, including a private owner’s suite with a walk-in closet and spa-inspired bath, along with a convenient laundry room. Nestled on a large corner homesite within a quiet cul-de-sac, this home also includes a 3-car garage, an unfinished walkout basement, and picturesque views—all in one of Delano’s most desirable neighborhoods.
Listing Information
Property Type: Residential, Single Family
Status: Active
Bedrooms: 4
Bathrooms: 3
Lot Size: 0.30 Acres
Square Feet: 2,271 sq ft
Year Built: 2026
Foundation: 1,115 sq ft
Garage: Yes
Stories: 2 Stories
Date Available: 3/21/2026
Construction Display: New Construction
Completion date: 2026-03-21T05:00:00Z
Subdivision: Highland Ridge
Builder: LENNAR
County: Wright
Days On Market: 35
Construction Status: Under Construc/Spec Homes
School Information
District: 879 - Delano
Room Information
Main Floor
Dining Room: 12x10
Family Room: 16x17
Flex Room: 10x13
Kitchen: 11x13
Upper Floor
Bedroom 1: 14x14
Bedroom 2: 11x10
Bedroom 3: 11x11
Bedroom 4: 11x11
Bathrooms
Full Baths: 1
3/4 Baths: 1
1/2 Baths: 1
Additonal Room Information
Family: Great Room,Main Level
Dining: Eat In Kitchen,Informal Dining Room
Laundry: Washer Hookup, Laundry Room, Upper Level, Gas Dryer Hookup
Bath Description: 3/4 Primary,Main Floor 1/2 Bath,Private Primary,Upper Level Full Bath
Interior Features
Square Footage above: 2,271 sq ft
Appliances: Tankless Water Heater, Stainless Steel Appliances, Range, Refrigerator, Microwave, Air-To-Air Exchanger, Dishwasher, Disposal, Furnace Humidifier
Basement: Unfinished, Walkout, Storage Space
Fireplaces: 1, Stone, Gas Burning, Family Room
Additional Interior Features: Natural Woodwork, Kitchen Window, Primary Bdr Suite, 3 BR on One Level, 4 BR on One Level, 2nd Floor Laundry, French Doors, Paneled Doors, Kitchen Center Island, Walk-In Closet, Washer/Dryer Hookup
Utilities
Water: City Water/Connected
Sewer: City Sewer/Connected
Cooling: Central
Heating: Fireplace, Forced Air, Natural Gas
Exterior / Lot Features
Attached Garage: Attached Garage
Garage Spaces: 3
Parking Description: Garage Door Opener, Driveway - Asphalt, Attached Garage, Garage Dimensions - 21x22, Garage Door Height - 8, Garage Sq Ft - 678.0
Exterior: Brick/Stone, Vinyl, Wood
Roof: Age 8 Years or Less, Asphalt Shingles, Pitched
Lot Dimensions: TBD
Zoning: Residential-Single Family
Additional Exterior/Lot Features: Porch, In-Ground Sprinkler, Sod Included in Price, Underground Utilities, Road Frontage - City
Community Features
Community Features: Play Area, Other
Association Amenities: Other, Tennis Courts, Trails
Homeowners Association: Yes
Driving Directions
Hwy 12 west to SE Davidson Ave; Continue onto SE Davidson Ave; Turn right onto Rolling Hills Ln.
Financial Considerations
Tax/Property ID: TBD
Tax Year: 2025
HomeStead Description: Non-Homesteaded
A broker reciprocity listing courtesy: Lennar Sales Corp
The data relating to real estate for sale on this web site comes in part from the Broker Reciprocity℠ Program of the Regional Multiple Listing Service of Minnesota, Inc. Real estate listings held by brokerage firms other than Edina Realty, Inc. are marked with the Broker Reciprocity℠ logo or the Broker Reciprocity℠ thumbnail and detailed information about them includes the name of the listing brokers. Edina Realty, Inc. is not a Multiple Listing Service (MLS), nor does it offer MLS access. This website is a service of Edina Realty, Inc., a broker Participant of the Regional Multiple Listing Service of Minnesota, Inc. IDX information is provided exclusively for consumers personal, non-commercial use and may not be used for any purpose other than to identify prospective properties consumers may be interested in purchasing. Open House information is subject to change without notice. Information deemed reliable but not guaranteed.
Copyright 2025 Regional Multiple Listing Service of Minnesota, Inc. All Rights Reserved.
Payment Calculator
Interest rate and annual percentage rate (APR) are based on current market conditions, are for informational purposes only, are subject to change without notice and may be subject to pricing add-ons related to property type, loan amount, loan-to-value, credit score and other variables. Estimated closing costs used in the APR calculation are assumed to be paid by the borrower at closing. If the closing costs are financed, the loan, APR and payment amounts will be higher. If the down payment is less than 20%, mortgage insurance may be required and could increase the monthly payment and APR. Contact us for details. Additional loan programs may be available. Accuracy is not guaranteed, and all products may not be available in all borrower's geographical areas and are based on their individual situation. This is not a credit decision or a commitment to lend.
Sales History & Tax Summary for 270 Rolling Hills Lane
Sales History
| Date | Price | Change |
|---|---|---|
| Currently not available. | ||
Tax Summary
| Tax Year | Estimated Market Value | Total Tax |
|---|---|---|
| Currently not available. | ||
Data powered by ATTOM Data Solutions. Copyright© 2025. Information deemed reliable but not guaranteed.
Schools
Schools nearby 270 Rolling Hills Lane
| Schools in attendance boundaries | Grades | Distance | Rating |
|---|---|---|---|
| Loading... | |||
| Schools nearby | Grades | Distance | Rating |
|---|---|---|---|
| Loading... | |||
Data powered by ATTOM Data Solutions. Copyright© 2025. Information deemed reliable but not guaranteed.
The schools shown represent both the assigned schools and schools by distance based on local school and district attendance boundaries. Attendance boundaries change based on various factors and proximity does not guarantee enrollment eligibility. Please consult your real estate agent and/or the school district to confirm the schools this property is zoned to attend. Information is deemed reliable but not guaranteed.
SchoolDigger ® Rating
The SchoolDigger rating system is a 1-5 scale with 5 as the highest rating. SchoolDigger ranks schools based on test scores supplied by each state's Department of Education. They calculate an average standard score by normalizing and averaging each school's test scores across all tests and grades.
Coming soon properties will soon be on the market, but are not yet available for showings.