$154,999
2700 Bayshore Boulevard #4106 Dunedin, FL 34698
For Sale MLS# TB8478493
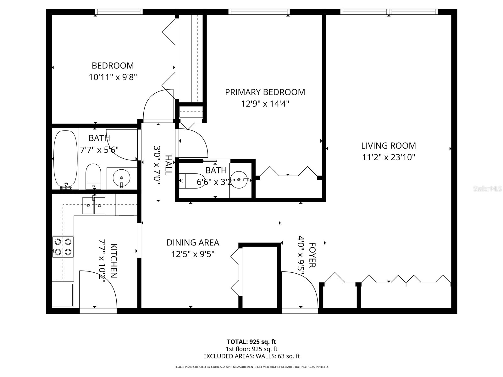
2 beds 2 baths 900 sq ft Condo
Details for 2700 Bayshore Boulevard #4106
MLS# TB8478493
Description for 2700 Bayshore Boulevard #4106, Dunedin, FL, 34698
Move-in ready and fully furnished, this delightful Florida getaway condo is located in a sought-after waterfront community in Dunedin. Positioned directly across from the Pinellas Trail, with shopping, dining, and everyday conveniences just a block away, this location offers an exceptional coastal lifestyle with ease and accessibility. The residence is ultra clean and well maintained, featuring a combination of carpet, laminate, and tile flooring, a newer A/C system, and an updated electrical breaker panel. Offered fully furnished, this condo is truly move-in ready and ideal for full-time living or a seasonal retreat. A covered carport provides convenient parking. Residents enjoy an impressive array of resort-style amenities, including a heated community pool, private beach, and beautifully maintained waterfront parks. Outdoor enthusiasts will appreciate kayak and canoe launch access, as well as courts for pickleball, tennis, shuffleboard, and bocce. Additional amenities include a clubhouse, fitness center, library, and recreation building, offering a variety of options for relaxation and social engagement. Conveniently located near downtown Dunedin, area beaches, marinas, festivals, and local attractions, this waterfront community delivers the relaxed Florida lifestyle buyers are seeking. Schedule your private showing today! Buyer to verify all room dimensions, HOA information, rules, restrictions, and amenities.
Listing Information
Property Type: Residential, Condominium
Status: Active
Bedrooms: 2
Bathrooms: 2
Lot Size: 1.27 Acres
Square Feet: 900 sq ft
Year Built: 1973
Stories: 1 Story
Construction: Block,Other,Stucco
Subdivision: Mediterranean Manors
Foundation: Slab
County: Pinellas
School Information
Elementary: San Jose Elementary-Pn
Middle: Palm Harbor Middle-Pn
High: Dunedin High-Pn
Room Information
Main Floor
Primary Bedroom:
Kitchen:
Living Room:
Bathrooms
Full Baths: 1
1/2 Baths: 1
Additonal Room Information
Laundry: Common On Floor, Common Area
Interior Features
Appliances: Dishwasher
Flooring: Carpet,Ceramic Tile,Laminate
Doors/Windows: Window Treatments
Additional Interior Features: Ceiling Fan(s), Window Treatments, Stone Counters
Utilities
Water: Public
Sewer: Public Sewer
Other Utilities: Electricity Connected,Water Connected
Cooling: Ceiling Fan(s), Central Air
Heating: Electric
Exterior / Lot Features
Roof: Built-Up
Pool: Community
Additional Exterior/Lot Features: Sprinkler/Irrigation, Courtyard, Buyer Approval Required
Community Features
Community Features: Water Access, Fishing, Fitness, Clubhouse
HOA Dues Include: Cable TV, Internet, Trash, Water, Taxes, Recreation Facilities, Sewer, Common Areas, Maintenance Structure, Pool(s), Insurance, Maintenance Grounds, Reserve Fund, Road Maintenance
Driving Directions
From US-19, take Curlew Road west toward Dunedin. Turn south onto Alt US-19 (Bayshore Blvd). Continue south past downtown Dunedin; Mediterranean Manors will be on the west side of Bayshore Blvd, just south of the Pinellas Trail. Enter the community at 2700 Bayshore Blvd and follow signage to the unit.
Financial Considerations
Terms: Cash,Conventional,FHA,Other,VA Loan
Tax/Property ID: 14-28-15-57000-000-4106
Tax Amount: 2858.43
Tax Year: 2025
A broker reciprocity listing courtesy: EXP REALTY LLC
Based on information provided by Stellar MLS as distributed by the MLS GRID. Information from the Internet Data Exchange is provided exclusively for consumers’ personal, non-commercial use, and such information may not be used for any purpose other than to identify prospective properties consumers may be interested in purchasing. This data is deemed reliable but is not guaranteed to be accurate by Edina Realty, Inc., or by the MLS. Edina Realty, Inc., is not a multiple listing service (MLS), nor does it offer MLS access.
Copyright 2026 Stellar MLS as distributed by the MLS GRID. All Rights Reserved.
Payment Calculator
Interest rate and annual percentage rate (APR) are based on current market conditions, are for informational purposes only, are subject to change without notice and may be subject to pricing add-ons related to property type, loan amount, loan-to-value, credit score and other variables. Estimated closing costs used in the APR calculation are assumed to be paid by the borrower at closing. If the closing costs are financed, the loan, APR and payment amounts will be higher. If the down payment is less than 20%, mortgage insurance may be required and could increase the monthly payment and APR. Contact us for details. Additional loan programs may be available. Accuracy is not guaranteed, and all products may not be available in all borrower's geographical areas and are based on their individual situation. This is not a credit decision or a commitment to lend.
Sales History & Tax Summary for 2700 Bayshore Boulevard #4106
Sales History
| Date | Price | |
|---|---|---|
| Currently not available. | ||
Tax Summary
| Tax Year | Estimated Market Value | Total Tax |
|---|---|---|
| Currently not available. | ||
Data powered by ATTOM Data Solutions. Copyright© 2026. Information deemed reliable but not guaranteed.
Schools
Schools nearby 2700 Bayshore Boulevard #4106
| Schools in attendance boundaries | Grades | Distance | Rating |
|---|---|---|---|
| Loading... | |||
| Schools nearby | Grades | Distance | Rating |
|---|---|---|---|
| Loading... | |||
Data powered by ATTOM Data Solutions. Copyright© 2026. Information deemed reliable but not guaranteed.
The schools shown represent both the assigned schools and schools by distance based on local school and district attendance boundaries. Attendance boundaries change based on various factors and proximity does not guarantee enrollment eligibility. Please consult your real estate agent and/or the school district to confirm the schools this property is zoned to attend. Information is deemed reliable but not guaranteed.
SchoolDigger ® Rating
The SchoolDigger rating system is a 1-5 scale with 5 as the highest rating. SchoolDigger ranks schools based on test scores supplied by each state's Department of Education. They calculate an average standard score by normalizing and averaging each school's test scores across all tests and grades.
Coming soon properties will soon be on the market, but are not yet available for showings.