2708 Camaro Drive Kissimmee, FL 34746
For Sale MLS# S5129876
4 beds 3 baths 1,440 sq ft Townhouse/Twinhome
Details for 2708 Camaro Drive
MLS# S5129876
Description for 2708 Camaro Drive, Kissimmee, FL, 34746
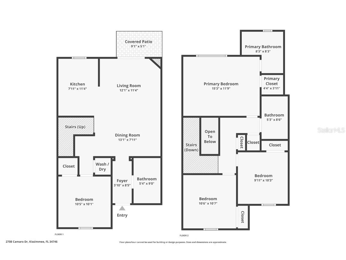
Beautifully Furnished 4-Bedroom, 3-Bath Townhome with a Downstairs Suite in a Premier Resort Community! Welcome to this tastefully furnished and well-maintained 4-bedroom, 3-bathroom townhome located in the highly sought-after, guard-gated community of Regal Oaks. Whether you're searching for a profitable short-term rental investment or a stylish second home near Orlando's most iconic attractions, this move-in-ready property checks every box. Step inside to discover an open-concept layout designed for easy living and entertaining. The spacious kitchen features sleek black appliances, ample cabinetry, and a convenient breakfast bar that flows seamlessly into the dining area and bright living room. Large sliding glass doors lead from the living space to the private patio, inviting you to enjoy Florida’s sunshine and fresh air year-round. Downstairs, you’ll find a thoughtfully placed bedroom and full bathroom—perfect for guests who prefer to avoid stairs. The entire first floor is fully tiled for low-maintenance living and a clean, modern look. Upstairs, the primary suite offers comfort and privacy with its own ensuite bathroom, while two additional bedrooms share a third full bath. A laundry closet with washer and dryer is also located on the main level for added convenience. Regal Oaks is more than just a place to stay—it's a lifestyle. This award-winning resort community offers a luxurious clubhouse, a well-equipped fitness center, a tennis court, multiple hot tubs, and a sparkling lakefront pool complete with a waterslide and poolside cabanas. HOA fees cover exterior maintenance, roof care, and even valet trash service, giving you true peace of mind whether you're here full-time or part-time. Perfectly positioned next to US 192 and the lively Old Town entertainment district, you’re surrounded by a variety of shopping, dining, and attractions. Walt Disney World, Universal Studios, and countless other Orlando-area destinations are just a short drive away. Whether you're ready to dive into the world of Airbnb hosting or you’re dreaming of a sun-soaked getaway home, this fully furnished townhome offers the perfect blend of comfort, convenience, and resort-style amenities. Don’t miss your chance to own in one of Central Florida’s top vacation communities!
Listing Information
Property Type: Residential, Townhouse
Status: Active
Bedrooms: 4
Bathrooms: 3
Lot Size: 0.03 Acres
Square Feet: 1,440 sq ft
Year Built: 2007
Stories: 2 Story
Construction: Block,Stucco
Property Attached: Yes
Construction Display: New Construction
Subdivision: Regal Oaks At Old Town
Foundation: Slab
County: Osceola
Construction Status: New Construction
School Information
Middle: Kissimmee Middle
Room Information
Main Floor
Bedroom 2: 10x10
Living Room: 11x12
Dining Room: 7x13
Kitchen: 7x11
Upper Floor
Bedroom 4: 10x10
Bedroom 3: 10x10
Primary Bedroom: 11x15
Bathrooms
Full Baths: 3
Additonal Room Information
Laundry: Laundry Closet, Electric Dryer Hookup
Interior Features
Appliances: Electric Water Heater, Washer, Dishwasher, Dryer, Microwave, Range, Refrigerator
Flooring: Carpet,Ceramic Tile
Doors/Windows: Window Treatments, Blinds
Additional Interior Features: Living/Dining Room, Ceiling Fan(s), Upper Level Primary, Open Floorplan
Utilities
Water: Public
Sewer: Public Sewer
Other Utilities: Cable Connected,Electricity Connected,Municipal Utilities,Sewer Connected,Water Connected
Cooling: Ceiling Fan(s), Central Air
Heating: Central
Exterior / Lot Features
Roof: Shingle
Pool: Community, Association
Lot Dimensions: 70x21
Additional Exterior/Lot Features: Sprinkler/Irrigation, Rear Porch, Covered, Landscaped
Community Features
Community Features: Pool, Sidewalks, Clubhouse, Waterfront, Gated, Restaurant, Fitness
Security Features: Gated Community, Gated with Guard, Smoke Detector(s)
Association Amenities: Recreation Facilities, Pool, Tennis Court(s), Clubhouse, Spa/Hot Tub, Fitness Center, Security, Maintenance Grounds, Gated
HOA Dues Include: Road Maintenance, Maintenance Grounds, Maintenance Structure, Pool(s), Insurance, Recreation Facilities
Homeowners Association: Yes
HOA Dues: $1,305 / Quarterly
Driving Directions
From Holiday Trail, left into Regal Oaks. Left at the roundabout onto Roadster Lane. Right onto Delorean Drive. Left onto Camaro.
Financial Considerations
Terms: Cash,Conventional,FHA,VA Loan
Tax/Property ID: 09-25-28-2977-0001-0710
Tax Amount: 3257
Tax Year: 2024
A broker reciprocity listing courtesy: LA ROSA REALTY LLC
Based on information provided by Stellar MLS as distributed by the MLS GRID. Information from the Internet Data Exchange is provided exclusively for consumers’ personal, non-commercial use, and such information may not be used for any purpose other than to identify prospective properties consumers may be interested in purchasing. This data is deemed reliable but is not guaranteed to be accurate by Edina Realty, Inc., or by the MLS. Edina Realty, Inc., is not a multiple listing service (MLS), nor does it offer MLS access.
Copyright 2025 Stellar MLS as distributed by the MLS GRID. All Rights Reserved.
Payment Calculator
Interest rate and annual percentage rate (APR) are based on current market conditions, are for informational purposes only, are subject to change without notice and may be subject to pricing add-ons related to property type, loan amount, loan-to-value, credit score and other variables. Estimated closing costs used in the APR calculation are assumed to be paid by the borrower at closing. If the closing costs are financed, the loan, APR and payment amounts will be higher. If the down payment is less than 20%, mortgage insurance may be required and could increase the monthly payment and APR. Contact us for details. Additional loan programs may be available. Accuracy is not guaranteed, and all products may not be available in all borrower's geographical areas and are based on their individual situation. This is not a credit decision or a commitment to lend.
Sales History & Tax Summary for 2708 Camaro Drive
Sales History
| Date | Price | Change |
|---|---|---|
| Currently not available. | ||
Tax Summary
| Tax Year | Estimated Market Value | Total Tax |
|---|---|---|
| Currently not available. | ||
Data powered by ATTOM Data Solutions. Copyright© 2025. Information deemed reliable but not guaranteed.
Schools
Schools nearby 2708 Camaro Drive
| Schools in attendance boundaries | Grades | Distance | Rating |
|---|---|---|---|
| Loading... | |||
| Schools nearby | Grades | Distance | Rating |
|---|---|---|---|
| Loading... | |||
Data powered by ATTOM Data Solutions. Copyright© 2025. Information deemed reliable but not guaranteed.
The schools shown represent both the assigned schools and schools by distance based on local school and district attendance boundaries. Attendance boundaries change based on various factors and proximity does not guarantee enrollment eligibility. Please consult your real estate agent and/or the school district to confirm the schools this property is zoned to attend. Information is deemed reliable but not guaranteed.
SchoolDigger ® Rating
The SchoolDigger rating system is a 1-5 scale with 5 as the highest rating. SchoolDigger ranks schools based on test scores supplied by each state's Department of Education. They calculate an average standard score by normalizing and averaging each school's test scores across all tests and grades.
Coming soon properties will soon be on the market, but are not yet available for showings.