$425,000
Off-Market Date: 02/03/20262709 Regency Oak Lane Orlando, FL 32833
Pending MLS# O6377728
4 beds 3 baths 1,845 sq ft Single Family
Details for 2709 Regency Oak Lane
MLS# O6377728
Description for 2709 Regency Oak Lane, Orlando, FL, 32833
**Click the Link for 3-D Walk-Through** This beautifully maintained 3-bedroom, 2.5-bath pool home with a spacious loft/office (easily convertible to a 4th bedroom) is located in the gated Reserve at Wedgefield and offers an open, light-filled floorplan designed for both everyday living and entertaining. The main-floor primary suite features French door access to the screened patio, pool, and spa, along with an en-suite bath and two closets. The dining area flows seamlessly into the living space and opens through French doors to a covered outdoor patio, while a flexible space off the kitchen is perfect for a dinette, office, homeschool area, or mudroom, complemented by a convenient first-floor laundry room with extra storage. Upstairs, you'll find two additional bedrooms, a full bathroom, and a loft that can serve as a fourth bedroom. Set on over a quarter-acre, the backyard offers a peaceful pond view, ample space for poolside lounging, and additional shaded side-yard space for play. A circular driveway provides generous parking, and the two-car garage includes an electric car plug already installed. Recent updates include a 2020 roof and A/C, new ceiling fans in the living room and primary bedroom, updated flooring, a new pool pump and electric pool heater, plus whole-house and under-sink water softeners. The community features a playground and pool and is conveniently located near Wedgefield Golf & Country Club, with easy access to Orlando, the airport, theme parks, and the Atlantic coastline via SR 528 or State Road 50. Call for a private tour today!
Listing Information
Property Type: Residential, Single Family Residence
Status: Pending
Bedrooms: 4
Bathrooms: 3
Lot Size: 0.26 Acres
Square Feet: 1,845 sq ft
Year Built: 1999
Garage: Yes
Stories: 2 Story
Construction: Block,Stucco
Subdivision: Reserve At Wedgefield
Foundation: Slab
County: Orange
School Information
Elementary: Wedgefield
Middle: Wedgefield
High: East River High
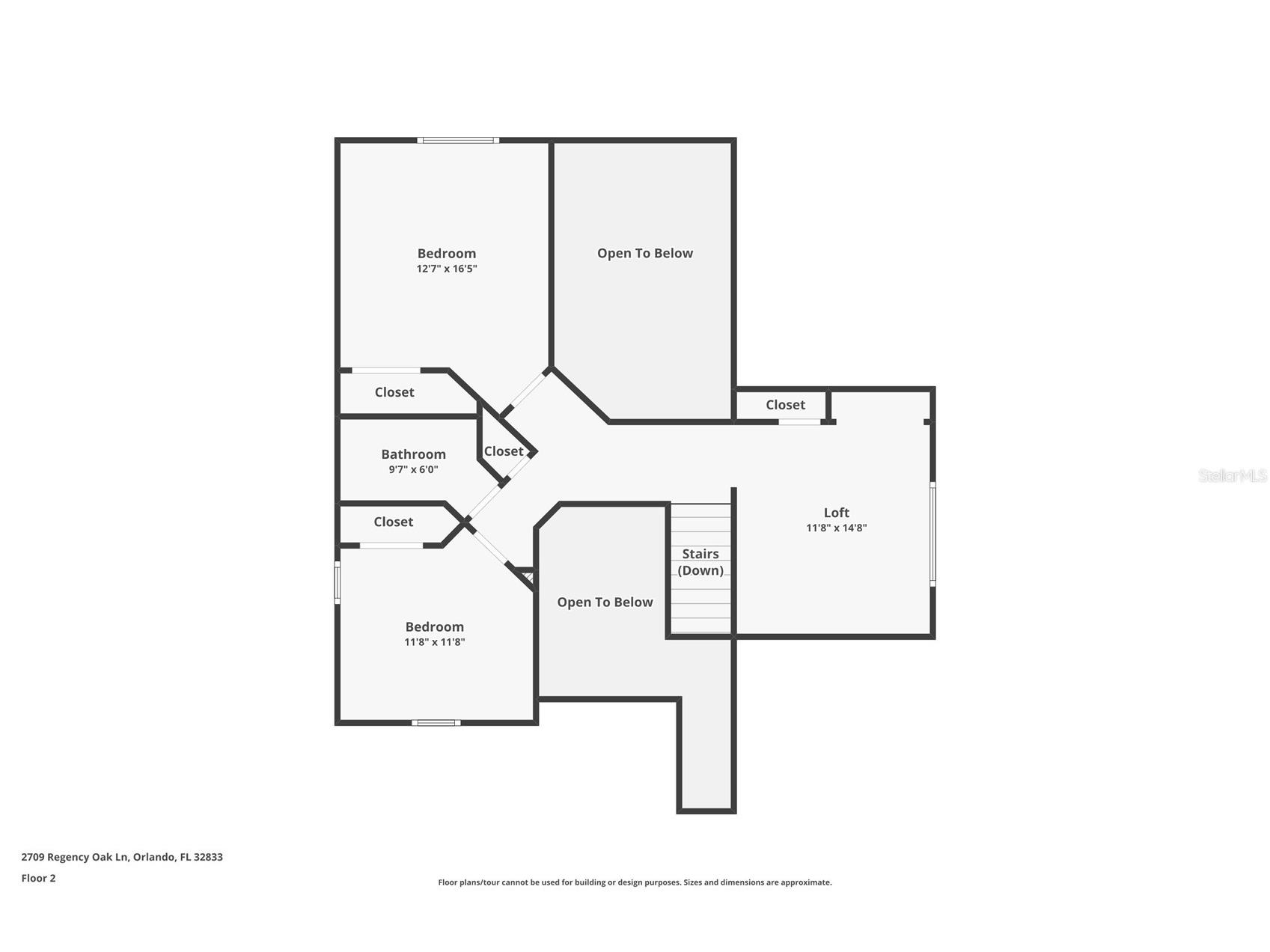
Room Information
Main Floor
Utility Room: 5x6
Dining Room: 12x9
Living Room: 21x16
Primary Bathroom: 12x11
Primary Bedroom: 16x12
Dinette: 10x10
Kitchen: 12x11
Upper Floor
Loft: 15x12
Bathroom 2: 6x10
Bedroom 3: 12x12
Bedroom 2: 16x13
Bathrooms
Full Baths: 2
1/2 Baths: 1
Additonal Room Information
Laundry: Laundry Room, Inside
Interior Features
Appliances: Electric Water Heater, Washer, Microwave, Range, Refrigerator, Dishwasher, Disposal, Dryer
Flooring: Ceramic Tile,Vinyl
Doors/Windows: Blinds, Window Treatments
Additional Interior Features: Walk-In Closet(s), Ceiling Fan(s), Vaulted Ceiling(s), Window Treatments, Split Bedrooms, Main Level Primary, Stone Counters
Utilities
Water: Public
Sewer: Public Sewer
Other Utilities: Electricity Connected,Municipal Utilities,Sewer Connected,Water Connected
Cooling: Ceiling Fan(s), Central Air
Heating: Electric
Exterior / Lot Features
Attached Garage: Attached Garage
Garage Spaces: 2
Parking Description: Garage, driveway, Garage Door Opener
Roof: Shingle
Pool: Association, In Ground, Community, Gunite
Lot View: Pond,Pool,Water
Fencing: Vinyl
Additional Exterior/Lot Features: Sprinkler/Irrigation, Rain Gutters, Rear Porch, Covered, Screened, Flat, Level, Landscaped, Cleared, Private Road, Near Golf Course
Community Features
Community Features: Park, Gated, Street Lights, Pool, Playground, Sidewalks
Security Features: Gated Community
Association Amenities: Playground, Pool, Park, Gated
HOA Dues Include: Pool(s), Recreation Facilities
Homeowners Association: Yes
HOA Dues: $75 / Monthly
Driving Directions
528 toll road exit at Dallas Blvd and travel North. Turn right onto Meredith Pkwy. Turn right onto Bancroft Blvd. Turn right into community on Regency Oak Ln. House is on the left.
Financial Considerations
Terms: Cash,Conventional,FHA,USDA Loan,VA Loan
Tax/Property ID: 11-23-32-1169-01-080
Tax Amount: 4911.08
Tax Year: 2024
A broker reciprocity listing courtesy: CENTURY 21 CARIOTI
Based on information provided by Stellar MLS as distributed by the MLS GRID. Information from the Internet Data Exchange is provided exclusively for consumers’ personal, non-commercial use, and such information may not be used for any purpose other than to identify prospective properties consumers may be interested in purchasing. This data is deemed reliable but is not guaranteed to be accurate by Edina Realty, Inc., or by the MLS. Edina Realty, Inc., is not a multiple listing service (MLS), nor does it offer MLS access.
Copyright 2026 Stellar MLS as distributed by the MLS GRID. All Rights Reserved.
Sales History & Tax Summary for 2709 Regency Oak Lane
Sales History
| Date | Price | |
|---|---|---|
| Currently not available. | ||
Tax Summary
| Tax Year | Estimated Market Value | Total Tax |
|---|---|---|
| Currently not available. | ||
Data powered by ATTOM Data Solutions. Copyright© 2026. Information deemed reliable but not guaranteed.
Schools
Schools nearby 2709 Regency Oak Lane
| Schools in attendance boundaries | Grades | Distance | Rating |
|---|---|---|---|
| Loading... | |||
| Schools nearby | Grades | Distance | Rating |
|---|---|---|---|
| Loading... | |||
Data powered by ATTOM Data Solutions. Copyright© 2026. Information deemed reliable but not guaranteed.
The schools shown represent both the assigned schools and schools by distance based on local school and district attendance boundaries. Attendance boundaries change based on various factors and proximity does not guarantee enrollment eligibility. Please consult your real estate agent and/or the school district to confirm the schools this property is zoned to attend. Information is deemed reliable but not guaranteed.
SchoolDigger ® Rating
The SchoolDigger rating system is a 1-5 scale with 5 as the highest rating. SchoolDigger ranks schools based on test scores supplied by each state's Department of Education. They calculate an average standard score by normalizing and averaging each school's test scores across all tests and grades.
Coming soon properties will soon be on the market, but are not yet available for showings.