2712 12th Court Palm Harbor, FL 34684
For Sale MLS# TB8403904
2 beds 3 baths 1,344 sq ft Townhouse/Twinhome
Details for 2712 12th Court
MLS# TB8403904
Description for 2712 12th Court, Palm Harbor, FL, 34684
WELCOME TO WEDGE WOOD in Palm Harbor! Step into this beautifully remodeled 2-bedroom, 2.5-bath townhome located in the highly desirable Wedge Wood of Palm Harbor community. Featuring 450 sq. ft. of private, fenced courtyard—perfect for outdoor entertaining, relaxing evenings, or weekend BBQs. The custom-designed kitchen is a chef’s dream with quartz countertops, Maple Cabinets, Stainless steel appliances, and elegant finishes throughout. Enjoy warm gatherings in the spacious living room with built-in wood bookcases and hardwood floors that flow throughout the ground level. The custom vanities in all bathrooms feature Quartz and Corian counters, combining style with functionality. Inside laundry adds everyday convenience. Gorgeous sliders in every room flood the home with natural light and provide seamless access to the outdoors. Enjoy peaceful mornings on one of the two balconies or unwind in the tranquil courtyard. Enjoy resort-style living with beautiful amenities including a heated saltwater community pool, hot tub, tennis and basketball courts, playground, and a serene lake. Located in a NON-FLOOD ZONE! This home also includes two reserved parking spaces plus ample guest parking. Nestled in a tranquil, park-like setting with tree-lined streets, this community is zoned for top-rated schools, and just minutes from Honeymoon Island, Clearwater Beach, Countryside Mall, and some of the area’s best dining and shopping. Don’t miss your chance to own a home that offers comfort, and convenience in one of Palm Harbor’s most sought-after neighborhoods! Call today for your private showing.
Listing Information
Property Type: Residential, Townhouse
Status: Active
Bedrooms: 2
Bathrooms: 3
Lot Size: 0.03 Acres
Square Feet: 1,344 sq ft
Year Built: 1986
Stories: 2 Story
Construction: Concrete,Wood Frame
Subdivision: Wedge Wood Of Palm Harbor
Foundation: Slab
County: Pinellas
School Information
Elementary: Lake St George Elementary-Pn
Middle: Palm Harbor Middle-Pn
High: Countryside High-Pn
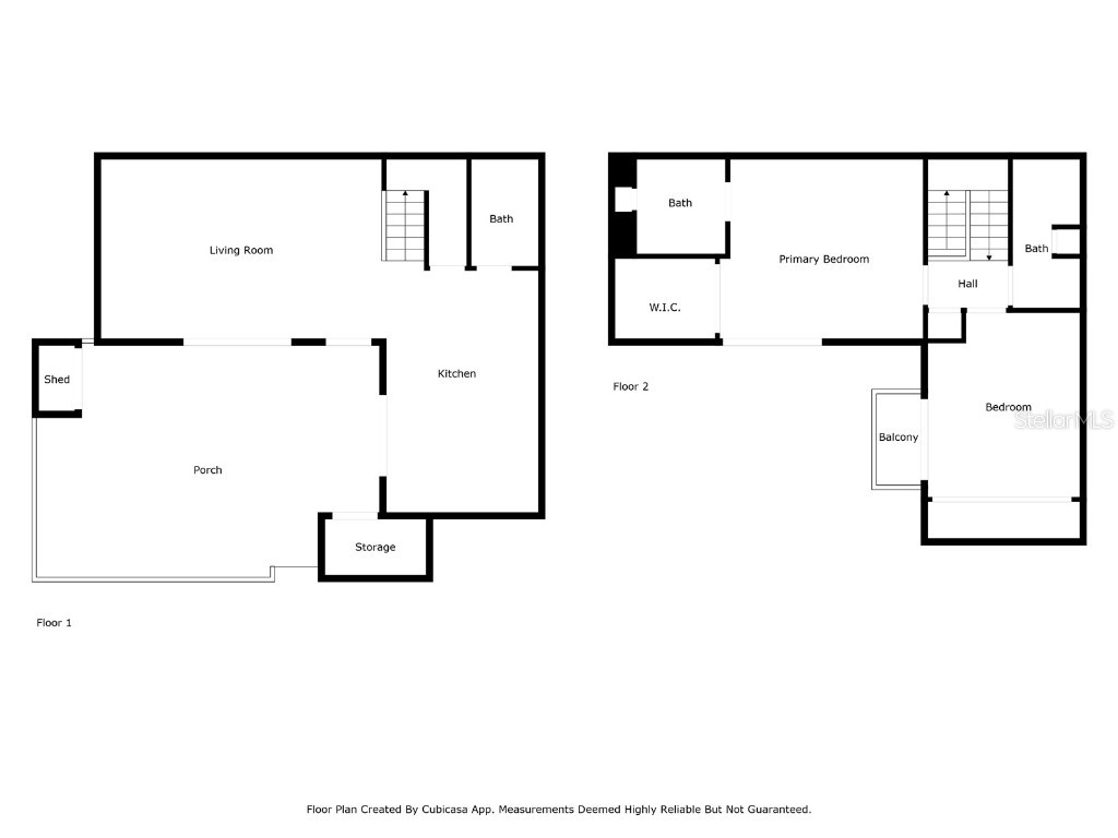
Room Information
Main Floor
Kitchen: 25.11x11.6
Living Room: 13.2x20.7
Upper Floor
Bedroom 2: 13.7x11.2
Primary Bedroom: 13.2x14.11
Bathrooms
Full Baths: 2
1/2 Baths: 1
Additonal Room Information
Laundry: Inside
Interior Features
Appliances: Washer, Microwave, Range, Refrigerator, Dryer
Flooring: Carpet,Tile,Wood
Additional Interior Features: Built-in Features, Ceiling Fan(s)
Utilities
Water: Public
Sewer: Public Sewer
Other Utilities: Municipal Utilities
Cooling: Ceiling Fan(s), Central Air
Heating: Central, Electric
Exterior / Lot Features
Roof: Built-Up, Membrane
Pool: Association, Community
Additional Exterior/Lot Features: Buyer Approval Required
Community Features
Community Features: Racquetball, Sidewalks, Pool, Tennis Court(s), Playground, Clubhouse
Association Amenities: Spa/Hot Tub, Racquetball, Basketball Court, Clubhouse, Maintenance Grounds, Pool, Playground, Tennis Court(s)
HOA Dues Include: Trash, Insurance, Maintenance Grounds, Association Management, Pest Control, Taxes, Sewer, Reserve Fund, Common Areas, Maintenance Structure, Pool(s)
Homeowners Association: Yes
HOA Dues: $311 / Monthly
Driving Directions
US 19 to Wedgewood entrance (across from Pier One bldg) follow the road to 12th Court
Financial Considerations
Terms: Cash,Conventional
Tax/Property ID: 07-28-16-95583-000-0444
Tax Amount: 811.1
Tax Year: 2024
A broker reciprocity listing courtesy: EXP REALTY
Based on information provided by Stellar MLS as distributed by the MLS GRID. Information from the Internet Data Exchange is provided exclusively for consumers’ personal, non-commercial use, and such information may not be used for any purpose other than to identify prospective properties consumers may be interested in purchasing. This data is deemed reliable but is not guaranteed to be accurate by Edina Realty, Inc., or by the MLS. Edina Realty, Inc., is not a multiple listing service (MLS), nor does it offer MLS access.
Copyright 2025 Stellar MLS as distributed by the MLS GRID. All Rights Reserved.
Payment Calculator
Interest rate and annual percentage rate (APR) are based on current market conditions, are for informational purposes only, are subject to change without notice and may be subject to pricing add-ons related to property type, loan amount, loan-to-value, credit score and other variables. Estimated closing costs used in the APR calculation are assumed to be paid by the borrower at closing. If the closing costs are financed, the loan, APR and payment amounts will be higher. If the down payment is less than 20%, mortgage insurance may be required and could increase the monthly payment and APR. Contact us for details. Additional loan programs may be available. Accuracy is not guaranteed, and all products may not be available in all borrower's geographical areas and are based on their individual situation. This is not a credit decision or a commitment to lend.
Sales History & Tax Summary for 2712 12th Court
Sales History
| Date | Price | Change |
|---|---|---|
| Currently not available. | ||
Tax Summary
| Tax Year | Estimated Market Value | Total Tax |
|---|---|---|
| Currently not available. | ||
Data powered by ATTOM Data Solutions. Copyright© 2025. Information deemed reliable but not guaranteed.
Schools
Schools nearby 2712 12th Court
| Schools in attendance boundaries | Grades | Distance | Rating |
|---|---|---|---|
| Loading... | |||
| Schools nearby | Grades | Distance | Rating |
|---|---|---|---|
| Loading... | |||
Data powered by ATTOM Data Solutions. Copyright© 2025. Information deemed reliable but not guaranteed.
The schools shown represent both the assigned schools and schools by distance based on local school and district attendance boundaries. Attendance boundaries change based on various factors and proximity does not guarantee enrollment eligibility. Please consult your real estate agent and/or the school district to confirm the schools this property is zoned to attend. Information is deemed reliable but not guaranteed.
SchoolDigger ® Rating
The SchoolDigger rating system is a 1-5 scale with 5 as the highest rating. SchoolDigger ranks schools based on test scores supplied by each state's Department of Education. They calculate an average standard score by normalizing and averaging each school's test scores across all tests and grades.
Coming soon properties will soon be on the market, but are not yet available for showings.