$300,000
2716 River Woods Lane Burnsville, MN 55337
For Sale MLS# 7056182
2 beds 2 baths 1,988 sq ft Townhouse/Twinhome
Details for 2716 River Woods Lane
MLS# 7056182
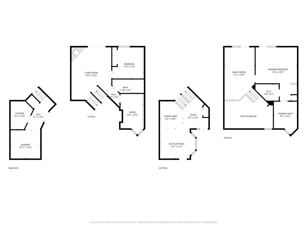
Description for 2716 River Woods Lane, Burnsville, MN, 55337
Welcome to this spacious, move-in ready 2-bed / 2-bath townhome in Oak Ridge Park. Offers plenty of green space and located in a convenient area with easy access to highways, shopping, and restaurants.Spacious living room full of light with easy access to large south-facing deck surrounded by mature trees. Wonderful for relaxing, entertaining, and perfect for morning coffee and enjoying outdoor meals. Generous sized primary bedroom off living room with patio door leading to deck. Large primary bathroom with soaking tub and separate shower. Lower-level family room includes a wonderful wood burning brick fireplace. Spacious for entertaining as well as cozy for watching movies and has access to the patio. Enjoy the Flex Room – a perfect space for a home office, home gym, and/or craft and sewing room. In addition, there is a private bedroom with a full bathroom on this level.This townhome offers plenty of storage plus a large laundry room.
Listing Information
Property Type: Residential, Side by Side
Status: Active
Bedrooms: 2
Bathrooms: 2
Lot Size: 0.05 Acres
Square Feet: 1,988 sq ft
Year Built: 1988
Foundation: 1,028 sq ft
Garage: Yes
Stories: Four or More Level Split
Property Attached: Yes
Subdivision: Oak Ridge Park Third
County: Dakota
Days On Market: 7
Construction Status: Previously Owned
School Information
District: 191 - Burnsville-Eagan-Savage
Room Information
Main Floor
Dining Room: 12x10
Kitchen: 12x11
Upper Floor
Bedroom 1: 15x14
Deck: 28x10
Living Room: 20x11
Lower Floor
Bedroom 2: 13x12
Den: 15x9
Family Room: 16x15
Hobby Room: 22x5
Bathrooms
Full Baths: 2
Additonal Room Information
Family: Family Room,Lower Level
Dining: Eat In Kitchen,Kitchen/Dining Room
Laundry: Laundry Room, Lower Level
Interior Features
Square Footage above: 1,738 sq ft
Square Footage below: 250 sq ft
Basement: Finished (Livable)
Fireplaces: 1, Wood Burning
Additional Interior Features: Kitchen Window, Walk-In Closet
Utilities
Water: City Water/Connected
Sewer: City Sewer/Connected
Cooling: Central
Heating: Forced Air, Natural Gas
Exterior / Lot Features
Attached Garage: Attached Garage
Garage Spaces: 2
Parking Description: Attached Garage, Garage Sq Ft - 440.0
Exterior: Cement Board
Roof: Age Over 8 Years, Metal
Lot Dimensions: .05
Zoning: Residential-Single Family
Additional Exterior/Lot Features: Deck, End Unit,Multi-Level, Tree Coverage - Medium, Road Frontage - Private
Community Features
HOA Dues Include: Outside Maintenance, Professional Mgmt, Sanitation, Snow Removal, Hazard Insurance, Lawn Care
Homeowners Association: Yes
Association Name: RowCal
HOA Dues: $550 / Monthly
Driving Directions
Kennelly to River Woods to home
Financial Considerations
Covenants/Deed Restrictions: Mandatory Owners Assoc
Tax/Property ID: 025372701200
Tax Amount: 3070
Tax Year: 2025
HomeStead Description: Homesteaded
A broker reciprocity listing courtesy: Keller Williams Select Realty
The data relating to real estate for sale on this web site comes in part from the Broker Reciprocity℠ Program of the Regional Multiple Listing Service of Minnesota, Inc. Real estate listings held by brokerage firms other than Edina Realty, Inc. are marked with the Broker Reciprocity℠ logo or the Broker Reciprocity℠ thumbnail and detailed information about them includes the name of the listing brokers. Edina Realty, Inc. is not a Multiple Listing Service (MLS), nor does it offer MLS access. This website is a service of Edina Realty, Inc., a broker Participant of the Regional Multiple Listing Service of Minnesota, Inc. IDX information is provided exclusively for consumers personal, non-commercial use and may not be used for any purpose other than to identify prospective properties consumers may be interested in purchasing. Open House information is subject to change without notice. Information deemed reliable but not guaranteed.
Copyright 2026 Regional Multiple Listing Service of Minnesota, Inc. All Rights Reserved.
Payment Calculator
Interest rate and annual percentage rate (APR) are based on current market conditions, are for informational purposes only, are subject to change without notice and may be subject to pricing add-ons related to property type, loan amount, loan-to-value, credit score and other variables. Estimated closing costs used in the APR calculation are assumed to be paid by the borrower at closing. If the closing costs are financed, the loan, APR and payment amounts will be higher. If the down payment is less than 20%, mortgage insurance may be required and could increase the monthly payment and APR. Contact us for details. Additional loan programs may be available. Accuracy is not guaranteed, and all products may not be available in all borrower's geographical areas and are based on their individual situation. This is not a credit decision or a commitment to lend.
Sales History & Tax Summary for 2716 River Woods Lane
Sales History
| Date | Price | |
|---|---|---|
| Currently not available. | ||
Tax Summary
| Tax Year | Estimated Market Value | Total Tax |
|---|---|---|
| Currently not available. | ||
Data powered by ATTOM Data Solutions. Copyright© 2026. Information deemed reliable but not guaranteed.
Schools
Schools nearby 2716 River Woods Lane
| Schools in attendance boundaries | Grades | Distance | Rating |
|---|---|---|---|
| Loading... | |||
| Schools nearby | Grades | Distance | Rating |
|---|---|---|---|
| Loading... | |||
Data powered by ATTOM Data Solutions. Copyright© 2026. Information deemed reliable but not guaranteed.
The schools shown represent both the assigned schools and schools by distance based on local school and district attendance boundaries. Attendance boundaries change based on various factors and proximity does not guarantee enrollment eligibility. Please consult your real estate agent and/or the school district to confirm the schools this property is zoned to attend. Information is deemed reliable but not guaranteed.
SchoolDigger ® Rating
The SchoolDigger rating system is a 1-5 scale with 5 as the highest rating. SchoolDigger ranks schools based on test scores supplied by each state's Department of Education. They calculate an average standard score by normalizing and averaging each school's test scores across all tests and grades.
Coming soon properties will soon be on the market, but are not yet available for showings.