$949,000
2727 Morning Light Court Flagler Beach, FL 32136
For Sale MLS# FC314986
3 beds 4 baths 3,118 sq ft Single Family
Details for 2727 Morning Light Court
MLS# FC314986
Description for 2727 Morning Light Court, Flagler Beach, FL, 32136
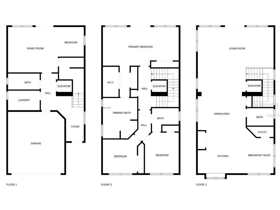
Experience the ultimate Florida waterfront lifestyle in this exceptional saltwater canal home in Beverly Beach, ideally located along scenic A1A between the Atlantic Ocean and the Intracoastal Waterway. Situated directly across from the beach with nearby private beach access, this three-story coastal retreat offers rare boating convenience with quick access to the Intracoastal and a new boat lift scheduled for installation prior to closing. Designed for comfortable coastal living, the home features 3 bedrooms, 3.5 baths along with an elevator servicing all levels. The spacious primary suite offers a relaxing sitting area, a private balcony overlooking the canal, and a spa-inspired bath featuring a double walk-in tiled shower with rain head, garden tub, dual vanities, and quartz countertops. The third floor showcases bright, open living spaces with Intracoastal and partial ocean views, creating the perfect setting for entertaining or relaxing after a day on the water. The open living and dining areas flow into a chef’s kitchen with a large island, tile backsplash, Monogram stainless steel appliances, and a custom built-in entertainment center, all opening to a private balcony with water views. Outdoor living is equally inviting, featuring a paver lanai, hot tub, and seating area overlooking the tranquil canal, along with a private dock for quick boating access to the Intracoastal Waterway. Boaters will also appreciate the community dock located directly on the Intracoastal, offering additional waterfront enjoyment. Additional highlights include a two-car garage with paver driveway, and a prime location near local dining, shopping, and coastal attractions. With Daytona Beach and St. Augustine just a short drive away, this property offers the perfect blend of luxury, boating convenience, and relaxed coastal living — truly a boater’s dream on Florida’s scenic A1A corridor.
Listing Information
Property Type: Residential, Single Family Residence
Status: Active
Bedrooms: 3
Bathrooms: 4
Lot Size: 0.08 Acres
Square Feet: 3,118 sq ft
Year Built: 2016
Garage: Yes
Stories: 3 Story
Construction: HardiPlank Type,Concrete,Stucco
Construction Display: New Construction
Subdivision: Sunset Inlet Sub
Foundation: Slab
County: Flagler
Construction Status: New Construction
Room Information
Upper Floor
Primary Bedroom:
Living Room: 23x20
Kitchen: 14x22
Bathrooms
Full Baths: 3
1/2 Baths: 1
Additonal Room Information
Laundry: Laundry Room, Inside
Interior Features
Appliances: Electric Water Heater, Built-In Oven, Water Purifier, Convection Oven, Cooktop, Dishwasher, Disposal, Dryer, Microwave, Range, Refrigerator, Washer
Flooring: Carpet,Engineered Hardwood
Additional Interior Features: Ceiling Fan(s), Elevator, Eat-In Kitchen, Crown Molding, Kitchen/Family Room Combo, Built-in Features, High Ceilings, Open Floorplan, Solid Surface Counters, Upper Level Primary
Utilities
Water: Public
Sewer: Public Sewer
Other Utilities: Cable Available,Electricity Connected,Sewer Connected
Cooling: Central Air, Ceiling Fan(s)
Heating: Central
Exterior / Lot Features
Attached Garage: Attached Garage
Garage Spaces: 2
Roof: Shingle
Lot View: Canal,Intercoastal,Water
Additional Exterior/Lot Features: Balcony, Balcony
Waterfront Details
Water Front Features: Canal Access
Community Features
Community Features: Street Lights
Homeowners Association: Yes
HOA Dues: $365 / Monthly
Driving Directions
Take A1A North from Flagler Beach. After entering into Beverly Beach, Sunset Inlet will be on the left. Turn left at the roundabout. Home will be on the right.
Financial Considerations
Terms: Cash,Conventional,FHA,VA Loan
Tax/Property ID: 26-11-31-5730-00000-0100
Tax Amount: 12027
Tax Year: 2025
A broker reciprocity listing courtesy: COMPASS FLORIDA
Based on information provided by Stellar MLS as distributed by the MLS GRID. Information from the Internet Data Exchange is provided exclusively for consumers’ personal, non-commercial use, and such information may not be used for any purpose other than to identify prospective properties consumers may be interested in purchasing. This data is deemed reliable but is not guaranteed to be accurate by Edina Realty, Inc., or by the MLS. Edina Realty, Inc., is not a multiple listing service (MLS), nor does it offer MLS access.
Copyright 2026 Stellar MLS as distributed by the MLS GRID. All Rights Reserved.
Payment Calculator
Interest rate and annual percentage rate (APR) are based on current market conditions, are for informational purposes only, are subject to change without notice and may be subject to pricing add-ons related to property type, loan amount, loan-to-value, credit score and other variables. Estimated closing costs used in the APR calculation are assumed to be paid by the borrower at closing. If the closing costs are financed, the loan, APR and payment amounts will be higher. If the down payment is less than 20%, mortgage insurance may be required and could increase the monthly payment and APR. Contact us for details. Additional loan programs may be available. Accuracy is not guaranteed, and all products may not be available in all borrower's geographical areas and are based on their individual situation. This is not a credit decision or a commitment to lend.
Sales History & Tax Summary for 2727 Morning Light Court
Sales History
| Date | Price | |
|---|---|---|
| Currently not available. | ||
Tax Summary
| Tax Year | Estimated Market Value | Total Tax |
|---|---|---|
| Currently not available. | ||
Data powered by ATTOM Data Solutions. Copyright© 2026. Information deemed reliable but not guaranteed.
Schools
Schools nearby 2727 Morning Light Court
| Schools in attendance boundaries | Grades | Distance | Rating |
|---|---|---|---|
| Loading... | |||
| Schools nearby | Grades | Distance | Rating |
|---|---|---|---|
| Loading... | |||
Data powered by ATTOM Data Solutions. Copyright© 2026. Information deemed reliable but not guaranteed.
The schools shown represent both the assigned schools and schools by distance based on local school and district attendance boundaries. Attendance boundaries change based on various factors and proximity does not guarantee enrollment eligibility. Please consult your real estate agent and/or the school district to confirm the schools this property is zoned to attend. Information is deemed reliable but not guaranteed.
SchoolDigger ® Rating
The SchoolDigger rating system is a 1-5 scale with 5 as the highest rating. SchoolDigger ranks schools based on test scores supplied by each state's Department of Education. They calculate an average standard score by normalizing and averaging each school's test scores across all tests and grades.
Coming soon properties will soon be on the market, but are not yet available for showings.