27306 Deep Creek Boulevard Punta Gorda, FL 33983
Pending MLS# C7509572
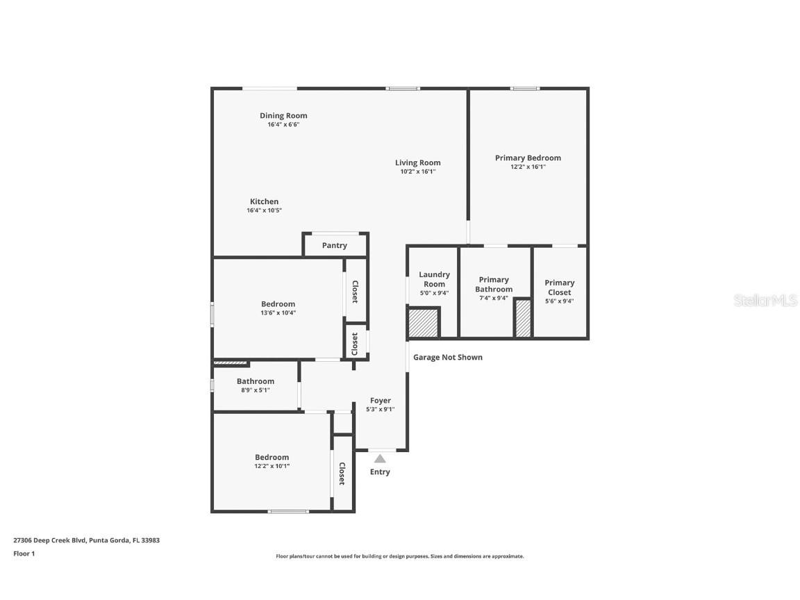
3 beds 2 baths 1,425 sq ft Single Family
Details for 27306 Deep Creek Boulevard
MLS# C7509572
Description for 27306 Deep Creek Boulevard, Punta Gorda, FL, 33983
Under contract-accepting backup offers. Welcome to this beautiful 2020 built home situated on an oversized corner lot in the desirable community of Deep Creek with a greenbelt view. Home is on public water and sewer... also not in a flood zone. This well maintained deed restricted neighborhood offers a low HOA of just $200 per year and includes amenities such as a community park, sidewalks, tennis courts, and more...providing a great environment for active living. This home features a spacious and functional three bedroom, two bath layout with a two car garage. The open-concept design includes white shaker cabinets, breakfast bar with seating, and a large pantry in the kitchen, which overlooks both the dining area and living room...ideal for everyday living and entertaining. The split floor plan offers privacy, with the primary suite featuring a large walk-in closet and private en suite bathroom complete with dual sinks and walk-in shower. Tile flooring runs throughout the main living areas for easy maintenance, while the bedrooms are comfortably carpeted. A dedicated laundry room adds extra convenience. Deep Creek has sidewalks for those morning walks, tennis/pickleball, basketball court, playground and a great golf course. Located near I75, Kings Hwy, shopping, dining, and medical facilities, this home is also just a short commute from some of Florida’s most beautiful beaches. It’s the perfect combination of comfort, location, and lifestyle.
Listing Information
Property Type: Residential, Single Family Residence
Status: Pending
Bedrooms: 3
Bathrooms: 2
Lot Size: 0.29 Acres
Square Feet: 1,425 sq ft
Year Built: 2020
Garage: Yes
Stories: 1 Story
Construction: Block,Stucco
Subdivision: Punta Gorda Isles Sec 20
Foundation: Slab
County: Charlotte
Room Information
Main Floor
Kitchen: 14x10
Bedroom 3: 10x12
Bedroom 2: 10x12
Primary Bedroom: 16x12
Dining Room: 16x7
Living Room: 16x11
Bathrooms
Full Baths: 2
Additonal Room Information
Laundry: Laundry Room
Interior Features
Appliances: Range, Refrigerator, Dishwasher, Microwave
Flooring: Carpet,Tile
Doors/Windows: Window Treatments, Drapes, Blinds
Additional Interior Features: Walk-In Closet(s), Window Treatments, Eat-In Kitchen, Open Floorplan, Attic, Built-in Features
Utilities
Water: Public
Sewer: Public Sewer
Other Utilities: Electricity Connected,High Speed Internet Available
Cooling: Central Air
Heating: Central
Exterior / Lot Features
Attached Garage: Attached Garage
Garage Spaces: 2
Roof: Shingle
Lot View: Park/Greenbelt
Additional Exterior/Lot Features: Storm/Security Shutters, Lighting, Patio, Corner Lot, Outside City Limits
Community Features
Community Features: Park, Fishing, Sidewalks, Tennis Court(s), Playground
Homeowners Association: Yes
HOA Dues: $200 / Annually
Driving Directions
Sandhill, Left on Deep Creek Blvd
Financial Considerations
Terms: Cash,Conventional,FHA,USDA Loan,VA Loan
Tax/Property ID: 402303411002
Tax Amount: 3846.49
Tax Year: 2024
A broker reciprocity listing courtesy: RE/MAX PALM PCS
Based on information provided by Stellar MLS as distributed by the MLS GRID. Information from the Internet Data Exchange is provided exclusively for consumers’ personal, non-commercial use, and such information may not be used for any purpose other than to identify prospective properties consumers may be interested in purchasing. This data is deemed reliable but is not guaranteed to be accurate by Edina Realty, Inc., or by the MLS. Edina Realty, Inc., is not a multiple listing service (MLS), nor does it offer MLS access.
Copyright 2025 Stellar MLS as distributed by the MLS GRID. All Rights Reserved.
Sales History & Tax Summary for 27306 Deep Creek Boulevard
Sales History
| Date | Price | Change |
|---|---|---|
| Currently not available. | ||
Tax Summary
| Tax Year | Estimated Market Value | Total Tax |
|---|---|---|
| Currently not available. | ||
Data powered by ATTOM Data Solutions. Copyright© 2025. Information deemed reliable but not guaranteed.
Schools
Schools nearby 27306 Deep Creek Boulevard
| Schools in attendance boundaries | Grades | Distance | Rating |
|---|---|---|---|
| Loading... | |||
| Schools nearby | Grades | Distance | Rating |
|---|---|---|---|
| Loading... | |||
Data powered by ATTOM Data Solutions. Copyright© 2025. Information deemed reliable but not guaranteed.
The schools shown represent both the assigned schools and schools by distance based on local school and district attendance boundaries. Attendance boundaries change based on various factors and proximity does not guarantee enrollment eligibility. Please consult your real estate agent and/or the school district to confirm the schools this property is zoned to attend. Information is deemed reliable but not guaranteed.
SchoolDigger ® Rating
The SchoolDigger rating system is a 1-5 scale with 5 as the highest rating. SchoolDigger ranks schools based on test scores supplied by each state's Department of Education. They calculate an average standard score by normalizing and averaging each school's test scores across all tests and grades.
Coming soon properties will soon be on the market, but are not yet available for showings.