2737 Northridge Drive E Clearwater, FL 33761
For Sale MLS# TB8433373
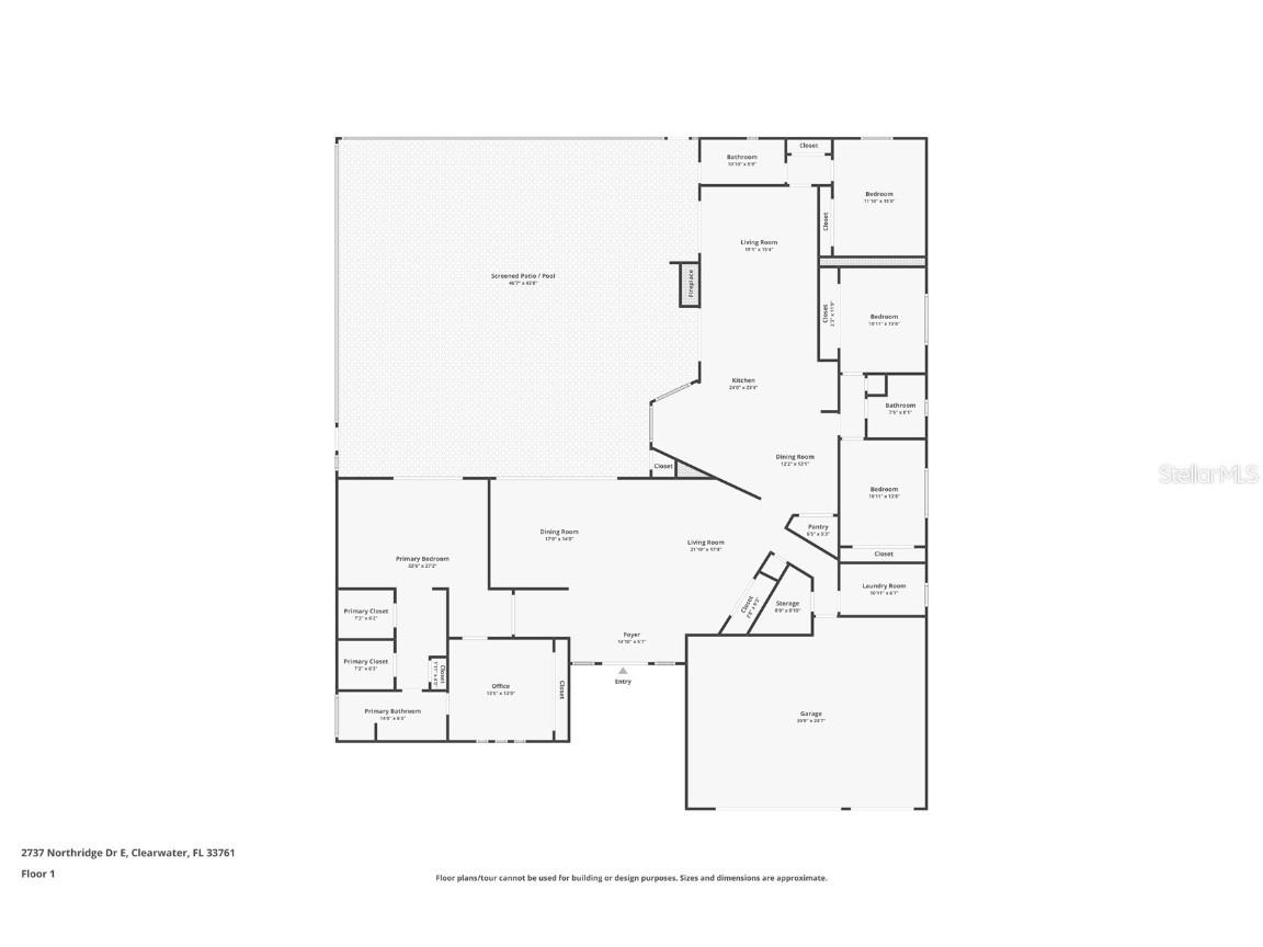
5 beds 3 baths 3,220 sq ft Single Family
Details for 2737 Northridge Drive E
MLS# TB8433373
Description for 2737 Northridge Drive E, Clearwater, FL, 33761
ATTENTION!!! Here it is!! BIG LIST OF MAJOR CAPITAL IMPROVEMENTS!! NON-FLOOD, NON-EVACUATION, GOLF COURSE FRONTAGE, NEW ROOF SEPTEMBER 2025, UPDATED POOL PACKAGE 2024 (Pool Deck, Pool Surface, Screen enclosure and equipment), FRESH PAINT 2025, UPDATED FLOORING 2025, UPDATED ELECTRICAL 200 AMP PANELS, CAR CHARGING STATION, HOT WATER HEATER 2022, UPDATED HIGH-END APPLIANCES 2022, TRANE 2-STAGE 15 SEER A/C 2024....... Welcome Home to this amazing 5 BEDROOM, 3 BATHROOM, 3 CAR GARAGE, POOL HOME. Located in the HEART of COUNTRYSIDE with GORGEOUS GOLF COURSE VIEWS!! This GORGEOUS HOME has all of the bells and whistles! FEATURES and UPDATES include..... HIGH QUALITY Owens Corning ROOF installed SEPTEMBER 2025 with MANUFACTURERES TRANSFERRABLE WARRANTY, UPDATED "TOP-OF-THE-LINE" KITCHENAID APPLIANCE PACKAGE (2024), TRANE 5 TON 2-STAGE 17 SEER A/C (2024), HOT WATER HEATER (2022), INTERIOR PAINT (2022), SMART IRRIGATION CONTROL (2025) with IRRIGATION on a WELL, TWO (2) UPDATED 200 AMP ELECTRICAL PANELS, 50AMP ELECTRIC CAR CHARGING STATION, HUGE CIRCULAR DRIVEWAY, HIGH END GE FRONT LOAD WASHER and DRYER on PEDESTALS (2022), TOTALLY UPDATED POOL PACKAGE in 2024 including NEW SCREEN ENCLOSURE, TRAVERTINE POOL DECK, POOL LIGHT, PEBBLETEC STYLE POOL SURFACE, POOL PUMP, and POOL CLEANER ROBOT. Additional recent upgrades include.... EXTERIOR PAINT, INTERIOR PAINT, WIRELESS GARAGE CONTROLLERS AND OPENERS, EXTERIOR LIGHT FIXTURES, NEW KARASTAN CARPETING, UPGRADED FLOOR MOLDING. Only a SHORT GOLF CART RIDE to COUNTRYSIDE COUNTRY CLUB which features 27 HOLES OF GARY PLAYER DESIGNED GOLF with PRACTICE FACILITIES, 14 LIGHTED TENNIS COURTS, STATE-OF-THE-ART FITNESS FACILITIES with OUTDOOR POOLS, and BEAUTIFUL DINING and BANQUET FACILITIES! CLOSE TO RESTAURANTS, SHOPS, HOSPITALS AND COMMUNITY CENTERS. A SHORT COMMUTE TO TAMPA INTERNATIONAL AIRPORT, DUNEDIN CAUSEWAY and HONEYMOON ISLAND, ST.PETE/CLEARWATER INTERNATIONAL AIRPORT and less than 30 minutes to the FAMOUS PINELLAS COUNTY BEACHES! CALL TODAY!!! THE COUNTRYSIDE AREA is SELLING FAST! IT'S the HIGHEST AREA / ELEVATION IN PINELLAS COUNTY. DO NOT MISS THIS OPPORTUNITY!!
Listing Information
Property Type: Residential, Single Family Residence
Status: Active
Bedrooms: 5
Bathrooms: 3
Lot Size: 0.30 Acres
Square Feet: 3,220 sq ft
Year Built: 1979
Garage: Yes
Stories: 1 Story
Construction: Block,Stucco
Subdivision: Countryside Tr 9
Foundation: Slab
County: Pinellas
School Information
Elementary: Curlew Creek Elementary-Pn
Middle: Safety Harbor Middle-Pn
High: Countryside High-Pn
Room Information
Main Floor
Den: 13x14
Living Room: 17x21
Primary Bedroom: 27x22
Living Room: 17x23
Kitchen: 23x24
Bathrooms
Full Baths: 3
Additonal Room Information
Laundry: Inside, Laundry Room
Interior Features
Appliances: Convection Oven, Exhaust Fan, Washer, Range, Refrigerator, Dishwasher, Disposal, Dryer, Cooktop, Microwave, Built-In Oven, Electric Water Heater, Range Hood, Ice Maker
Flooring: Carpet,Laminate,Tile
Doors/Windows: Blinds, Window Treatments
Fireplaces: Gas
Additional Interior Features: Window Treatments, Walk-In Closet(s), Split Bedrooms, Solid Surface Counters, Stone Counters, Main Level Primary, Crown Molding, Kitchen/Family Room Combo, Living/Dining Room
Utilities
Water: Public
Sewer: Public Sewer
Other Utilities: Cable Connected,Electricity Connected,Propane,Sewer Connected,Water Connected
Cooling: Central Air
Heating: Central, Electric
Exterior / Lot Features
Attached Garage: Attached Garage
Garage Spaces: 3
Parking Description: Oversized, driveway, Circular Driveway, Golf Cart Garage, Guest
Roof: Shingle
Pool: Gunite, In Ground, Pool Sweep, Screen Enclosure
Lot View: Golf Course,Pool,Trees/Woods
Lot Dimensions: 100x130
Additional Exterior/Lot Features: Sprinkler/Irrigation, Rain Gutters, Screened, Patio, Porch, Covered, Deck, On Golf Course, Landscaped, City Lot
Community Features
Community Features: Street Lights, Sidewalks, Park, Golf Carts OK, Clubhouse
Association Amenities: Clubhouse, Park
Driving Directions
US 19, EAST ON CURLEW, SOUTH ON COUNTRYSIDE BLBVD, EAST ON NOTHRIDGE TO ADDRESS.
Financial Considerations
Terms: Cash,Conventional,VA Loan
Tax/Property ID: 20-28-16-18640-000-0100
Tax Amount: 6009.18
Tax Year: 2024
A broker reciprocity listing courtesy: RE/MAX ELITE REALTY
Based on information provided by Stellar MLS as distributed by the MLS GRID. Information from the Internet Data Exchange is provided exclusively for consumers’ personal, non-commercial use, and such information may not be used for any purpose other than to identify prospective properties consumers may be interested in purchasing. This data is deemed reliable but is not guaranteed to be accurate by Edina Realty, Inc., or by the MLS. Edina Realty, Inc., is not a multiple listing service (MLS), nor does it offer MLS access.
Copyright 2025 Stellar MLS as distributed by the MLS GRID. All Rights Reserved.
Payment Calculator
Interest rate and annual percentage rate (APR) are based on current market conditions, are for informational purposes only, are subject to change without notice and may be subject to pricing add-ons related to property type, loan amount, loan-to-value, credit score and other variables. Estimated closing costs used in the APR calculation are assumed to be paid by the borrower at closing. If the closing costs are financed, the loan, APR and payment amounts will be higher. If the down payment is less than 20%, mortgage insurance may be required and could increase the monthly payment and APR. Contact us for details. Additional loan programs may be available. Accuracy is not guaranteed, and all products may not be available in all borrower's geographical areas and are based on their individual situation. This is not a credit decision or a commitment to lend.
Sales History & Tax Summary for 2737 Northridge Drive E
Sales History
| Date | Price | Change |
|---|---|---|
| Currently not available. | ||
Tax Summary
| Tax Year | Estimated Market Value | Total Tax |
|---|---|---|
| Currently not available. | ||
Data powered by ATTOM Data Solutions. Copyright© 2025. Information deemed reliable but not guaranteed.
Schools
Schools nearby 2737 Northridge Drive E
| Schools in attendance boundaries | Grades | Distance | Rating |
|---|---|---|---|
| Loading... | |||
| Schools nearby | Grades | Distance | Rating |
|---|---|---|---|
| Loading... | |||
Data powered by ATTOM Data Solutions. Copyright© 2025. Information deemed reliable but not guaranteed.
The schools shown represent both the assigned schools and schools by distance based on local school and district attendance boundaries. Attendance boundaries change based on various factors and proximity does not guarantee enrollment eligibility. Please consult your real estate agent and/or the school district to confirm the schools this property is zoned to attend. Information is deemed reliable but not guaranteed.
SchoolDigger ® Rating
The SchoolDigger rating system is a 1-5 scale with 5 as the highest rating. SchoolDigger ranks schools based on test scores supplied by each state's Department of Education. They calculate an average standard score by normalizing and averaging each school's test scores across all tests and grades.
Coming soon properties will soon be on the market, but are not yet available for showings.