2741 Edwards Road Haines City, FL 33844 - LAKE TRASK
For Sale MLS# P4935872
3 beds 3 baths 3,452 sq ft Single Family
Details for 2741 Edwards Road
MLS# P4935872
Description for 2741 Edwards Road, Haines City, FL, 33844 - LAKE TRASK
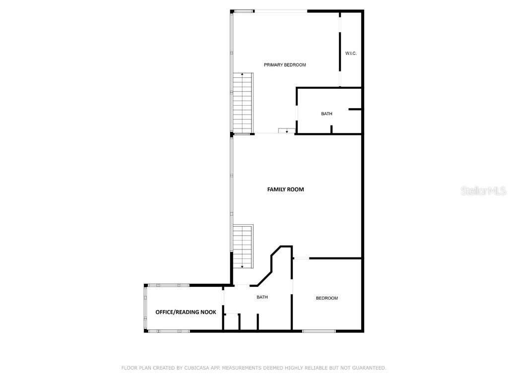
One or more photo(s) has been virtually staged. **PRICE IMPROVEMENT** Looking for something truly special, unique and close to all of the wonderful things to do in Central Florida? It's all about the views in this beautiful 3-bedroom, 3-bath, Mid-Century Modern jewel! Set on 2.5 acres, enjoy the breathtaking sunrises over rolling hills, farmland, and Lake Trask. With no HOA's and plenty of room to roam, this country like setting will prove a peaceful retreat. Gorgeous wood ceilings, cedar beams, skylights, and warm finishes welcome all with character that the owner-builder, who was inspired by Frank Lloyd Wright, intended. A chef's dream, the well-equipped kitchen is filled with charm and enjoys the vast vista views, as does the living/dining room combo and the cozy den/library. The first floor continues and features a large secondary bedroom or media room with a walk-in closet, along with access to three spacious areas ideal for storage, utility, or a workshop. Also included on the first floor, is a full bath filled with time period finishes, along with a spacious laundry room with ample counter space and sink. Right across from the laundry room is a massive walk-in pantry with tons of storage. And just beyond that, find an oversized two-car garage, also equipped with abundant storage. This home conveniently features 2 sets of staircases, one leading to the upstairs Primary bedroom and bath filled with the Mid-Century touches and those wonderful views. The second set of stairs leads to an expansive, yet comfortable family room perfect for gathering while overlooking the lake. The spacious third bedroom features its own bathroom and closet, leading to a charming space perfect for an office, art room, or reading nook, again with the wonderful views. This property features a delightful 672 square foot, 1-bedroom, 1-bathroom ADU/Cottage (not included in the room count and living area), complete with a fully equipped kitchen and a roomy laundry area with plenty of storage—perfect for multi-generational living or an income-generating opportunity. Enjoy peace of mind with the newer metal roof, whole-house generator, 4-inch insulation, and a 500-gallon propane tank. The property also features a dedicated building for the deep well and the filtration system. Close to all that Central Florida provides, enjoy the feeling of living in the country, while enjoying short drives to the area theme parks, restaurants and shopping. Space, comfort, beauty and character, call for your private showing! All measurements and pertinent information to be verified by the buyer.
Listing Information
Property Type: Residential, Single Family Residence
Status: Active
Bedrooms: 3
Bathrooms: 3
Lot Size: 2.50 Acres
Square Feet: 3,452 sq ft
Year Built: 1980
Garage: Yes
Stories: 2 Story
Construction: Block,Stucco,Wood Frame
Subdivision: N/A
Foundation: Slab
County: Polk
Room Information
Main Floor
Kitchen: 18.5x11.25
Living Room: 22.83x16.83
Upper Floor
Primary Bedroom: 18.5x11.5
Bathrooms
Full Baths: 3
Additonal Room Information
Laundry: Gas Dryer Hookup, Washer Hookup, Inside, Laundry Room
Interior Features
Appliances: Exhaust Fan, Built-In Oven, Water Purifier, Range Hood, Gas Water Heater, Cooktop, Dishwasher, Dryer, Range, Refrigerator, Washer
Flooring: Brick,Ceramic Tile,Engineered Hardwood,Laminate,Vinyl,Wood
Doors/Windows: Blinds, Window Treatments, Skylight(s)
Additional Interior Features: Walk-In Closet(s), Split Bedrooms, Window Treatments, Skylights, Built-in Features, Vaulted Ceiling(s), Eat-In Kitchen, Central Vacuum, Upper Level Primary, High Ceilings, Living/Dining Room, Open Floorplan
Utilities
Water: Private, Well
Sewer: Septic Tank
Other Utilities: Electricity Connected,High Speed Internet Available,Propane,Water Connected
Cooling: Central Air, Zoned
Heating: Heat Pump, Central, Electric
Exterior / Lot Features
Attached Garage: Attached Garage
Garage Spaces: 2
Parking Description: Oversized, Workshop in Garage, Garage Door Opener, Garage
Roof: Metal, Membrane
Lot View: Lake,Water
Additional Exterior/Lot Features: Rain Gutters, Storm/Security Shutters, Storage, Lighting, Covered, Wrap Around, Private Road, Oversized Lot, Outside City Limits
Out Buildings: Second Residence, Shed(s)
Waterfront Details
Standard Water Body: LAKE TRASK
Community Features
Security Features: Smoke Detector(s)
Driving Directions
From Highway 27 south, turn left (West) on Dundee Rd, left on Main St, left on N 8th St, to Weiberg Rd right, home will be on the right but tucked behind the first home.
Financial Considerations
Terms: Cash,Conventional
Tax/Property ID: 27-28-23-000000-043040
Tax Amount: 2862.59
Tax Year: 2024
A broker reciprocity listing courtesy: LOCKHART & ASSOCIATES INC
Based on information provided by Stellar MLS as distributed by the MLS GRID. Information from the Internet Data Exchange is provided exclusively for consumers’ personal, non-commercial use, and such information may not be used for any purpose other than to identify prospective properties consumers may be interested in purchasing. This data is deemed reliable but is not guaranteed to be accurate by Edina Realty, Inc., or by the MLS. Edina Realty, Inc., is not a multiple listing service (MLS), nor does it offer MLS access.
Copyright 2026 Stellar MLS as distributed by the MLS GRID. All Rights Reserved.
Payment Calculator
Interest rate and annual percentage rate (APR) are based on current market conditions, are for informational purposes only, are subject to change without notice and may be subject to pricing add-ons related to property type, loan amount, loan-to-value, credit score and other variables. Estimated closing costs used in the APR calculation are assumed to be paid by the borrower at closing. If the closing costs are financed, the loan, APR and payment amounts will be higher. If the down payment is less than 20%, mortgage insurance may be required and could increase the monthly payment and APR. Contact us for details. Additional loan programs may be available. Accuracy is not guaranteed, and all products may not be available in all borrower's geographical areas and are based on their individual situation. This is not a credit decision or a commitment to lend.
Sales History & Tax Summary for 2741 Edwards Road
Sales History
| Date | Price | |
|---|---|---|
| Currently not available. | ||
Tax Summary
| Tax Year | Estimated Market Value | Total Tax |
|---|---|---|
| Currently not available. | ||
Data powered by ATTOM Data Solutions. Copyright© 2026. Information deemed reliable but not guaranteed.
Schools
Schools nearby 2741 Edwards Road
| Schools in attendance boundaries | Grades | Distance | Rating |
|---|---|---|---|
| Loading... | |||
| Schools nearby | Grades | Distance | Rating |
|---|---|---|---|
| Loading... | |||
Data powered by ATTOM Data Solutions. Copyright© 2026. Information deemed reliable but not guaranteed.
The schools shown represent both the assigned schools and schools by distance based on local school and district attendance boundaries. Attendance boundaries change based on various factors and proximity does not guarantee enrollment eligibility. Please consult your real estate agent and/or the school district to confirm the schools this property is zoned to attend. Information is deemed reliable but not guaranteed.
SchoolDigger ® Rating
The SchoolDigger rating system is a 1-5 scale with 5 as the highest rating. SchoolDigger ranks schools based on test scores supplied by each state's Department of Education. They calculate an average standard score by normalizing and averaging each school's test scores across all tests and grades.
Coming soon properties will soon be on the market, but are not yet available for showings.