$315,000
Off-Market Date: 10/08/20252747 229th Lane NW Saint Francis, MN 55070
Pending MLS# 6796757
2 beds 2 baths 1,337 sq ft Single Family
Details for 2747 229th Lane NW
MLS# 6796757
Description for 2747 229th Lane NW, Saint Francis, MN, 55070
To-be-built homes starting at $315,000.00. Photos are of similar homes. Options for a 2 bedroom 2 bathroom single level with 1337 sqft., 3 bedroom 2 bathroom single level with 1353 sqft., and 3 bedroom 3 bathroom lofted home with 2464 sqft. Make this home your own by selecting some of the colors and finishes.
Listing Information
Property Type: Residential, Single Family
Status: Pending
Bedrooms: 2
Bathrooms: 2
Lot Size: 0.14 Acres
Square Feet: 1,337 sq ft
Year Built: 2025
Foundation: 1,833 sq ft
Garage: Yes
Stories: 1 Story
Construction Display: New Construction
Builder: HOME IMPROVEMENT SHOP INC
County: Anoka
Days On Market: 9
Construction Status: To Be Built/Floor Plan
School Information
District: 15 - St. Francis
Room Information
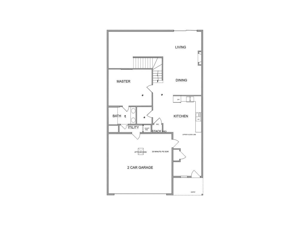
Main Floor
Bathroom: 6'x6'
Bathroom: 9'x9'
Bedroom 1: 9'10"x12'6"
Bedroom 2: 15'1"x13'
Dining Room: 11'6"x15'
Garage: 20'8"x22'
Kitchen: 10'x19'6"
Laundry: 2'6"x5'
Living Room: 11'x17'
Utility Room: 4'x8'2"
Bathrooms
Full Baths: 1
3/4 Baths: 1
Additonal Room Information
Laundry: Electric Dryer Hookup
Interior Features
Square Footage above: 1,337 sq ft
Appliances: Stainless Steel Appliances, Range, Refrigerator, Dishwasher, Microwave
Fireplaces: 1, Electric
Additional Interior Features: Ceiling Fan(s), Kitchen Window, Washer/Dryer Hookup, Kitchen Center Island
Utilities
Water: City Water/Connected
Sewer: City Sewer/Connected
Cooling: Central
Heating: Forced Air, Natural Gas
Exterior / Lot Features
Attached Garage: Attached Garage
Garage Spaces: 2
Parking Description: Driveway - Asphalt, Attached Garage, Garage Dimensions - 20'8"x22', Garage Door Height - 7, Garage Door Width - 16, Garage Sq Ft - 496.0
Exterior: Vinyl
Roof: Asphalt Shingles
Lot Dimensions: 131x47
Zoning: Residential-Single Family
Community Features
HOA Dues Include: Other
Homeowners Association: Yes
Association Name: Builder/BKCDC Enterprises
HOA Dues: $45 / Monthly
Driving Directions
GPS does not find the address accurately- 24 E past The Ponds Golf Course, L on Arrowhead St, L on 229th Lane NW, home is on the left
Financial Considerations
Tax/Property ID: 333424430239
Tax Amount: 406
Tax Year: 2024
HomeStead Description: Non-Homesteaded
A broker reciprocity listing courtesy: Realty Executives Top Results
The data relating to real estate for sale on this web site comes in part from the Broker Reciprocity℠ Program of the Regional Multiple Listing Service of Minnesota, Inc. Real estate listings held by brokerage firms other than Edina Realty, Inc. are marked with the Broker Reciprocity℠ logo or the Broker Reciprocity℠ thumbnail and detailed information about them includes the name of the listing brokers. Edina Realty, Inc. is not a Multiple Listing Service (MLS), nor does it offer MLS access. This website is a service of Edina Realty, Inc., a broker Participant of the Regional Multiple Listing Service of Minnesota, Inc. IDX information is provided exclusively for consumers personal, non-commercial use and may not be used for any purpose other than to identify prospective properties consumers may be interested in purchasing. Open House information is subject to change without notice. Information deemed reliable but not guaranteed.
Copyright 2026 Regional Multiple Listing Service of Minnesota, Inc. All Rights Reserved.
Sales History & Tax Summary for 2747 229th Lane NW
Sales History
| Date | Price | |
|---|---|---|
| Currently not available. | ||
Tax Summary
| Tax Year | Estimated Market Value | Total Tax |
|---|---|---|
| Currently not available. | ||
Data powered by ATTOM Data Solutions. Copyright© 2026. Information deemed reliable but not guaranteed.
Schools
Schools nearby 2747 229th Lane NW
| Schools in attendance boundaries | Grades | Distance | Rating |
|---|---|---|---|
| Loading... | |||
| Schools nearby | Grades | Distance | Rating |
|---|---|---|---|
| Loading... | |||
Data powered by ATTOM Data Solutions. Copyright© 2026. Information deemed reliable but not guaranteed.
The schools shown represent both the assigned schools and schools by distance based on local school and district attendance boundaries. Attendance boundaries change based on various factors and proximity does not guarantee enrollment eligibility. Please consult your real estate agent and/or the school district to confirm the schools this property is zoned to attend. Information is deemed reliable but not guaranteed.
SchoolDigger ® Rating
The SchoolDigger rating system is a 1-5 scale with 5 as the highest rating. SchoolDigger ranks schools based on test scores supplied by each state's Department of Education. They calculate an average standard score by normalizing and averaging each school's test scores across all tests and grades.
Coming soon properties will soon be on the market, but are not yet available for showings.