2750 W Marion Avenue Punta Gorda, FL 33950
For Sale MLS# C7517049
3 beds 3 baths 2,655 sq ft Single Family
Details for 2750 W Marion Avenue
MLS# C7517049
Description for 2750 W Marion Avenue, Punta Gorda, FL, 33950
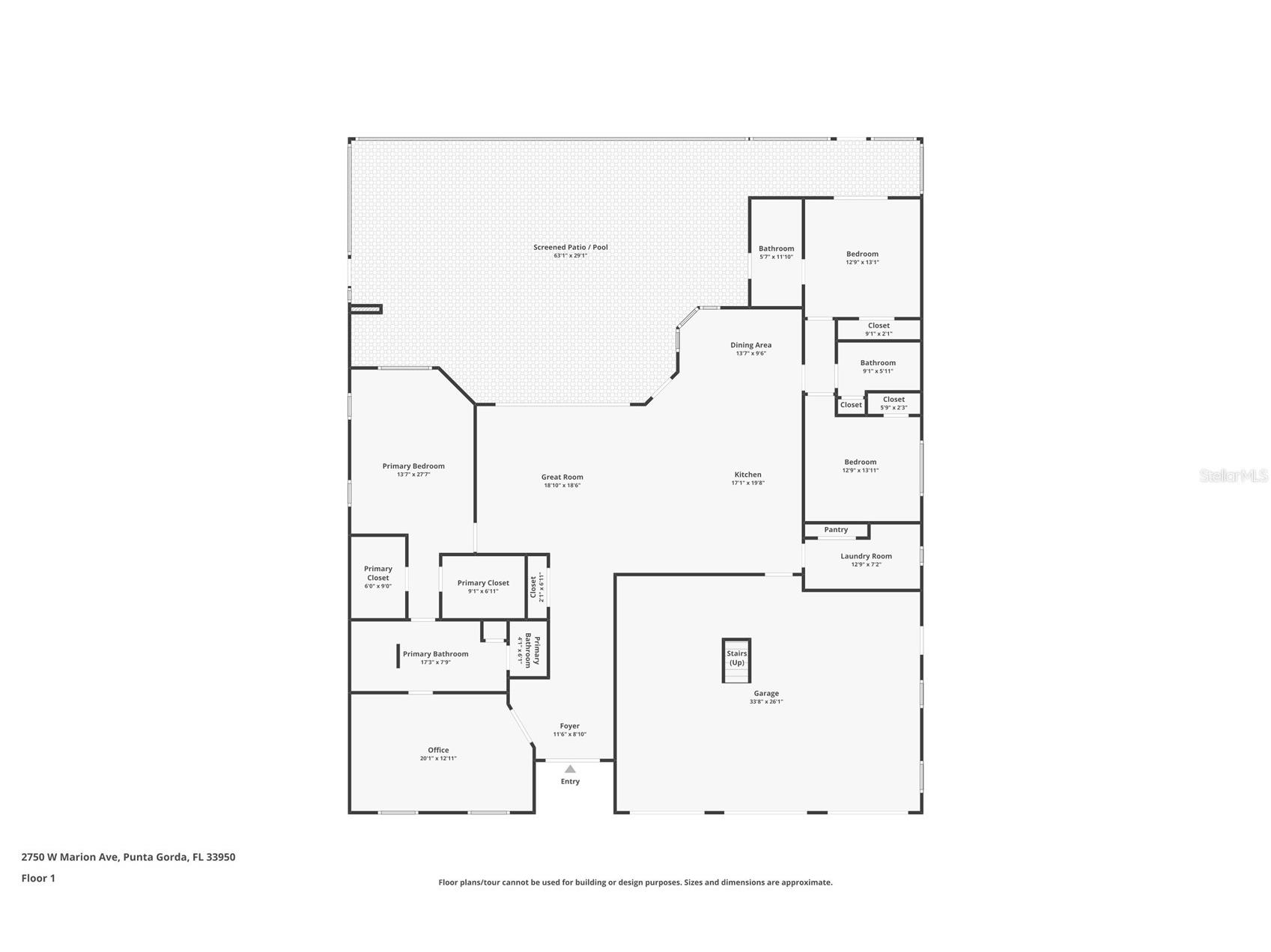
SPECTACULAR WATERFRONT HOME IN PGI W/QUICK SAIL ACCESS - Located in the original sailboat section of Punta Gorda Isles, this exceptional 3 BED/3 BATH + OFFICE, waterfront home combines modern Florida design w/superior Towles Construction craftsmanship. The property boasts 80ft of seawall with a 45ft concrete dock & 16,000lb lift. Enjoy direct, deep water, sailboat access to Charlotte Harbor where you can reach open water in minutes from your backyard. Inside, 2,655 sq ft of elegant living space showcases high tray ceilings, luxury vinyl flooring throughout, & a split-bedroom layout designed for privacy. Sliding glass doors open from the great room to the lanai extending the living space outside, filling the home w/ natural light & offering up wonderful canal views. The kitchen is the heart of the home w/stainless steel appliances, built-in double oven w/air fryer, 36" induction cook top, soft-close cabinetry w/pull-outs, granite counters, & a wraparound island w/breakfast bar seating that is ideal for entertaining. The adjacent dining area features a mitered bay window for an unobstructed pool & canal view. The interior laundry room features a 6-ft pantry for additional kitchen storage. Master suite offers private access to the lanai, two large walk-in closets, & a spa-inspired bath w/split vanities & a dual-entry, tiled shower w/two rainfall heads. Split bedroom layout boasts large guest rooms. One guest room features walk-out access to the lanai & an en-suite bath that doubles as a pool bath. A large office is located off the foyer adding functional flexibility for working from home. The office could also be used as a craft/hobby room, home gym or even a 4th bedroom, if needed. With almost every room in the home opening to the lanai, outdoor living takes center stage. The brick paver lanai features a clear view pool cage surrounding an in-ground, heated, saltwater pool. The large seating area is anchored by a summer kitchen. The covered area of the lanai is protected by electric, roll-down Kevlar hurricane screens for peace of mind. A Bullfrog hot tub is perched at the corner of the lanai overlooking the wide canal. Step beyond the screen enclosure to your 45ft concrete dock w/16,000 lb lift where you can keep your boat docked at your backdoor. Dock has kayak rollers for easy launches. Superior craftsmanship is evident in the wood-look luxury vinyl flooring, the solid core doors w/contemporary handles, the dimmable LED lighting & the modern ceiling fans. Other amenities include whole-house water softener, impact-resistant doors & windows, Manabloc plumbing system, in-ground sprinklers, wired security cameras & increased energy efficiency thanks to foam insulation throughout attic (including over lanai & garage). The oversized 3-car garage offers abundant storage for vehicles & gear. The curb appeal of the home is enhanced by tropical landscaping & a circular paver driveway. Enjoy the active Punta Gorda lifestyle where miles of sidewalks connect you to Ponce Park, Fishermen’s Village, the Harborwalk, & historic downtown. While there's no HOA, the Punta Gorda Isles Civic Association (PGICA) offers access to a wide range of social clubs, boating groups, & community activities. The only requirement to joining is ownership or residency in Punta Gorda Isles. Here, every day feels like a vacation. Bring your boat, your flip-flops, & your love of the water: start living your Punta Gorda dream today.
Listing Information
Property Type: Residential, Single Family Residence
Status: Active
Bedrooms: 3
Bathrooms: 3
Lot Size: 0.22 Acres
Square Feet: 2,655 sq ft
Year Built: 2021
Garage: Yes
Stories: 1 Story
Construction: Block,Stucco
Subdivision: Punta Gorda Isles Sec 02
Builder: TOWLES CONSTRUCTION
Foundation: Stem Wall
County: Charlotte
School Information
Elementary: Sallie Jones Elementary
Middle: Punta Gorda Middle
High: Charlotte High
Room Information
Main Floor
Porch: 36x10
Kitchen: 19x16
Dining Room: 10x13
Foyer: 7x22
Great Room: 17x17
Laundry: 8x12
Bathroom 3: 5x11
Bedroom 3: 12x12
Bathroom 2: 5x8
Bedroom 2: 11x12
Primary Bathroom: 7x21
Primary Bedroom: 18x13
Office: 19x12
Bathrooms
Full Baths: 3
Additonal Room Information
Laundry: Inside, Laundry Room
Interior Features
Appliances: Convection Oven, Built-In Oven, Microwave, Refrigerator, Washer, Cooktop, Dishwasher, Disposal, Dryer, Range Hood, Electric Water Heater, Water Softener
Flooring: Luxury Vinyl,Tile
Doors/Windows: Blinds, Window Treatments, Storm Window(s)
Additional Interior Features: Walk-In Closet(s), Split Bedrooms, Tray Ceiling(s), Window Treatments, Ceiling Fan(s), Stone Counters, Open Floorplan, Wood Cabinets, Built-in Features, High Ceilings
Utilities
Water: Public
Sewer: Public Sewer
Other Utilities: Cable Connected,Electricity Connected,High Speed Internet Available,Phone Available,Sewer Connected,Water Connected
Cooling: Ceiling Fan(s), Central Air
Heating: Electric, Central
Exterior / Lot Features
Attached Garage: Attached Garage
Garage Spaces: 3
Parking Description: Circular Driveway, Oversized, Garage, Garage Door Opener
Roof: Metal
Pool: Outside Bath Access, Salt Water, Screen Enclosure, In Ground, Heated
Lot View: Canal,Water
Additional Exterior/Lot Features: Outdoor Shower, Sprinkler/Irrigation, Storm/Security Shutters, Rain Gutters, Outdoor Kitchen, Screened, Patio, Flat, Level, Landscaped, Flood Zone, Near Golf Course
Waterfront Details
Water Front Features: Gulf Access, Canal Access, River Access, Bay Access
Community Features
Security Features: Closed Circuit Camera(s), Smoke Detector(s)
Driving Directions
From US41, go west on Marion Ave. Home is on right across from Venezia Ct.
Financial Considerations
Terms: Cash,Conventional
Tax/Property ID: 412211359014
Tax Amount: 17833
Tax Year: 2024
A broker reciprocity listing courtesy: RE/MAX HARBOR REALTY
Based on information provided by Stellar MLS as distributed by the MLS GRID. Information from the Internet Data Exchange is provided exclusively for consumers’ personal, non-commercial use, and such information may not be used for any purpose other than to identify prospective properties consumers may be interested in purchasing. This data is deemed reliable but is not guaranteed to be accurate by Edina Realty, Inc., or by the MLS. Edina Realty, Inc., is not a multiple listing service (MLS), nor does it offer MLS access.
Copyright 2026 Stellar MLS as distributed by the MLS GRID. All Rights Reserved.
Payment Calculator
Interest rate and annual percentage rate (APR) are based on current market conditions, are for informational purposes only, are subject to change without notice and may be subject to pricing add-ons related to property type, loan amount, loan-to-value, credit score and other variables. Estimated closing costs used in the APR calculation are assumed to be paid by the borrower at closing. If the closing costs are financed, the loan, APR and payment amounts will be higher. If the down payment is less than 20%, mortgage insurance may be required and could increase the monthly payment and APR. Contact us for details. Additional loan programs may be available. Accuracy is not guaranteed, and all products may not be available in all borrower's geographical areas and are based on their individual situation. This is not a credit decision or a commitment to lend.
Sales History & Tax Summary for 2750 W Marion Avenue
Sales History
| Date | Price | |
|---|---|---|
| Currently not available. | ||
Tax Summary
| Tax Year | Estimated Market Value | Total Tax |
|---|---|---|
| Currently not available. | ||
Data powered by ATTOM Data Solutions. Copyright© 2026. Information deemed reliable but not guaranteed.
Schools
Schools nearby 2750 W Marion Avenue
| Schools in attendance boundaries | Grades | Distance | Rating |
|---|---|---|---|
| Loading... | |||
| Schools nearby | Grades | Distance | Rating |
|---|---|---|---|
| Loading... | |||
Data powered by ATTOM Data Solutions. Copyright© 2026. Information deemed reliable but not guaranteed.
The schools shown represent both the assigned schools and schools by distance based on local school and district attendance boundaries. Attendance boundaries change based on various factors and proximity does not guarantee enrollment eligibility. Please consult your real estate agent and/or the school district to confirm the schools this property is zoned to attend. Information is deemed reliable but not guaranteed.
SchoolDigger ® Rating
The SchoolDigger rating system is a 1-5 scale with 5 as the highest rating. SchoolDigger ranks schools based on test scores supplied by each state's Department of Education. They calculate an average standard score by normalizing and averaging each school's test scores across all tests and grades.
Coming soon properties will soon be on the market, but are not yet available for showings.